| 1 | 04/24/2023 | QCD | Quit Claim Deed | ROGER T BECK | ROGER T BECK & REGINA A NORTON BECK REV LIVING TRUST | | | | 140869 | |
| 2 | 04/24/2023 | QCD | Quit Claim Deed | REGINA A NORTON BECK REVOCABLE TRUST | ROGER T BECK | | | | 140868 | |
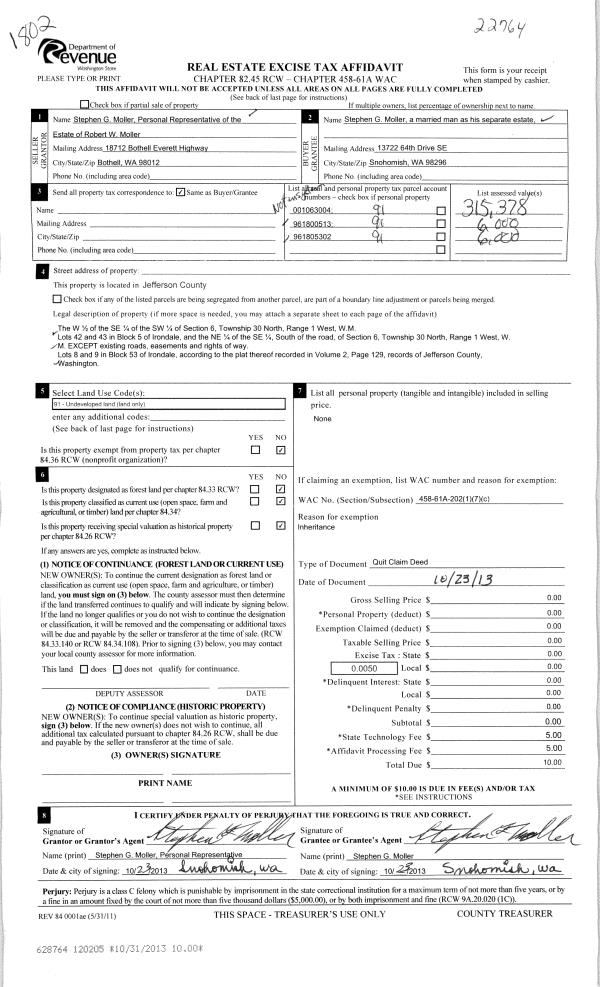
| 3 | 10/07/2020 | QCD | Quit Claim Deed | ROGER T BECK | REGINA A NORTON BECK REVOCABLE TRUST | | | | 135972 | |
| 4 | 10/07/2020 | QCD | Quit Claim Deed | REGINA A NORTON BECK REVOCABLE TRUST | ROGER T BECK | | | | 135971 | |
| 5 | 04/05/2019 | SWD | Statutory Warranty Deed | BRUCE SEMANS & DANNYL DOLDER | REGINA A NORTON BECK REVOCABLE TRUST | | | $765,000.00 | 132112 | |
| 6 | 08/18/2016 | SWD | Statutory Warranty Deed | JAY A LAWRENCE | BRUCE SEMANS & DANNYL DOLDER | | | $785,000.00 | 126107 | |
| 7 | 11/18/1997 | SWD | Statutory Warranty Deed | LITTLE, MICHELLE D/LARRY | LAWRENCE, JAY A/KALLI E | 0 | 0 | $370,000.00 | 83210 | 0 |
| 8 | 01/30/1996 | SWD | Statutory Warranty Deed | LUKE, GREGORY G/CATHRYN R | SCHABER, CARL | 0 | 0 | $40,000.00 | 78859 | 0 |