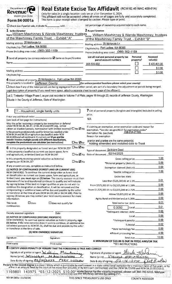
Property
Account |
| Property ID: | 39645 | Abbreviated Legal Description: | PORT TOWNSEND O.T. BLK 142 TAX 47(TRACT A) |
| Parcel # / Geo ID: | 989714208 | Agent Code: | |
| Type: | Real | | |
| Tax Area: | 0110 - C-50F1E1H2 | Land Use Code | 11 |
| Open Space: | N | DFL | N |
| Historic Property: | N | Remodel Property: | N |
| Multi-Family Redevelopment: | N | | |
| Township: | 30N | Section: | 1 |
| Range: | 1W |
Location |
| Address: | 600 HUDSON PL PORT TOWNSEND, WA 98368 | Mapsco: | 126/035 |
| Neighborhood: | S1T30R1W TAX#S,LINCOLN BCH,PTOT BLK 142,PORTER SP | Map ID: | |
| Neighborhood CD: | 6380 |
Owner |
| Name: | ROBERT T CAWRSE | Owner ID: | 112420 |
| Mailing Address: | MARIE CAWRSE MARITAL TRUST ROBERT CAWRSE TRUSTEE 600 HUDSON PL PORT TOWNSEND, WA 98368-5627 | % Ownership: | 100.0000000000% |
| | | Exemptions: | |
Pay Tax Due
There is currently No Amount Due on this property.
Taxes and Assessment Details
Property Tax Information as of
10/24/2025
Click on "Statement Details" to expand or collapse a tax statement.
* Please enter a valid date ** Please enter a valid date *
Statement Details |
| | TOTAL: | $0.00 | $0.00 | $0.00 | $0.00 | $0.00 | $0.00 |
|
| | $0.00 | $0.00 | $0.00 | $0.00 | $0.00 | $0.00 |
Values
| (+) Improvement Homesite Value: | + | $0 | |
| (+) Improvement Non-Homesite Value: | + | $1,261,164 | |
| (+) Land Homesite Value: | + | $0 | |
| (+) Land Non-Homesite Value: | + | $555,600 | |
| (+) Curr Use (HS): | + | $0 | $0 |
| (+) Curr Use (NHS): | + | $0 | $0 |
| | | -------------------------- | |
| (=) Market Value: | = | $1,816,764 | |
| (–) Productivity Loss: | – | $0 | |
| | | -------------------------- | |
| (=) Subtotal: | = | $1,816,764 | |
| (+) Senior Appraised Value: | + | $0 | |
| (+) Non-Senior Appraised Value: | + | $1,816,764 | |
| | | -------------------------- | |
| (=) Total Appraised Value: | = | $1,816,764 | |
| (–) Senior Exemption Loss: | – | $0 | |
| (–) Exemption Loss: | – | $0 | |
| | | -------------------------- | |
| (=) Taxable Value: | = | $1,816,764 | |
Taxing Jurisdiction
| Owner: | ROBERT T CAWRSE | | |
| % Ownership: | 100.0000000000% | | |
| Total Value: | N/A | | |
| Tax Area: | 0110 - C-50F1E1H2 |
| CE | COUNTY CURRENT EXPENSE | N/A | N/A | N/A | N/A | | |
| CNTYDD | DEVELOPMENTAL DISABILITIES | N/A | N/A | N/A | N/A | | |
| CNTYVET | VETERANS RELIEF | N/A | N/A | N/A | N/A | | |
| MENTAL | MENTAL HEALTH | N/A | N/A | N/A | N/A | | |
| PTGEN | CITY OF PT GENERAL | N/A | N/A | N/A | N/A | | |
| PTLLL | CITY OF PT - LIBRARY LID LIFT | N/A | N/A | N/A | N/A | | |
| PTMVBOND | CITY OF PT MV BOND | N/A | N/A | N/A | N/A | | |
| HOSP2CASH | HOSP DIST #2 GENERAL | N/A | N/A | N/A | N/A | | |
| SCH50BOND | SCHOOL DIST #50 BOND 2016 | N/A | N/A | N/A | N/A | | |
| SCH50CP | SCHOOL DIST #50 CAP PROJ | N/A | N/A | N/A | N/A | | |
| SCH50MO | SCHOOL DIST #50 EP & O | N/A | N/A | N/A | N/A | | |
| CONSERVE | CONSERVATION FUTURES | N/A | N/A | N/A | N/A | | |
| EMS1 | FIRE DIST #1 EMS | N/A | N/A | N/A | N/A | | |
| FD1 | FIRE DIST #1 GENERAL | N/A | N/A | N/A | N/A | | |
| PORTPT | PORT OF PT GENERAL | N/A | N/A | N/A | N/A | | |
| PORTPTIDD | PORT OF PT IDD 2019 | N/A | N/A | N/A | N/A | | |
| PUD1 | PUD #1 GENERAL | N/A | N/A | N/A | N/A | | |
| STATE | STATE SCHOOL PART 1 | N/A | N/A | N/A | N/A | | |
| STATE2 | STATE SCHOOL PART 2 | N/A | N/A | N/A | N/A | | |
| | Total Tax Rate: | N/A | | | | | |
| | | | | Taxes w/Current Exemptions: | N/A | | |
| | | | | Taxes w/o Exemptions: | N/A | | |
Improvement / Building
| Improvement #1: | Residential Bldg | State Code: | 11 | 3778.0 sqft | Value: | $1,261,164 |
| Bathrooms (#): | 4 (FULL) | Bathrooms (#): | 1 (HALF) | | Bedrooms (#): | 4 | Exterior Wall: | SI/ST | | Floor Construction: | FRAME | Foundation: | CONPR | | Heating/Cooling: | HTWTR | Roof Cover: | TILE |
|
| | Type | Description | Class CD | Sub Class CD | Year Built | Area |
| | MA | Main Area | 6 | 15SF | 1988 | 3147.0 |
| | MA2 | Second Floor Main Area | 6 | 15SF | 1988 | 631.0 |
| | HCPOR | House Concrete Porch | 6 | * | 1988 | 158.0 |
| | HDECK | House Deck | 6 | * | 1988 | 1488.0 |
| | GATT | House Attached Garage | 6 | 15SF | 1988 | 631.0 |
| | CONCD | Concrete Drive | 6 | * | 1988 | 0.0 |
Sketch
Property Image
Land
| 1 | 6380-1115F | No Bank Wtrft Near Point Hudson | 0.0000 | 0.00 | 0.00 | 0.00 | 0.00 | $555,600 | $0 |
Roll Value History
| 2025 | N/A | N/A | N/A | N/A | N/A |
| 2024 | $1,223,294 | $554,950 | $0 | $1,778,244 | $1,778,244 |
| 2023 | $1,121,353 | $499,500 | $0 | $1,620,853 | $1,620,853 |
| 2022 | $1,121,353 | $494,500 | $0 | $1,615,853 | $1,615,853 |
| 2021 | $937,586 | $482,280 | $0 | $1,419,866 | $1,419,866 |
Deed and Sales History
| 1 | 04/02/2025 | PRD | Personal Representatives Deed | ROBERT T CAWRSE PERSONAL REPRESENTATIVE | MARIE CAWRSE MARITAL TRUST | | | | 144142 | |
| 2 | 08/27/2012 | SWD | Statutory Warranty Deed | SPRINGSTEAD TRSTE ELLIOT/ | CAWRSE, R THOMAS/MARIE K | 0 | 0 | $1,100,000.00 | 117993 | 0 |
| 3 | 12/01/1999 | QCD | Quit Claim Deed | SPRINGSTEAD, E T/ERICA L | SPRINGSTEAD FAMILY TRUST | 0 | 0 | $0.00 | 89040 | 0 |
| 4 | 08/17/1998 | SWD | Statutory Warranty Deed | TAVERNAKIS, JAMES & GLEND | SPRINGSTEAD, E T/ERICA L | 0 | 0 | $500,000.00 | 85132 | 0 |
| 5 | 11/17/1993 | QCD | Quit Claim Deed | TAVERNAKIS, JAMES JOHN/GL | TAVERNAKIS FAMILY 93 REV TR | 0 | 0 | $0.00 | 72716 | 0 |
Payout Agreement
| No payout information available.. |