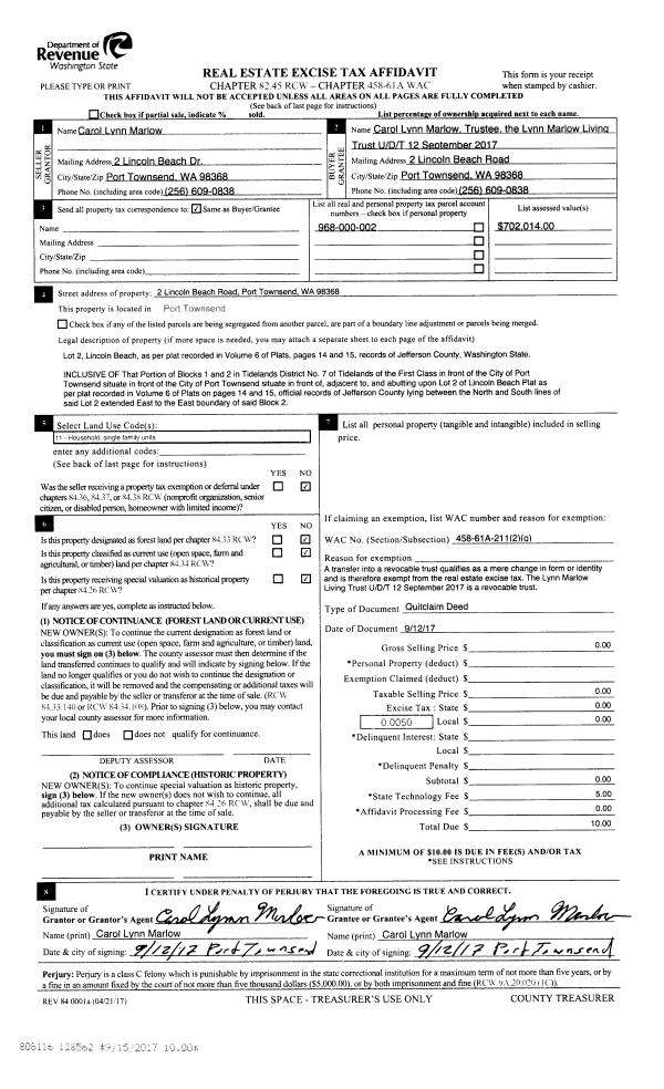
Property
Account |
| Property ID: | 39822 | Abbreviated Legal Description: | THE ADMIRALTY APARTMENT 13 |
| Parcel # / Geo ID: | 990300113 | Agent Code: | |
| Type: | Real | | |
| Tax Area: | 0213 - 1-49F1E1H2L1 | Land Use Code | 14 |
| Open Space: | N | DFL | N |
| Historic Property: | N | Remodel Property: | N |
| Multi-Family Redevelopment: | N | | |
| Township: | 28N | Section: | 9 |
| Range: | 1E |
Location |
| Address: | 100 OLYMPIC UNIT 13 PORT LUDLOW, WA 98365 | Mapsco: | 094/013 |
| Neighborhood: | CYCLE 3 CONDOMINIUMS - PORT LUDLOW | Map ID: | |
| Neighborhood CD: | 3900 |
Owner |
| Name: | CRANE CREEK CONSULTING LLC | Owner ID: | 111665 |
| Mailing Address: | 3330 CRANE CREEK RD BOISE, ID 83702-1415 | % Ownership: | 100.0000000000% |
| | | Exemptions: | |
Pay Tax Due
There is currently No Amount Due on this property.
Taxes and Assessment Details
Property Tax Information as of
10/24/2025
Click on "Statement Details" to expand or collapse a tax statement.
* Please enter a valid date ** Please enter a valid date *
Statement Details |
| | TOTAL: | $0.00 | $0.00 | $0.00 | $0.00 | $0.00 | $0.00 |
|
| | $0.00 | $0.00 | $0.00 | $0.00 | $0.00 | $0.00 |
Values
| (+) Improvement Homesite Value: | + | $0 | |
| (+) Improvement Non-Homesite Value: | + | $269,325 | |
| (+) Land Homesite Value: | + | $0 | |
| (+) Land Non-Homesite Value: | + | $125,000 | |
| (+) Curr Use (HS): | + | $0 | $0 |
| (+) Curr Use (NHS): | + | $0 | $0 |
| | | -------------------------- | |
| (=) Market Value: | = | $394,325 | |
| (–) Productivity Loss: | – | $0 | |
| | | -------------------------- | |
| (=) Subtotal: | = | $394,325 | |
| (+) Senior Appraised Value: | + | $0 | |
| (+) Non-Senior Appraised Value: | + | $394,325 | |
| | | -------------------------- | |
| (=) Total Appraised Value: | = | $394,325 | |
| (–) Senior Exemption Loss: | – | $0 | |
| (–) Exemption Loss: | – | $0 | |
| | | -------------------------- | |
| (=) Taxable Value: | = | $394,325 | |
Taxing Jurisdiction
| Owner: | CRANE CREEK CONSULTING LLC | | |
| % Ownership: | 100.0000000000% | | |
| Total Value: | N/A | | |
| Tax Area: | 0213 - 1-49F1E1H2L1 |
| CE | COUNTY CURRENT EXPENSE | N/A | N/A | N/A | N/A | | |
| CNTYDD | DEVELOPMENTAL DISABILITIES | N/A | N/A | N/A | N/A | | |
| CNTYVET | VETERANS RELIEF | N/A | N/A | N/A | N/A | | |
| MENTAL | MENTAL HEALTH | N/A | N/A | N/A | N/A | | |
| ROADS | COUNTY ROADS | N/A | N/A | N/A | N/A | | |
| ROADSCU | COUNTY ROADS TO CUR EXP | N/A | N/A | N/A | N/A | | |
| HOSP2CASH | HOSP DIST #2 GENERAL | N/A | N/A | N/A | N/A | | |
| SCH49CP | SCHOOL DIST #49 CAP PROJ | N/A | N/A | N/A | N/A | | |
| SCH49MO | SCHOOL DIST #49 EP & O | N/A | N/A | N/A | N/A | | |
| CONSERVE | CONSERVATION FUTURES | N/A | N/A | N/A | N/A | | |
| EMS1 | FIRE DIST #1 EMS | N/A | N/A | N/A | N/A | | |
| FD1 | FIRE DIST #1 GENERAL | N/A | N/A | N/A | N/A | | |
| LIB1 | LIBRARY DIST #1 GENERAL | N/A | N/A | N/A | N/A | | |
| PORTPT | PORT OF PT GENERAL | N/A | N/A | N/A | N/A | | |
| PORTPTIDD | PORT OF PT IDD 2019 | N/A | N/A | N/A | N/A | | |
| PUD1 | PUD #1 GENERAL | N/A | N/A | N/A | N/A | | |
| STATE | STATE SCHOOL PART 1 | N/A | N/A | N/A | N/A | | |
| STATE2 | STATE SCHOOL PART 2 | N/A | N/A | N/A | N/A | | |
| | Total Tax Rate: | N/A | | | | | |
| | | | | Taxes w/Current Exemptions: | N/A | | |
| | | | | Taxes w/o Exemptions: | N/A | | |
Improvement / Building
| Improvement #1: | Residential Bldg | State Code: | 14 | 1350.0 sqft | Value: | $269,325 |
Sketch
| No sketches available for this property. |
Property Image
Land
| 1 | 9903-4165S | Fair/Filtered Wtr/Terr Views Admiralty Condos | 0.0000 | 0.00 | 0.00 | 0.00 | 1.00 | $125,000 | $0 |
Roll Value History
| 2025 | N/A | N/A | N/A | N/A | N/A |
| 2024 | $297,675 | $125,000 | $0 | $422,675 | $422,675 |
| 2023 | $297,675 | $125,000 | $0 | $422,675 | $422,675 |
| 2022 | $280,800 | $125,000 | $0 | $405,800 | $405,800 |
| 2021 | $226,800 | $119,000 | $0 | $345,800 | $345,800 |
Deed and Sales History
| 1 | 10/22/2024 | QCD | Quit Claim Deed | JAMES & CAROLYN R HANSON | CRANE CREEK CONSULTING LLC | | | | 143405 | |
| 2 | 05/29/2024 | SWD | Statutory Warranty Deed | DAVID P CARLIN | JAMES & CAROLYN R HANSON | | | $450,000.00 | 142683 | |
| 3 | 02/21/2018 | SWD | Statutory Warranty Deed | MARY D VERNON | DAVID P CARLIN | | | $245,000.00 | 129646 | |
| 4 | 04/14/2004 | SWD | Statutory Warranty Deed | COAD, THOMAS | VERNON, MARY D/GEORGE A | 0 | 0 | $145,000.00 | 99987 | 0 |
| 5 | 04/16/2002 | SWD | Statutory Warranty Deed | SUNDHOLM, MARIAN J | COAD, THOMAS | 0 | 0 | $120,000.00 | 94465 | 0 |
| 6 | 04/16/2002 | QCD | Quit Claim Deed | WEBBER-COAD, SHARIL | COAD, THOMAS | 0 | 0 | $0.00 | 94466 | 0 |
Payout Agreement
| No payout information available.. |