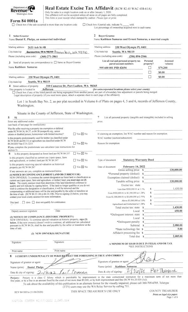
Property
Account |
| Property ID: | 39871 | Abbreviated Legal Description: | THE ADMIRALTY #2 UNIT U |
| Parcel # / Geo ID: | 990300221 | Agent Code: | |
| Type: | Real | | |
| Tax Area: | 0213 - 1-49F1E1H2L1 | Land Use Code | 14 |
| Open Space: | N | DFL | N |
| Historic Property: | N | Remodel Property: | N |
| Multi-Family Redevelopment: | N | | |
| Township: | 28N | Section: | 9 |
| Range: | 1E |
Location |
| Address: | 140 ADMIRALTY LN 361--363 PORT LUDLOW, WA 98365 | Mapsco: | 094/061 |
| Neighborhood: | CYCLE 3 CONDOMINIUMS - PORT LUDLOW | Map ID: | |
| Neighborhood CD: | 3900 |
Owner |
| Name: | KIRK R WINES | Owner ID: | 93288 |
| Mailing Address: | 140 ADMIRALTY LN #363 PORT LUDLOW, WA 98365-8280 | % Ownership: | 100.0000000000% |
| | | Exemptions: | |
Pay Tax Due
There is currently No Amount Due on this property.
Taxes and Assessment Details
Property Tax Information as of
10/24/2025
Click on "Statement Details" to expand or collapse a tax statement.
* Please enter a valid date ** Please enter a valid date *
Statement Details |
| | TOTAL: | $0.00 | $0.00 | $0.00 | $0.00 | $0.00 | $0.00 |
|
| | $0.00 | $0.00 | $0.00 | $0.00 | $0.00 | $0.00 |
Values
| (+) Improvement Homesite Value: | + | $0 | |
| (+) Improvement Non-Homesite Value: | + | $254,961 | |
| (+) Land Homesite Value: | + | $0 | |
| (+) Land Non-Homesite Value: | + | $190,000 | |
| (+) Curr Use (HS): | + | $0 | $0 |
| (+) Curr Use (NHS): | + | $0 | $0 |
| | | -------------------------- | |
| (=) Market Value: | = | $444,961 | |
| (–) Productivity Loss: | – | $0 | |
| | | -------------------------- | |
| (=) Subtotal: | = | $444,961 | |
| (+) Senior Appraised Value: | + | $0 | |
| (+) Non-Senior Appraised Value: | + | $444,961 | |
| | | -------------------------- | |
| (=) Total Appraised Value: | = | $444,961 | |
| (–) Senior Exemption Loss: | – | $0 | |
| (–) Exemption Loss: | – | $0 | |
| | | -------------------------- | |
| (=) Taxable Value: | = | $444,961 | |
Taxing Jurisdiction
| Owner: | KIRK R WINES | | |
| % Ownership: | 100.0000000000% | | |
| Total Value: | N/A | | |
| Tax Area: | 0213 - 1-49F1E1H2L1 |
| CE | COUNTY CURRENT EXPENSE | N/A | N/A | N/A | N/A | | |
| CNTYDD | DEVELOPMENTAL DISABILITIES | N/A | N/A | N/A | N/A | | |
| CNTYVET | VETERANS RELIEF | N/A | N/A | N/A | N/A | | |
| MENTAL | MENTAL HEALTH | N/A | N/A | N/A | N/A | | |
| ROADS | COUNTY ROADS | N/A | N/A | N/A | N/A | | |
| ROADSCU | COUNTY ROADS TO CUR EXP | N/A | N/A | N/A | N/A | | |
| HOSP2CASH | HOSP DIST #2 GENERAL | N/A | N/A | N/A | N/A | | |
| SCH49CP | SCHOOL DIST #49 CAP PROJ | N/A | N/A | N/A | N/A | | |
| SCH49MO | SCHOOL DIST #49 EP & O | N/A | N/A | N/A | N/A | | |
| CONSERVE | CONSERVATION FUTURES | N/A | N/A | N/A | N/A | | |
| EMS1 | FIRE DIST #1 EMS | N/A | N/A | N/A | N/A | | |
| FD1 | FIRE DIST #1 GENERAL | N/A | N/A | N/A | N/A | | |
| LIB1 | LIBRARY DIST #1 GENERAL | N/A | N/A | N/A | N/A | | |
| PORTPT | PORT OF PT GENERAL | N/A | N/A | N/A | N/A | | |
| PORTPTIDD | PORT OF PT IDD 2019 | N/A | N/A | N/A | N/A | | |
| PUD1 | PUD #1 GENERAL | N/A | N/A | N/A | N/A | | |
| STATE | STATE SCHOOL PART 1 | N/A | N/A | N/A | N/A | | |
| STATE2 | STATE SCHOOL PART 2 | N/A | N/A | N/A | N/A | | |
| | Total Tax Rate: | N/A | | | | | |
| | | | | Taxes w/Current Exemptions: | N/A | | |
| | | | | Taxes w/o Exemptions: | N/A | | |
Improvement / Building
| Improvement #1: | Residential Bldg | State Code: | 14 | 1278.0 sqft | Value: | $254,961 |
Sketch
| No sketches available for this property. |
Property Image
Land
| 1 | 9903-4143S | VGood-Exc Wtr Views Admiralty Condo II | 0.0000 | 0.00 | 0.00 | 0.00 | 1.00 | $190,000 | $0 |
Roll Value History
| 2025 | N/A | N/A | N/A | N/A | N/A |
| 2024 | $281,799 | $190,000 | $0 | $471,799 | $471,799 |
| 2023 | $281,799 | $190,000 | $0 | $471,799 | $471,799 |
| 2022 | $265,824 | $190,000 | $0 | $455,824 | $455,824 |
| 2021 | $214,704 | $175,000 | $0 | $389,704 | $389,704 |
Deed and Sales History
| 1 | 03/17/2015 | SWD | Statutory Warranty Deed | MAX C AIKEN TRUSTEE | KIRK R WINES | | | $225,000.00 | 122847 | |
| 2 | 11/19/2008 | SWD | Statutory Warranty Deed | CORTRIGHT, MICHAEL/ROXANN | AIKEN FAMILY TRUST | 0 | 0 | $250,000.00 | 112213 | 0 |
| 3 | 05/11/2002 | QCD | Quit Claim Deed | MICHAEL F/ROXANNE CORTRIG | MICHAEL/ROXANNE CORTRIGHT, TRU | 0 | 0 | $0.00 | 95388 | 0 |
| 4 | 12/06/2001 | SWD | Statutory Warranty Deed | PRECHEL, NORBERT/NANCY | CORTRIGHT, MICHAEL F/ROXANNE | 0 | 0 | $143,500.00 | 93657 | 0 |
Payout Agreement
| No payout information available.. |