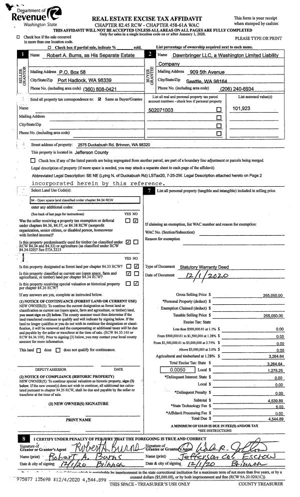
Property
Account |
| Property ID: | 39925 | Abbreviated Legal Description: | PORT LUDLOW NO 1 AREA 1, LOT 50 |
| Parcel # / Geo ID: | 990400150 | Agent Code: | |
| Type: | Real | | |
| Tax Area: | 0213 - 1-49F1E1H2L1 | Land Use Code | 91 |
| Open Space: | N | DFL | N |
| Historic Property: | N | Remodel Property: | N |
| Multi-Family Redevelopment: | N | | |
| Township: | 28N | Section: | 9 |
| Range: | 1E |
Location |
| Address: | | Mapsco: | 097/011 |
| Neighborhood: | PORT LUDLOW #1 AREAS 1 AND 5; PORT LUDLOW # 7 | Map ID: | |
| Neighborhood CD: | 3330 |
Owner |
| Name: | GERALDINE GOUDIE | Owner ID: | 104647 |
| Mailing Address: | ERIN ANDERSON 114 PUGET LOOP PORT LUDLOW, WA 98365-8793 | % Ownership: | 100.0000000000% |
| | | Exemptions: | |
Pay Tax Due
There is currently No Amount Due on this property.
Taxes and Assessment Details
Property Tax Information as of
10/24/2025
Click on "Statement Details" to expand or collapse a tax statement.
* Please enter a valid date ** Please enter a valid date *
Statement Details |
| | TOTAL: | $0.00 | $0.00 | $0.00 | $0.00 | $0.00 | $0.00 |
|
| | $0.00 | $0.00 | $0.00 | $0.00 | $0.00 | $0.00 |
Values
| (+) Improvement Homesite Value: | + | $0 | |
| (+) Improvement Non-Homesite Value: | + | $0 | |
| (+) Land Homesite Value: | + | $0 | |
| (+) Land Non-Homesite Value: | + | $66,000 | |
| (+) Curr Use (HS): | + | $0 | $0 |
| (+) Curr Use (NHS): | + | $0 | $0 |
| | | -------------------------- | |
| (=) Market Value: | = | $66,000 | |
| (–) Productivity Loss: | – | $0 | |
| | | -------------------------- | |
| (=) Subtotal: | = | $66,000 | |
| (+) Senior Appraised Value: | + | $0 | |
| (+) Non-Senior Appraised Value: | + | $66,000 | |
| | | -------------------------- | |
| (=) Total Appraised Value: | = | $66,000 | |
| (–) Senior Exemption Loss: | – | $0 | |
| (–) Exemption Loss: | – | $0 | |
| | | -------------------------- | |
| (=) Taxable Value: | = | $66,000 | |
Taxing Jurisdiction
| Owner: | GERALDINE GOUDIE | | |
| % Ownership: | 100.0000000000% | | |
| Total Value: | N/A | | |
| Tax Area: | 0213 - 1-49F1E1H2L1 |
| CE | COUNTY CURRENT EXPENSE | N/A | N/A | N/A | N/A | | |
| CNTYDD | DEVELOPMENTAL DISABILITIES | N/A | N/A | N/A | N/A | | |
| CNTYVET | VETERANS RELIEF | N/A | N/A | N/A | N/A | | |
| MENTAL | MENTAL HEALTH | N/A | N/A | N/A | N/A | | |
| ROADS | COUNTY ROADS | N/A | N/A | N/A | N/A | | |
| ROADSCU | COUNTY ROADS TO CUR EXP | N/A | N/A | N/A | N/A | | |
| HOSP2CASH | HOSP DIST #2 GENERAL | N/A | N/A | N/A | N/A | | |
| SCH49CP | SCHOOL DIST #49 CAP PROJ | N/A | N/A | N/A | N/A | | |
| SCH49MO | SCHOOL DIST #49 EP & O | N/A | N/A | N/A | N/A | | |
| CONSERVE | CONSERVATION FUTURES | N/A | N/A | N/A | N/A | | |
| EMS1 | FIRE DIST #1 EMS | N/A | N/A | N/A | N/A | | |
| FD1 | FIRE DIST #1 GENERAL | N/A | N/A | N/A | N/A | | |
| LIB1 | LIBRARY DIST #1 GENERAL | N/A | N/A | N/A | N/A | | |
| PORTPT | PORT OF PT GENERAL | N/A | N/A | N/A | N/A | | |
| PORTPTIDD | PORT OF PT IDD 2019 | N/A | N/A | N/A | N/A | | |
| PUD1 | PUD #1 GENERAL | N/A | N/A | N/A | N/A | | |
| STATE | STATE SCHOOL PART 1 | N/A | N/A | N/A | N/A | | |
| STATE2 | STATE SCHOOL PART 2 | N/A | N/A | N/A | N/A | | |
| | Total Tax Rate: | N/A | | | | | |
| | | | | Taxes w/Current Exemptions: | N/A | | |
| | | | | Taxes w/o Exemptions: | N/A | | |
Improvement / Building
Sketch
| No sketches available for this property. |
Property Image
Land
| 1 | 3330-1185L | No View Lots | 0.0000 | 0.00 | 0.00 | 0.00 | 1.00 | $66,000 | $0 |
Roll Value History
| 2025 | N/A | N/A | N/A | N/A | N/A |
| 2024 | $0 | $66,000 | $0 | $66,000 | $66,000 |
| 2023 | $0 | $60,000 | $0 | $60,000 | $60,000 |
| 2022 | $0 | $60,000 | $0 | $60,000 | $60,000 |
| 2021 | $0 | $50,000 | $0 | $50,000 | $50,000 |
Deed and Sales History
| 1 | 04/27/2021 | QCD | Quit Claim Deed | RYAN S ANDERSON | ERIN ANDERSON | | | | 136605 | |
| 2 | 04/27/2021 | SWD | Statutory Warranty Deed | JAMES W & JUNE A NIQUETTE | GERALDINE GOUDIE | | | $65,000.00 | 136604 | |
| 3 | 07/30/2019 | QCD | Quit Claim Deed | | | | | | 132882 | |
| 4 | 06/19/2009 | QCD | Quit Claim Deed | NIQUETTE, JAMES/JUNE TRUS | NIQUETTE, JAMES/JUNE/ELDRIDGE | | | $0.00 | 113026 | 0 |
| 5 | 04/24/1997 | SWD | Statutory Warranty Deed | NIQUETTE, JAMES W/JUNE A | NIQUETTE LIVING TRUST | 0 | 0 | $0.00 | 81891 | 0 |
Payout Agreement
| No payout information available.. |