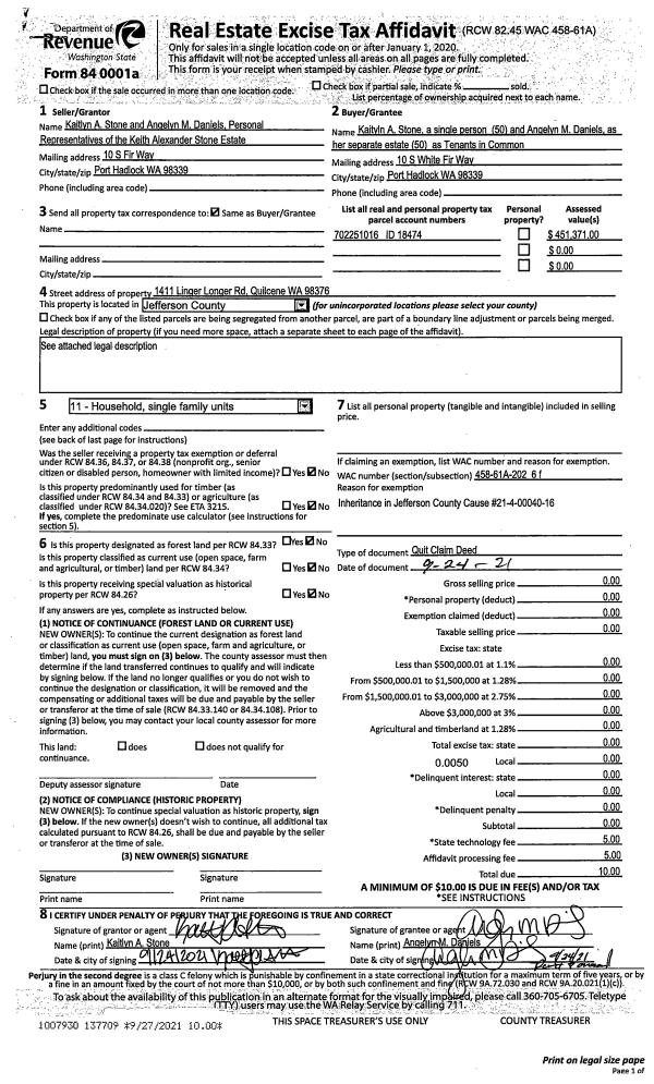
Property
Account |
| Property ID: | 39936 | Abbreviated Legal Description: | PORT LUDLOW NO 1 AREA 1 LOT 61 |
| Parcel # / Geo ID: | 990400161 | Agent Code: | |
| Type: | Real | | |
| Tax Area: | 0213 - 1-49F1E1H2L1 | Land Use Code | 11 |
| Open Space: | N | DFL | N |
| Historic Property: | N | Remodel Property: | N |
| Multi-Family Redevelopment: | N | | |
| Township: | 28N | Section: | 9 |
| Range: | 1E |
Location |
| Address: | 61 PUGET LOOP RD PORT LUDLOW, WA 98365 | Mapsco: | 097/022 |
| Neighborhood: | PORT LUDLOW #1 AREAS 1 AND 5; PORT LUDLOW # 7 | Map ID: | |
| Neighborhood CD: | 3330 |
Owner |
| Name: | THOMAS S & CAROL S REID | Owner ID: | 109346 |
| Mailing Address: | PO BOX 51 SUTTER CREEK, CA 95685-0051 | % Ownership: | 100.0000000000% |
| | | Exemptions: | |
Pay Tax Due
There is currently No Amount Due on this property.
Taxes and Assessment Details
Property Tax Information as of
10/24/2025
Click on "Statement Details" to expand or collapse a tax statement.
* Please enter a valid date ** Please enter a valid date *
Statement Details |
| | TOTAL: | $0.00 | $0.00 | $0.00 | $0.00 | $0.00 | $0.00 |
|
| | $0.00 | $0.00 | $0.00 | $0.00 | $0.00 | $0.00 |
Values
| (+) Improvement Homesite Value: | + | $0 | |
| (+) Improvement Non-Homesite Value: | + | $378,000 | |
| (+) Land Homesite Value: | + | $0 | |
| (+) Land Non-Homesite Value: | + | $104,500 | |
| (+) Curr Use (HS): | + | $0 | $0 |
| (+) Curr Use (NHS): | + | $0 | $0 |
| | | -------------------------- | |
| (=) Market Value: | = | $482,500 | |
| (–) Productivity Loss: | – | $0 | |
| | | -------------------------- | |
| (=) Subtotal: | = | $482,500 | |
| (+) Senior Appraised Value: | + | $0 | |
| (+) Non-Senior Appraised Value: | + | $482,500 | |
| | | -------------------------- | |
| (=) Total Appraised Value: | = | $482,500 | |
| (–) Senior Exemption Loss: | – | $0 | |
| (–) Exemption Loss: | – | $0 | |
| | | -------------------------- | |
| (=) Taxable Value: | = | $482,500 | |
Taxing Jurisdiction
| Owner: | THOMAS S & CAROL S REID | | |
| % Ownership: | 100.0000000000% | | |
| Total Value: | N/A | | |
| Tax Area: | 0213 - 1-49F1E1H2L1 |
| CE | COUNTY CURRENT EXPENSE | N/A | N/A | N/A | N/A | | |
| CNTYDD | DEVELOPMENTAL DISABILITIES | N/A | N/A | N/A | N/A | | |
| CNTYVET | VETERANS RELIEF | N/A | N/A | N/A | N/A | | |
| MENTAL | MENTAL HEALTH | N/A | N/A | N/A | N/A | | |
| ROADS | COUNTY ROADS | N/A | N/A | N/A | N/A | | |
| ROADSCU | COUNTY ROADS TO CUR EXP | N/A | N/A | N/A | N/A | | |
| HOSP2CASH | HOSP DIST #2 GENERAL | N/A | N/A | N/A | N/A | | |
| SCH49CP | SCHOOL DIST #49 CAP PROJ | N/A | N/A | N/A | N/A | | |
| SCH49MO | SCHOOL DIST #49 EP & O | N/A | N/A | N/A | N/A | | |
| CONSERVE | CONSERVATION FUTURES | N/A | N/A | N/A | N/A | | |
| EMS1 | FIRE DIST #1 EMS | N/A | N/A | N/A | N/A | | |
| FD1 | FIRE DIST #1 GENERAL | N/A | N/A | N/A | N/A | | |
| LIB1 | LIBRARY DIST #1 GENERAL | N/A | N/A | N/A | N/A | | |
| PORTPT | PORT OF PT GENERAL | N/A | N/A | N/A | N/A | | |
| PORTPTIDD | PORT OF PT IDD 2019 | N/A | N/A | N/A | N/A | | |
| PUD1 | PUD #1 GENERAL | N/A | N/A | N/A | N/A | | |
| STATE | STATE SCHOOL PART 1 | N/A | N/A | N/A | N/A | | |
| STATE2 | STATE SCHOOL PART 2 | N/A | N/A | N/A | N/A | | |
| | Total Tax Rate: | N/A | | | | | |
| | | | | Taxes w/Current Exemptions: | N/A | | |
| | | | | Taxes w/o Exemptions: | N/A | | |
Improvement / Building
| Improvement #1: | Residential Bldg | State Code: | 11 | 1230.0 sqft | Value: | $378,000 |
| Bathrooms (#): | 3 (FULL) | Bedrooms (#): | 3 | | Exterior Wall: | PL/T1 | Fireplace: | DBL 2-GOOD | | Fireplace: | WD ST-GOOD | Floor Construction: | FRAME | | Foundation: | CONPR | Heating/Cooling: | HPUMP | | Inside Verify: | YES-FIX | Roof Cover: | COMP |
|
| | Type | Description | Class CD | Sub Class CD | Year Built | Area |
| | MA | Main Area | 4 | 1S | 1984 | 1230.0 |
| | PATIO | House Patio | 4 | * | 1984 | 956.0 |
| | HCPOR | House Concrete Porch | 4 | * | 1984 | 327.0 |
| | HDECK | House Deck | 4 | * | 1984 | 1029.0 |
| | GATT | House Attached Garage | 3 | 1S | 1984 | 400.0 |
| | BSMTF | House basement finished | 3 | * | 1984 | 870.0 |
| | CONCD | Concrete Drive | 4 | * | 1984 | 980.0 |
Sketch
Property Image
Land
| 1 | 3330-1185L | No View Lots | 0.0000 | 0.00 | 0.00 | 0.00 | 1.00 | $104,500 | $0 |
Roll Value History
| 2025 | N/A | N/A | N/A | N/A | N/A |
| 2024 | $378,000 | $104,500 | $0 | $482,500 | $482,500 |
| 2023 | $361,566 | $90,000 | $0 | $451,566 | $451,566 |
| 2022 | $345,131 | $85,000 | $0 | $430,131 | $430,131 |
| 2021 | $267,688 | $56,250 | $0 | $323,938 | $323,938 |
Deed and Sales History
| 1 | 07/12/2023 | SWD | Statutory Warranty Deed | KAREN & ANDREW MCDONALD | THOMAS S & CAROL S REID | | | $610,000.00 | 141258 | |
| 2 | 04/05/2022 | SWD | Statutory Warranty Deed | JON W BEZONA TRUSTEE | KAREN & ANDREW MCDONALD | | | $495,000.00 | 138858 | |
| 3 | 01/20/2012 | QCD | Quit Claim Deed | BEZONA, JON W/CAROL C | BENZONA, JON W/CAROL C TRUSTEE | 0 | 0 | $0.00 | 117043 | 0 |
| 4 | 09/23/2005 | SWD | Statutory Warranty Deed | GRAHAM, GERI L | BEZONA, JON W & CAROL | 0 | 0 | $274,500.00 | 104981 | 0 |
| 5 | 03/09/2000 | SWD | Statutory Warranty Deed | ZOROTOVICH, PAUL J | GRAHAM, GERI L | 0 | 0 | $175,000.00 | 89117 | 0 |
| 6 | 10/19/1994 | QCD | Quit Claim Deed | THOMAS, MARJORIE W | ZOROTOVICH, PAUL J | 0 | 0 | $79,000.00 | 75413 | 0 |
| 7 | 06/29/1993 | SWD | Statutory Warranty Deed | CASTON, LORAN M | THOMAS,M J/ZOROTOVICH PAUL J | 0 | 0 | $150,000.00 | 71570 | 0 |
Payout Agreement
| No payout information available.. |