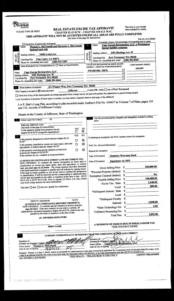
Property
Account |
| Property ID: | 40000 | Abbreviated Legal Description: | PORT LUDLOW NO 1 AREA 2 LOT 51 |
| Parcel # / Geo ID: | 990400251 | Agent Code: | |
| Type: | Real | | |
| Tax Area: | 0213 - 1-49F1E1H2L1 | Land Use Code | 11 |
| Open Space: | N | DFL | N |
| Historic Property: | N | Remodel Property: | N |
| Multi-Family Redevelopment: | N | | |
| Township: | 28N | Section: | 9 |
| Range: | 1E |
Location |
| Address: | 601 MONTGOMERY LN PORT LUDLOW, WA 98365 | Mapsco: | 099/022 |
| Neighborhood: | PORT LUDLOW #1 AREA 2; P L #2 AREA 1; P L #5 (ALL) | Map ID: | |
| Neighborhood CD: | 3331 |
Owner |
| Name: | PAULINE O PLACZKOWSKI | Owner ID: | 110841 |
| Mailing Address: | 601 MONTGOMERY LN PORT LUDLOW, WA 98365-9618 | % Ownership: | 100.0000000000% |
| | | Exemptions: | |
Pay Tax Due
There is currently No Amount Due on this property.
Taxes and Assessment Details
Property Tax Information as of
10/24/2025
Click on "Statement Details" to expand or collapse a tax statement.
* Please enter a valid date ** Please enter a valid date *
Statement Details |
| | TOTAL: | $0.00 | $0.00 | $0.00 | $0.00 | $0.00 | $0.00 |
|
| | $0.00 | $0.00 | $0.00 | $0.00 | $0.00 | $0.00 |
Values
| (+) Improvement Homesite Value: | + | $0 | |
| (+) Improvement Non-Homesite Value: | + | $437,454 | |
| (+) Land Homesite Value: | + | $0 | |
| (+) Land Non-Homesite Value: | + | $126,500 | |
| (+) Curr Use (HS): | + | $0 | $0 |
| (+) Curr Use (NHS): | + | $0 | $0 |
| | | -------------------------- | |
| (=) Market Value: | = | $563,954 | |
| (–) Productivity Loss: | – | $0 | |
| | | -------------------------- | |
| (=) Subtotal: | = | $563,954 | |
| (+) Senior Appraised Value: | + | $0 | |
| (+) Non-Senior Appraised Value: | + | $563,954 | |
| | | -------------------------- | |
| (=) Total Appraised Value: | = | $563,954 | |
| (–) Senior Exemption Loss: | – | $0 | |
| (–) Exemption Loss: | – | $0 | |
| | | -------------------------- | |
| (=) Taxable Value: | = | $563,954 | |
Taxing Jurisdiction
| Owner: | PAULINE O PLACZKOWSKI | | |
| % Ownership: | 100.0000000000% | | |
| Total Value: | N/A | | |
| Tax Area: | 0213 - 1-49F1E1H2L1 |
| CE | COUNTY CURRENT EXPENSE | N/A | N/A | N/A | N/A | | |
| CNTYDD | DEVELOPMENTAL DISABILITIES | N/A | N/A | N/A | N/A | | |
| CNTYVET | VETERANS RELIEF | N/A | N/A | N/A | N/A | | |
| MENTAL | MENTAL HEALTH | N/A | N/A | N/A | N/A | | |
| ROADS | COUNTY ROADS | N/A | N/A | N/A | N/A | | |
| ROADSCU | COUNTY ROADS TO CUR EXP | N/A | N/A | N/A | N/A | | |
| HOSP2CASH | HOSP DIST #2 GENERAL | N/A | N/A | N/A | N/A | | |
| SCH49CP | SCHOOL DIST #49 CAP PROJ | N/A | N/A | N/A | N/A | | |
| SCH49MO | SCHOOL DIST #49 EP & O | N/A | N/A | N/A | N/A | | |
| CONSERVE | CONSERVATION FUTURES | N/A | N/A | N/A | N/A | | |
| EMS1 | FIRE DIST #1 EMS | N/A | N/A | N/A | N/A | | |
| FD1 | FIRE DIST #1 GENERAL | N/A | N/A | N/A | N/A | | |
| LIB1 | LIBRARY DIST #1 GENERAL | N/A | N/A | N/A | N/A | | |
| PORTPT | PORT OF PT GENERAL | N/A | N/A | N/A | N/A | | |
| PORTPTIDD | PORT OF PT IDD 2019 | N/A | N/A | N/A | N/A | | |
| PUD1 | PUD #1 GENERAL | N/A | N/A | N/A | N/A | | |
| STATE | STATE SCHOOL PART 1 | N/A | N/A | N/A | N/A | | |
| STATE2 | STATE SCHOOL PART 2 | N/A | N/A | N/A | N/A | | |
| | Total Tax Rate: | N/A | | | | | |
| | | | | Taxes w/Current Exemptions: | N/A | | |
| | | | | Taxes w/o Exemptions: | N/A | | |
Improvement / Building
| Improvement #1: | Residential Bldg | State Code: | 11 | 2396.0 sqft | Value: | $437,454 |
| Bathrooms (#): | 2 (FULL) | Bedrooms (#): | 3 | | Exterior Wall: | SI/ST | Fireplace: | SIN 1-AVG | | Fireplace: | WD ST-AVG | Floor Construction: | FRAME | | Foundation: | CONPR | Heating/Cooling: | ELBB | | Inside Verify: | YES-FIX | Roof Cover: | COMP |
|
| | Type | Description | Class CD | Sub Class CD | Year Built | Area |
| | MA | Main Area | 4+ | 1S | 1989 | 2396.0 |
| | HDECK | House Deck | 4 | * | 1989 | 472.0 |
| | GATT | House Attached Garage | 4 | 1S | 1989 | 750.0 |
| | CONCD | Concrete Drive | 4 | * | 1989 | 1015.0 |
Sketch
Property Image
Land
| 1 | 3331-1167L | Filtered or Potential Water View Lots | 0.0000 | 0.00 | 0.00 | 0.00 | 1.00 | $126,500 | $0 |
Roll Value History
| 2025 | N/A | N/A | N/A | N/A | N/A |
| 2024 | $456,474 | $126,500 | $0 | $582,974 | $582,974 |
| 2023 | $437,454 | $110,000 | $0 | $547,454 | $547,454 |
| 2022 | $418,435 | $105,000 | $0 | $523,435 | $523,435 |
| 2021 | $355,369 | $84,500 | $0 | $439,869 | $439,869 |
Deed and Sales History
| 1 | 05/17/2024 | QCD | Quit Claim Deed | LEON D PLACZKOWSKI | PAULINE O PLACZKOWSKI | | | | 142611 | |
| 2 | 09/16/2011 | SWD | Statutory Warranty Deed | PLATT, MICHAEL/SUE | PLACKOWSKI, LEON/PAULINE | 0 | 0 | $280,000.00 | 116573 | 0 |
| 3 | 04/20/2006 | SWD | Statutory Warranty Deed | MULLEN, KATHLEEN M | PLATT, MICHAEL L/SUE L | | | $400,000.00 | 106456 | 0 |
| 4 | 04/19/2001 | SWD | Statutory Warranty Deed | HILLMAN, AUGUST C/MARGUER | MULLEN, ANTHONY J/KATHLEEN M | 0 | 0 | $265,000.00 | 91995 | 0 |
| 5 | 05/10/1999 | QCD | Quit Claim Deed | HILLMAN, AUGUST C/MARGUER | HILLMAN TRUST | 0 | 0 | $0.00 | 86921 | 0 |
| 6 | 09/05/1995 | SWD | Statutory Warranty Deed | BOWERS, M.J. & PATSY L | HILLMAN, AUGUST C & MARGUERITE | 0 | 0 | $230,000.00 | 77751 | 0 |
Payout Agreement
| No payout information available.. |