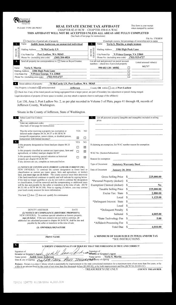
Property
Account |
| Property ID: | 40016 | Abbreviated Legal Description: | PORT LUDLOW NO 1 AREA 3, LOT 3 |
| Parcel # / Geo ID: | 990400303 | Agent Code: | |
| Type: | Real | | |
| Tax Area: | 0213 - 1-49F1E1H2L1 | Land Use Code | 11 |
| Open Space: | N | DFL | N |
| Historic Property: | N | Remodel Property: | N |
| Multi-Family Redevelopment: | N | | |
| Township: | 28N | Section: | 8 |
| Range: | 1E |
Location |
| Address: | 41 AMES LN PORT LUDLOW, WA 98365 | Mapsco: | 100/003 |
| Neighborhood: | PORT LUDLOW #1 AREAS 3 & 4 | Map ID: | |
| Neighborhood CD: | 3332 |
Owner |
| Name: | BRIANNA E CARTER | Owner ID: | 102074 |
| Mailing Address: | 41 AMES LN PORT LUDLOW, WA 98365-9626 | % Ownership: | 100.0000000000% |
| | | Exemptions: | |
Pay Tax Due
There is currently No Amount Due on this property.
Taxes and Assessment Details
Property Tax Information as of
10/24/2025
Click on "Statement Details" to expand or collapse a tax statement.
* Please enter a valid date ** Please enter a valid date *
Statement Details |
| | TOTAL: | $0.00 | $0.00 | $0.00 | $0.00 | $0.00 | $0.00 |
|
| | $0.00 | $0.00 | $0.00 | $0.00 | $0.00 | $0.00 |
Values
| (+) Improvement Homesite Value: | + | $0 | |
| (+) Improvement Non-Homesite Value: | + | $327,590 | |
| (+) Land Homesite Value: | + | $0 | |
| (+) Land Non-Homesite Value: | + | $88,000 | |
| (+) Curr Use (HS): | + | $0 | $0 |
| (+) Curr Use (NHS): | + | $0 | $0 |
| | | -------------------------- | |
| (=) Market Value: | = | $415,590 | |
| (–) Productivity Loss: | – | $0 | |
| | | -------------------------- | |
| (=) Subtotal: | = | $415,590 | |
| (+) Senior Appraised Value: | + | $0 | |
| (+) Non-Senior Appraised Value: | + | $415,590 | |
| | | -------------------------- | |
| (=) Total Appraised Value: | = | $415,590 | |
| (–) Senior Exemption Loss: | – | $0 | |
| (–) Exemption Loss: | – | $0 | |
| | | -------------------------- | |
| (=) Taxable Value: | = | $415,590 | |
Taxing Jurisdiction
| Owner: | BRIANNA E CARTER | | |
| % Ownership: | 100.0000000000% | | |
| Total Value: | N/A | | |
| Tax Area: | 0213 - 1-49F1E1H2L1 |
| CE | COUNTY CURRENT EXPENSE | N/A | N/A | N/A | N/A | | |
| CNTYDD | DEVELOPMENTAL DISABILITIES | N/A | N/A | N/A | N/A | | |
| CNTYVET | VETERANS RELIEF | N/A | N/A | N/A | N/A | | |
| MENTAL | MENTAL HEALTH | N/A | N/A | N/A | N/A | | |
| ROADS | COUNTY ROADS | N/A | N/A | N/A | N/A | | |
| ROADSCU | COUNTY ROADS TO CUR EXP | N/A | N/A | N/A | N/A | | |
| HOSP2CASH | HOSP DIST #2 GENERAL | N/A | N/A | N/A | N/A | | |
| SCH49CP | SCHOOL DIST #49 CAP PROJ | N/A | N/A | N/A | N/A | | |
| SCH49MO | SCHOOL DIST #49 EP & O | N/A | N/A | N/A | N/A | | |
| CONSERVE | CONSERVATION FUTURES | N/A | N/A | N/A | N/A | | |
| EMS1 | FIRE DIST #1 EMS | N/A | N/A | N/A | N/A | | |
| FD1 | FIRE DIST #1 GENERAL | N/A | N/A | N/A | N/A | | |
| LIB1 | LIBRARY DIST #1 GENERAL | N/A | N/A | N/A | N/A | | |
| PORTPT | PORT OF PT GENERAL | N/A | N/A | N/A | N/A | | |
| PORTPTIDD | PORT OF PT IDD 2019 | N/A | N/A | N/A | N/A | | |
| PUD1 | PUD #1 GENERAL | N/A | N/A | N/A | N/A | | |
| STATE | STATE SCHOOL PART 1 | N/A | N/A | N/A | N/A | | |
| STATE2 | STATE SCHOOL PART 2 | N/A | N/A | N/A | N/A | | |
| | Total Tax Rate: | N/A | | | | | |
| | | | | Taxes w/Current Exemptions: | N/A | | |
| | | | | Taxes w/o Exemptions: | N/A | | |
Improvement / Building
| Improvement #1: | Residential Bldg | State Code: | 11 | 1288.0 sqft | Value: | $327,590 |
| Bathrooms (#): | 2 (FULL) | Bedrooms (#): | 2 | | Exterior Wall: | SI/ST | Fireplace: | WD ST-GOOD | | Floor Construction: | FRAME | Foundation: | CONPR | | Heating/Cooling: | ELBB | Inside Verify: | YES-FIX | | Roof Cover: | COMP |   |   |
|
| | Type | Description | Class CD | Sub Class CD | Year Built | Area |
| | MA | Main Area | 4+ | 2S | 1990 | 988.0 |
| | MA2 | Second Floor Main Area | 4+ | 2S | 1990 | 300.0 |
| | HBAL | House Balcony | 4 | * | 1990 | 80.0 |
| | HDECK | House Deck | 4 | * | 1990 | 584.0 |
| | OTHER | Other | * | * | 1990 | 0.0 |
| | HRPO | House Roof Patio | 4 | * | 1990 | 192.0 |
| | GARAG | Garage (Table Not Dep) | 4 | * | 1990 | 792.0 |
| | OTHER | Other | 3 | * | 1990 | 0.0 |
Sketch
Property Image
Land
| 1 | 3332-1187L | No View Lots (PL #1 Area 3) | 0.0000 | 0.00 | 0.00 | 0.00 | 1.00 | $88,000 | $0 |
Roll Value History
| 2025 | N/A | N/A | N/A | N/A | N/A |
| 2024 | $327,590 | $88,000 | $0 | $415,590 | $415,590 |
| 2023 | $313,941 | $75,000 | $0 | $388,941 | $388,941 |
| 2022 | $300,291 | $70,000 | $0 | $370,291 | $370,291 |
| 2021 | $271,698 | $42,900 | $0 | $314,598 | $314,598 |
Deed and Sales History
| 1 | 12/04/2019 | SWD | Statutory Warranty Deed | ELIZABETH & RANDALL OLSON | BRIANNA E CARTER | | | $350,000.00 | 133624 | |
| 2 | 08/11/2016 | SWD | Statutory Warranty Deed | JASON WHITE | ELIZABETH & RANDALL OLSON | | | $260,000.00 | 126055 | |
| 3 | 11/18/2003 | SWD | Statutory Warranty Deed | THOMPSON, DOUGLAS S | WHITE, JASON | 0 | 0 | $136,500.00 | 98886 | 0 |
| 4 | 04/24/1999 | QCD | Quit Claim Deed | BELL, GERALDINE H | THOMPSON, DOUGLAS S | 0 | 0 | $0.00 | 86775 | 0 |
Payout Agreement
| No payout information available.. |