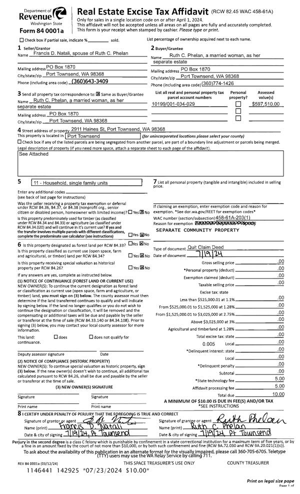
Property
Account |
| Property ID: | 40076 | Abbreviated Legal Description: | PORT LUDLOW NO. 1 AREA 4 LOT 7 |
| Parcel # / Geo ID: | 990400407 | Agent Code: | |
| Type: | Real | | |
| Tax Area: | 0213 - 1-49F1E1H2L1 | Land Use Code | 11 |
| Open Space: | N | DFL | N |
| Historic Property: | N | Remodel Property: | N |
| Multi-Family Redevelopment: | N | | |
| Township: | 28N | Section: | 9 |
| Range: | 1E |
Location |
| Address: | 35 CRESSEY LN PORT LUDLOW, WA 98365 | Mapsco: | 101/007 |
| Neighborhood: | PORT LUDLOW #1 AREAS 3 & 4 | Map ID: | |
| Neighborhood CD: | 3332 |
Owner |
| Name: | PAULA K BERMAN | Owner ID: | 111356 |
| Mailing Address: | STEPHEN A MESSERER 121 WINDROSE DR PORT LUDLOW, WA 98365-9552 | % Ownership: | 100.0000000000% |
| | | Exemptions: | |
Pay Tax Due
There is currently No Amount Due on this property.
Taxes and Assessment Details
Property Tax Information as of
10/24/2025
Click on "Statement Details" to expand or collapse a tax statement.
* Please enter a valid date ** Please enter a valid date *
Statement Details |
| | TOTAL: | $0.00 | $0.00 | $0.00 | $0.00 | $0.00 | $0.00 |
|
| | $0.00 | $0.00 | $0.00 | $0.00 | $0.00 | $0.00 |
Values
| (+) Improvement Homesite Value: | + | $0 | |
| (+) Improvement Non-Homesite Value: | + | $404,797 | |
| (+) Land Homesite Value: | + | $0 | |
| (+) Land Non-Homesite Value: | + | $104,500 | |
| (+) Curr Use (HS): | + | $0 | $0 |
| (+) Curr Use (NHS): | + | $0 | $0 |
| | | -------------------------- | |
| (=) Market Value: | = | $509,297 | |
| (–) Productivity Loss: | – | $0 | |
| | | -------------------------- | |
| (=) Subtotal: | = | $509,297 | |
| (+) Senior Appraised Value: | + | $0 | |
| (+) Non-Senior Appraised Value: | + | $509,297 | |
| | | -------------------------- | |
| (=) Total Appraised Value: | = | $509,297 | |
| (–) Senior Exemption Loss: | – | $0 | |
| (–) Exemption Loss: | – | $0 | |
| | | -------------------------- | |
| (=) Taxable Value: | = | $509,297 | |
Taxing Jurisdiction
| Owner: | PAULA K BERMAN | | |
| % Ownership: | 100.0000000000% | | |
| Total Value: | N/A | | |
| Tax Area: | 0213 - 1-49F1E1H2L1 |
| CE | COUNTY CURRENT EXPENSE | N/A | N/A | N/A | N/A | | |
| CNTYDD | DEVELOPMENTAL DISABILITIES | N/A | N/A | N/A | N/A | | |
| CNTYVET | VETERANS RELIEF | N/A | N/A | N/A | N/A | | |
| MENTAL | MENTAL HEALTH | N/A | N/A | N/A | N/A | | |
| ROADS | COUNTY ROADS | N/A | N/A | N/A | N/A | | |
| ROADSCU | COUNTY ROADS TO CUR EXP | N/A | N/A | N/A | N/A | | |
| HOSP2CASH | HOSP DIST #2 GENERAL | N/A | N/A | N/A | N/A | | |
| SCH49CP | SCHOOL DIST #49 CAP PROJ | N/A | N/A | N/A | N/A | | |
| SCH49MO | SCHOOL DIST #49 EP & O | N/A | N/A | N/A | N/A | | |
| CONSERVE | CONSERVATION FUTURES | N/A | N/A | N/A | N/A | | |
| EMS1 | FIRE DIST #1 EMS | N/A | N/A | N/A | N/A | | |
| FD1 | FIRE DIST #1 GENERAL | N/A | N/A | N/A | N/A | | |
| LIB1 | LIBRARY DIST #1 GENERAL | N/A | N/A | N/A | N/A | | |
| PORTPT | PORT OF PT GENERAL | N/A | N/A | N/A | N/A | | |
| PORTPTIDD | PORT OF PT IDD 2019 | N/A | N/A | N/A | N/A | | |
| PUD1 | PUD #1 GENERAL | N/A | N/A | N/A | N/A | | |
| STATE | STATE SCHOOL PART 1 | N/A | N/A | N/A | N/A | | |
| STATE2 | STATE SCHOOL PART 2 | N/A | N/A | N/A | N/A | | |
| | Total Tax Rate: | N/A | | | | | |
| | | | | Taxes w/Current Exemptions: | N/A | | |
| | | | | Taxes w/o Exemptions: | N/A | | |
Improvement / Building
| Improvement #1: | Residential Bldg | State Code: | 11 | 1387.0 sqft | Value: | $404,797 |
| Bathrooms (#): | 3 (FULL) | Bedrooms (#): | 3 | | Exterior Wall: | SI/ST | Fireplace: | SIN 1-AVG | | Floor Construction: | FRAME | Foundation: | CONPR | | Heating/Cooling: | F/A | Roof Cover: | TILE |
|
| | Type | Description | Class CD | Sub Class CD | Year Built | Area |
| | MA | Main Area | 4 | 1S | 1995 | 1387.0 |
| | HCPOR | House Concrete Porch | 3 | * | 1995 | 13.0 |
| | HDECK | House Deck | 3 | * | 1995 | 280.0 |
| | GATT | House Attached Garage | 4 | 1S | 1995 | 528.0 |
| | BSMTF | House basement finished | 3 | * | 1995 | 804.5 |
| | CONCD | Concrete Drive | 3 | * | 1995 | 540.0 |
| | BSMTU | House basement unfinished | 3 | * | 1995 | 582.5 |
| | ASPHD | Asphalt Drive | 3 | * | 1995 | 500.0 |
Sketch
Property Image
Land
| 1 | 3332-1185L | No View Lots (PL #1 Area 4) | 0.0000 | 0.00 | 0.00 | 0.00 | 1.00 | $104,500 | $0 |
Roll Value History
| 2025 | N/A | N/A | N/A | N/A | N/A |
| 2024 | $404,797 | $104,500 | $0 | $509,297 | $509,297 |
| 2023 | $387,931 | $90,000 | $0 | $477,931 | $477,931 |
| 2022 | $371,064 | $85,000 | $0 | $456,064 | $456,064 |
| 2021 | $313,207 | $58,500 | $0 | $371,707 | $371,707 |
Deed and Sales History
| 1 | 08/21/2024 | SWD | Statutory Warranty Deed | ELIZABETH & RANDALL OLSON | PAULA K BERMAN | | | $650,000.00 | 143124 | |
| 2 | 05/09/2022 | GRTD | Grant Deed | RANDALL & ELIZABETH OLSON | ELIZABETH & RANDALL OLSON | | | | 139165 | |
| 3 | 12/06/2019 | SWD | Statutory Warranty Deed | CHARLES R STOWELL | RANDALL & ELIZABETH OLSON | | | $360,000.00 | 133692 | |
| 4 | 02/27/2004 | QCD | Quit Claim Deed | STOWELL, CHRISTINA E | STOWELL, CHARLES R | 0 | 0 | $0.00 | 100012 | 0 |
| 5 | 09/24/1998 | SWD | Statutory Warranty Deed | FALKNER, GORDON R | STOWELL, CHARLES R/CHRISTINA E | 0 | 0 | $150,000.00 | 85377 | 0 |
| 6 | 09/12/1994 | SWD | Statutory Warranty Deed | MERRIDITH, MARGARET E | FALKNER, GORDON R | 0 | 0 | $18,000.00 | 75120 | 0 |
Payout Agreement
| No payout information available.. |