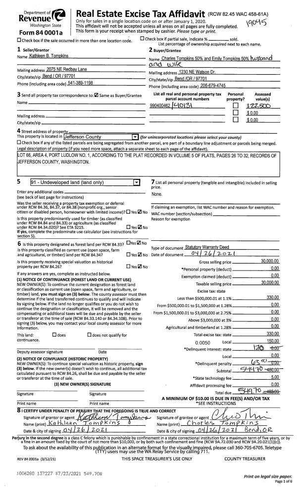
Property
Account |
| Property ID: | 40115 | Abbreviated Legal Description: | PORT LUDLOW NO. 1 AREA 4, LOT 49 |
| Parcel # / Geo ID: | 990400446 | Agent Code: | |
| Type: | Real | | |
| Tax Area: | 0213 - 1-49F1E1H2L1 | Land Use Code | 11 |
| Open Space: | N | DFL | N |
| Historic Property: | N | Remodel Property: | N |
| Multi-Family Redevelopment: | N | | |
| Township: | 28N | Section: | 8 |
| Range: | 1E |
Location |
| Address: | 370 RAINIER LN PORT LUDLOW, WA 98365 | Mapsco: | 101/049 |
| Neighborhood: | PORT LUDLOW #1 AREAS 3 & 4 | Map ID: | |
| Neighborhood CD: | 3332 |
Owner |
| Name: | RAYMOND & ROSEMARIE ROTBERG | Owner ID: | 99811 |
| Mailing Address: | 370 RAINIER LN PORT LUDLOW, WA 98365-9689 | % Ownership: | 100.0000000000% |
| | | Exemptions: | SNR/DSBL |
Pay Tax Due
There is currently No Amount Due on this property.
Taxes and Assessment Details
Property Tax Information as of
10/24/2025
Click on "Statement Details" to expand or collapse a tax statement.
* Please enter a valid date ** Please enter a valid date *
Statement Details |
| | TOTAL: | $0.00 | $0.00 | $0.00 | $0.00 | $0.00 | $0.00 |
|
| | $0.00 | $0.00 | $0.00 | $0.00 | $0.00 | $0.00 |
Values
| (+) Improvement Homesite Value: | + | $383,191 | |
| (+) Improvement Non-Homesite Value: | + | $0 | |
| (+) Land Homesite Value: | + | $104,500 | |
| (+) Land Non-Homesite Value: | + | $0 | |
| (+) Curr Use (HS): | + | $0 | $0 |
| (+) Curr Use (NHS): | + | $0 | $0 |
| | | -------------------------- | |
| (=) Market Value: | = | $487,691 | |
| (–) Productivity Loss: | – | $0 | |
| | | -------------------------- | |
| (=) Subtotal: | = | $487,691 | |
| (+) Senior Appraised Value: | + | $283,860 | |
| (+) Non-Senior Appraised Value: | + | $0 | |
| | | -------------------------- | |
| (=) Total Appraised Value: | = | $283,860 | |
| (–) Senior Exemption Loss: | – | $70,000 | |
| (–) Exemption Loss: | – | $0 | |
| | | -------------------------- | |
| (=) Taxable Value: | = | $213,860 | |
Taxing Jurisdiction
| Owner: | RAYMOND & ROSEMARIE ROTBERG | | |
| % Ownership: | 100.0000000000% | | |
| Total Value: | N/A | | |
| Tax Area: | 0213 - 1-49F1E1H2L1 |
| CE | COUNTY CURRENT EXPENSE | N/A | N/A | N/A | N/A | | |
| CNTYDD | DEVELOPMENTAL DISABILITIES | N/A | N/A | N/A | N/A | | |
| CNTYVET | VETERANS RELIEF | N/A | N/A | N/A | N/A | | |
| MENTAL | MENTAL HEALTH | N/A | N/A | N/A | N/A | | |
| ROADS | COUNTY ROADS | N/A | N/A | N/A | N/A | | |
| ROADSCU | COUNTY ROADS TO CUR EXP | N/A | N/A | N/A | N/A | | |
| HOSP2CASH | HOSP DIST #2 GENERAL | N/A | N/A | N/A | N/A | | |
| SCH49CP | SCHOOL DIST #49 CAP PROJ | N/A | N/A | N/A | N/A | | |
| SCH49MO | SCHOOL DIST #49 EP & O | N/A | N/A | N/A | N/A | | |
| CONSERVE | CONSERVATION FUTURES | N/A | N/A | N/A | N/A | | |
| EMS1 | FIRE DIST #1 EMS | N/A | N/A | N/A | N/A | | |
| FD1 | FIRE DIST #1 GENERAL | N/A | N/A | N/A | N/A | | |
| LIB1 | LIBRARY DIST #1 GENERAL | N/A | N/A | N/A | N/A | | |
| PORTPT | PORT OF PT GENERAL | N/A | N/A | N/A | N/A | | |
| PORTPTIDD | PORT OF PT IDD 2019 | N/A | N/A | N/A | N/A | | |
| PUD1 | PUD #1 GENERAL | N/A | N/A | N/A | N/A | | |
| STATE | STATE SCHOOL PART 1 | N/A | N/A | N/A | N/A | | |
| STATE2 | STATE SCHOOL PART 2 | N/A | N/A | N/A | N/A | | |
| | Total Tax Rate: | N/A | | | | | |
| | | | | Taxes w/Current Exemptions: | N/A | | |
| | | | | Taxes w/o Exemptions: | N/A | | |
Improvement / Building
| Improvement #1: | Residential Bldg | State Code: | 11 | 1488.0 sqft | Value: | $383,191 |
| Bathrooms (#): | 2 (FULL) | Bedrooms (#): | 3 | | Exterior Wall: | SI/ST | Floor Construction: | FRAME | | Foundation: | CONPR | Heating/Cooling: | HPUMP | | Roof Cover: | COMP |   |   |
|
| | Type | Description | Class CD | Sub Class CD | Year Built | Area |
| | MA | Main Area | 4- | 1S | 2018 | 1488.0 |
| | GATT | House Attached Garage | 4 | 1S | 2018 | 410.0 |
| | PATIO | House Patio | 4 | * | 2018 | 54.0 |
| | HCPOR | House Concrete Porch | 4 | * | 2018 | 244.0 |
Sketch
Property Image
Land
| 1 | 3332-1185L | No View Lots (PL #1 Area 4) | 0.0000 | 0.00 | 0.00 | 0.00 | 1.00 | $104,500 | $0 |
Roll Value History
| 2025 | N/A | N/A | N/A | N/A | N/A |
| 2024 | $383,191 | $104,500 | $0 | $487,691 | $213,860 |
| 2023 | $367,225 | $90,000 | $0 | $457,225 | $213,860 |
| 2022 | $351,259 | $85,000 | $0 | $436,259 | $213,860 |
| 2021 | $292,369 | $58,500 | $0 | $350,869 | $213,860 |
Deed and Sales History
| 1 | 08/16/2018 | SWD | Statutory Warranty Deed | ROTBERG IRREVOCABLE LIVING TRUST | RAYMOND & ROSEMARIE ROTBERG | | | | 130871 | |
| 2 | 05/19/2017 | SWD | Statutory Warranty Deed | MARC MAUNEY TRUSTEE | ROTBERG IRREVOCABLE LIVING TRUST | | | $40,000.00 | 127754 | |
| 3 | 09/04/2003 | QCD | Quit Claim Deed | MAUNEY, MARC/ROGERSON, LY | MAUNEY,MARC&ROGERSON,LYNNE/TR | 0 | 0 | $0.00 | 98207 | 0 |
| 4 | 08/13/2002 | SWD | Statutory Warranty Deed | NEIL/LITA BERGSTROM | MARC MAUNEY/LYNNE ROGERSON | 0 | 0 | $9,850.00 | 95313 | 0 |
Payout Agreement
| No payout information available.. |