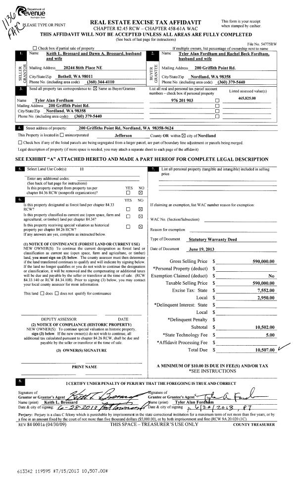
Property
Account |
| Property ID: | 40141 | Abbreviated Legal Description: | PORT LUDLOW NO. 1 AREA 4, LOT 76 |
| Parcel # / Geo ID: | 990400472 | Agent Code: | |
| Type: | Real | | |
| Tax Area: | 0213 - 1-49F1E1H2L1 | Land Use Code | 11 |
| Open Space: | N | DFL | N |
| Historic Property: | N | Remodel Property: | N |
| Multi-Family Redevelopment: | N | | |
| Township: | 28N | Section: | 8 |
| Range: | 1E |
Location |
| Address: | 323 MACHIAS LOOP RD PORT LUDLOW, WA 98365 | Mapsco: | 102/027 |
| Neighborhood: | PORT LUDLOW #1 AREAS 3 & 4 | Map ID: | |
| Neighborhood CD: | 3332 |
Owner |
| Name: | DAVID & ANN BERNARD FAMILY TRUST | Owner ID: | 105748 |
| Mailing Address: | DAVID BERNARD TRUSTEE ANN BERNARD TRUSTEE 150 RESOLUTE LN PORT LUDLOW, WA 98365-9617 | % Ownership: | 100.0000000000% |
| | | Exemptions: | |
Pay Tax Due
There is currently No Amount Due on this property.
Taxes and Assessment Details
Property Tax Information as of
10/24/2025
Click on "Statement Details" to expand or collapse a tax statement.
* Please enter a valid date ** Please enter a valid date *
Statement Details |
| | TOTAL: | $0.00 | $0.00 | $0.00 | $0.00 | $0.00 | $0.00 |
|
| | $0.00 | $0.00 | $0.00 | $0.00 | $0.00 | $0.00 |
Values
| (+) Improvement Homesite Value: | + | $0 | |
| (+) Improvement Non-Homesite Value: | + | $497,248 | |
| (+) Land Homesite Value: | + | $0 | |
| (+) Land Non-Homesite Value: | + | $104,500 | |
| (+) Curr Use (HS): | + | $0 | $0 |
| (+) Curr Use (NHS): | + | $0 | $0 |
| | | -------------------------- | |
| (=) Market Value: | = | $601,748 | |
| (–) Productivity Loss: | – | $0 | |
| | | -------------------------- | |
| (=) Subtotal: | = | $601,748 | |
| (+) Senior Appraised Value: | + | $0 | |
| (+) Non-Senior Appraised Value: | + | $601,748 | |
| | | -------------------------- | |
| (=) Total Appraised Value: | = | $601,748 | |
| (–) Senior Exemption Loss: | – | $0 | |
| (–) Exemption Loss: | – | $0 | |
| | | -------------------------- | |
| (=) Taxable Value: | = | $601,748 | |
Taxing Jurisdiction
| Owner: | DAVID & ANN BERNARD FAMILY TRUST | | |
| % Ownership: | 100.0000000000% | | |
| Total Value: | N/A | | |
| Tax Area: | 0213 - 1-49F1E1H2L1 |
| CE | COUNTY CURRENT EXPENSE | N/A | N/A | N/A | N/A | | |
| CNTYDD | DEVELOPMENTAL DISABILITIES | N/A | N/A | N/A | N/A | | |
| CNTYVET | VETERANS RELIEF | N/A | N/A | N/A | N/A | | |
| MENTAL | MENTAL HEALTH | N/A | N/A | N/A | N/A | | |
| ROADS | COUNTY ROADS | N/A | N/A | N/A | N/A | | |
| ROADSCU | COUNTY ROADS TO CUR EXP | N/A | N/A | N/A | N/A | | |
| HOSP2CASH | HOSP DIST #2 GENERAL | N/A | N/A | N/A | N/A | | |
| SCH49CP | SCHOOL DIST #49 CAP PROJ | N/A | N/A | N/A | N/A | | |
| SCH49MO | SCHOOL DIST #49 EP & O | N/A | N/A | N/A | N/A | | |
| CONSERVE | CONSERVATION FUTURES | N/A | N/A | N/A | N/A | | |
| EMS1 | FIRE DIST #1 EMS | N/A | N/A | N/A | N/A | | |
| FD1 | FIRE DIST #1 GENERAL | N/A | N/A | N/A | N/A | | |
| LIB1 | LIBRARY DIST #1 GENERAL | N/A | N/A | N/A | N/A | | |
| PORTPT | PORT OF PT GENERAL | N/A | N/A | N/A | N/A | | |
| PORTPTIDD | PORT OF PT IDD 2019 | N/A | N/A | N/A | N/A | | |
| PUD1 | PUD #1 GENERAL | N/A | N/A | N/A | N/A | | |
| STATE | STATE SCHOOL PART 1 | N/A | N/A | N/A | N/A | | |
| STATE2 | STATE SCHOOL PART 2 | N/A | N/A | N/A | N/A | | |
| | Total Tax Rate: | N/A | | | | | |
| | | | | Taxes w/Current Exemptions: | N/A | | |
| | | | | Taxes w/o Exemptions: | N/A | | |
Improvement / Building
| Improvement #1: | Residential Bldg | State Code: | 11 | 2098.0 sqft | Value: | $497,248 |
| Bathrooms (#): | 2 (FULL) | Bedrooms (#): | 3 | | Exterior Wall: | SI/ST | Floor Construction: | FRAME | | Foundation: | CONPR | Heating/Cooling: | F/A | | Roof Cover: | COMP |   |   |
|
| | Type | Description | Class CD | Sub Class CD | Year Built | Area |
| | MA | Main Area | 4 | 1S | 2006 | 2098.0 |
| | HWPOR | House Wood Porch | 3 | * | 2006 | 348.0 |
| | GATT | House Attached Garage | 3 | 1S | 2006 | 650.0 |
| | HDECK | House Deck | 3 | * | 2006 | 384.0 |
| | CONCD | Concrete Drive | 3 | * | 2006 | 1200.0 |
Sketch
Property Image
Land
| 1 | 3332-1185L | No View Lots (PL #1 Area 4) | 0.0000 | 0.00 | 0.00 | 0.00 | 1.00 | $104,500 | $0 |
Roll Value History
| 2025 | N/A | N/A | N/A | N/A | N/A |
| 2024 | $497,248 | $104,500 | $0 | $601,748 | $601,748 |
| 2023 | $476,529 | $90,000 | $0 | $566,529 | $566,529 |
| 2022 | $455,810 | $85,000 | $0 | $540,810 | $540,810 |
| 2021 | $391,895 | $58,500 | $0 | $450,395 | $450,395 |
Deed and Sales History
| 1 | 08/29/2025 | SWD | Statutory Warranty Deed | RONALD & MARY KLETTI FAMILY TRUST | DAVID & ANN BERNARD FAMILY TRUST | | | $665,000.00 | 144855 | |
| 2 | 09/22/2014 | QCD | Quit Claim Deed | RONALD R KLETTI | RONALD & MARY KLETTI FAMILY TRUST | | | | 121929 | |
| 3 | 10/15/2008 | SWD | Statutory Warranty Deed | LAWSON, CHAD W/NICOLE J | KLETTI, RON/MARY L | 0 | 0 | $342,500.00 | 112073 | 0 |
| 4 | 02/01/2005 | SWD | Statutory Warranty Deed | ROSS, NEIL ET AL | LAWSON, CHAD W & NICOLE J | 0 | 0 | $14,000.00 | 102693 | 0 |
Payout Agreement
| No payout information available.. |