Property
Account |
| Property ID: | 40256 | Abbreviated Legal Description: | PORT LUDLOW NO. 4 LOT 51 |
| Parcel # / Geo ID: | 990500051 | Agent Code: | |
| Type: | Real | | |
| Tax Area: | 0213 - 1-49F1E1H2L1 | Land Use Code | 11 |
| Open Space: | N | DFL | N |
| Historic Property: | N | Remodel Property: | N |
| Multi-Family Redevelopment: | N | | |
| Township: | 28N | Section: | 8 |
| Range: | 1E |
Location |
| Address: | 80 WARBLER LN PORT LUDLOW, WA 98365 | Mapsco: | 116/011 |
| Neighborhood: | PORT LUDLOW #3 & #4 (ALL) (SEWER AVAILABLE TO ALL LOTS) | Map ID: | |
| Neighborhood CD: | 3335 |
Owner |
| Name: | MICHELLE BUCHANAN | Owner ID: | 100888 |
| Mailing Address: | JESSIE SHORT PO BOX 557 CHIMACUM, WA 98325-0557 | % Ownership: | 100.0000000000% |
| | | Exemptions: | |
Pay Tax Due
There is currently No Amount Due on this property.
Taxes and Assessment Details
Property Tax Information as of
10/24/2025
Click on "Statement Details" to expand or collapse a tax statement.
* Please enter a valid date ** Please enter a valid date *
Statement Details |
| | TOTAL: | $0.00 | $0.00 | $0.00 | $0.00 | $0.00 | $0.00 |
|
| | $0.00 | $0.00 | $0.00 | $0.00 | $0.00 | $0.00 |
Values
| (+) Improvement Homesite Value: | + | $0 | |
| (+) Improvement Non-Homesite Value: | + | $443,707 | |
| (+) Land Homesite Value: | + | $0 | |
| (+) Land Non-Homesite Value: | + | $104,500 | |
| (+) Curr Use (HS): | + | $0 | $0 |
| (+) Curr Use (NHS): | + | $0 | $0 |
| | | -------------------------- | |
| (=) Market Value: | = | $548,207 | |
| (–) Productivity Loss: | – | $0 | |
| | | -------------------------- | |
| (=) Subtotal: | = | $548,207 | |
| (+) Senior Appraised Value: | + | $0 | |
| (+) Non-Senior Appraised Value: | + | $548,207 | |
| | | -------------------------- | |
| (=) Total Appraised Value: | = | $548,207 | |
| (–) Senior Exemption Loss: | – | $0 | |
| (–) Exemption Loss: | – | $0 | |
| | | -------------------------- | |
| (=) Taxable Value: | = | $548,207 | |
Taxing Jurisdiction
| Owner: | MICHELLE BUCHANAN | | |
| % Ownership: | 100.0000000000% | | |
| Total Value: | N/A | | |
| Tax Area: | 0213 - 1-49F1E1H2L1 |
| CE | COUNTY CURRENT EXPENSE | N/A | N/A | N/A | N/A | | |
| CNTYDD | DEVELOPMENTAL DISABILITIES | N/A | N/A | N/A | N/A | | |
| CNTYVET | VETERANS RELIEF | N/A | N/A | N/A | N/A | | |
| MENTAL | MENTAL HEALTH | N/A | N/A | N/A | N/A | | |
| ROADS | COUNTY ROADS | N/A | N/A | N/A | N/A | | |
| ROADSCU | COUNTY ROADS TO CUR EXP | N/A | N/A | N/A | N/A | | |
| HOSP2CASH | HOSP DIST #2 GENERAL | N/A | N/A | N/A | N/A | | |
| SCH49CP | SCHOOL DIST #49 CAP PROJ | N/A | N/A | N/A | N/A | | |
| SCH49MO | SCHOOL DIST #49 EP & O | N/A | N/A | N/A | N/A | | |
| CONSERVE | CONSERVATION FUTURES | N/A | N/A | N/A | N/A | | |
| EMS1 | FIRE DIST #1 EMS | N/A | N/A | N/A | N/A | | |
| FD1 | FIRE DIST #1 GENERAL | N/A | N/A | N/A | N/A | | |
| LIB1 | LIBRARY DIST #1 GENERAL | N/A | N/A | N/A | N/A | | |
| PORTPT | PORT OF PT GENERAL | N/A | N/A | N/A | N/A | | |
| PORTPTIDD | PORT OF PT IDD 2019 | N/A | N/A | N/A | N/A | | |
| PUD1 | PUD #1 GENERAL | N/A | N/A | N/A | N/A | | |
| STATE | STATE SCHOOL PART 1 | N/A | N/A | N/A | N/A | | |
| STATE2 | STATE SCHOOL PART 2 | N/A | N/A | N/A | N/A | | |
| | Total Tax Rate: | N/A | | | | | |
| | | | | Taxes w/Current Exemptions: | N/A | | |
| | | | | Taxes w/o Exemptions: | N/A | | |
Improvement / Building
| Improvement #1: | Residential Bldg | State Code: | 11 | 1697.0 sqft | Value: | $443,707 |
| Bathrooms (#): | 3 (FULL) | Bedrooms (#): | 3 | | Exterior Wall: | SI/ST | Fireplace: | WD ST-AVG | | Floor Construction: | FRAME | Foundation: | CONPR | | Heating/Cooling: | ELBB | Inside Verify: | YES-FIX | | Roof Cover: | COMP |   |   |
|
| | Type | Description | Class CD | Sub Class CD | Year Built | Area |
| | MA | Main Area | 4 | 1S | 1990 | 1697.0 |
| | HWPOR | House Wood Porch | 4 | * | 1990 | 96.0 |
| | HCPOR | House Concrete Porch | 4 | * | 1990 | 52.0 |
| | HDECK | House Deck | 4 | * | 1990 | 250.0 |
| | GATT | House Attached Garage | 4 | 1S | 1990 | 540.0 |
| | BSMTF | House basement finished | 3 | * | 1990 | 940.0 |
| | CONCD | Concrete Drive | 4 | * | 1990 | 646.0 |
Sketch
| No sketches available for this property. |
Property Image
Land
| 1 | 3335-1185L | No View Lots | 0.0000 | 0.00 | 0.00 | 0.00 | 1.00 | $104,500 | $0 |
Roll Value History
| 2025 | N/A | N/A | N/A | N/A | N/A |
| 2024 | $443,707 | $99,750 | $0 | $543,457 | $543,457 |
| 2023 | $425,219 | $90,000 | $0 | $515,219 | $515,219 |
| 2022 | $406,732 | $85,000 | $0 | $491,732 | $491,732 |
| 2021 | $336,039 | $71,500 | $0 | $407,539 | $407,539 |
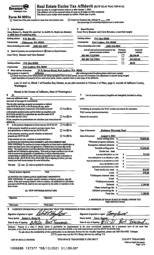
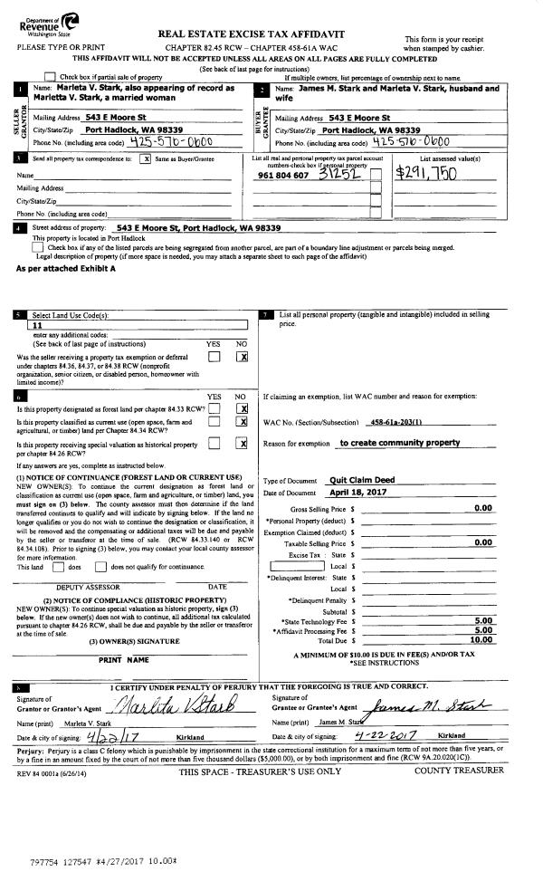
Deed and Sales History
| 1 | 04/18/2019 | SWD | Statutory Warranty Deed | CAROL A SHAMHART TRUST | MICHELLE BUCHANAN | | | $362,000.00 | 132194 | |
| 2 | 09/13/2017 | QCD | Quit Claim Deed | CAROL A SHAMHART | CAROL A SHAMHART TRUST | | | | 128705 | |
| 3 | 08/31/2017 | LOP | Lack of Probate | | | | | | 128434 | |
| 4 | 08/31/2017 | LOP | Lack of Probate | | | | | | 128434 | |
Payout Agreement
| No payout information available.. |