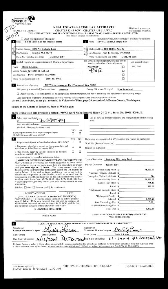
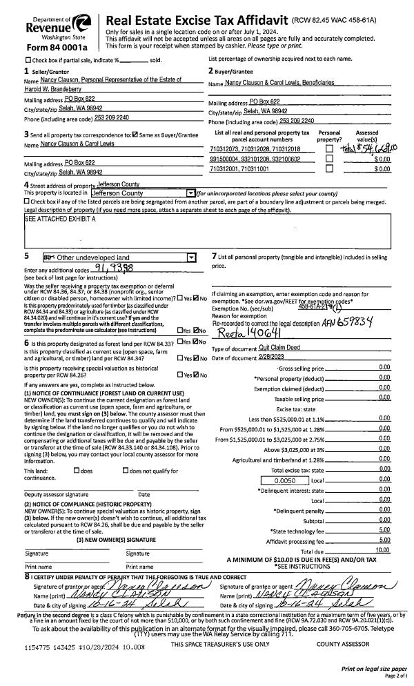
Property
Account |
| Property ID: | 40320 | Abbreviated Legal Description: | PORT LUDLOW NO 2 AREA 1 LOT 33 |
| Parcel # / Geo ID: | 990600133 | Agent Code: | |
| Type: | Real | | |
| Tax Area: | 0213 - 1-49F1E1H2L1 | Land Use Code | 11 |
| Open Space: | N | DFL | N |
| Historic Property: | N | Remodel Property: | N |
| Multi-Family Redevelopment: | N | | |
| Township: | 28N | Section: | 9 |
| Range: | 1E |
Location |
| Address: | 180 MONTGOMERY LN PORT LUDLOW, WA 98365 | Mapsco: | 105/004 |
| Neighborhood: | PORT LUDLOW #1 AREA 2; P L #2 AREA 1; P L #5 (ALL) | Map ID: | |
| Neighborhood CD: | 3331 |
Owner |
| Name: | VON W & KRISTEN A MORLEY | Owner ID: | 22948 |
| Mailing Address: | PO BOX 65404 PORT LUDLOW, WA 98365-0404 | % Ownership: | 100.0000000000% |
| | | Exemptions: | |
Pay Tax Due
There is currently No Amount Due on this property.
Taxes and Assessment Details
Property Tax Information as of
10/24/2025
Click on "Statement Details" to expand or collapse a tax statement.
* Please enter a valid date ** Please enter a valid date *
Statement Details |
| | TOTAL: | $0.00 | $0.00 | $0.00 | $0.00 | $0.00 | $0.00 |
|
| | $0.00 | $0.00 | $0.00 | $0.00 | $0.00 | $0.00 |
Values
| (+) Improvement Homesite Value: | + | $0 | |
| (+) Improvement Non-Homesite Value: | + | $521,080 | |
| (+) Land Homesite Value: | + | $0 | |
| (+) Land Non-Homesite Value: | + | $170,500 | |
| (+) Curr Use (HS): | + | $0 | $0 |
| (+) Curr Use (NHS): | + | $0 | $0 |
| | | -------------------------- | |
| (=) Market Value: | = | $691,580 | |
| (–) Productivity Loss: | – | $0 | |
| | | -------------------------- | |
| (=) Subtotal: | = | $691,580 | |
| (+) Senior Appraised Value: | + | $0 | |
| (+) Non-Senior Appraised Value: | + | $691,580 | |
| | | -------------------------- | |
| (=) Total Appraised Value: | = | $691,580 | |
| (–) Senior Exemption Loss: | – | $0 | |
| (–) Exemption Loss: | – | $0 | |
| | | -------------------------- | |
| (=) Taxable Value: | = | $691,580 | |
Taxing Jurisdiction
| Owner: | VON W & KRISTEN A MORLEY | | |
| % Ownership: | 100.0000000000% | | |
| Total Value: | N/A | | |
| Tax Area: | 0213 - 1-49F1E1H2L1 |
| CE | COUNTY CURRENT EXPENSE | N/A | N/A | N/A | N/A | | |
| CNTYDD | DEVELOPMENTAL DISABILITIES | N/A | N/A | N/A | N/A | | |
| CNTYVET | VETERANS RELIEF | N/A | N/A | N/A | N/A | | |
| MENTAL | MENTAL HEALTH | N/A | N/A | N/A | N/A | | |
| ROADS | COUNTY ROADS | N/A | N/A | N/A | N/A | | |
| ROADSCU | COUNTY ROADS TO CUR EXP | N/A | N/A | N/A | N/A | | |
| HOSP2CASH | HOSP DIST #2 GENERAL | N/A | N/A | N/A | N/A | | |
| SCH49CP | SCHOOL DIST #49 CAP PROJ | N/A | N/A | N/A | N/A | | |
| SCH49MO | SCHOOL DIST #49 EP & O | N/A | N/A | N/A | N/A | | |
| CONSERVE | CONSERVATION FUTURES | N/A | N/A | N/A | N/A | | |
| EMS1 | FIRE DIST #1 EMS | N/A | N/A | N/A | N/A | | |
| FD1 | FIRE DIST #1 GENERAL | N/A | N/A | N/A | N/A | | |
| LIB1 | LIBRARY DIST #1 GENERAL | N/A | N/A | N/A | N/A | | |
| PORTPT | PORT OF PT GENERAL | N/A | N/A | N/A | N/A | | |
| PORTPTIDD | PORT OF PT IDD 2019 | N/A | N/A | N/A | N/A | | |
| PUD1 | PUD #1 GENERAL | N/A | N/A | N/A | N/A | | |
| STATE | STATE SCHOOL PART 1 | N/A | N/A | N/A | N/A | | |
| STATE2 | STATE SCHOOL PART 2 | N/A | N/A | N/A | N/A | | |
| | Total Tax Rate: | N/A | | | | | |
| | | | | Taxes w/Current Exemptions: | N/A | | |
| | | | | Taxes w/o Exemptions: | N/A | | |
Improvement / Building
| Improvement #1: | Residential Bldg | State Code: | 11 | 2342.0 sqft | Value: | $521,080 |
| Bathrooms (#): | 2 (FULL) | Bathrooms (#): | 1 (HALF) | | Bedrooms (#): | 3 | Exterior Wall: | SI/ST | | Fireplace: | SIN 1-GOOD | Fireplace: | WD ST-GOOD | | Floor Construction: | FRAME | Foundation: | CONPR | | Heating/Cooling: | HPUMP | Inside Verify: | YES-FIX | | Roof Cover: | TILE |   |   |
|
| | Type | Description | Class CD | Sub Class CD | Year Built | Area |
| | MA | Main Area | 4+ | 1S | 1991 | 2342.0 |
| | HWPOR | House Wood Porch | 4 | * | 1991 | 120.0 |
| | HCPOR | House Concrete Porch | 4 | * | 1991 | 72.0 |
| | HDECK | House Deck | 4 | * | 1991 | 239.0 |
| | GATT | House Attached Garage | 4 | 1S | 1991 | 572.0 |
| | CONCD | Concrete Drive | 4 | * | 1991 | 1100.0 |
Sketch
Property Image
Land
| 1 | 3331-1155L | Avg Wtr View Lots on Montgomery Ln | 0.0000 | 0.00 | 0.00 | 0.00 | 1.00 | $170,500 | $0 |
Roll Value History
| 2025 | N/A | N/A | N/A | N/A | N/A |
| 2024 | $543,736 | $170,500 | $0 | $714,236 | $714,236 |
| 2023 | $521,080 | $150,000 | $0 | $671,080 | $671,080 |
| 2022 | $498,424 | $145,000 | $0 | $643,424 | $643,424 |
| 2021 | $412,486 | $123,500 | $0 | $535,986 | $535,986 |
Deed and Sales History
| 1 | 01/16/2025 | SWD | Statutory Warranty Deed | NEAL H WOOD II & NANCY K WOOD REVOCABLE TRUST | VON W & KRISTEN A MORLEY | | | $757,500.00 | 143772 | |
| 2 | 09/25/2022 | SPWD | Special Warranty Deed | NANCY WOOD REVOCABLE TRUST | NEAL H WOOD II & NANCY K WOOD REVOCABLE TRUST | | | | 139899 | |
| 3 | 11/02/2015 | SWD | Statutory Warranty Deed | RAYMOND W EISELT TRUSTEE | NANCY WOOD REVOCABLE TRUST | | | $370,000.00 | 124340 | |
| 4 | 02/26/2001 | QCD | Quit Claim Deed | EISELT, RAYMOND W EXECUTO | EISELT, RAYMOND W | 0 | 0 | $0.00 | 91739 | 0 |
| 5 | 12/15/2000 | QCD | Quit Claim Deed | EISELT, RAYMOND W | EISELT, RAYMOND W TRUSTEE OF T | 0 | 0 | $0.00 | 91738 | 0 |
| 6 | 09/21/1995 | SWD | Statutory Warranty Deed | GASSON, CLETUS & DOROTHY | EISELT, RAYMOND & PHYLLIS | 0 | 0 | $340,000.00 | 77910 | 0 |
Payout Agreement
| No payout information available.. |