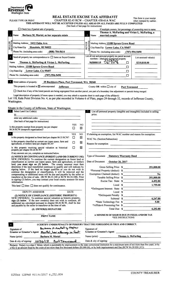
Property
Account |
| Property ID: | 40383 | Abbreviated Legal Description: | PORT LUDLOW NO 2 AREA 2 LOT 33 |
| Parcel # / Geo ID: | 990600233 | Agent Code: | |
| Type: | Real | | |
| Tax Area: | 0213 - 1-49F1E1H2L1 | Land Use Code | 11 |
| Open Space: | N | DFL | N |
| Historic Property: | N | Remodel Property: | N |
| Multi-Family Redevelopment: | N | | |
| Township: | 28N | Section: | 9 |
| Range: | 1E |
Location |
| Address: | 90 CAMANO LN PORT LUDLOW, WA 98365 | Mapsco: | 106/033 |
| Neighborhood: | PORT LUDLOW #2 AREA 2 | Map ID: | |
| Neighborhood CD: | 3333 |
Owner |
| Name: | TONI & JAMES RICHARDSON | Owner ID: | 99476 |
| Mailing Address: | 90 CAMANO LN PORT LUDLOW, WA 98365-9627 | % Ownership: | 100.0000000000% |
| | | Exemptions: | |
Pay Tax Due
There is currently No Amount Due on this property.
Taxes and Assessment Details
Property Tax Information as of
10/24/2025
Click on "Statement Details" to expand or collapse a tax statement.
* Please enter a valid date ** Please enter a valid date *
Statement Details |
| | TOTAL: | $0.00 | $0.00 | $0.00 | $0.00 | $0.00 | $0.00 |
|
| | $0.00 | $0.00 | $0.00 | $0.00 | $0.00 | $0.00 |
Values
| (+) Improvement Homesite Value: | + | $0 | |
| (+) Improvement Non-Homesite Value: | + | $358,346 | |
| (+) Land Homesite Value: | + | $0 | |
| (+) Land Non-Homesite Value: | + | $104,500 | |
| (+) Curr Use (HS): | + | $0 | $0 |
| (+) Curr Use (NHS): | + | $0 | $0 |
| | | -------------------------- | |
| (=) Market Value: | = | $462,846 | |
| (–) Productivity Loss: | – | $0 | |
| | | -------------------------- | |
| (=) Subtotal: | = | $462,846 | |
| (+) Senior Appraised Value: | + | $0 | |
| (+) Non-Senior Appraised Value: | + | $462,846 | |
| | | -------------------------- | |
| (=) Total Appraised Value: | = | $462,846 | |
| (–) Senior Exemption Loss: | – | $0 | |
| (–) Exemption Loss: | – | $0 | |
| | | -------------------------- | |
| (=) Taxable Value: | = | $462,846 | |
Taxing Jurisdiction
| Owner: | TONI & JAMES RICHARDSON | | |
| % Ownership: | 100.0000000000% | | |
| Total Value: | N/A | | |
| Tax Area: | 0213 - 1-49F1E1H2L1 |
| CE | COUNTY CURRENT EXPENSE | N/A | N/A | N/A | N/A | | |
| CNTYDD | DEVELOPMENTAL DISABILITIES | N/A | N/A | N/A | N/A | | |
| CNTYVET | VETERANS RELIEF | N/A | N/A | N/A | N/A | | |
| MENTAL | MENTAL HEALTH | N/A | N/A | N/A | N/A | | |
| ROADS | COUNTY ROADS | N/A | N/A | N/A | N/A | | |
| ROADSCU | COUNTY ROADS TO CUR EXP | N/A | N/A | N/A | N/A | | |
| HOSP2CASH | HOSP DIST #2 GENERAL | N/A | N/A | N/A | N/A | | |
| SCH49CP | SCHOOL DIST #49 CAP PROJ | N/A | N/A | N/A | N/A | | |
| SCH49MO | SCHOOL DIST #49 EP & O | N/A | N/A | N/A | N/A | | |
| CONSERVE | CONSERVATION FUTURES | N/A | N/A | N/A | N/A | | |
| EMS1 | FIRE DIST #1 EMS | N/A | N/A | N/A | N/A | | |
| FD1 | FIRE DIST #1 GENERAL | N/A | N/A | N/A | N/A | | |
| LIB1 | LIBRARY DIST #1 GENERAL | N/A | N/A | N/A | N/A | | |
| PORTPT | PORT OF PT GENERAL | N/A | N/A | N/A | N/A | | |
| PORTPTIDD | PORT OF PT IDD 2019 | N/A | N/A | N/A | N/A | | |
| PUD1 | PUD #1 GENERAL | N/A | N/A | N/A | N/A | | |
| STATE | STATE SCHOOL PART 1 | N/A | N/A | N/A | N/A | | |
| STATE2 | STATE SCHOOL PART 2 | N/A | N/A | N/A | N/A | | |
| | Total Tax Rate: | N/A | | | | | |
| | | | | Taxes w/Current Exemptions: | N/A | | |
| | | | | Taxes w/o Exemptions: | N/A | | |
Improvement / Building
| Improvement #1: | Residential Bldg | State Code: | 11 | 2030.0 sqft | Value: | $358,346 |
| Bathrooms (#): | 2 (FULL) | Bedrooms (#): | 3 | | Exterior Wall: | SI/ST | Fireplace: | SIN 1-AVG | | Fireplace: | WD ST-AVG | Floor Construction: | FRAME | | Foundation: | CONPR | Heating/Cooling: | HPUMP | | Inside Verify: | YES-FIX | Roof Cover: | SHAKE |
|
| | Type | Description | Class CD | Sub Class CD | Year Built | Area |
| | MA | Main Area | 4 | HSPL | 1977 | 504.0 |
| | MA2 | Second Floor Main Area | 4 | HSPL | 1977 | 806.0 |
| | MA3 | Third Floor Main Area | 4 | HSPL | 1977 | 720.0 |
| | HWPOR | House Wood Porch | 4 | * | 1977 | 72.0 |
| | HDECK | House Deck | 4 | * | 1977 | 435.0 |
| | GBLTIN | Builtin Garage | 3 | HSPL | 1977 | 480.0 |
| | CONCD | Concrete Drive | 4 | * | 1977 | 750.0 |
Sketch
Property Image
Land
| 1 | 3333-1185L | No View Lots | 0.0000 | 0.00 | 0.00 | 0.00 | 1.00 | $104,500 | $0 |
Roll Value History
| 2025 | N/A | N/A | N/A | N/A | N/A |
| 2024 | $358,346 | $104,500 | $0 | $462,846 | $462,846 |
| 2023 | $343,415 | $90,000 | $0 | $433,415 | $433,415 |
| 2022 | $328,484 | $85,000 | $0 | $413,484 | $413,484 |
| 2021 | $280,337 | $58,500 | $0 | $338,837 | $338,837 |
Deed and Sales History
| 1 | 06/28/2018 | SWD | Statutory Warranty Deed | MALDIZ INVESTMENTS LLC | TONI & JAMES RICHARDSON | | | $367,000.00 | 130506 | |
| 2 | 09/27/2017 | SWD | Statutory Warranty Deed | AMANDA SMALL | MALDIZ INVESTMENTS LLC | | | $138,000.00 | 128681 | |
| 3 | 05/15/2015 | QCD | Quit Claim Deed | JOSEPH SMALL | AMANDA SMALL | | | | 123188 | |
| 4 | 02/26/2015 | SPWD | Special Warranty Deed | BANK OF NEW YORK | JOSEPH SMALL | | | $224,000.00 | 122861 | |
| 5 | 09/19/2014 | TRED | Trustee Deed | GARTEN FAMILY TRUST | BANK OF NEW YORK | | | | 121956 | |
| 6 | 02/09/2006 | WD | Warranty Deed | GARTEN, CHAD W | GARTEN FAMILY TRUST | | | $263,000.00 | 106299 | 0 |
| 7 | 10/20/2005 | SWD | Statutory Warranty Deed | OHMAN, SCOTT D | GARTEN, CHAD W | 0 | 0 | $243,000.00 | 105194 | 0 |
| 8 | 10/28/2002 | QCD | Quit Claim Deed | OHMAN,SCOTTD/SUZANNE L | OHMAN, SCOTT D | 0 | 0 | $0.00 | 95855 | 0 |
| 9 | 09/04/1996 | SWD | Statutory Warranty Deed | KLOTZ, JAMES C/SHELLEY L | OHMAN, SCOTT D/SUZANNE L | 0 | 0 | $120,000.00 | 80300 | 0 |
| 10 | 01/10/1994 | QCD | Quit Claim Deed | KLOTZ, JAMES C | KLOTZ, JAMES C/SHELLY L | 0 | 0 | $0.00 | 73145 | 0 |
Payout Agreement
| No payout information available.. |