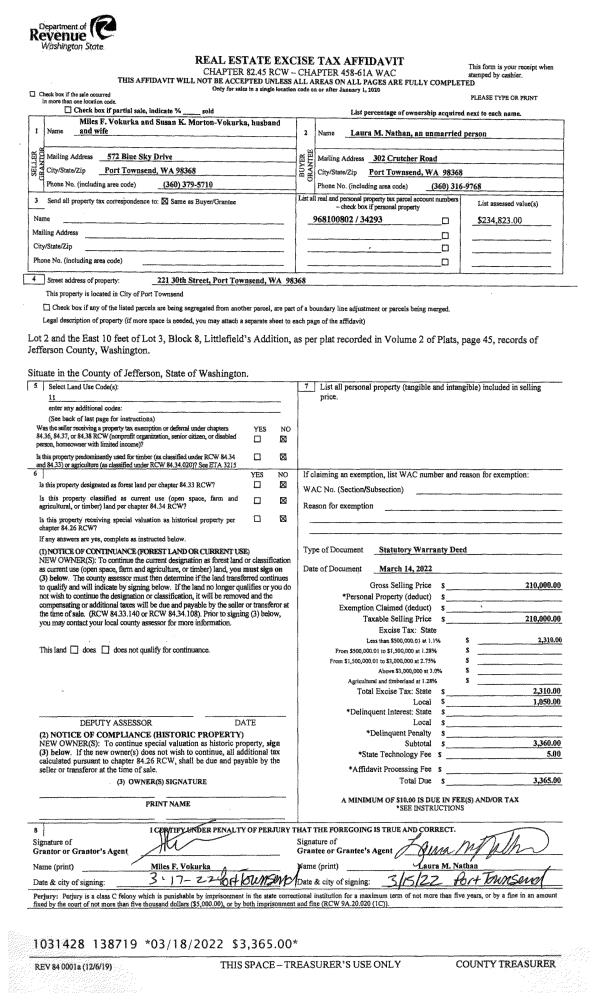
Property
Account |
| Property ID: | 40429 | Abbreviated Legal Description: | PORT LUDLOW NO 2 AREA 2 LOT 80 |
| Parcel # / Geo ID: | 990600280 | Agent Code: | |
| Type: | Real | | |
| Tax Area: | 0213 - 1-49F1E1H2L1 | Land Use Code | 11 |
| Open Space: | N | DFL | N |
| Historic Property: | N | Remodel Property: | N |
| Multi-Family Redevelopment: | N | | |
| Township: | 28N | Section: | 9 |
| Range: | 1E |
Location |
| Address: | 54 GOLIAH LN PORT LUDLOW, WA 98365 | Mapsco: | 107/027 |
| Neighborhood: | PORT LUDLOW #2 AREA 2 | Map ID: | |
| Neighborhood CD: | 3333 |
Owner |
| Name: | BRIAN H & MONICA C VAN LOON | Owner ID: | 29496 |
| Mailing Address: | 54 GOLIAH LN PORT LUDLOW, WA 98365-9661 | % Ownership: | 100.0000000000% |
| | | Exemptions: | |
Pay Tax Due
There is currently No Amount Due on this property.
Taxes and Assessment Details
Property Tax Information as of
10/24/2025
Click on "Statement Details" to expand or collapse a tax statement.
* Please enter a valid date ** Please enter a valid date *
Statement Details |
| | TOTAL: | $0.00 | $0.00 | $0.00 | $0.00 | $0.00 | $0.00 |
|
| | $0.00 | $0.00 | $0.00 | $0.00 | $0.00 | $0.00 |
Values
| (+) Improvement Homesite Value: | + | $0 | |
| (+) Improvement Non-Homesite Value: | + | $392,724 | |
| (+) Land Homesite Value: | + | $0 | |
| (+) Land Non-Homesite Value: | + | $104,500 | |
| (+) Curr Use (HS): | + | $0 | $0 |
| (+) Curr Use (NHS): | + | $0 | $0 |
| | | -------------------------- | |
| (=) Market Value: | = | $497,224 | |
| (–) Productivity Loss: | – | $0 | |
| | | -------------------------- | |
| (=) Subtotal: | = | $497,224 | |
| (+) Senior Appraised Value: | + | $0 | |
| (+) Non-Senior Appraised Value: | + | $497,224 | |
| | | -------------------------- | |
| (=) Total Appraised Value: | = | $497,224 | |
| (–) Senior Exemption Loss: | – | $0 | |
| (–) Exemption Loss: | – | $0 | |
| | | -------------------------- | |
| (=) Taxable Value: | = | $497,224 | |
Taxing Jurisdiction
| Owner: | BRIAN H & MONICA C VAN LOON | | |
| % Ownership: | 100.0000000000% | | |
| Total Value: | N/A | | |
| Tax Area: | 0213 - 1-49F1E1H2L1 |
| CE | COUNTY CURRENT EXPENSE | N/A | N/A | N/A | N/A | | |
| CNTYDD | DEVELOPMENTAL DISABILITIES | N/A | N/A | N/A | N/A | | |
| CNTYVET | VETERANS RELIEF | N/A | N/A | N/A | N/A | | |
| MENTAL | MENTAL HEALTH | N/A | N/A | N/A | N/A | | |
| ROADS | COUNTY ROADS | N/A | N/A | N/A | N/A | | |
| ROADSCU | COUNTY ROADS TO CUR EXP | N/A | N/A | N/A | N/A | | |
| HOSP2CASH | HOSP DIST #2 GENERAL | N/A | N/A | N/A | N/A | | |
| SCH49CP | SCHOOL DIST #49 CAP PROJ | N/A | N/A | N/A | N/A | | |
| SCH49MO | SCHOOL DIST #49 EP & O | N/A | N/A | N/A | N/A | | |
| CONSERVE | CONSERVATION FUTURES | N/A | N/A | N/A | N/A | | |
| EMS1 | FIRE DIST #1 EMS | N/A | N/A | N/A | N/A | | |
| FD1 | FIRE DIST #1 GENERAL | N/A | N/A | N/A | N/A | | |
| LIB1 | LIBRARY DIST #1 GENERAL | N/A | N/A | N/A | N/A | | |
| PORTPT | PORT OF PT GENERAL | N/A | N/A | N/A | N/A | | |
| PORTPTIDD | PORT OF PT IDD 2019 | N/A | N/A | N/A | N/A | | |
| PUD1 | PUD #1 GENERAL | N/A | N/A | N/A | N/A | | |
| STATE | STATE SCHOOL PART 1 | N/A | N/A | N/A | N/A | | |
| STATE2 | STATE SCHOOL PART 2 | N/A | N/A | N/A | N/A | | |
| | Total Tax Rate: | N/A | | | | | |
| | | | | Taxes w/Current Exemptions: | N/A | | |
| | | | | Taxes w/o Exemptions: | N/A | | |
Improvement / Building
| Improvement #1: | Residential Bldg | State Code: | 11 | 1892.0 sqft | Value: | $392,724 |
| Bathrooms (#): | 2 (FULL) | Bedrooms (#): | 3 | | Exterior Wall: | SI/ST | Fireplace: | PROPS-GOOD | | Floor Construction: | FRAME | Foundation: | CONPR | | Heating/Cooling: | F/A | Roof Cover: | COMP |
|
| | Type | Description | Class CD | Sub Class CD | Year Built | Area |
| | MA | Main Area | 4 | 15SF | 2005 | 1446.0 |
| | MA2 | Second Floor Main Area | 4 | 15SF | 2005 | 446.0 |
| | HWPOR | House Wood Porch | 3 | * | 2005 | 341.0 |
| | HDECK | House Deck | 3 | * | 2005 | 315.0 |
| | GATT | House Attached Garage | 3 | 15SF | 2005 | 280.0 |
Sketch
Property Image
Land
| 1 | 3333-1185L | No View Lots | 0.0000 | 0.00 | 0.00 | 0.00 | 1.00 | $104,500 | $0 |
Roll Value History
| 2025 | N/A | N/A | N/A | N/A | N/A |
| 2024 | $392,724 | $104,500 | $0 | $497,224 | $497,224 |
| 2023 | $376,361 | $90,000 | $0 | $466,361 | $466,361 |
| 2022 | $359,997 | $85,000 | $0 | $444,997 | $444,997 |
| 2021 | $302,627 | $58,500 | $0 | $361,127 | $361,127 |
Deed and Sales History
| 1 | 05/11/2005 | SWD | Statutory Warranty Deed | LANDSTROM, SAM/LAURA | VAN LOON, BRIAN H/MONICA C | | | $269,000.00 | 103532 | 0 |
| 2 | 04/13/2004 | SWD | Statutory Warranty Deed | JEFFERSON LAND TRUST | LANDSTROM, SAM & LAURA | 0 | 0 | $11,500.00 | 100007 | 0 |
| 3 | 12/19/2000 | SWD | Statutory Warranty Deed | SARGENT, J ELIZABETH | JEFERSON LAND TRUST | 0 | 0 | $0.00 | 91307 | 0 |
| 4 | 06/26/1997 | SWD | Statutory Warranty Deed | MCCOMBS, WILLIAM ALLAN | SARGENT, J ELIZABETH | 0 | 0 | $20,000.00 | 82232 | 0 |
| 5 | 04/11/1997 | QCD | Quit Claim Deed | MCCOMBS, JOHN C | MCCOMBS, WILLIAM ALLAN | 0 | 0 | $0.00 | 81798 | 0 |
| 6 | 04/08/1997 | SWD | Statutory Warranty Deed | COOK, TIMOTHY L | MCCOMBS, JOHN C/WILLIAM ALLAN | 0 | 0 | $18,950.00 | 81787 | 0 |
Payout Agreement
| No payout information available.. |