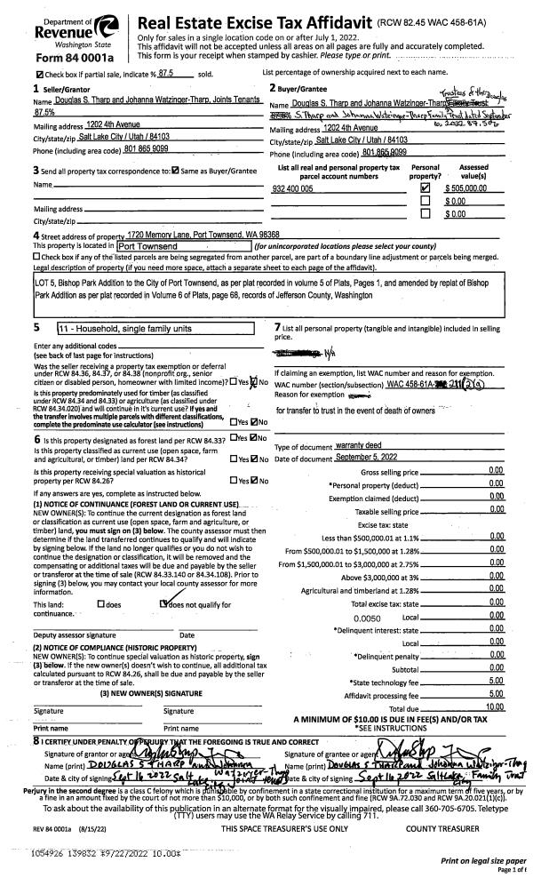
Property
Account |
| Property ID: | 40457 | Abbreviated Legal Description: | PORT LUDLOW NO 2 AREA 3 LOT 9 |
| Parcel # / Geo ID: | 990600309 | Agent Code: | |
| Type: | Real | | |
| Tax Area: | 0213 - 1-49F1E1H2L1 | Land Use Code | 11 |
| Open Space: | N | DFL | N |
| Historic Property: | N | Remodel Property: | N |
| Multi-Family Redevelopment: | N | | |
| Township: | 28N | Section: | 9 |
| Range: | 1E |
Location |
| Address: | 53 KELLER LN PORT LUDLOW, WA 98365 | Mapsco: | 108/009 |
| Neighborhood: | PORT LUDLOW #2 AREA 3 (SEWER AVAILABLE TO ALL LOTS) | Map ID: | |
| Neighborhood CD: | 3334 |
Owner |
| Name: | CURTIS G SMITH | Owner ID: | 27579 |
| Mailing Address: | MISHELE NEWKIRK-SMITH NEWKIRK-SMITH FAMILY TRST PO BOX 53 SAN JUAN BATISTA, CA 95045-0053 | % Ownership: | 100.0000000000% |
| | | Exemptions: | |
Pay Tax Due
There is currently No Amount Due on this property.
Taxes and Assessment Details
Property Tax Information as of
10/24/2025
Click on "Statement Details" to expand or collapse a tax statement.
* Please enter a valid date ** Please enter a valid date *
Statement Details |
| | TOTAL: | $0.00 | $0.00 | $0.00 | $0.00 | $0.00 | $0.00 |
|
| | $0.00 | $0.00 | $0.00 | $0.00 | $0.00 | $0.00 |
Values
| (+) Improvement Homesite Value: | + | $0 | |
| (+) Improvement Non-Homesite Value: | + | $350,338 | |
| (+) Land Homesite Value: | + | $0 | |
| (+) Land Non-Homesite Value: | + | $99,750 | |
| (+) Curr Use (HS): | + | $0 | $0 |
| (+) Curr Use (NHS): | + | $0 | $0 |
| | | -------------------------- | |
| (=) Market Value: | = | $450,088 | |
| (–) Productivity Loss: | – | $0 | |
| | | -------------------------- | |
| (=) Subtotal: | = | $450,088 | |
| (+) Senior Appraised Value: | + | $0 | |
| (+) Non-Senior Appraised Value: | + | $450,088 | |
| | | -------------------------- | |
| (=) Total Appraised Value: | = | $450,088 | |
| (–) Senior Exemption Loss: | – | $0 | |
| (–) Exemption Loss: | – | $0 | |
| | | -------------------------- | |
| (=) Taxable Value: | = | $450,088 | |
Taxing Jurisdiction
| Owner: | CURTIS G SMITH | | |
| % Ownership: | 100.0000000000% | | |
| Total Value: | N/A | | |
| Tax Area: | 0213 - 1-49F1E1H2L1 |
| CE | COUNTY CURRENT EXPENSE | N/A | N/A | N/A | N/A | | |
| CNTYDD | DEVELOPMENTAL DISABILITIES | N/A | N/A | N/A | N/A | | |
| CNTYVET | VETERANS RELIEF | N/A | N/A | N/A | N/A | | |
| MENTAL | MENTAL HEALTH | N/A | N/A | N/A | N/A | | |
| ROADS | COUNTY ROADS | N/A | N/A | N/A | N/A | | |
| ROADSCU | COUNTY ROADS TO CUR EXP | N/A | N/A | N/A | N/A | | |
| HOSP2CASH | HOSP DIST #2 GENERAL | N/A | N/A | N/A | N/A | | |
| SCH49CP | SCHOOL DIST #49 CAP PROJ | N/A | N/A | N/A | N/A | | |
| SCH49MO | SCHOOL DIST #49 EP & O | N/A | N/A | N/A | N/A | | |
| CONSERVE | CONSERVATION FUTURES | N/A | N/A | N/A | N/A | | |
| EMS1 | FIRE DIST #1 EMS | N/A | N/A | N/A | N/A | | |
| FD1 | FIRE DIST #1 GENERAL | N/A | N/A | N/A | N/A | | |
| LIB1 | LIBRARY DIST #1 GENERAL | N/A | N/A | N/A | N/A | | |
| PORTPT | PORT OF PT GENERAL | N/A | N/A | N/A | N/A | | |
| PORTPTIDD | PORT OF PT IDD 2019 | N/A | N/A | N/A | N/A | | |
| PUD1 | PUD #1 GENERAL | N/A | N/A | N/A | N/A | | |
| STATE | STATE SCHOOL PART 1 | N/A | N/A | N/A | N/A | | |
| STATE2 | STATE SCHOOL PART 2 | N/A | N/A | N/A | N/A | | |
| | Total Tax Rate: | N/A | | | | | |
| | | | | Taxes w/Current Exemptions: | N/A | | |
| | | | | Taxes w/o Exemptions: | N/A | | |
Improvement / Building
| Improvement #1: | Residential Bldg | State Code: | 11 | 1884.0 sqft | Value: | $350,338 |
| Bathrooms (#): | 2 (FULL) | Bathrooms (#): | 1 (HALF) | | Bedrooms (#): | 3 | Exterior Wall: | SI/ST | | Fireplace: | WD ST-GOOD | Floor Construction: | FRAME | | Foundation: | CONPR | Heating/Cooling: | ELBB | | Inside Verify: | YES-FIX | Roof Cover: | COMP |
|
| | Type | Description | Class CD | Sub Class CD | Year Built | Area |
| | MA | Main Area | 4 | 2S | 1997 | 823.0 |
| | MA2 | Second Floor Main Area | 4 | 2S | 1997 | 1061.0 |
| | HWPOR | House Wood Porch | 4 | * | 1997 | 36.0 |
| | HDECK | House Deck | 4 | * | 1997 | 144.0 |
| | GBLTIN | Builtin Garage | 4 | 2S | 1997 | 440.0 |
| | HRPO | House Roof Patio | 4 | * | 1997 | 64.0 |
| | ASPHD | Asphalt Drive | 4 | * | 1997 | 1000.0 |
Sketch
Property Image
Land
| 1 | 3334-1185L | No View Lots | 0.0000 | 0.00 | 0.00 | 0.00 | 1.00 | $99,750 | $0 |
Roll Value History
| 2025 | N/A | N/A | N/A | N/A | N/A |
| 2024 | $350,338 | $99,750 | $0 | $450,088 | $450,088 |
| 2023 | $335,740 | $90,000 | $0 | $425,740 | $425,740 |
| 2022 | $321,143 | $85,000 | $0 | $406,143 | $406,143 |
| 2021 | $280,808 | $58,500 | $0 | $339,308 | $339,308 |
Deed and Sales History
| 1 | 05/16/2023 | QCD | Quit Claim Deed | CURTIS G SMITH | CURTIS G SMITH | | | | 140938 | |
| 2 | 05/16/2023 | QCD | Quit Claim Deed | CURTIS G SMITH | CURTIS G SMITH | | | | 140936 | |
| 3 | 03/04/2016 | QCD | Quit Claim Deed | | | | | | 125021 | |
| 4 | 03/04/2016 | QCD | Quit Claim Deed | | | | | | 125022 | |
| 5 | 08/07/2008 | QCD | Quit Claim Deed | SMITH, CURTIS GENE/NEWKIR | NEWKIRK-SMITH, TRUST | 0 | 0 | $0.00 | 111708 | 0 |
| 6 | 06/03/2004 | SWD | Statutory Warranty Deed | JOHNSON, MARK/ANNETTE | SMITH, CURTIS/NEWKIRK-SMITH | 0 | 0 | $237,100.00 | 100479 | 0 |
| 7 | 05/31/1996 | QCD | Quit Claim Deed | SCHWAGER, CAROLYN | SCHWAGER, JOHN A | 0 | 0 | $0.00 | 79659 | 0 |
| 8 | 05/31/1996 | SWD | Statutory Warranty Deed | SCHWAGER, JOHN A | JOHNSON, MARK/ANNETTE | 0 | 0 | $20,000.00 | 79660 | 0 |
Payout Agreement
| No payout information available.. |