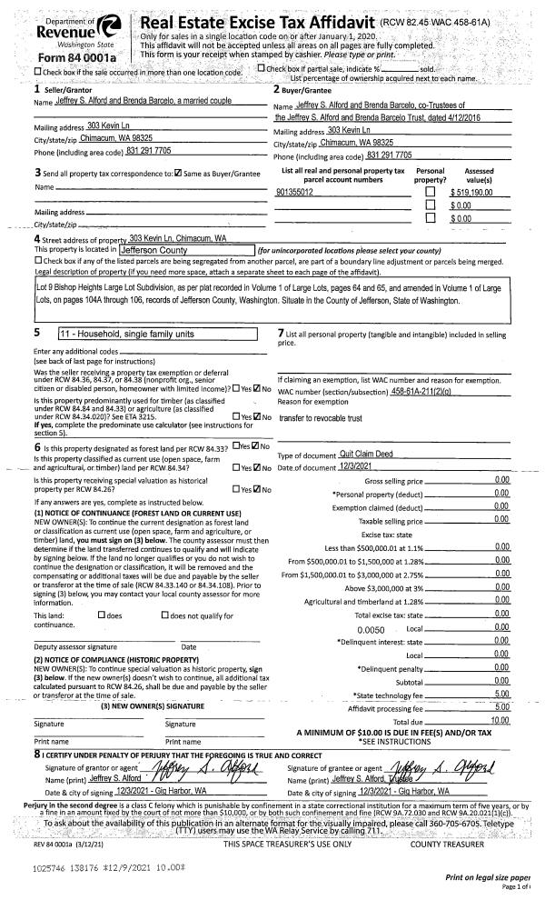
Property
Account |
| Property ID: | 40595 | Abbreviated Legal Description: | PORT LUDLOW NO. 2 AREA 3 LOT 144 |
| Parcel # / Geo ID: | 990603144 | Agent Code: | |
| Type: | Real | | |
| Tax Area: | 0213 - 1-49F1E1H2L1 | Land Use Code | 11 |
| Open Space: | N | DFL | N |
| Historic Property: | N | Remodel Property: | N |
| Multi-Family Redevelopment: | N | | |
| Township: | 28N | Section: | 9 |
| Range: | 1E |
Location |
| Address: | 31 FORESTER LN PORT LUDLOW, WA 98365 | Mapsco: | 111/004 |
| Neighborhood: | PORT LUDLOW #2 AREA 3 (SEWER AVAILABLE TO ALL LOTS) | Map ID: | |
| Neighborhood CD: | 3334 |
Owner |
| Name: | PAUL & EVELYN MAXWELL | Owner ID: | 106460 |
| Mailing Address: | 31 FORESTER LN PORT LUDLOW, WA 98365-9628 | % Ownership: | 100.0000000000% |
| | | Exemptions: | |
Pay Tax Due
There is currently No Amount Due on this property.
Taxes and Assessment Details
Property Tax Information as of
10/24/2025
Click on "Statement Details" to expand or collapse a tax statement.
* Please enter a valid date ** Please enter a valid date *
Statement Details |
| | TOTAL: | $0.00 | $0.00 | $0.00 | $0.00 | $0.00 | $0.00 |
|
| | $0.00 | $0.00 | $0.00 | $0.00 | $0.00 | $0.00 |
Values
| (+) Improvement Homesite Value: | + | $0 | |
| (+) Improvement Non-Homesite Value: | + | $504,942 | |
| (+) Land Homesite Value: | + | $0 | |
| (+) Land Non-Homesite Value: | + | $110,250 | |
| (+) Curr Use (HS): | + | $0 | $0 |
| (+) Curr Use (NHS): | + | $0 | $0 |
| | | -------------------------- | |
| (=) Market Value: | = | $615,192 | |
| (–) Productivity Loss: | – | $0 | |
| | | -------------------------- | |
| (=) Subtotal: | = | $615,192 | |
| (+) Senior Appraised Value: | + | $0 | |
| (+) Non-Senior Appraised Value: | + | $615,192 | |
| | | -------------------------- | |
| (=) Total Appraised Value: | = | $615,192 | |
| (–) Senior Exemption Loss: | – | $0 | |
| (–) Exemption Loss: | – | $0 | |
| | | -------------------------- | |
| (=) Taxable Value: | = | $615,192 | |
Taxing Jurisdiction
| Owner: | PAUL & EVELYN MAXWELL | | |
| % Ownership: | 100.0000000000% | | |
| Total Value: | N/A | | |
| Tax Area: | 0213 - 1-49F1E1H2L1 |
| CE | COUNTY CURRENT EXPENSE | N/A | N/A | N/A | N/A | | |
| CNTYDD | DEVELOPMENTAL DISABILITIES | N/A | N/A | N/A | N/A | | |
| CNTYVET | VETERANS RELIEF | N/A | N/A | N/A | N/A | | |
| MENTAL | MENTAL HEALTH | N/A | N/A | N/A | N/A | | |
| ROADS | COUNTY ROADS | N/A | N/A | N/A | N/A | | |
| ROADSCU | COUNTY ROADS TO CUR EXP | N/A | N/A | N/A | N/A | | |
| HOSP2CASH | HOSP DIST #2 GENERAL | N/A | N/A | N/A | N/A | | |
| SCH49CP | SCHOOL DIST #49 CAP PROJ | N/A | N/A | N/A | N/A | | |
| SCH49MO | SCHOOL DIST #49 EP & O | N/A | N/A | N/A | N/A | | |
| CONSERVE | CONSERVATION FUTURES | N/A | N/A | N/A | N/A | | |
| EMS1 | FIRE DIST #1 EMS | N/A | N/A | N/A | N/A | | |
| FD1 | FIRE DIST #1 GENERAL | N/A | N/A | N/A | N/A | | |
| LIB1 | LIBRARY DIST #1 GENERAL | N/A | N/A | N/A | N/A | | |
| PORTPT | PORT OF PT GENERAL | N/A | N/A | N/A | N/A | | |
| PORTPTIDD | PORT OF PT IDD 2019 | N/A | N/A | N/A | N/A | | |
| PUD1 | PUD #1 GENERAL | N/A | N/A | N/A | N/A | | |
| STATE | STATE SCHOOL PART 1 | N/A | N/A | N/A | N/A | | |
| STATE2 | STATE SCHOOL PART 2 | N/A | N/A | N/A | N/A | | |
| | Total Tax Rate: | N/A | | | | | |
| | | | | Taxes w/Current Exemptions: | N/A | | |
| | | | | Taxes w/o Exemptions: | N/A | | |
Improvement / Building
| Improvement #1: | Residential Bldg | State Code: | 11 | 2008.0 sqft | Value: | $504,942 |
| Bathrooms (#): | 3 (FULL) | Bedrooms (#): | 3 | | Exterior Wall: | SI/ST | Fireplace: | DBL 1-AVG | | Fireplace: | WD ST-AVG | Floor Construction: | FRAME | | Foundation: | CONPR | Heating/Cooling: | ELBB | | Inside Verify: | YES-FIX | Roof Cover: | COMP |
|
| | Type | Description | Class CD | Sub Class CD | Year Built | Area |
| | MA | Main Area | 4 | 1S | 1982 | 2008.0 |
| | HCPOR | House Concrete Porch | 4 | * | 1982 | 36.0 |
| | HDECK | House Deck | 4 | * | 1982 | 780.0 |
| | HENCL | House Enclosure | 4 | * | 1982 | 144.0 |
| | GBSMT | Basement Garage | 4 | 1S | 1982 | 470.0 |
| | BSMTF | House basement finished | 4 | * | 1982 | 1094.0 |
Sketch
Property Image
Land
| 1 | 3334-1173L | Wooded/Terr/Filtered View Lots | 0.0000 | 0.00 | 0.00 | 0.00 | 1.00 | $110,250 | $0 |
Roll Value History
| 2025 | N/A | N/A | N/A | N/A | N/A |
| 2024 | $504,942 | $110,250 | $0 | $615,192 | $615,192 |
| 2023 | $483,903 | $100,000 | $0 | $583,903 | $583,903 |
| 2022 | $462,864 | $95,000 | $0 | $557,864 | $557,864 |
| 2021 | $436,097 | $78,000 | $0 | $514,097 | $514,097 |
Deed and Sales History
| 1 | 02/08/2022 | QCD | Quit Claim Deed | PAUL & EVIE MAXWELL | PAUL & EVELYN MAXWELL | | | | 138571 | |
| 2 | 09/16/2019 | SWD | Statutory Warranty Deed | SALLY M ORSBORN | PAUL & EVIE MAXWELL | | | $510,000.00 | 133162 | |
|   | |
| 3 | 02/07/1994 | SWD | Statutory Warranty Deed | MILLER, RICHARD G & AGNES | ORSBORN, JOHN F/SALLY M | 0 | 0 | $170,000.00 | 73366 | 0 |
| 4 | 03/31/1993 | QCD | Quit Claim Deed | MILLER, RICHARD G/A ELOIS | MILLER, RICHARD/A ELOISE TRUST | 0 | 0 | $0.00 | 70776 | 0 |
Payout Agreement
| No payout information available.. |