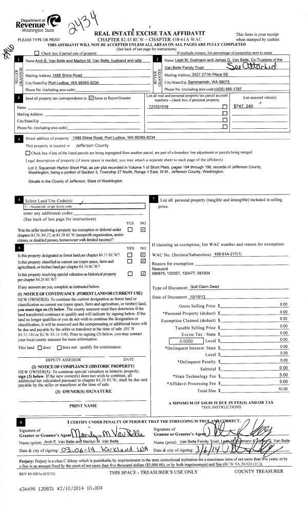
Property
Account |
| Property ID: | 40623 | Abbreviated Legal Description: | PORT LUDLOW NO 2 AREA 3 LOT 172 |
| Parcel # / Geo ID: | 990603172 | Agent Code: | |
| Type: | Real | | |
| Tax Area: | 0213 - 1-49F1E1H2L1 | Land Use Code | 11 |
| Open Space: | N | DFL | N |
| Historic Property: | N | Remodel Property: | N |
| Multi-Family Redevelopment: | N | | |
| Township: | 28N | Section: | 9 |
| Range: | 1E |
Location |
| Address: | 293 FLEET DR PORT LUDLOW, WA 98365 | Mapsco: | 111/032 |
| Neighborhood: | PORT LUDLOW #2 AREA 3 (SEWER AVAILABLE TO ALL LOTS) | Map ID: | |
| Neighborhood CD: | 3334 |
Owner |
| Name: | LEESAN D JOYCE-MARLATT | Owner ID: | 19425 |
| Mailing Address: | 293 FLEET DRIVE PORT LUDLOW, WA 98365 | % Ownership: | 100.0000000000% |
| | | Exemptions: | |
Pay Tax Due
There is currently No Amount Due on this property.
Taxes and Assessment Details
Property Tax Information as of
10/24/2025
Click on "Statement Details" to expand or collapse a tax statement.
* Please enter a valid date ** Please enter a valid date *
Statement Details |
| | TOTAL: | $0.00 | $0.00 | $0.00 | $0.00 | $0.00 | $0.00 |
|
| | $0.00 | $0.00 | $0.00 | $0.00 | $0.00 | $0.00 |
Values
| (+) Improvement Homesite Value: | + | $0 | |
| (+) Improvement Non-Homesite Value: | + | $464,732 | |
| (+) Land Homesite Value: | + | $0 | |
| (+) Land Non-Homesite Value: | + | $120,750 | |
| (+) Curr Use (HS): | + | $0 | $0 |
| (+) Curr Use (NHS): | + | $0 | $0 |
| | | -------------------------- | |
| (=) Market Value: | = | $585,482 | |
| (–) Productivity Loss: | – | $0 | |
| | | -------------------------- | |
| (=) Subtotal: | = | $585,482 | |
| (+) Senior Appraised Value: | + | $0 | |
| (+) Non-Senior Appraised Value: | + | $585,482 | |
| | | -------------------------- | |
| (=) Total Appraised Value: | = | $585,482 | |
| (–) Senior Exemption Loss: | – | $0 | |
| (–) Exemption Loss: | – | $0 | |
| | | -------------------------- | |
| (=) Taxable Value: | = | $585,482 | |
Taxing Jurisdiction
| Owner: | LEESAN D JOYCE-MARLATT | | |
| % Ownership: | 100.0000000000% | | |
| Total Value: | N/A | | |
| Tax Area: | 0213 - 1-49F1E1H2L1 |
| CE | COUNTY CURRENT EXPENSE | N/A | N/A | N/A | N/A | | |
| CNTYDD | DEVELOPMENTAL DISABILITIES | N/A | N/A | N/A | N/A | | |
| CNTYVET | VETERANS RELIEF | N/A | N/A | N/A | N/A | | |
| MENTAL | MENTAL HEALTH | N/A | N/A | N/A | N/A | | |
| ROADS | COUNTY ROADS | N/A | N/A | N/A | N/A | | |
| ROADSCU | COUNTY ROADS TO CUR EXP | N/A | N/A | N/A | N/A | | |
| HOSP2CASH | HOSP DIST #2 GENERAL | N/A | N/A | N/A | N/A | | |
| SCH49CP | SCHOOL DIST #49 CAP PROJ | N/A | N/A | N/A | N/A | | |
| SCH49MO | SCHOOL DIST #49 EP & O | N/A | N/A | N/A | N/A | | |
| CONSERVE | CONSERVATION FUTURES | N/A | N/A | N/A | N/A | | |
| EMS1 | FIRE DIST #1 EMS | N/A | N/A | N/A | N/A | | |
| FD1 | FIRE DIST #1 GENERAL | N/A | N/A | N/A | N/A | | |
| LIB1 | LIBRARY DIST #1 GENERAL | N/A | N/A | N/A | N/A | | |
| PORTPT | PORT OF PT GENERAL | N/A | N/A | N/A | N/A | | |
| PORTPTIDD | PORT OF PT IDD 2019 | N/A | N/A | N/A | N/A | | |
| PUD1 | PUD #1 GENERAL | N/A | N/A | N/A | N/A | | |
| STATE | STATE SCHOOL PART 1 | N/A | N/A | N/A | N/A | | |
| STATE2 | STATE SCHOOL PART 2 | N/A | N/A | N/A | N/A | | |
| | Total Tax Rate: | N/A | | | | | |
| | | | | Taxes w/Current Exemptions: | N/A | | |
| | | | | Taxes w/o Exemptions: | N/A | | |
Improvement / Building
| Improvement #1: | Residential Bldg | State Code: | 11 | 2595.0 sqft | Value: | $464,732 |
| Bathrooms (#): | 2 (FULL) | Bathrooms (#): | 1 (HALF) | | Bedrooms (#): | 2 | Exterior Wall: | SI/ST | | Fireplace: | SIN 1-GOOD | Floor Construction: | FRAME | | Foundation: | CONPR | Heating/Cooling: | F/A | | Inside Verify: | YES-FIX | Roof Cover: | COMP |
|
| | Type | Description | Class CD | Sub Class CD | Year Built | Area |
| | MA | Main Area | 4 | 1S | 1974 | 2595.0 |
| | PATIO | House Patio | 4 | * | 1974 | 388.0 |
| | HDECK | House Deck | 4 | * | 1974 | 815.0 |
| | HENCL | House Enclosure | 4 | * | 1974 | 112.0 |
| | GATT | House Attached Garage | 4 | 1S | 1974 | 576.0 |
| | CONCD | Concrete Drive | 4 | * | 1974 | 400.0 |
Sketch
Property Image
Land
| 1 | 3334-1167L | Filtered or Potential Water View Lots | 0.0000 | 0.00 | 0.00 | 0.00 | 1.00 | $120,750 | $0 |
Roll Value History
| 2025 | N/A | N/A | N/A | N/A | N/A |
| 2024 | $464,732 | $120,750 | $0 | $585,482 | $585,482 |
| 2023 | $445,369 | $110,000 | $0 | $555,369 | $555,369 |
| 2022 | $426,005 | $105,000 | $0 | $531,005 | $531,005 |
| 2021 | $353,322 | $84,500 | $0 | $437,822 | $437,822 |
Deed and Sales History
| 1 | 11/04/2014 | QCD | Quit Claim Deed | DOUGLAS L JOYCE | LEESAN D JOYCE-MARLATT | | | | 122351 | |
| 2 | 10/01/2014 | SWD | Statutory Warranty Deed | MAELYN M MC KINLEY | DOUGLAS L JOYCE | | | $330,000.00 | 122012 | |
|   | |
| 3 | 10/25/1999 | SWD | Statutory Warranty Deed | MC KINLEY, WILLIAM | MC KINLEY, MAELYN | 0 | 0 | $0.00 | 88179 | 0 |
| 4 | 10/22/1999 | SWD | Statutory Warranty Deed | SLACK TRUSTEE, HOWARD | MC KINLEY, MAELYN | 0 | 0 | $280,000.00 | 88178 | 0 |
Payout Agreement
| No payout information available.. |