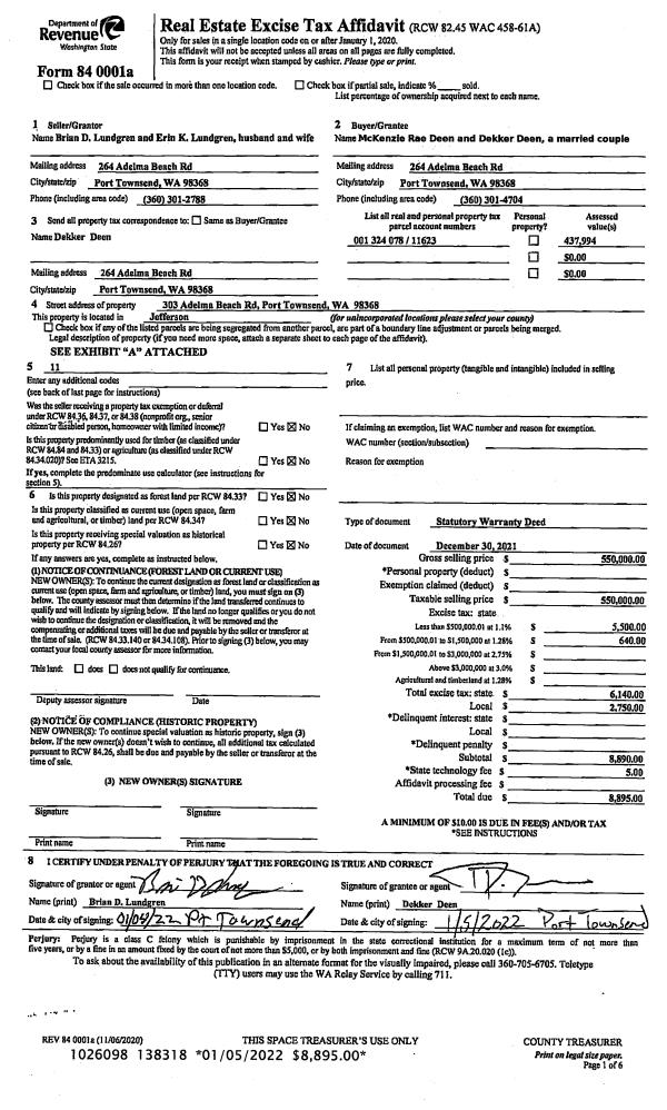
Property
Account |
| Property ID: | 40642 | Abbreviated Legal Description: | PORT LUDLOW NO. 2 AREA 3 191 |
| Parcel # / Geo ID: | 990603191 | Agent Code: | |
| Type: | Real | | |
| Tax Area: | 0213 - 1-49F1E1H2L1 | Land Use Code | 11 |
| Open Space: | N | DFL | N |
| Historic Property: | N | Remodel Property: | N |
| Multi-Family Redevelopment: | N | | |
| Township: | 28N | Section: | 9 |
| Range: | 1E |
Location |
| Address: | 40 PATHFINDER LN PORT LUDLOW, WA 98365 | Mapsco: | 112/007 |
| Neighborhood: | PORT LUDLOW #2 AREA 3 (SEWER AVAILABLE TO ALL LOTS) | Map ID: | |
| Neighborhood CD: | 3334 |
Owner |
| Name: | RICHARD TSO & BRAD LICHTENSTEIN | Owner ID: | 107755 |
| Mailing Address: | 16561 34TH AVE NE LAKE FOREST PARK, WA 98155-6511 | % Ownership: | 100.0000000000% |
| | | Exemptions: | |
Pay Tax Due
There is currently No Amount Due on this property.
Taxes and Assessment Details
Property Tax Information as of
10/24/2025
Click on "Statement Details" to expand or collapse a tax statement.
* Please enter a valid date ** Please enter a valid date *
Statement Details |
| | TOTAL: | $0.00 | $0.00 | $0.00 | $0.00 | $0.00 | $0.00 |
|
| | $0.00 | $0.00 | $0.00 | $0.00 | $0.00 | $0.00 |
Values
| (+) Improvement Homesite Value: | + | $0 | |
| (+) Improvement Non-Homesite Value: | + | $428,258 | |
| (+) Land Homesite Value: | + | $0 | |
| (+) Land Non-Homesite Value: | + | $136,500 | |
| (+) Curr Use (HS): | + | $0 | $0 |
| (+) Curr Use (NHS): | + | $0 | $0 |
| | | -------------------------- | |
| (=) Market Value: | = | $564,758 | |
| (–) Productivity Loss: | – | $0 | |
| | | -------------------------- | |
| (=) Subtotal: | = | $564,758 | |
| (+) Senior Appraised Value: | + | $0 | |
| (+) Non-Senior Appraised Value: | + | $564,758 | |
| | | -------------------------- | |
| (=) Total Appraised Value: | = | $564,758 | |
| (–) Senior Exemption Loss: | – | $0 | |
| (–) Exemption Loss: | – | $0 | |
| | | -------------------------- | |
| (=) Taxable Value: | = | $564,758 | |
Taxing Jurisdiction
| Owner: | RICHARD TSO & BRAD LICHTENSTEIN | | |
| % Ownership: | 100.0000000000% | | |
| Total Value: | N/A | | |
| Tax Area: | 0213 - 1-49F1E1H2L1 |
| CE | COUNTY CURRENT EXPENSE | N/A | N/A | N/A | N/A | | |
| CNTYDD | DEVELOPMENTAL DISABILITIES | N/A | N/A | N/A | N/A | | |
| CNTYVET | VETERANS RELIEF | N/A | N/A | N/A | N/A | | |
| MENTAL | MENTAL HEALTH | N/A | N/A | N/A | N/A | | |
| ROADS | COUNTY ROADS | N/A | N/A | N/A | N/A | | |
| ROADSCU | COUNTY ROADS TO CUR EXP | N/A | N/A | N/A | N/A | | |
| HOSP2CASH | HOSP DIST #2 GENERAL | N/A | N/A | N/A | N/A | | |
| SCH49CP | SCHOOL DIST #49 CAP PROJ | N/A | N/A | N/A | N/A | | |
| SCH49MO | SCHOOL DIST #49 EP & O | N/A | N/A | N/A | N/A | | |
| CONSERVE | CONSERVATION FUTURES | N/A | N/A | N/A | N/A | | |
| EMS1 | FIRE DIST #1 EMS | N/A | N/A | N/A | N/A | | |
| FD1 | FIRE DIST #1 GENERAL | N/A | N/A | N/A | N/A | | |
| LIB1 | LIBRARY DIST #1 GENERAL | N/A | N/A | N/A | N/A | | |
| PORTPT | PORT OF PT GENERAL | N/A | N/A | N/A | N/A | | |
| PORTPTIDD | PORT OF PT IDD 2019 | N/A | N/A | N/A | N/A | | |
| PUD1 | PUD #1 GENERAL | N/A | N/A | N/A | N/A | | |
| STATE | STATE SCHOOL PART 1 | N/A | N/A | N/A | N/A | | |
| STATE2 | STATE SCHOOL PART 2 | N/A | N/A | N/A | N/A | | |
| | Total Tax Rate: | N/A | | | | | |
| | | | | Taxes w/Current Exemptions: | N/A | | |
| | | | | Taxes w/o Exemptions: | N/A | | |
Improvement / Building
| Improvement #1: | Residential Bldg | State Code: | 11 | 1924.0 sqft | Value: | $428,258 |
| Bathrooms (#): | 2 (FULL) | Bedrooms (#): | 3 | | Exterior Wall: | SI/ST | Fireplace: | SIN 2-GOOD | | Floor Construction: | FRAME | Foundation: | CONPR | | Heating/Cooling: | HPUMP | Inside Verify: | YES-FIX | | Roof Cover: | COMP |   |   |
|
| | Type | Description | Class CD | Sub Class CD | Year Built | Area |
| | MA | Main Area | 4- | 1S | 1979 | 1924.0 |
| | PATIO | House Patio | 4 | * | 1979 | 252.0 |
| | HCPOR | House Concrete Porch | 4 | * | 1979 | 198.0 |
| | HDECK | House Deck | 4 | * | 1979 | 357.0 |
| | GATT | House Attached Garage | 4 | 1S | 1979 | 440.0 |
| | BSMTF | House basement finished | 3 | * | 1979 | 665.6 |
| | CONCD | Concrete Drive | 4 | * | 1979 | 500.0 |
| | BSMTU | House basement unfinished | 3 | * | 1979 | 166.4 |
Sketch
Property Image
Land
| 1 | 3334-1165L | Fair to Avg Water View Lots | 0.0000 | 0.00 | 0.00 | 0.00 | 1.00 | $136,500 | $0 |
Roll Value History
| 2025 | N/A | N/A | N/A | N/A | N/A |
| 2024 | $428,258 | $136,500 | $0 | $564,758 | $564,758 |
| 2023 | $410,414 | $125,000 | $0 | $535,414 | $535,414 |
| 2022 | $392,570 | $120,000 | $0 | $512,570 | $512,570 |
| 2021 | $320,261 | $104,000 | $0 | $424,261 | $424,261 |
Deed and Sales History
| 1 | 09/26/2022 | PRD | Personal Representatives Deed | EVELYN W GRAY | RICHARD TSO & BRAD LICHTENSTEIN | | | $562,500.00 | 139904 | |
| 2 | 08/11/2009 | WD | Warranty Deed | GRAY ESTATE, EDWARD N | GRAY, EVELYN W | 0 | 0 | $0.00 | 113241 | 0 |
Payout Agreement
| No payout information available.. |