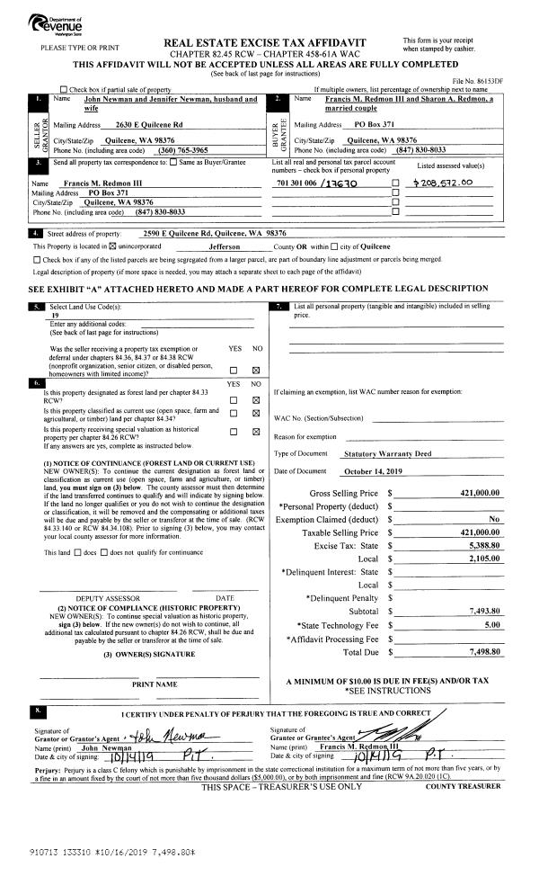
Property
Account |
| Property ID: | 40645 | Abbreviated Legal Description: | PORT LUDLOW NO 2 AREA 3 LOT 194 |
| Parcel # / Geo ID: | 990603194 | Agent Code: | |
| Type: | Real | | |
| Tax Area: | 0213 - 1-49F1E1H2L1 | Land Use Code | 11 |
| Open Space: | N | DFL | N |
| Historic Property: | N | Remodel Property: | N |
| Multi-Family Redevelopment: | N | | |
| Township: | 28N | Section: | 9 |
| Range: | 1E |
Location |
| Address: | 90 PATHFINDER LN PORT LUDLOW, WA 98365 | Mapsco: | 112/010 |
| Neighborhood: | PORT LUDLOW #2 AREA 3 (SEWER AVAILABLE TO ALL LOTS) | Map ID: | |
| Neighborhood CD: | 3334 |
Owner |
| Name: | DANIEL J & KATHLEEN H MCNULTY | Owner ID: | 102846 |
| Mailing Address: | 302 ALVERSON BLVD EVERETT, WA 98201-1006 | % Ownership: | 100.0000000000% |
| | | Exemptions: | |
Pay Tax Due
There is currently No Amount Due on this property.
Taxes and Assessment Details
Property Tax Information as of
10/24/2025
Click on "Statement Details" to expand or collapse a tax statement.
* Please enter a valid date ** Please enter a valid date *
Statement Details |
| | TOTAL: | $0.00 | $0.00 | $0.00 | $0.00 | $0.00 | $0.00 |
|
| | $0.00 | $0.00 | $0.00 | $0.00 | $0.00 | $0.00 |
Values
| (+) Improvement Homesite Value: | + | $0 | |
| (+) Improvement Non-Homesite Value: | + | $454,620 | |
| (+) Land Homesite Value: | + | $0 | |
| (+) Land Non-Homesite Value: | + | $183,750 | |
| (+) Curr Use (HS): | + | $0 | $0 |
| (+) Curr Use (NHS): | + | $0 | $0 |
| | | -------------------------- | |
| (=) Market Value: | = | $638,370 | |
| (–) Productivity Loss: | – | $0 | |
| | | -------------------------- | |
| (=) Subtotal: | = | $638,370 | |
| (+) Senior Appraised Value: | + | $0 | |
| (+) Non-Senior Appraised Value: | + | $638,370 | |
| | | -------------------------- | |
| (=) Total Appraised Value: | = | $638,370 | |
| (–) Senior Exemption Loss: | – | $0 | |
| (–) Exemption Loss: | – | $0 | |
| | | -------------------------- | |
| (=) Taxable Value: | = | $638,370 | |
Taxing Jurisdiction
| Owner: | DANIEL J & KATHLEEN H MCNULTY | | |
| % Ownership: | 100.0000000000% | | |
| Total Value: | N/A | | |
| Tax Area: | 0213 - 1-49F1E1H2L1 |
| CE | COUNTY CURRENT EXPENSE | N/A | N/A | N/A | N/A | | |
| CNTYDD | DEVELOPMENTAL DISABILITIES | N/A | N/A | N/A | N/A | | |
| CNTYVET | VETERANS RELIEF | N/A | N/A | N/A | N/A | | |
| MENTAL | MENTAL HEALTH | N/A | N/A | N/A | N/A | | |
| ROADS | COUNTY ROADS | N/A | N/A | N/A | N/A | | |
| ROADSCU | COUNTY ROADS TO CUR EXP | N/A | N/A | N/A | N/A | | |
| HOSP2CASH | HOSP DIST #2 GENERAL | N/A | N/A | N/A | N/A | | |
| SCH49CP | SCHOOL DIST #49 CAP PROJ | N/A | N/A | N/A | N/A | | |
| SCH49MO | SCHOOL DIST #49 EP & O | N/A | N/A | N/A | N/A | | |
| CONSERVE | CONSERVATION FUTURES | N/A | N/A | N/A | N/A | | |
| EMS1 | FIRE DIST #1 EMS | N/A | N/A | N/A | N/A | | |
| FD1 | FIRE DIST #1 GENERAL | N/A | N/A | N/A | N/A | | |
| LIB1 | LIBRARY DIST #1 GENERAL | N/A | N/A | N/A | N/A | | |
| PORTPT | PORT OF PT GENERAL | N/A | N/A | N/A | N/A | | |
| PORTPTIDD | PORT OF PT IDD 2019 | N/A | N/A | N/A | N/A | | |
| PUD1 | PUD #1 GENERAL | N/A | N/A | N/A | N/A | | |
| STATE | STATE SCHOOL PART 1 | N/A | N/A | N/A | N/A | | |
| STATE2 | STATE SCHOOL PART 2 | N/A | N/A | N/A | N/A | | |
| | Total Tax Rate: | N/A | | | | | |
| | | | | Taxes w/Current Exemptions: | N/A | | |
| | | | | Taxes w/o Exemptions: | N/A | | |
Improvement / Building
| Improvement #1: | Residential Bldg | State Code: | 11 | 1257.0 sqft | Value: | $454,620 |
| Bathrooms (#): | 1 (FULL) | Bedrooms (#): | 2 | | Exterior Wall: | SI/ST | Fireplace: | WD ST-AVG | | Floor Construction: | FRAME | Foundation: | CONPR | | Heating/Cooling: | F/A | Inside Verify: | YES-FIX | | Roof Cover: | COMP |   |   |
|
| | Type | Description | Class CD | Sub Class CD | Year Built | Area |
| | MA | Main Area | 4+ | 1S | 1979 | 1257.0 |
| | HDECK | House Deck | 5 | * | 1979 | 240.0 |
| | GATT | House Attached Garage | 4 | 1S | 1979 | 550.0 |
| | BSMTF | House basement finished | 4 | * | 1979 | 752.0 |
| | CONCD | Concrete Drive | 4 | * | 1979 | 500.0 |
| | BSMTU | House basement unfinished | 4 | * | 1979 | 250.0 |
Sketch
Property Image
Land
| 1 | 3334-1145L | Good Water View Lots | 0.0000 | 0.00 | 0.00 | 0.00 | 1.00 | $183,750 | $0 |
Roll Value History
| 2025 | N/A | N/A | N/A | N/A | N/A |
| 2024 | $454,620 | $183,750 | $0 | $638,370 | $638,370 |
| 2023 | $435,678 | $170,000 | $0 | $605,678 | $605,678 |
| 2022 | $416,735 | $165,000 | $0 | $581,735 | $581,735 |
| 2021 | $363,087 | $143,000 | $0 | $506,087 | $506,087 |
Deed and Sales History
| 1 | 06/09/2020 | SWD | Statutory Warranty Deed | WALTON R SMITH | DANIEL J & KATHLEEN H MCNULTY | | | $527,500.00 | 134489 | |
| 2 | 05/03/2012 | SWD | Statutory Warranty Deed | JACKLING, RICHARD/SANDRA | SMITH, WALTON RAMSAY/ANNE | 0 | 0 | $289,000.00 | 117567 | 0 |
Payout Agreement
| No payout information available.. |