Property
Account |
| Property ID: | 40718 | Abbreviated Legal Description: | PORT LUDLOW NO. 3 31 |
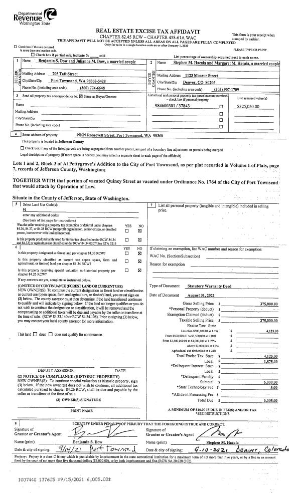
| Parcel # / Geo ID: | 990700031 | Agent Code: | |
| Type: | Real | | |
| Tax Area: | 0213 - 1-49F1E1H2L1 | Land Use Code | 11 |
| Open Space: | N | DFL | N |
| Historic Property: | N | Remodel Property: | N |
| Multi-Family Redevelopment: | N | | |
| Township: | 28N | Section: | 8 |
| Range: | 1E |
Location |
| Address: | 61 BARQUE LN PORT LUDLOW, WA 98365 | Mapsco: | 113/031 |
| Neighborhood: | PORT LUDLOW #3 & #4 (ALL) (SEWER AVAILABLE TO ALL LOTS) | Map ID: | |
| Neighborhood CD: | 3335 |
Owner |
| Name: | ROBERT V BERTOIA TRSTEE | Owner ID: | 11458 |
| Mailing Address: | CONSTANCE NORMAN TRUSTEE BERTOIA NORMAN TRUST 61 BARQUE LN PORT LUDLOW, WA 98365-9729 | % Ownership: | 100.0000000000% |
| | | Exemptions: | |
Pay Tax Due
There is currently No Amount Due on this property.
Taxes and Assessment Details
Property Tax Information as of
10/24/2025
Click on "Statement Details" to expand or collapse a tax statement.
* Please enter a valid date ** Please enter a valid date *
Statement Details |
| | TOTAL: | $0.00 | $0.00 | $0.00 | $0.00 | $0.00 | $0.00 |
|
| | $0.00 | $0.00 | $0.00 | $0.00 | $0.00 | $0.00 |
Values
| (+) Improvement Homesite Value: | + | $0 | |
| (+) Improvement Non-Homesite Value: | + | $665,932 | |
| (+) Land Homesite Value: | + | $0 | |
| (+) Land Non-Homesite Value: | + | $104,500 | |
| (+) Curr Use (HS): | + | $0 | $0 |
| (+) Curr Use (NHS): | + | $0 | $0 |
| | | -------------------------- | |
| (=) Market Value: | = | $770,432 | |
| (–) Productivity Loss: | – | $0 | |
| | | -------------------------- | |
| (=) Subtotal: | = | $770,432 | |
| (+) Senior Appraised Value: | + | $0 | |
| (+) Non-Senior Appraised Value: | + | $770,432 | |
| | | -------------------------- | |
| (=) Total Appraised Value: | = | $770,432 | |
| (–) Senior Exemption Loss: | – | $0 | |
| (–) Exemption Loss: | – | $0 | |
| | | -------------------------- | |
| (=) Taxable Value: | = | $770,432 | |
Taxing Jurisdiction
| Owner: | ROBERT V BERTOIA TRSTEE | | |
| % Ownership: | 100.0000000000% | | |
| Total Value: | N/A | | |
| Tax Area: | 0213 - 1-49F1E1H2L1 |
| CE | COUNTY CURRENT EXPENSE | N/A | N/A | N/A | N/A | | |
| CNTYDD | DEVELOPMENTAL DISABILITIES | N/A | N/A | N/A | N/A | | |
| CNTYVET | VETERANS RELIEF | N/A | N/A | N/A | N/A | | |
| MENTAL | MENTAL HEALTH | N/A | N/A | N/A | N/A | | |
| ROADS | COUNTY ROADS | N/A | N/A | N/A | N/A | | |
| ROADSCU | COUNTY ROADS TO CUR EXP | N/A | N/A | N/A | N/A | | |
| HOSP2CASH | HOSP DIST #2 GENERAL | N/A | N/A | N/A | N/A | | |
| SCH49CP | SCHOOL DIST #49 CAP PROJ | N/A | N/A | N/A | N/A | | |
| SCH49MO | SCHOOL DIST #49 EP & O | N/A | N/A | N/A | N/A | | |
| CONSERVE | CONSERVATION FUTURES | N/A | N/A | N/A | N/A | | |
| EMS1 | FIRE DIST #1 EMS | N/A | N/A | N/A | N/A | | |
| FD1 | FIRE DIST #1 GENERAL | N/A | N/A | N/A | N/A | | |
| LIB1 | LIBRARY DIST #1 GENERAL | N/A | N/A | N/A | N/A | | |
| PORTPT | PORT OF PT GENERAL | N/A | N/A | N/A | N/A | | |
| PORTPTIDD | PORT OF PT IDD 2019 | N/A | N/A | N/A | N/A | | |
| PUD1 | PUD #1 GENERAL | N/A | N/A | N/A | N/A | | |
| STATE | STATE SCHOOL PART 1 | N/A | N/A | N/A | N/A | | |
| STATE2 | STATE SCHOOL PART 2 | N/A | N/A | N/A | N/A | | |
| | Total Tax Rate: | N/A | | | | | |
| | | | | Taxes w/Current Exemptions: | N/A | | |
| | | | | Taxes w/o Exemptions: | N/A | | |
Improvement / Building
| Improvement #1: | Residential Bldg | State Code: | 11 | 2372.0 sqft | Value: | $665,932 |
| Bathrooms (#): | 2 (FULL) | Bedrooms (#): | 4 | | Exterior Wall: | SI/ST | Fireplace: | SIN 1-GOOD | | Floor Construction: | FRAME | Foundation: | CONPR | | Heating/Cooling: | HPUMP | Roof Cover: | COMP |
|
| | Type | Description | Class CD | Sub Class CD | Year Built | Area |
| | MA | Main Area | 5- | 1S | 2006 | 2372.0 |
| | HCPOR | House Concrete Porch | 4 | * | 2006 | 458.0 |
| | HDECK | House Deck | 4 | * | 2006 | 322.0 |
| | GATT | House Attached Garage | 4 | 1S | 2006 | 462.0 |
| | OTHER | Other | * | * | 2006 | 0.0 |
| | CONCD | Concrete Drive | 4 | * | 2006 | 1953.0 |
Sketch
Property Image
Land
| 1 | 3335-1185L | No View Lots | 0.0000 | 0.00 | 0.00 | 0.00 | 1.00 | $104,500 | $0 |
Roll Value History
| 2025 | N/A | N/A | N/A | N/A | N/A |
| 2024 | $665,932 | $99,750 | $0 | $765,682 | $765,682 |
| 2023 | $638,184 | $90,000 | $0 | $728,184 | $728,184 |
| 2022 | $610,437 | $85,000 | $0 | $695,437 | $695,437 |
| 2021 | $574,165 | $58,500 | $0 | $632,665 | $632,665 |
Deed and Sales History
| 1 | 12/09/2011 | SWD | Statutory Warranty Deed | BERTOIA TRSTEE, ROBERT V | BERTOIA TRSTEE, ROBERT V BERTO | 0 | 0 | $0.00 | 116901 | 0 |
| 2 | 01/16/2008 | WD | Warranty Deed | BERTOIA, ROBERT V | BERTOIA, ROBERT V TRUSTEE OF T | 0 | 0 | $0.00 | 110733 | 0 |
| 3 | 09/27/2006 | SWD | Statutory Warranty Deed | SHIREWOOD CORPORATION | BERTOIA, ROBERT V | 0 | 0 | $524,900.00 | 107780 | 0 |
| 4 | 02/21/2006 | QCD | Quit Claim Deed | MORGAN, MELINDA | SHIREWOOD CORP | 0 | 0 | $0.00 | 106070 | 0 |
| 5 | 02/15/2005 | SWD | Statutory Warranty Deed | SCHMIDT, PAUL A/MARY E | MORGAN, MELINDA | 0 | 0 | $77,000.00 | 102814 | 0 |
| 6 | 05/10/2001 | SWD | Statutory Warranty Deed | SURACI, J MICHAEL/ANDREA | SCHMIDT, PAUL A/MARY E | 0 | 0 | $15,000.00 | 92167 | 0 |
Payout Agreement
| No payout information available.. |