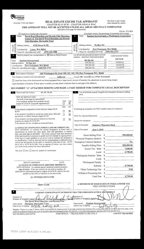
Property
Account |
| Property ID: | 40768 | Abbreviated Legal Description: | PORT LUDLOW NO. 3 81 |
| Parcel # / Geo ID: | 990700081 | Agent Code: | |
| Type: | Real | | |
| Tax Area: | 0213 - 1-49F1E1H2L1 | Land Use Code | 11 |
| Open Space: | N | DFL | N |
| Historic Property: | N | Remodel Property: | N |
| Multi-Family Redevelopment: | N | | |
| Township: | 28N | Section: | 8 |
| Range: | 1E |
Location |
| Address: | 20 KETCH LN PORT LUDLOW, WA 98365 | Mapsco: | 114/037 |
| Neighborhood: | PORT LUDLOW #3 & #4 (ALL) (SEWER AVAILABLE TO ALL LOTS) | Map ID: | |
| Neighborhood CD: | 3335 |
Owner |
| Name: | CHERYL A SHAW LIVING TRUST | Owner ID: | 113149 |
| Mailing Address: | CHERYL A SHAW TRUSTEE PO BOX 337 CHIMACUM, WA 98325-0337 | % Ownership: | 100.0000000000% |
| | | Exemptions: | |
Pay Tax Due
There is currently No Amount Due on this property.
Taxes and Assessment Details
Property Tax Information as of
10/24/2025
Click on "Statement Details" to expand or collapse a tax statement.
* Please enter a valid date ** Please enter a valid date *
Statement Details |
| | TOTAL: | $0.00 | $0.00 | $0.00 | $0.00 | $0.00 | $0.00 |
|
| | $0.00 | $0.00 | $0.00 | $0.00 | $0.00 | $0.00 |
Values
| (+) Improvement Homesite Value: | + | $0 | |
| (+) Improvement Non-Homesite Value: | + | $193,915 | |
| (+) Land Homesite Value: | + | $0 | |
| (+) Land Non-Homesite Value: | + | $104,500 | |
| (+) Curr Use (HS): | + | $0 | $0 |
| (+) Curr Use (NHS): | + | $0 | $0 |
| | | -------------------------- | |
| (=) Market Value: | = | $298,415 | |
| (–) Productivity Loss: | – | $0 | |
| | | -------------------------- | |
| (=) Subtotal: | = | $298,415 | |
| (+) Senior Appraised Value: | + | $0 | |
| (+) Non-Senior Appraised Value: | + | $298,415 | |
| | | -------------------------- | |
| (=) Total Appraised Value: | = | $298,415 | |
| (–) Senior Exemption Loss: | – | $0 | |
| (–) Exemption Loss: | – | $0 | |
| | | -------------------------- | |
| (=) Taxable Value: | = | $298,415 | |
Taxing Jurisdiction
| Owner: | CHERYL A SHAW LIVING TRUST | | |
| % Ownership: | 100.0000000000% | | |
| Total Value: | N/A | | |
| Tax Area: | 0213 - 1-49F1E1H2L1 |
| CE | COUNTY CURRENT EXPENSE | N/A | N/A | N/A | N/A | | |
| CNTYDD | DEVELOPMENTAL DISABILITIES | N/A | N/A | N/A | N/A | | |
| CNTYVET | VETERANS RELIEF | N/A | N/A | N/A | N/A | | |
| MENTAL | MENTAL HEALTH | N/A | N/A | N/A | N/A | | |
| ROADS | COUNTY ROADS | N/A | N/A | N/A | N/A | | |
| ROADSCU | COUNTY ROADS TO CUR EXP | N/A | N/A | N/A | N/A | | |
| HOSP2CASH | HOSP DIST #2 GENERAL | N/A | N/A | N/A | N/A | | |
| SCH49CP | SCHOOL DIST #49 CAP PROJ | N/A | N/A | N/A | N/A | | |
| SCH49MO | SCHOOL DIST #49 EP & O | N/A | N/A | N/A | N/A | | |
| CONSERVE | CONSERVATION FUTURES | N/A | N/A | N/A | N/A | | |
| EMS1 | FIRE DIST #1 EMS | N/A | N/A | N/A | N/A | | |
| FD1 | FIRE DIST #1 GENERAL | N/A | N/A | N/A | N/A | | |
| LIB1 | LIBRARY DIST #1 GENERAL | N/A | N/A | N/A | N/A | | |
| PORTPT | PORT OF PT GENERAL | N/A | N/A | N/A | N/A | | |
| PORTPTIDD | PORT OF PT IDD 2019 | N/A | N/A | N/A | N/A | | |
| PUD1 | PUD #1 GENERAL | N/A | N/A | N/A | N/A | | |
| STATE | STATE SCHOOL PART 1 | N/A | N/A | N/A | N/A | | |
| STATE2 | STATE SCHOOL PART 2 | N/A | N/A | N/A | N/A | | |
| | Total Tax Rate: | N/A | | | | | |
| | | | | Taxes w/Current Exemptions: | N/A | | |
| | | | | Taxes w/o Exemptions: | N/A | | |
Improvement / Building
| Improvement #1: | Residential Bldg | State Code: | 11 | 1009.0 sqft | Value: | $193,915 |
| Bathrooms (#): | 1 (FULL) | Bedrooms (#): | 2 | | Exterior Wall: | SI/ST | Fireplace: | WD ST-AVG | | Floor Construction: | FRAME | Foundation: | CONPR | | Heating/Cooling: | ELBB | Roof Cover: | COMP |
|
| | Type | Description | Class CD | Sub Class CD | Year Built | Area |
| | MA | Main Area | 4 | 1S | 1979 | 1009.0 |
| | HDECK | House Deck | 3 | * | 1979 | 396.0 |
Sketch
Property Image
Land
| 1 | 3335-1185L | No View Lots | 0.0000 | 0.00 | 0.00 | 0.00 | 1.00 | $104,500 | $0 |
Roll Value History
| 2025 | N/A | N/A | N/A | N/A | N/A |
| 2024 | $193,915 | $99,750 | $0 | $293,665 | $293,665 |
| 2023 | $188,612 | $90,000 | $0 | $278,612 | $278,612 |
| 2022 | $180,411 | $85,000 | $0 | $265,411 | $265,411 |
| 2021 | $162,565 | $58,500 | $0 | $221,065 | $221,065 |
Deed and Sales History
| 1 | 08/18/2025 | QCD | Quit Claim Deed | CHERYL A SHAW | CHERYL A SHAW LIVING TRUST | | | | 144765 | |
| 2 | 05/31/2023 | QCD | Quit Claim Deed | MARY L GORDON | CHERYL A SHAW | | | | 140995 | |
| 3 | 10/02/2018 | SWD | Statutory Warranty Deed | BRADLEY R & PATRICIA J HUNTER | CHERYL A SHAW | | | $224,900.00 | 131159 | |
| 4 | 09/13/2016 | SWD | Statutory Warranty Deed | STEVE S GAUTESTAD | BRADLEY R & PATRICIA J HUNTER | | | $170,000.00 | 126276 | |
| 5 | 04/03/1998 | SWD | Statutory Warranty Deed | INTERWEST BANK | GAUTESTAD, STEVE S/GAIL M | 0 | 0 | $78,900.00 | 84168 | 0 |
| 6 | 08/01/1997 | TRED | Trustee Deed | BEEKSMA, EDWARD C/TRUSTEE | INTERWEST BANK | 0 | 0 | $0.00 | 82465 | 0 |
Payout Agreement
| No payout information available.. |