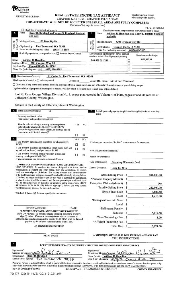
Property
Account |
| Property ID: | 41643 | Abbreviated Legal Description: | ROSEWIND - PLANNED UNIT DEVLPMNT PARCEL 4 |
| Parcel # / Geo ID: | 991100004 | Agent Code: | |
| Type: | Real | | |
| Tax Area: | 0110 - C-50F1E1H2 | Land Use Code | 11 |
| Open Space: | N | DFL | N |
| Historic Property: | N | Remodel Property: | N |
| Multi-Family Redevelopment: | N | | |
| Township: | 30N | Section: | 3 |
| Range: | 1W |
Location |
| Address: | 3310 KUHN ST PORT TOWNSEND, WA 98368 | Mapsco: | 128/045 |
| Neighborhood: | LITTLEFIELD,MOORES,PT ECO,ROSEWIND,TIBBALS 2ND,WAYSONS+SP AC | Map ID: | |
| Neighborhood CD: | 6090 |
Owner |
| Name: | MADELINE L NELSON | Owner ID: | 102515 |
| Mailing Address: | MICHAEL F CARDER 3310 KUHN ST PORT TOWNSEND, WA 98368-1832 | % Ownership: | 100.0000000000% |
| | | Exemptions: | |
Pay Tax Due
There is currently No Amount Due on this property.
Taxes and Assessment Details
Property Tax Information as of
10/24/2025
Click on "Statement Details" to expand or collapse a tax statement.
* Please enter a valid date ** Please enter a valid date *
Statement Details |
| | TOTAL: | $0.00 | $0.00 | $0.00 | $0.00 | $0.00 | $0.00 |
|
| | $0.00 | $0.00 | $0.00 | $0.00 | $0.00 | $0.00 |
Values
| (+) Improvement Homesite Value: | + | $0 | |
| (+) Improvement Non-Homesite Value: | + | $638,212 | |
| (+) Land Homesite Value: | + | $0 | |
| (+) Land Non-Homesite Value: | + | $166,000 | |
| (+) Curr Use (HS): | + | $0 | $0 |
| (+) Curr Use (NHS): | + | $0 | $0 |
| | | -------------------------- | |
| (=) Market Value: | = | $804,212 | |
| (–) Productivity Loss: | – | $0 | |
| | | -------------------------- | |
| (=) Subtotal: | = | $804,212 | |
| (+) Senior Appraised Value: | + | $0 | |
| (+) Non-Senior Appraised Value: | + | $804,212 | |
| | | -------------------------- | |
| (=) Total Appraised Value: | = | $804,212 | |
| (–) Senior Exemption Loss: | – | $0 | |
| (–) Exemption Loss: | – | $0 | |
| | | -------------------------- | |
| (=) Taxable Value: | = | $804,212 | |
Taxing Jurisdiction
| Owner: | MADELINE L NELSON | | |
| % Ownership: | 100.0000000000% | | |
| Total Value: | N/A | | |
| Tax Area: | 0110 - C-50F1E1H2 |
| CE | COUNTY CURRENT EXPENSE | N/A | N/A | N/A | N/A | | |
| CNTYDD | DEVELOPMENTAL DISABILITIES | N/A | N/A | N/A | N/A | | |
| CNTYVET | VETERANS RELIEF | N/A | N/A | N/A | N/A | | |
| MENTAL | MENTAL HEALTH | N/A | N/A | N/A | N/A | | |
| PTGEN | CITY OF PT GENERAL | N/A | N/A | N/A | N/A | | |
| PTLLL | CITY OF PT - LIBRARY LID LIFT | N/A | N/A | N/A | N/A | | |
| PTMVBOND | CITY OF PT MV BOND | N/A | N/A | N/A | N/A | | |
| HOSP2CASH | HOSP DIST #2 GENERAL | N/A | N/A | N/A | N/A | | |
| SCH50BOND | SCHOOL DIST #50 BOND 2016 | N/A | N/A | N/A | N/A | | |
| SCH50CP | SCHOOL DIST #50 CAP PROJ | N/A | N/A | N/A | N/A | | |
| SCH50MO | SCHOOL DIST #50 EP & O | N/A | N/A | N/A | N/A | | |
| CONSERVE | CONSERVATION FUTURES | N/A | N/A | N/A | N/A | | |
| EMS1 | FIRE DIST #1 EMS | N/A | N/A | N/A | N/A | | |
| FD1 | FIRE DIST #1 GENERAL | N/A | N/A | N/A | N/A | | |
| PORTPT | PORT OF PT GENERAL | N/A | N/A | N/A | N/A | | |
| PORTPTIDD | PORT OF PT IDD 2019 | N/A | N/A | N/A | N/A | | |
| PUD1 | PUD #1 GENERAL | N/A | N/A | N/A | N/A | | |
| STATE | STATE SCHOOL PART 1 | N/A | N/A | N/A | N/A | | |
| STATE2 | STATE SCHOOL PART 2 | N/A | N/A | N/A | N/A | | |
| | Total Tax Rate: | N/A | | | | | |
| | | | | Taxes w/Current Exemptions: | N/A | | |
| | | | | Taxes w/o Exemptions: | N/A | | |
Improvement / Building
| Improvement #1: | Residential Bldg | State Code: | 11 | 1640.0 sqft | Value: | $481,448 |
| Bathrooms (#): | 2 (FULL) | Bedrooms (#): | 3 | | Exterior Wall: | SI/ST | Fireplace: | SIN 1-GOOD | | Floor Construction: | FRAME | Foundation: | CONPR | | Heating/Cooling: | HTWTR | Roof Cover: | TILE |
|
| | Type | Description | Class CD | Sub Class CD | Year Built | Area |
| | MA | Main Area | 5- | 1S | 1995 | 1640.0 |
| | HWPOR | House Wood Porch | 5 | * | 1995 | 237.5 |
| | HDECK | House Deck | 5 | * | 1995 | 371.8 |
| | CONCD | Concrete Drive | 5 | * | 1995 | 700.0 |
| | SHED | Shed (Table Not Dep) | 4 | * | 1995 | 96.0 |
| Improvement #2: | Residential Bldg | State Code: | 11 | 0.0 sqft | Value: | $156,764 |
Sketch
Property Image
Land
| 1 | 6090-1172L | Rosewind PUD Large w/Amenities/Common Areas | 0.0000 | 0.00 | 0.00 | 0.00 | 1.00 | $166,000 | $0 |
Roll Value History
| 2025 | N/A | N/A | N/A | N/A | N/A |
| 2024 | $600,368 | $168,000 | $0 | $768,368 | $768,368 |
| 2023 | $550,338 | $155,000 | $0 | $705,338 | $705,338 |
| 2022 | $550,338 | $150,000 | $0 | $700,338 | $700,338 |
| 2021 | $455,201 | $138,600 | $0 | $593,801 | $593,801 |
Deed and Sales History
| 1 | 04/06/2020 | SWD | Statutory Warranty Deed | STEPHEN M IMMERMAN | MADELINE L NELSON | | | $610,000.00 | 134206 | |
| 2 | 01/30/2017 | SWD | Statutory Warranty Deed | JENNIFER R PACK | STEPHEN M IMMERMAN | | | $440,000.00 | 127075 | |
| 3 | 09/08/2010 | QCD | Quit Claim Deed | PACK, JENNIFER RUTH BARNE | PACK, JENNIFER R | 0 | 0 | $0.00 | 114850 | 0 |
| 4 | 08/20/2002 | QCD | Quit Claim Deed | NORMA J CORR TRUST | JENNIFER RUTH BARNES PACK, AS | 0 | 0 | $0.00 | 95345 | 0 |
| 5 | 01/17/1995 | QCD | Quit Claim Deed | CORR, NORMA | CORR, NORMA/TRUST | 0 | 0 | $0.00 | 76070 | 0 |
| 6 | 11/04/1994 | SWD | Statutory Warranty Deed | ROSEWIND INC | CORR, NORMA | 0 | 0 | $0.00 | 75512 | 0 |
| 7 | 10/27/1994 | QCD | Quit Claim Deed | CORR, NORMA | CORR, NORMA JANE/TRUST | 0 | 0 | $0.00 | 75549 | 0 |
| 8 | 08/17/1994 | SWD | Statutory Warranty Deed | ROSEWIND INC | CORR, NORMA | 0 | 0 | $38,000.00 | 74967 | 0 |
Payout Agreement
| No payout information available.. |