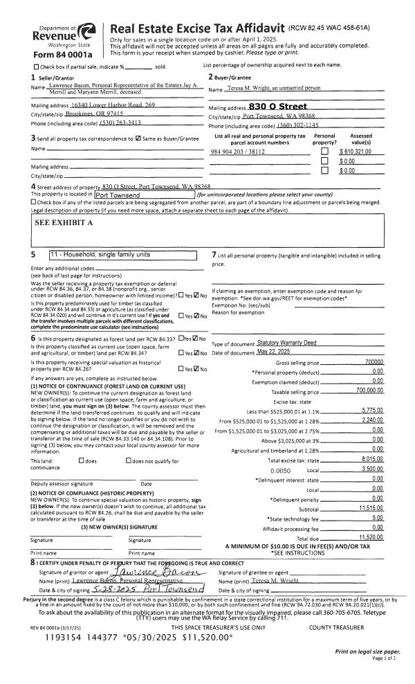
Property
Account |
| Property ID: | 41672 | Abbreviated Legal Description: | QUILCENE BLK 1 LOTS 17(W1/2), 18, 19 & 20 (ALL) |
| Parcel # / Geo ID: | 991200106 | Agent Code: | |
| Type: | Real | | |
| Tax Area: | 0320 - 1-48F2E2H2C2L1Z2 | Land Use Code | 11 |
| Open Space: | N | DFL | N |
| Historic Property: | N | Remodel Property: | N |
| Multi-Family Redevelopment: | N | | |
| Township: | 27N | Section: | 24 |
| Range: | 2W |
Location |
| Address: | 11 1 OF 2 LEADVILLE AVE QUILCENE, WA 98376 | Mapsco: | 106/109 |
| Neighborhood: | QUILCENE AND QUILCENE SUPPLEMENTAL LONG PLATS | Map ID: | |
| Neighborhood CD: | 2557 |
Owner |
| Name: | ERIC & MELANIE STURTEVANT | Owner ID: | 95533 |
| Mailing Address: | 11 LEADVILLE AVE QUILCENE, WA 98376-9638 | % Ownership: | 100.0000000000% |
| | | Exemptions: | |
Pay Tax Due
There is currently No Amount Due on this property.
Taxes and Assessment Details
Property Tax Information as of
10/24/2025
Click on "Statement Details" to expand or collapse a tax statement.
* Please enter a valid date ** Please enter a valid date *
Statement Details |
| | TOTAL: | $0.00 | $0.00 | $0.00 | $0.00 | $0.00 | $0.00 |
|
| | $0.00 | $0.00 | $0.00 | $0.00 | $0.00 | $0.00 |
Values
| (+) Improvement Homesite Value: | + | $0 | |
| (+) Improvement Non-Homesite Value: | + | $130,024 | |
| (+) Land Homesite Value: | + | $0 | |
| (+) Land Non-Homesite Value: | + | $115,000 | |
| (+) Curr Use (HS): | + | $0 | $0 |
| (+) Curr Use (NHS): | + | $0 | $0 |
| | | -------------------------- | |
| (=) Market Value: | = | $245,024 | |
| (–) Productivity Loss: | – | $0 | |
| | | -------------------------- | |
| (=) Subtotal: | = | $245,024 | |
| (+) Senior Appraised Value: | + | $0 | |
| (+) Non-Senior Appraised Value: | + | $245,024 | |
| | | -------------------------- | |
| (=) Total Appraised Value: | = | $245,024 | |
| (–) Senior Exemption Loss: | – | $0 | |
| (–) Exemption Loss: | – | $0 | |
| | | -------------------------- | |
| (=) Taxable Value: | = | $245,024 | |
Taxing Jurisdiction
| Owner: | ERIC & MELANIE STURTEVANT | | |
| % Ownership: | 100.0000000000% | | |
| Total Value: | N/A | | |
| Tax Area: | 0320 - 1-48F2E2H2C2L1Z2 |
| CE | COUNTY CURRENT EXPENSE | N/A | N/A | N/A | N/A | | |
| CNTYDD | DEVELOPMENTAL DISABILITIES | N/A | N/A | N/A | N/A | | |
| CNTYVET | VETERANS RELIEF | N/A | N/A | N/A | N/A | | |
| MENTAL | MENTAL HEALTH | N/A | N/A | N/A | N/A | | |
| ROADS | COUNTY ROADS | N/A | N/A | N/A | N/A | | |
| ROADSCU | COUNTY ROADS TO CUR EXP | N/A | N/A | N/A | N/A | | |
| HOSP2CASH | HOSP DIST #2 GENERAL | N/A | N/A | N/A | N/A | | |
| SCH48MO | SCHOOL DIST #48 EP & O | N/A | N/A | N/A | N/A | | |
| CEM2 | CEMETERY DIST #2 GENERAL | N/A | N/A | N/A | N/A | | |
| CONSERVE | CONSERVATION FUTURES | N/A | N/A | N/A | N/A | | |
| FD2 | FIRE DIST #2 GENERAL | N/A | N/A | N/A | N/A | | |
| LIB1 | LIBRARY DIST #1 GENERAL | N/A | N/A | N/A | N/A | | |
| PORTPT | PORT OF PT GENERAL | N/A | N/A | N/A | N/A | | |
| PORTPTIDD | PORT OF PT IDD 2019 | N/A | N/A | N/A | N/A | | |
| PUD1 | PUD #1 GENERAL | N/A | N/A | N/A | N/A | | |
| STATE | STATE SCHOOL PART 1 | N/A | N/A | N/A | N/A | | |
| STATE2 | STATE SCHOOL PART 2 | N/A | N/A | N/A | N/A | | |
| EMS2 | FIRE DIST #2 EMS | N/A | N/A | N/A | N/A | | |
| | Total Tax Rate: | N/A | | | | | |
| | | | | Taxes w/Current Exemptions: | N/A | | |
| | | | | Taxes w/o Exemptions: | N/A | | |
Improvement / Building
| Improvement #1: | Residential Bldg | State Code: | 11 | 816.0 sqft | Value: | $128,748 |
| Bathrooms (#): | 1 (FULL) | Bedrooms (#): | 2 | | Exterior Wall: | PL/T1 | Fireplace: | WD ST-GOOD | | Floor Construction: | FRAME | Foundation: | CONPR | | Heating/Cooling: | ELBB | Inside Verify: | NO | | Roof Cover: | METAL |   |   |
|
| | Type | Description | Class CD | Sub Class CD | Year Built | Area |
| | MA | Main Area | 3 | 1S | 1973 | 816.0 |
| | HCPOR | House Concrete Porch | 3 | * | 1973 | 114.0 |
| | HCPOR | House Concrete Porch | 3 | * | 1973 | 222.0 |
| | HWPOR | House Wood Porch | 3 | * | 1973 | 170.0 |
| | GATT | House Attached Garage | 3 | * | 1973 | 900.0 |
| Improvement #2: | Residential Bldg | State Code: | 11 | 667.0 sqft | Value: | $1,276 |
| Bathrooms (#): | 1 (FULL) | Bedrooms (#): | 2 | | Exterior Wall: | PL/T1 | Fireplace: | WD ST-GOOD | | Floor Construction: | FRAME | Foundation: | PO&BL | | Heating/Cooling: | ELBB | Inside Verify: | NO | | Roof Cover: | COMP |   |   |
|
| | Type | Description | Class CD | Sub Class CD | Year Built | Area |
| | MA | Main Area | 2+ | 1S | 0 | 667.0 |
| | SHED | Shed (Table Not Dep) | 4 | * | 0 | 80.0 |
Sketch
Property Image
Land
| 1 | 2557-1174L | Good Quality Lots Suitable for Bldg | 0.0000 | 0.00 | 0.00 | 0.00 | 1.00 | $13,800 | $0 |
| 2 | 2557-1173L | V Good Quality Lots Suitable for Bldg | 0.0000 | 0.00 | 0.00 | 0.00 | 2.00 | $101,200 | $0 |
Roll Value History
| 2025 | N/A | N/A | N/A | N/A | N/A |
| 2024 | $124,606 | $110,000 | $0 | $234,606 | $234,606 |
| 2023 | $119,188 | $94,500 | $0 | $213,688 | $213,688 |
| 2022 | $108,353 | $80,000 | $0 | $188,353 | $188,353 |
| 2021 | $89,733 | $67,100 | $0 | $156,833 | $156,833 |
Deed and Sales History
| 1 | 07/30/2025 | SWD | Statutory Warranty Deed | LAURA M MUNN | ERIC & MELANIE STURTEVANT | | | $240,000.00 | 144682 | |
| 2 | 12/18/2007 | SWD | Statutory Warranty Deed | WARD, CHARLES N | MUNN, LAURA M | 0 | 0 | $175,000.00 | 110638 | 0 |
| 3 | 03/10/1997 | SWD | Statutory Warranty Deed | GRUVER, RAEONA J | WARD, CHARLES N | 0 | 0 | $35,000.00 | 81547 | 0 |
Payout Agreement
| No payout information available.. |