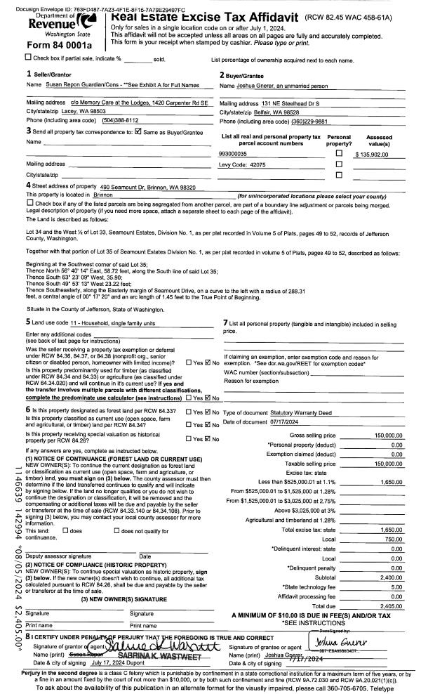
Property
Account |
| Property ID: | 42097 | Abbreviated Legal Description: | SEAMOUNT ESTATES DIV 1 LOT 57 |
| Parcel # / Geo ID: | 993000058 | Agent Code: | |
| Type: | Real | | |
| Tax Area: | 0441 - 1-46F4E4H2C1L1P2 | Land Use Code | 18 |
| Open Space: | N | DFL | N |
| Historic Property: | N | Remodel Property: | N |
| Multi-Family Redevelopment: | N | | |
| Township: | 25N | Section: | 30 |
| Range: | 2W |
Location |
| Address: | | Mapsco: | 029/003 |
| Neighborhood: | SEAMOUNT ESTATES DIVISIONS 1 - 4 & DUPPENTHALER SHORT PLAT | Map ID: | |
| Neighborhood CD: | 1285 |
Owner |
| Name: | SARAH E & ROBBY SHAFFER | Owner ID: | 111392 |
| Mailing Address: | 13756 93RD AVE NE KIRKLAND, WA 98034-1862 | % Ownership: | 100.0000000000% |
| | | Exemptions: | |
Pay Tax Due
There is currently No Amount Due on this property.
Taxes and Assessment Details
Property Tax Information as of
10/24/2025
Click on "Statement Details" to expand or collapse a tax statement.
* Please enter a valid date ** Please enter a valid date *
Statement Details |
| | TOTAL: | $0.00 | $0.00 | $0.00 | $0.00 | $0.00 | $0.00 |
|
| | $0.00 | $0.00 | $0.00 | $0.00 | $0.00 | $0.00 |
Values
| (+) Improvement Homesite Value: | + | $0 | |
| (+) Improvement Non-Homesite Value: | + | $5,026 | |
| (+) Land Homesite Value: | + | $0 | |
| (+) Land Non-Homesite Value: | + | $115,000 | |
| (+) Curr Use (HS): | + | $0 | $0 |
| (+) Curr Use (NHS): | + | $0 | $0 |
| | | -------------------------- | |
| (=) Market Value: | = | $120,026 | |
| (–) Productivity Loss: | – | $0 | |
| | | -------------------------- | |
| (=) Subtotal: | = | $120,026 | |
| (+) Senior Appraised Value: | + | $0 | |
| (+) Non-Senior Appraised Value: | + | $120,026 | |
| | | -------------------------- | |
| (=) Total Appraised Value: | = | $120,026 | |
| (–) Senior Exemption Loss: | – | $0 | |
| (–) Exemption Loss: | – | $0 | |
| | | -------------------------- | |
| (=) Taxable Value: | = | $120,026 | |
Taxing Jurisdiction
| Owner: | SARAH E & ROBBY SHAFFER | | |
| % Ownership: | 100.0000000000% | | |
| Total Value: | N/A | | |
| Tax Area: | 0441 - 1-46F4E4H2C1L1P2 |
| CE | COUNTY CURRENT EXPENSE | N/A | N/A | N/A | N/A | | |
| CNTYDD | DEVELOPMENTAL DISABILITIES | N/A | N/A | N/A | N/A | | |
| CNTYVET | VETERANS RELIEF | N/A | N/A | N/A | N/A | | |
| MENTAL | MENTAL HEALTH | N/A | N/A | N/A | N/A | | |
| ROADS | COUNTY ROADS | N/A | N/A | N/A | N/A | | |
| ROADSCU | COUNTY ROADS TO CUR EXP | N/A | N/A | N/A | N/A | | |
| HOSP2CASH | HOSP DIST #2 GENERAL | N/A | N/A | N/A | N/A | | |
| SCH46MO | SCHOOL DIST #46 EP & O | N/A | N/A | N/A | N/A | | |
| CEM1 | CEMETERY DIST #1 GENERAL | N/A | N/A | N/A | N/A | | |
| CONSERVE | CONSERVATION FUTURES | N/A | N/A | N/A | N/A | | |
| EMS4 | FIRE DIST #4 EMS | N/A | N/A | N/A | N/A | | |
| FD4 | FIRE DIST #4 GENERAL | N/A | N/A | N/A | N/A | | |
| FD4BOND | FIRE DIST #4 BOND 2019 | N/A | N/A | N/A | N/A | | |
| LIB1 | LIBRARY DIST #1 GENERAL | N/A | N/A | N/A | N/A | | |
| PORTPT | PORT OF PT GENERAL | N/A | N/A | N/A | N/A | | |
| PORTPTIDD | PORT OF PT IDD 2019 | N/A | N/A | N/A | N/A | | |
| PUD1 | PUD #1 GENERAL | N/A | N/A | N/A | N/A | | |
| STATE | STATE SCHOOL PART 1 | N/A | N/A | N/A | N/A | | |
| STATE2 | STATE SCHOOL PART 2 | N/A | N/A | N/A | N/A | | |
| | Total Tax Rate: | N/A | | | | | |
| | | | | Taxes w/Current Exemptions: | N/A | | |
| | | | | Taxes w/o Exemptions: | N/A | | |
Improvement / Building
| Improvement #1: | Residential Bldg | State Code: | 19 | 0.0 sqft | Value: | $5,026 |
Sketch
Property Image
Land
| 1 | 1285-1145L | Avg+ to Good Water View Lots (Div 1, 2, 3) | 0.0000 | 0.00 | 0.00 | 0.00 | 1.00 | $115,000 | $0 |
Roll Value History
| 2025 | N/A | N/A | N/A | N/A | N/A |
| 2024 | $4,816 | $105,000 | $0 | $109,816 | $109,816 |
| 2023 | $4,607 | $95,000 | $0 | $99,607 | $99,607 |
| 2022 | $4,188 | $90,000 | $0 | $94,188 | $94,188 |
| 2021 | $3,626 | $68,250 | $0 | $71,876 | $71,876 |
Deed and Sales History
| 1 | 07/19/2024 | QCD | Quit Claim Deed | SARAH E SHAFFER | SARAH E & ROBBY SHAFFER | | | | 143113 | |
| 2 | 05/17/2019 | PRD | Personal Representatives Deed | JOYCE A SULLIVAN | SARAH E SHAFFER | | | | 132399 | |
| 3 | 10/18/2012 | QCD | Quit Claim Deed | SULLIVAN TRSTEE, JOYCE A | SULLIVAN, JOYCE A | 0 | 0 | $0.00 | 118240 | 0 |
Payout Agreement
| No payout information available.. |