Property
Account |
| Property ID: | 42144 | Abbreviated Legal Description: | SEAMOUNT ESTATES DIV 2 LOT 28 |
| Parcel # / Geo ID: | 993200028 | Agent Code: | |
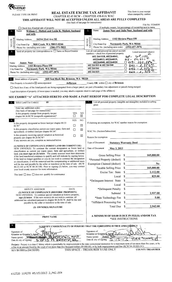
| Type: | Real | | |
| Tax Area: | 0441 - 1-46F4E4H2C1L1P2 | Land Use Code | 18 |
| Open Space: | N | DFL | N |
| Historic Property: | N | Remodel Property: | N |
| Multi-Family Redevelopment: | N | | |
| Township: | 25N | Section: | 29 |
| Range: | 2W |
Location |
| Address: | 161 KING DR BRINNON, WA 98320 | Mapsco: | 029/047 |
| Neighborhood: | SEAMOUNT ESTATES DIVISIONS 1 - 4 & DUPPENTHALER SHORT PLAT | Map ID: | |
| Neighborhood CD: | 1285 |
Owner |
| Name: | JAMES & RAMONA GENTRY FAMILY TRUST | Owner ID: | 111033 |
| Mailing Address: | JAMES & RAMONA GENTRY TRUSTEES PO BOX 153 SANTA MARGARITA, CA 93453-0153 | % Ownership: | 100.0000000000% |
| | | Exemptions: | |
Pay Tax Due
There is currently No Amount Due on this property.
Taxes and Assessment Details
Property Tax Information as of
10/24/2025
Click on "Statement Details" to expand or collapse a tax statement.
* Please enter a valid date ** Please enter a valid date *
Statement Details |
| | TOTAL: | $0.00 | $0.00 | $0.00 | $0.00 | $0.00 | $0.00 |
|
| | $0.00 | $0.00 | $0.00 | $0.00 | $0.00 | $0.00 |
Values
| (+) Improvement Homesite Value: | + | $0 | |
| (+) Improvement Non-Homesite Value: | + | $1,777 | |
| (+) Land Homesite Value: | + | $0 | |
| (+) Land Non-Homesite Value: | + | $92,000 | |
| (+) Curr Use (HS): | + | $0 | $0 |
| (+) Curr Use (NHS): | + | $0 | $0 |
| | | -------------------------- | |
| (=) Market Value: | = | $93,777 | |
| (–) Productivity Loss: | – | $0 | |
| | | -------------------------- | |
| (=) Subtotal: | = | $93,777 | |
| (+) Senior Appraised Value: | + | $0 | |
| (+) Non-Senior Appraised Value: | + | $93,777 | |
| | | -------------------------- | |
| (=) Total Appraised Value: | = | $93,777 | |
| (–) Senior Exemption Loss: | – | $0 | |
| (–) Exemption Loss: | – | $0 | |
| | | -------------------------- | |
| (=) Taxable Value: | = | $93,777 | |
Taxing Jurisdiction
| Owner: | JAMES & RAMONA GENTRY FAMILY TRUST | | |
| % Ownership: | 100.0000000000% | | |
| Total Value: | N/A | | |
| Tax Area: | 0441 - 1-46F4E4H2C1L1P2 |
| CE | COUNTY CURRENT EXPENSE | N/A | N/A | N/A | N/A | | |
| CNTYDD | DEVELOPMENTAL DISABILITIES | N/A | N/A | N/A | N/A | | |
| CNTYVET | VETERANS RELIEF | N/A | N/A | N/A | N/A | | |
| MENTAL | MENTAL HEALTH | N/A | N/A | N/A | N/A | | |
| ROADS | COUNTY ROADS | N/A | N/A | N/A | N/A | | |
| ROADSCU | COUNTY ROADS TO CUR EXP | N/A | N/A | N/A | N/A | | |
| HOSP2CASH | HOSP DIST #2 GENERAL | N/A | N/A | N/A | N/A | | |
| SCH46MO | SCHOOL DIST #46 EP & O | N/A | N/A | N/A | N/A | | |
| CEM1 | CEMETERY DIST #1 GENERAL | N/A | N/A | N/A | N/A | | |
| CONSERVE | CONSERVATION FUTURES | N/A | N/A | N/A | N/A | | |
| EMS4 | FIRE DIST #4 EMS | N/A | N/A | N/A | N/A | | |
| FD4 | FIRE DIST #4 GENERAL | N/A | N/A | N/A | N/A | | |
| FD4BOND | FIRE DIST #4 BOND 2019 | N/A | N/A | N/A | N/A | | |
| LIB1 | LIBRARY DIST #1 GENERAL | N/A | N/A | N/A | N/A | | |
| PORTPT | PORT OF PT GENERAL | N/A | N/A | N/A | N/A | | |
| PORTPTIDD | PORT OF PT IDD 2019 | N/A | N/A | N/A | N/A | | |
| PUD1 | PUD #1 GENERAL | N/A | N/A | N/A | N/A | | |
| STATE | STATE SCHOOL PART 1 | N/A | N/A | N/A | N/A | | |
| STATE2 | STATE SCHOOL PART 2 | N/A | N/A | N/A | N/A | | |
| | Total Tax Rate: | N/A | | | | | |
| | | | | Taxes w/Current Exemptions: | N/A | | |
| | | | | Taxes w/o Exemptions: | N/A | | |
Improvement / Building
| Improvement #1: | Residential Bldg | State Code: | 19 | 0.0 sqft | Value: | $1,777 |
Sketch
Property Image
Land
| 1 | 1285-1185L | No View or Some Pos. View (Div 1,2,3) | 0.0000 | 0.00 | 0.00 | 0.00 | 1.00 | $92,000 | $0 |
Roll Value History
| 2025 | N/A | N/A | N/A | N/A | N/A |
| 2024 | $1,703 | $84,000 | $0 | $85,703 | $85,703 |
| 2023 | $1,629 | $75,000 | $0 | $76,629 | $76,629 |
| 2022 | $1,481 | $55,000 | $0 | $56,481 | $56,481 |
| 2021 | $1,282 | $47,250 | $0 | $48,532 | $48,532 |
Deed and Sales History
| 1 | 06/19/2024 | SWD | Statutory Warranty Deed | DIANE E CURTIS-PAGE | JAMES & RAMONA GENTRY FAMILY TRUST | | | $110,000.00 | 142796 | |
| 2 | 06/27/2023 | QCD | Quit Claim Deed | WILLIAM A HANSEN REVOCABLE TRUST | DIANE E CURTIS-PAGE | | | | 141178 | |
| 3 | 05/22/2014 | SWD | Statutory Warranty Deed | WILLIAM A HANSEN | WILLIAM A HANSEN REVOCABLE TRUST | | | | 121380 | |
| 4 | 01/11/1996 | SWD | Statutory Warranty Deed | SCHOLES, JAMES & EVA | HANSEN, WILLIAM A | 0 | 0 | $0.00 | 80127 | 0 |
| 5 | 01/11/1996 | SWD | Statutory Warranty Deed | SCHOLES, JAMES/EVA M | HANSEN, WILLIAM A | 0 | 0 | $20,000.00 | 78788 | 0 |
Payout Agreement
| No payout information available.. |