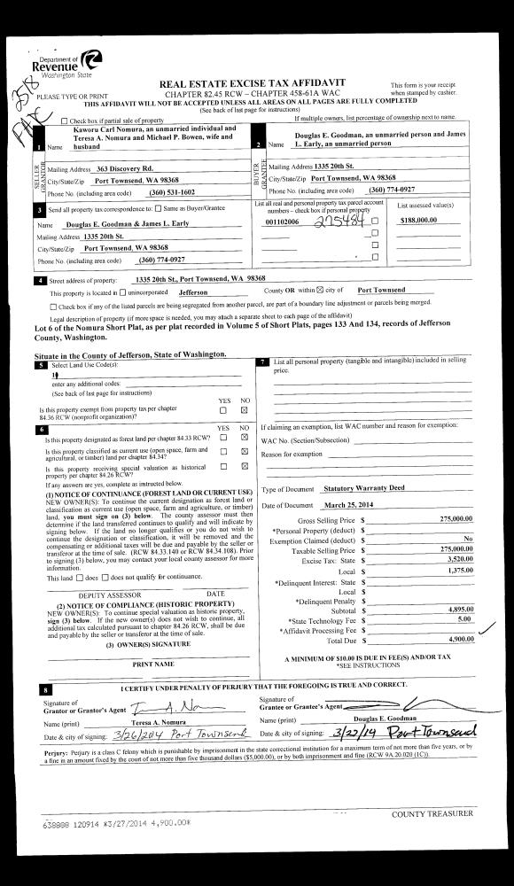
Property
Account |
| Property ID: | 42176 | Abbreviated Legal Description: | SEAMOUNT ESTATES DIV 3 LOT 19 |
| Parcel # / Geo ID: | 993400019 | Agent Code: | |
| Type: | Real | | |
| Tax Area: | 0441 - 1-46F4E4H2C1L1P2 | Land Use Code | 11 |
| Open Space: | N | DFL | N |
| Historic Property: | N | Remodel Property: | N |
| Multi-Family Redevelopment: | N | | |
| Township: | 25N | Section: | 31 |
| Range: | 2W |
Location |
| Address: | 108 TERRACE LN BRINNON, WA 98320 | Mapsco: | 030/019 |
| Neighborhood: | SEAMOUNT ESTATES DIVISIONS 1 - 4 & DUPPENTHALER SHORT PLAT | Map ID: | |
| Neighborhood CD: | 1285 |
Owner |
| Name: | BRANDON L BROWN | Owner ID: | 111511 |
| Mailing Address: | 2575 EDDY ST PORT TOWNSEND, WA 98368-5946 | % Ownership: | 100.0000000000% |
| | | Exemptions: | |
Pay Tax Due
There is currently No Amount Due on this property.
Taxes and Assessment Details
Property Tax Information as of
10/24/2025
Click on "Statement Details" to expand or collapse a tax statement.
* Please enter a valid date ** Please enter a valid date *
Statement Details |
| | TOTAL: | $0.00 | $0.00 | $0.00 | $0.00 | $0.00 | $0.00 |
|
| | $0.00 | $0.00 | $0.00 | $0.00 | $0.00 | $0.00 |
Values
| (+) Improvement Homesite Value: | + | $0 | |
| (+) Improvement Non-Homesite Value: | + | $123,872 | |
| (+) Land Homesite Value: | + | $0 | |
| (+) Land Non-Homesite Value: | + | $98,900 | |
| (+) Curr Use (HS): | + | $0 | $0 |
| (+) Curr Use (NHS): | + | $0 | $0 |
| | | -------------------------- | |
| (=) Market Value: | = | $222,772 | |
| (–) Productivity Loss: | – | $0 | |
| | | -------------------------- | |
| (=) Subtotal: | = | $222,772 | |
| (+) Senior Appraised Value: | + | $0 | |
| (+) Non-Senior Appraised Value: | + | $222,772 | |
| | | -------------------------- | |
| (=) Total Appraised Value: | = | $222,772 | |
| (–) Senior Exemption Loss: | – | $0 | |
| (–) Exemption Loss: | – | $0 | |
| | | -------------------------- | |
| (=) Taxable Value: | = | $222,772 | |
Taxing Jurisdiction
| Owner: | BRANDON L BROWN | | |
| % Ownership: | 100.0000000000% | | |
| Total Value: | N/A | | |
| Tax Area: | 0441 - 1-46F4E4H2C1L1P2 |
| CE | COUNTY CURRENT EXPENSE | N/A | N/A | N/A | N/A | | |
| CNTYDD | DEVELOPMENTAL DISABILITIES | N/A | N/A | N/A | N/A | | |
| CNTYVET | VETERANS RELIEF | N/A | N/A | N/A | N/A | | |
| MENTAL | MENTAL HEALTH | N/A | N/A | N/A | N/A | | |
| ROADS | COUNTY ROADS | N/A | N/A | N/A | N/A | | |
| ROADSCU | COUNTY ROADS TO CUR EXP | N/A | N/A | N/A | N/A | | |
| HOSP2CASH | HOSP DIST #2 GENERAL | N/A | N/A | N/A | N/A | | |
| SCH46MO | SCHOOL DIST #46 EP & O | N/A | N/A | N/A | N/A | | |
| CEM1 | CEMETERY DIST #1 GENERAL | N/A | N/A | N/A | N/A | | |
| CONSERVE | CONSERVATION FUTURES | N/A | N/A | N/A | N/A | | |
| EMS4 | FIRE DIST #4 EMS | N/A | N/A | N/A | N/A | | |
| FD4 | FIRE DIST #4 GENERAL | N/A | N/A | N/A | N/A | | |
| FD4BOND | FIRE DIST #4 BOND 2019 | N/A | N/A | N/A | N/A | | |
| LIB1 | LIBRARY DIST #1 GENERAL | N/A | N/A | N/A | N/A | | |
| PORTPT | PORT OF PT GENERAL | N/A | N/A | N/A | N/A | | |
| PORTPTIDD | PORT OF PT IDD 2019 | N/A | N/A | N/A | N/A | | |
| PUD1 | PUD #1 GENERAL | N/A | N/A | N/A | N/A | | |
| STATE | STATE SCHOOL PART 1 | N/A | N/A | N/A | N/A | | |
| STATE2 | STATE SCHOOL PART 2 | N/A | N/A | N/A | N/A | | |
| | Total Tax Rate: | N/A | | | | | |
| | | | | Taxes w/Current Exemptions: | N/A | | |
| | | | | Taxes w/o Exemptions: | N/A | | |
Improvement / Building
| Improvement #1: | Manufactured Home | State Code: | 11 | 1296.0 sqft | Value: | $123,872 |
| Bathrooms (#): | 2 (FULL) | Bedrooms (#): | 3 | | Exterior Wall: | PL/T1 | Floor Construction: | FRAME | | Foundation: | PO&BL | Heating/Cooling: | F/A | | Inside Verify: | YES-FIX | Roof Cover: | COMP |
|
| | Type | Description | Class CD | Sub Class CD | Year Built | Area |
| | MA | Main Area | 3 | MDBL | 1991 | 1296.0 |
| | MDECK | MH Deck | 3 | * | 1991 | 160.0 |
| | MDET | MH Detached Garage | 2 | MDBL | 1991 | 720.0 |
| | MRPO | MH Roof Porch | 3 | * | 1991 | 160.0 |
| | CONCD | Concrete Drive | 3 | * | 1991 | 600.0 |
Sketch
Property Image
Land
| 1 | 1285-1145L | Avg+ to Good Water View Lots (Div 1, 2, 3) | 0.0000 | 0.00 | 0.00 | 0.00 | 1.00 | $98,900 | $0 |
Roll Value History
| 2025 | N/A | N/A | N/A | N/A | N/A |
| 2024 | $118,711 | $90,300 | $0 | $209,011 | $209,011 |
| 2023 | $113,550 | $81,000 | $0 | $194,550 | $194,550 |
| 2022 | $103,227 | $76,000 | $0 | $179,227 | $179,227 |
| 2021 | $85,312 | $57,750 | $0 | $143,062 | $143,062 |
Deed and Sales History
| 1 | 09/13/2024 | SWD | Statutory Warranty Deed | SCHWIESOW FAMILY REV LIVING TRUST | BRANDON L BROWN | | | $296,000.00 | 143281 | |
| 2 | 11/02/2016 | QCD | Quit Claim Deed | THOMAS & SUSAN SCHWIESOW | SCHWIESOW FAMILY REV LIVING TRUST | | | | 126592 | |
| 3 | 04/11/2016 | SWD | Statutory Warranty Deed | SANDY L MORSE | THOMAS & SUSAN SCHWIESOW | | | $115,000.00 | 125238 | |
| 4 | 06/22/2015 | MH | Mobile Home | | | | | | 123582 | |
| 5 | 06/22/2015 | PRD | Personal Representatives Deed | NOLAN B GAINES | SANDY L MORSE | | | | 123489 | |
Payout Agreement
| No payout information available.. |