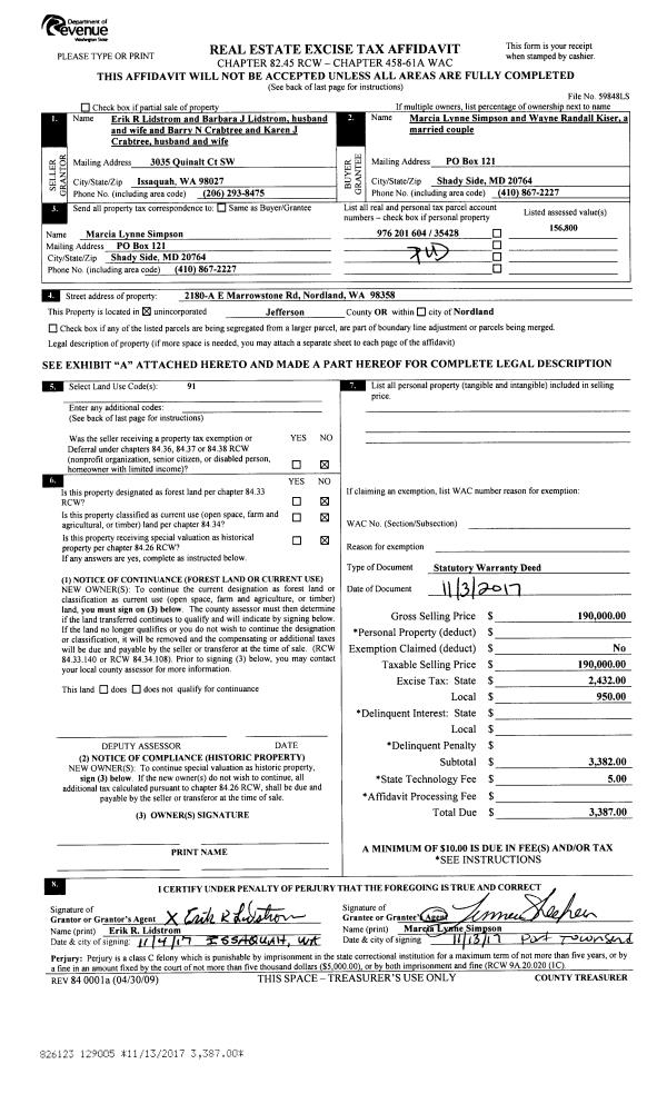
Property
Account |
| Property ID: | 42192 | Abbreviated Legal Description: | SEAMOUNT ESTATES DIV 4 LOT 15 |
| Parcel # / Geo ID: | 993500015 | Agent Code: | |
| Type: | Real | | |
| Tax Area: | 0441 - 1-46F4E4H2C1L1P2 | Land Use Code | 11 |
| Open Space: | N | DFL | N |
| Historic Property: | N | Remodel Property: | N |
| Multi-Family Redevelopment: | N | | |
| Township: | | Section: | |
| Range: | |
Location |
| Address: | 230 CIRQUE DR BRINNON, WA 98320 | Mapsco: | 030/039 |
| Neighborhood: | SEAMOUNT ESTATES DIVISIONS 1 - 4 & DUPPENTHALER SHORT PLAT | Map ID: | |
| Neighborhood CD: | 1285 |
Owner |
| Name: | EACHAN N CERDA | Owner ID: | 109004 |
| Mailing Address: | SONALIBEN LIMBACHIYA 230 CIRQUE DR BRINNON, WA 98320-9632 | % Ownership: | 100.0000000000% |
| | | Exemptions: | |
Pay Tax Due
There is currently No Amount Due on this property.
Taxes and Assessment Details
Property Tax Information as of
10/24/2025
Click on "Statement Details" to expand or collapse a tax statement.
* Please enter a valid date ** Please enter a valid date *
Statement Details |
| | TOTAL: | $0.00 | $0.00 | $0.00 | $0.00 | $0.00 | $0.00 |
|
| | $0.00 | $0.00 | $0.00 | $0.00 | $0.00 | $0.00 |
Values
| (+) Improvement Homesite Value: | + | $395,832 | |
| (+) Improvement Non-Homesite Value: | + | $0 | |
| (+) Land Homesite Value: | + | $103,500 | |
| (+) Land Non-Homesite Value: | + | $0 | |
| (+) Curr Use (HS): | + | $0 | $0 |
| (+) Curr Use (NHS): | + | $0 | $0 |
| | | -------------------------- | |
| (=) Market Value: | = | $499,332 | |
| (–) Productivity Loss: | – | $0 | |
| | | -------------------------- | |
| (=) Subtotal: | = | $499,332 | |
| (+) Senior Appraised Value: | + | $0 | |
| (+) Non-Senior Appraised Value: | + | $499,332 | |
| | | -------------------------- | |
| (=) Total Appraised Value: | = | $499,332 | |
| (–) Senior Exemption Loss: | – | $0 | |
| (–) Exemption Loss: | – | $0 | |
| | | -------------------------- | |
| (=) Taxable Value: | = | $499,332 | |
Taxing Jurisdiction
| Owner: | EACHAN N CERDA | | |
| % Ownership: | 100.0000000000% | | |
| Total Value: | N/A | | |
| Tax Area: | 0441 - 1-46F4E4H2C1L1P2 |
| CE | COUNTY CURRENT EXPENSE | N/A | N/A | N/A | N/A | | |
| CNTYDD | DEVELOPMENTAL DISABILITIES | N/A | N/A | N/A | N/A | | |
| CNTYVET | VETERANS RELIEF | N/A | N/A | N/A | N/A | | |
| MENTAL | MENTAL HEALTH | N/A | N/A | N/A | N/A | | |
| ROADS | COUNTY ROADS | N/A | N/A | N/A | N/A | | |
| ROADSCU | COUNTY ROADS TO CUR EXP | N/A | N/A | N/A | N/A | | |
| HOSP2CASH | HOSP DIST #2 GENERAL | N/A | N/A | N/A | N/A | | |
| SCH46MO | SCHOOL DIST #46 EP & O | N/A | N/A | N/A | N/A | | |
| CEM1 | CEMETERY DIST #1 GENERAL | N/A | N/A | N/A | N/A | | |
| CONSERVE | CONSERVATION FUTURES | N/A | N/A | N/A | N/A | | |
| EMS4 | FIRE DIST #4 EMS | N/A | N/A | N/A | N/A | | |
| FD4 | FIRE DIST #4 GENERAL | N/A | N/A | N/A | N/A | | |
| FD4BOND | FIRE DIST #4 BOND 2019 | N/A | N/A | N/A | N/A | | |
| LIB1 | LIBRARY DIST #1 GENERAL | N/A | N/A | N/A | N/A | | |
| PORTPT | PORT OF PT GENERAL | N/A | N/A | N/A | N/A | | |
| PORTPTIDD | PORT OF PT IDD 2019 | N/A | N/A | N/A | N/A | | |
| PUD1 | PUD #1 GENERAL | N/A | N/A | N/A | N/A | | |
| STATE | STATE SCHOOL PART 1 | N/A | N/A | N/A | N/A | | |
| STATE2 | STATE SCHOOL PART 2 | N/A | N/A | N/A | N/A | | |
| | Total Tax Rate: | N/A | | | | | |
| | | | | Taxes w/Current Exemptions: | N/A | | |
| | | | | Taxes w/o Exemptions: | N/A | | |
Improvement / Building
| Improvement #1: | Residential Bldg | State Code: | 11 | 1652.0 sqft | Value: | $395,832 |
| Bathrooms (#): | 2 (FULL) | Bedrooms (#): | 2 | | Exterior Wall: | LOG | Fireplace: | WD ST-GOOD | | Floor Construction: | FRAME | Foundation: | CONPR | | Heating/Cooling: | HPUMP | Roof Cover: | METAL |
|
| | Type | Description | Class CD | Sub Class CD | Year Built | Area |
| | MA | Main Area | 4 | 15SF | 1988 | 1134.0 |
| | MA2 | Second Floor Main Area | 4 | 15SF | 1988 | 518.0 |
| | HWPOR | House Wood Porch | 4 | * | 1988 | 672.0 |
| | CARPTN | Carport W/O Floor | 2 | * | 1988 | 441.0 |
| | BSMTF | House basement finished | 2 | * | 1988 | 1134.0 |
Sketch
Property Image
Land
| 1 | 1285-1164L | Fair View or Pos. Fair View (Div 4) | 0.0000 | 0.00 | 0.00 | 0.00 | 1.00 | $103,500 | $0 |
Roll Value History
| 2025 | N/A | N/A | N/A | N/A | N/A |
| 2024 | $379,339 | $94,500 | $0 | $473,839 | $473,839 |
| 2023 | $362,846 | $85,000 | $0 | $447,846 | $447,846 |
| 2022 | $329,860 | $60,000 | $0 | $389,860 | $389,860 |
| 2021 | $272,612 | $52,500 | $0 | $325,112 | $325,112 |
Deed and Sales History
| 1 | 05/23/2023 | SWD | Statutory Warranty Deed | ADAM W & AUDREY L ELLIS | EACHAN N CERDA | | | $557,000.00 | 140999 | |
|   | |
| 2 | 05/27/2020 | SWD | Statutory Warranty Deed | KATHLEEN M & ARTHUR F PHIFFER | ADAM W & AUDREY L ELLIS | | | $390,000.00 | 134432 | |
|   | |
| 3 | 05/01/2018 | SWD | Statutory Warranty Deed | MICHAEL C STRIEGEL | KATHLEEN M & ARTHUR F PHIFFER | | | $362,500.00 | 130056 | |
|   | |
| 4 | 11/30/2000 | SPWD | Special Warranty Deed | MOONEY LIVING TR, CATHERI | STRIEGEL, MICHAEL C | 0 | 0 | $0.00 | 91122 | 0 |
| 5 | 05/01/2000 | QCD | Quit Claim Deed | MOONEY, CATHERINE E/EST | WELLS FARGO BANK | 0 | 0 | $0.00 | 89586 | 0 |
Payout Agreement
| No payout information available.. |