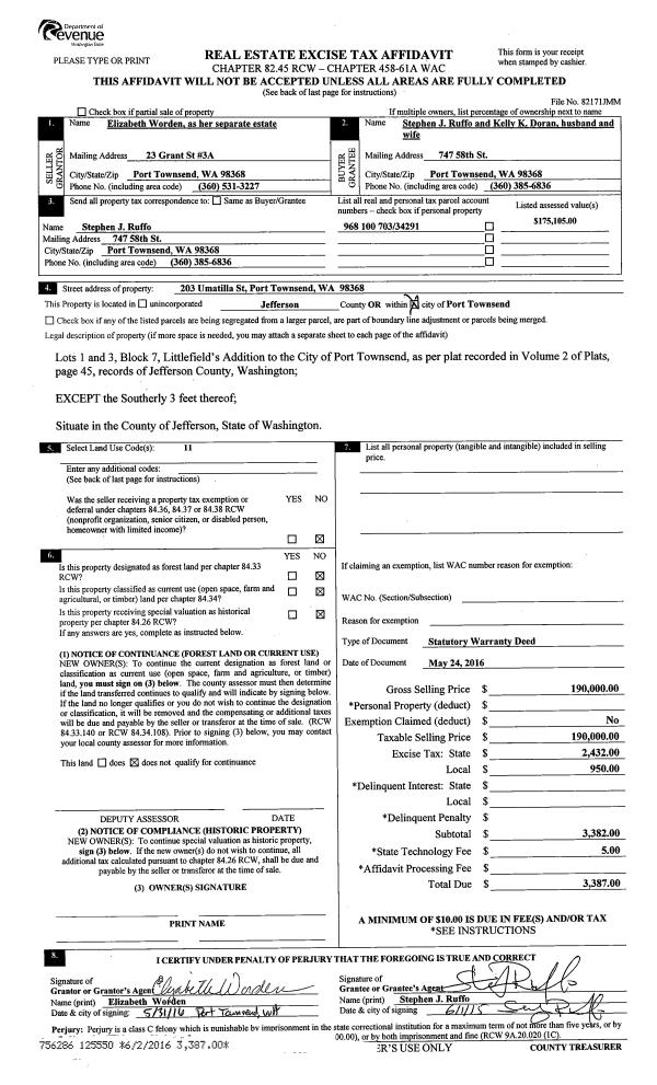
Property
Account |
| Property ID: | 42403 | Abbreviated Legal Description: | SEVENTH AV AC TR TAX 39 |
| Parcel # / Geo ID: | 994200028 | Agent Code: | |
| Type: | Real | | |
| Tax Area: | 0211 - 1-49F1E1H2L1 | Land Use Code | 11 |
| Open Space: | N | DFL | N |
| Historic Property: | N | Remodel Property: | N |
| Multi-Family Redevelopment: | N | | |
| Township: | 29N | Section: | 3 |
| Range: | 1W |
Location |
| Address: | 163 W PATISON ST PORT HADLOCK, WA 98339 | Mapsco: | 121/090 |
| Neighborhood: | SEVENTH AVE T/PITTSBURG/NORTON'S1ST & GIBBONS/ELIASON/POSTON | Map ID: | |
| Neighborhood CD: | 4223 |
Owner |
| Name: | BARBARA H PACKER | Owner ID: | 96935 |
| Mailing Address: | 163 W PATISON ST PORT HADLOCK, WA 98339-9709 | % Ownership: | 100.0000000000% |
| | | Exemptions: | |
Pay Tax Due
There is currently No Amount Due on this property.
Taxes and Assessment Details
Property Tax Information as of
10/24/2025
Click on "Statement Details" to expand or collapse a tax statement.
* Please enter a valid date ** Please enter a valid date *
Statement Details |
| | TOTAL: | $0.00 | $0.00 | $0.00 | $0.00 | $0.00 | $0.00 |
|
| | $0.00 | $0.00 | $0.00 | $0.00 | $0.00 | $0.00 |
Values
| (+) Improvement Homesite Value: | + | $449,073 | |
| (+) Improvement Non-Homesite Value: | + | $0 | |
| (+) Land Homesite Value: | + | $99,000 | |
| (+) Land Non-Homesite Value: | + | $0 | |
| (+) Curr Use (HS): | + | $0 | $0 |
| (+) Curr Use (NHS): | + | $0 | $0 |
| | | -------------------------- | |
| (=) Market Value: | = | $548,073 | |
| (–) Productivity Loss: | – | $0 | |
| | | -------------------------- | |
| (=) Subtotal: | = | $548,073 | |
| (+) Senior Appraised Value: | + | $0 | |
| (+) Non-Senior Appraised Value: | + | $548,073 | |
| | | -------------------------- | |
| (=) Total Appraised Value: | = | $548,073 | |
| (–) Senior Exemption Loss: | – | $0 | |
| (–) Exemption Loss: | – | $0 | |
| | | -------------------------- | |
| (=) Taxable Value: | = | $548,073 | |
Taxing Jurisdiction
| Owner: | BARBARA H PACKER | | |
| % Ownership: | 100.0000000000% | | |
| Total Value: | N/A | | |
| Tax Area: | 0211 - 1-49F1E1H2L1 |
| CE | COUNTY CURRENT EXPENSE | N/A | N/A | N/A | N/A | | |
| CNTYDD | DEVELOPMENTAL DISABILITIES | N/A | N/A | N/A | N/A | | |
| CNTYVET | VETERANS RELIEF | N/A | N/A | N/A | N/A | | |
| MENTAL | MENTAL HEALTH | N/A | N/A | N/A | N/A | | |
| ROADS | COUNTY ROADS | N/A | N/A | N/A | N/A | | |
| ROADSCU | COUNTY ROADS TO CUR EXP | N/A | N/A | N/A | N/A | | |
| HOSP2CASH | HOSP DIST #2 GENERAL | N/A | N/A | N/A | N/A | | |
| SCH49CP | SCHOOL DIST #49 CAP PROJ | N/A | N/A | N/A | N/A | | |
| SCH49MO | SCHOOL DIST #49 EP & O | N/A | N/A | N/A | N/A | | |
| CONSERVE | CONSERVATION FUTURES | N/A | N/A | N/A | N/A | | |
| EMS1 | FIRE DIST #1 EMS | N/A | N/A | N/A | N/A | | |
| FD1 | FIRE DIST #1 GENERAL | N/A | N/A | N/A | N/A | | |
| LIB1 | LIBRARY DIST #1 GENERAL | N/A | N/A | N/A | N/A | | |
| PORTPT | PORT OF PT GENERAL | N/A | N/A | N/A | N/A | | |
| PORTPTIDD | PORT OF PT IDD 2019 | N/A | N/A | N/A | N/A | | |
| PUD1 | PUD #1 GENERAL | N/A | N/A | N/A | N/A | | |
| STATE | STATE SCHOOL PART 1 | N/A | N/A | N/A | N/A | | |
| STATE2 | STATE SCHOOL PART 2 | N/A | N/A | N/A | N/A | | |
| | Total Tax Rate: | N/A | | | | | |
| | | | | Taxes w/Current Exemptions: | N/A | | |
| | | | | Taxes w/o Exemptions: | N/A | | |
Improvement / Building
| Improvement #1: | Residential Bldg | State Code: | 11 | 2170.0 sqft | Value: | $449,073 |
| Bathrooms (#): | 2 (FULL) | Bedrooms (#): | 3 | | Exterior Wall: | SI/ST | Fireplace: | WD ST-AVG | | Floor Construction: | FRAME | Foundation: | CONPR | | Heating/Cooling: | F/A | Inside Verify: | YES-FIX | | Roof Cover: | COMP |   |   |
|
| | Type | Description | Class CD | Sub Class CD | Year Built | Area |
| | MA | Main Area | 4+ | 15SF | 1996 | 1490.0 |
| | MA2 | Second Floor Main Area | 4+ | 15SF | 1996 | 680.0 |
| | HWPOR | House Wood Porch | 4 | * | 1996 | 696.0 |
| | GDET | Detached Garage | 4 | 15SF | 1996 | 484.0 |
Sketch
| No sketches available for this property. |
Property Image
Land
| 1 | 4223-1375S | Residential Sites 1+/- Ac SomeTerritorial Views | 1.0000 | 43560.00 | 0.00 | 0.00 | 1.00 | $99,000 | $0 |
Roll Value History
| 2025 | N/A | N/A | N/A | N/A | N/A |
| 2024 | $428,660 | $94,500 | $0 | $523,160 | $523,160 |
| 2023 | $408,248 | $85,000 | $0 | $493,248 | $493,248 |
| 2022 | $360,428 | $70,000 | $0 | $430,428 | $430,428 |
| 2021 | $284,924 | $62,700 | $0 | $347,624 | $304,760 |
Deed and Sales History
| 1 | 03/27/2017 | LOP | Lack of Probate | | | | | | 127354 | |
| 2 | 08/16/2016 | BSD | Bargain and Sale Deed | U S BANK TRUST | WILLIAM H & BARBARA H PACKER | | | $240,000.00 | 126110 | |
| 3 | 12/23/2015 | TRED | Trustee Deed | GREGG A BARRY | U S BANK TRUST | | | | 124601 | |
| 4 | 11/14/2003 | QCD | Quit Claim Deed | BARRY, ELIZABETH A | BARRY, PATRICE/GREGG A | 0 | 0 | $0.00 | 98827 | 0 |
| 5 | 11/14/2003 | QCD | Quit Claim Deed | BARRY, GREGG | BARRY, GREGG/PATRICE | 0 | 0 | $0.00 | 98828 | 0 |
| 6 | 08/30/1993 | SWD | Statutory Warranty Deed | W W W ENTERPRISES | BARRY, GREGG A/ELIZABETH | 0 | 0 | $32,000.00 | 72007 | 0 |
| 7 | 05/14/1993 | BLA | Boundary Line Adjustment | WWW ENTERPRISES | WWW EMTERPRISES | 0 | 0 | $0.00 | 71159 | 0 |
| 8 | 04/16/1992 | REC | Real Estate Contract | NESSET, JOHN C/SHAN L | W.W.W. ENTERPRISES | 0 | 0 | $65,000.00 | 68191 | 0 |
|   | |
Payout Agreement
| No payout information available.. |