Property
Account |
| Property ID: | 42439 | Abbreviated Legal Description: | SHINE BLK 1 LOT 3 (INC TL FRTG) SUBJ/REST COVT #551022 |
| Parcel # / Geo ID: | 994400103 | Agent Code: | |
| Type: | Real | | |
| Tax Area: | 0213 - 1-49F1E1H2L1 | Land Use Code | 11 |
| Open Space: | N | DFL | N |
| Historic Property: | N | Remodel Property: | N |
| Multi-Family Redevelopment: | N | | |
| Township: | 28N | Section: | 33 |
| Range: | 1E |
Location |
| Address: | 111 MERRIDITH ST PORT LUDLOW, WA 98365 | Mapsco: | 122/003 |
| Neighborhood: | S33 T28 R1E;SHINE PLTS;WATNEY'S S;TEAL/SANTY/SHAW/JAKUM/CARL | Map ID: | |
| Neighborhood CD: | 3385 |
Owner |
| Name: | JUSTIN SLUYTER & JAIME NEAL | Owner ID: | 97853 |
| Mailing Address: | 2331 42ND AVE SW UNIT 406 SEATTLE, WA 98116 | % Ownership: | 100.0000000000% |
| | | Exemptions: | |
Pay Tax Due
There is currently No Amount Due on this property.
Taxes and Assessment Details
Property Tax Information as of
10/24/2025
Click on "Statement Details" to expand or collapse a tax statement.
* Please enter a valid date ** Please enter a valid date *
Statement Details |
| | TOTAL: | $0.00 | $0.00 | $0.00 | $0.00 | $0.00 | $0.00 |
|
| | $0.00 | $0.00 | $0.00 | $0.00 | $0.00 | $0.00 |
Values
| (+) Improvement Homesite Value: | + | $0 | |
| (+) Improvement Non-Homesite Value: | + | $911,672 | |
| (+) Land Homesite Value: | + | $0 | |
| (+) Land Non-Homesite Value: | + | $518,178 | |
| (+) Curr Use (HS): | + | $0 | $0 |
| (+) Curr Use (NHS): | + | $0 | $0 |
| | | -------------------------- | |
| (=) Market Value: | = | $1,429,850 | |
| (–) Productivity Loss: | – | $0 | |
| | | -------------------------- | |
| (=) Subtotal: | = | $1,429,850 | |
| (+) Senior Appraised Value: | + | $0 | |
| (+) Non-Senior Appraised Value: | + | $1,429,850 | |
| | | -------------------------- | |
| (=) Total Appraised Value: | = | $1,429,850 | |
| (–) Senior Exemption Loss: | – | $0 | |
| (–) Exemption Loss: | – | $0 | |
| | | -------------------------- | |
| (=) Taxable Value: | = | $1,429,850 | |
Taxing Jurisdiction
| Owner: | JUSTIN SLUYTER & JAIME NEAL | | |
| % Ownership: | 100.0000000000% | | |
| Total Value: | N/A | | |
| Tax Area: | 0213 - 1-49F1E1H2L1 |
| CE | COUNTY CURRENT EXPENSE | N/A | N/A | N/A | N/A | | |
| CNTYDD | DEVELOPMENTAL DISABILITIES | N/A | N/A | N/A | N/A | | |
| CNTYVET | VETERANS RELIEF | N/A | N/A | N/A | N/A | | |
| MENTAL | MENTAL HEALTH | N/A | N/A | N/A | N/A | | |
| ROADS | COUNTY ROADS | N/A | N/A | N/A | N/A | | |
| ROADSCU | COUNTY ROADS TO CUR EXP | N/A | N/A | N/A | N/A | | |
| HOSP2CASH | HOSP DIST #2 GENERAL | N/A | N/A | N/A | N/A | | |
| SCH49CP | SCHOOL DIST #49 CAP PROJ | N/A | N/A | N/A | N/A | | |
| SCH49MO | SCHOOL DIST #49 EP & O | N/A | N/A | N/A | N/A | | |
| CONSERVE | CONSERVATION FUTURES | N/A | N/A | N/A | N/A | | |
| EMS1 | FIRE DIST #1 EMS | N/A | N/A | N/A | N/A | | |
| FD1 | FIRE DIST #1 GENERAL | N/A | N/A | N/A | N/A | | |
| LIB1 | LIBRARY DIST #1 GENERAL | N/A | N/A | N/A | N/A | | |
| PORTPT | PORT OF PT GENERAL | N/A | N/A | N/A | N/A | | |
| PORTPTIDD | PORT OF PT IDD 2019 | N/A | N/A | N/A | N/A | | |
| PUD1 | PUD #1 GENERAL | N/A | N/A | N/A | N/A | | |
| STATE | STATE SCHOOL PART 1 | N/A | N/A | N/A | N/A | | |
| STATE2 | STATE SCHOOL PART 2 | N/A | N/A | N/A | N/A | | |
| | Total Tax Rate: | N/A | | | | | |
| | | | | Taxes w/Current Exemptions: | N/A | | |
| | | | | Taxes w/o Exemptions: | N/A | | |
Improvement / Building
| Improvement #1: | Residential Bldg | State Code: | 11 | 2152.0 sqft | Value: | $911,672 |
| Bathrooms (#): | 2 (FULL) | Bedrooms (#): | 4 | | Exterior Wall: | SI/ST | Fireplace: | SIN 1-GOOD | | Fireplace: | WD ST-GOOD | Floor Construction: | FRAME | | Foundation: | CONPR | Heating/Cooling: | HPUMP | | Inside Verify: | NO | Roof Cover: | METAL |
|
| | Type | Description | Class CD | Sub Class CD | Year Built | Area |
| | MA | Main Area | 5+ | 1S | 1959 | 1668.0 |
| | MA2 | Second Floor Main Area | 5 | 15SF | 1959 | 484.0 |
| | HCPOR | House Concrete Porch | 5 | * | 1959 | 166.0 |
| | PATIO | House Patio | 5 | * | 1959 | 300.0 |
| | HDECK | House Deck | 5 | * | 1959 | 1268.0 |
| | GATT | House Attached Garage | 5 | * | 1959 | 528.0 |
| | BSMTF | House basement finished | 5 | 1S | 1959 | 690.0 |
| | GATT | House Attached Garage | 5 | * | 1959 | 561.0 |
| | PATIO | House Patio | 5 | * | 1959 | 270.0 |
Sketch
Property Image
Land
| 1 | 3385-1514F | No to Low Bank Wtrfrt w/Community Wtr | 0.0000 | 0.00 | 0.00 | 0.00 | 0.00 | $482,350 | $0 |
| 2 | 3385-1514F | No to Low Bank Wtrfrt w/Community Wtr | 0.0000 | 0.00 | 0.00 | 0.00 | 0.00 | $32,803 | $0 |
| 3 | 9301F | Tidelands | 0.0000 | 0.00 | 0.00 | 0.00 | 0.00 | $3,025 | $0 |
Roll Value History
| 2025 | N/A | N/A | N/A | N/A | N/A |
| 2024 | $873,686 | $494,625 | $0 | $1,368,311 | $1,368,311 |
| 2023 | $835,700 | $466,071 | $0 | $1,301,771 | $1,301,771 |
| 2022 | $835,700 | $461,071 | $0 | $1,296,771 | $1,296,771 |
| 2021 | $629,436 | $436,057 | $0 | $1,065,493 | $1,065,493 |
Deed and Sales History
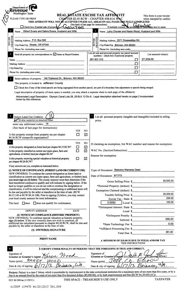
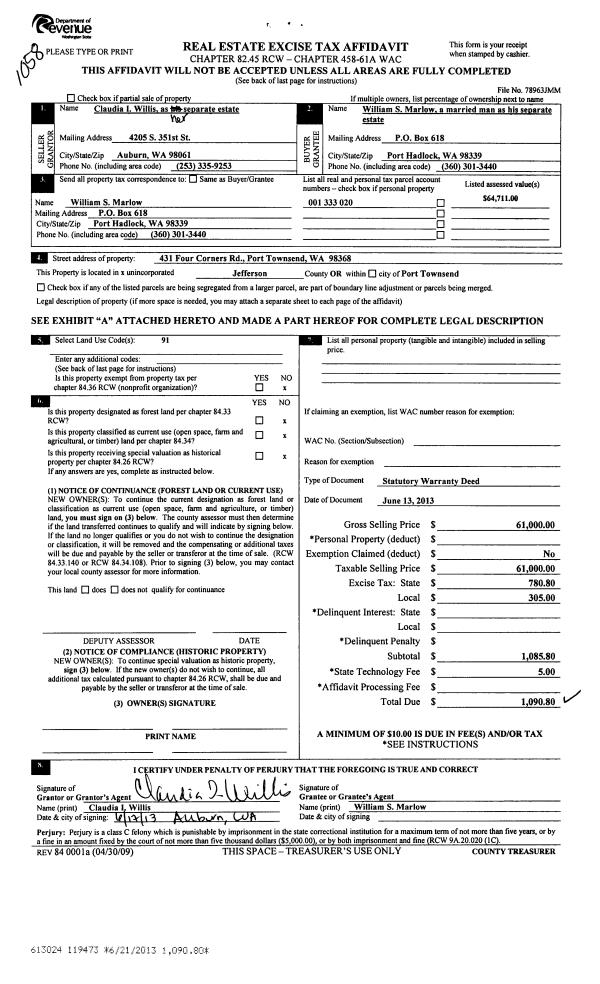
| 1 | 08/15/2017 | SWD | Statutory Warranty Deed | CHRIS KUDRIAVTSEFF & PAMELA ENGSTROM | JUSTIN SLUYTER & JAIME NEAL | | | $1,024,000.00 | 128383 | |
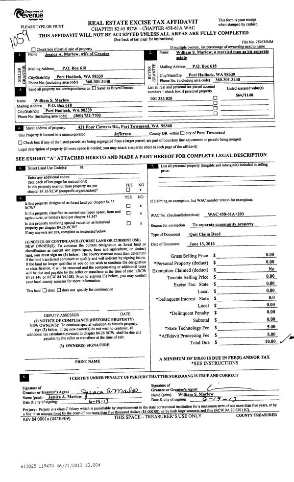
| 2 | 10/27/2014 | QCD | Quit Claim Deed | | | | | | 122167 | |
| 3 | 10/12/2001 | SWD | Statutory Warranty Deed | THORP, CLAIR W/LAVERNE A | ENGSTROM, PAMELA K | 0 | 0 | $300,000.00 | 93305 | 0 |
| 4 | 03/10/1999 | WD | Warranty Deed | PETERSON, MARY L/EST | THORP, CLAIR W/LAVERNE A | 0 | 0 | $240,000.00 | 86462 | 0 |
Payout Agreement
| No payout information available.. |