Property
Account |
| Property ID: | 42456 | Abbreviated Legal Description: | SHINE 2ND BLK 2 LOT 6 W/ 1/25TH UNDIV INT WELL SITE SUBJ/REST COVT #530584 |
| Parcel # / Geo ID: | 994600206 | Agent Code: | |
| Type: | Real | | |
| Tax Area: | 0213 - 1-49F1E1H2L1 | Land Use Code | 11 |
| Open Space: | N | DFL | N |
| Historic Property: | N | Remodel Property: | N |
| Multi-Family Redevelopment: | N | | |
| Township: | 28N | Section: | 33 |
| Range: | 1E |
Location |
| Address: | 112 MARGARET ST PORT LUDLOW, WA 98365 | Mapsco: | 122/020 |
| Neighborhood: | S33 T28 R1E;SHINE PLTS;WATNEY'S S;TEAL/SANTY/SHAW/JAKUM/CARL | Map ID: | |
| Neighborhood CD: | 3385 |
Owner |
| Name: | JEFFREY A & JENNIFER M STROH | Owner ID: | 91432 |
| Mailing Address: | 112 MARGARET ST PORT LUDLOW, WA 98365-9280 | % Ownership: | 100.0000000000% |
| | | Exemptions: | |
Pay Tax Due
There is currently No Amount Due on this property.
Taxes and Assessment Details
Property Tax Information as of
10/24/2025
Click on "Statement Details" to expand or collapse a tax statement.
* Please enter a valid date ** Please enter a valid date *
Statement Details |
| | TOTAL: | $0.00 | $0.00 | $0.00 | $0.00 | $0.00 | $0.00 |
|
| | $0.00 | $0.00 | $0.00 | $0.00 | $0.00 | $0.00 |
Values
| (+) Improvement Homesite Value: | + | $0 | |
| (+) Improvement Non-Homesite Value: | + | $401,809 | |
| (+) Land Homesite Value: | + | $0 | |
| (+) Land Non-Homesite Value: | + | $90,750 | |
| (+) Curr Use (HS): | + | $0 | $0 |
| (+) Curr Use (NHS): | + | $0 | $0 |
| | | -------------------------- | |
| (=) Market Value: | = | $492,559 | |
| (–) Productivity Loss: | – | $0 | |
| | | -------------------------- | |
| (=) Subtotal: | = | $492,559 | |
| (+) Senior Appraised Value: | + | $0 | |
| (+) Non-Senior Appraised Value: | + | $492,559 | |
| | | -------------------------- | |
| (=) Total Appraised Value: | = | $492,559 | |
| (–) Senior Exemption Loss: | – | $0 | |
| (–) Exemption Loss: | – | $0 | |
| | | -------------------------- | |
| (=) Taxable Value: | = | $492,559 | |
Taxing Jurisdiction
| Owner: | JEFFREY A & JENNIFER M STROH | | |
| % Ownership: | 100.0000000000% | | |
| Total Value: | N/A | | |
| Tax Area: | 0213 - 1-49F1E1H2L1 |
| CE | COUNTY CURRENT EXPENSE | N/A | N/A | N/A | N/A | | |
| CNTYDD | DEVELOPMENTAL DISABILITIES | N/A | N/A | N/A | N/A | | |
| CNTYVET | VETERANS RELIEF | N/A | N/A | N/A | N/A | | |
| MENTAL | MENTAL HEALTH | N/A | N/A | N/A | N/A | | |
| ROADS | COUNTY ROADS | N/A | N/A | N/A | N/A | | |
| ROADSCU | COUNTY ROADS TO CUR EXP | N/A | N/A | N/A | N/A | | |
| HOSP2CASH | HOSP DIST #2 GENERAL | N/A | N/A | N/A | N/A | | |
| SCH49CP | SCHOOL DIST #49 CAP PROJ | N/A | N/A | N/A | N/A | | |
| SCH49MO | SCHOOL DIST #49 EP & O | N/A | N/A | N/A | N/A | | |
| CONSERVE | CONSERVATION FUTURES | N/A | N/A | N/A | N/A | | |
| EMS1 | FIRE DIST #1 EMS | N/A | N/A | N/A | N/A | | |
| FD1 | FIRE DIST #1 GENERAL | N/A | N/A | N/A | N/A | | |
| LIB1 | LIBRARY DIST #1 GENERAL | N/A | N/A | N/A | N/A | | |
| PORTPT | PORT OF PT GENERAL | N/A | N/A | N/A | N/A | | |
| PORTPTIDD | PORT OF PT IDD 2019 | N/A | N/A | N/A | N/A | | |
| PUD1 | PUD #1 GENERAL | N/A | N/A | N/A | N/A | | |
| STATE | STATE SCHOOL PART 1 | N/A | N/A | N/A | N/A | | |
| STATE2 | STATE SCHOOL PART 2 | N/A | N/A | N/A | N/A | | |
| | Total Tax Rate: | N/A | | | | | |
| | | | | Taxes w/Current Exemptions: | N/A | | |
| | | | | Taxes w/o Exemptions: | N/A | | |
Improvement / Building
| Improvement #1: | Residential Bldg | State Code: | 11 | 1680.0 sqft | Value: | $401,809 |
| Bathrooms (#): | 2 (FULL) | Bedrooms (#): | 3 | | Exterior Wall: | SI/ST | Floor Construction: | FRAME | | Foundation: | CONPR | Heating/Cooling: | ELBB | | Inside Verify: | NO | Roof Cover: | COMP |
|
| | Type | Description | Class CD | Sub Class CD | Year Built | Area |
| | MA | Main Area | 3+ | 1S | 2012 | 1680.0 |
| | HRPO | House Roof Patio | 4 | * | 2012 | 121.0 |
| | HDECK | House Deck | 4 | * | 2012 | 36.0 |
| | GDET | Detached Garage | 4 | * | 1997 | 1500.0 |
| | SHED | Shed (Table Not Dep) | 4 | * | 2002 | 120.0 |
Sketch
Property Image
Land
| 1 | 3385-1245S | Avg/Good Wtr View Sites .5+/- Acre | 0.0000 | 0.00 | 0.00 | 0.00 | 1.00 | $90,750 | $0 |
Roll Value History
| 2025 | N/A | N/A | N/A | N/A | N/A |
| 2024 | $385,067 | $86,625 | $0 | $471,692 | $471,692 |
| 2023 | $368,325 | $77,500 | $0 | $445,825 | $445,825 |
| 2022 | $368,325 | $72,500 | $0 | $440,825 | $440,825 |
| 2021 | $286,271 | $58,050 | $0 | $344,321 | $344,321 |
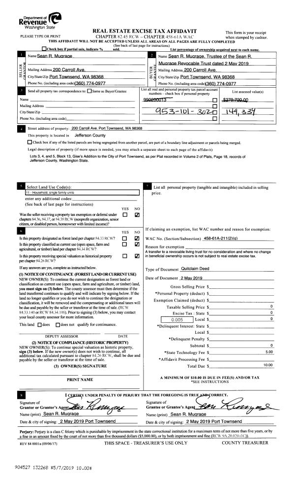
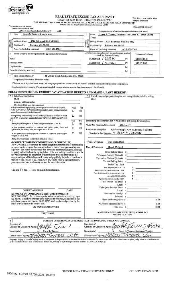
Deed and Sales History
| 1 | 02/13/2014 | SWD | Statutory Warranty Deed | GARY C OLSON | JEFFREY A & JENNIFER M STROH | | | $265,000.00 | 120778 | |
|   | |
| 2 | 12/17/1996 | SWD | Statutory Warranty Deed | CHORLTON, JAMES F/K BYRON | OLSON, GARY C/PATRICIA E | 0 | 0 | $10,000.00 | 81079 | 0 |
Payout Agreement
| No payout information available.. |