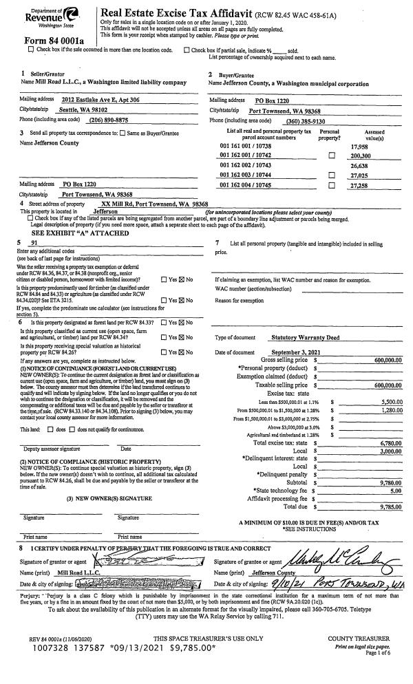
Property
Account |
| Property ID: | 42464 | Abbreviated Legal Description: | SHINE 2ND BLK 3 LOTS 1 & 2 (LESS W 50') SHINE BL3,LTS 1&2 & 1/25TH INT WELL SITE |
| Parcel # / Geo ID: | 994600302 | Agent Code: | |
| Type: | Real | | |
| Tax Area: | 0213 - 1-49F1E1H2L1 | Land Use Code | 11 |
| Open Space: | N | DFL | N |
| Historic Property: | N | Remodel Property: | N |
| Multi-Family Redevelopment: | N | | |
| Township: | 28N | Section: | 33 |
| Range: | 1E |
Location |
| Address: | 70 MERRIDITH ST PORT LUDLOW, WA 98365 | Mapsco: | 122/027 |
| Neighborhood: | S33 T28 R1E;SHINE PLTS;WATNEY'S S;TEAL/SANTY/SHAW/JAKUM/CARL | Map ID: | |
| Neighborhood CD: | 3385 |
Owner |
| Name: | BARTT & AMELIA CHIPMAN | Owner ID: | 92308 |
| Mailing Address: | 70 MERRIDITH ST PORT LUDLOW, WA 98371-9506 | % Ownership: | 100.0000000000% |
| | | Exemptions: | |
Pay Tax Due
There is currently No Amount Due on this property.
Taxes and Assessment Details
Property Tax Information as of
10/24/2025
Click on "Statement Details" to expand or collapse a tax statement.
* Please enter a valid date ** Please enter a valid date *
Statement Details |
| | TOTAL: | $0.00 | $0.00 | $0.00 | $0.00 | $0.00 | $0.00 |
|
| | $0.00 | $0.00 | $0.00 | $0.00 | $0.00 | $0.00 |
Values
| (+) Improvement Homesite Value: | + | $0 | |
| (+) Improvement Non-Homesite Value: | + | $553,270 | |
| (+) Land Homesite Value: | + | $0 | |
| (+) Land Non-Homesite Value: | + | $156,750 | |
| (+) Curr Use (HS): | + | $0 | $0 |
| (+) Curr Use (NHS): | + | $0 | $0 |
| | | -------------------------- | |
| (=) Market Value: | = | $710,020 | |
| (–) Productivity Loss: | – | $0 | |
| | | -------------------------- | |
| (=) Subtotal: | = | $710,020 | |
| (+) Senior Appraised Value: | + | $0 | |
| (+) Non-Senior Appraised Value: | + | $710,020 | |
| | | -------------------------- | |
| (=) Total Appraised Value: | = | $710,020 | |
| (–) Senior Exemption Loss: | – | $0 | |
| (–) Exemption Loss: | – | $0 | |
| | | -------------------------- | |
| (=) Taxable Value: | = | $710,020 | |
Taxing Jurisdiction
| Owner: | BARTT & AMELIA CHIPMAN | | |
| % Ownership: | 100.0000000000% | | |
| Total Value: | N/A | | |
| Tax Area: | 0213 - 1-49F1E1H2L1 |
| CE | COUNTY CURRENT EXPENSE | N/A | N/A | N/A | N/A | | |
| CNTYDD | DEVELOPMENTAL DISABILITIES | N/A | N/A | N/A | N/A | | |
| CNTYVET | VETERANS RELIEF | N/A | N/A | N/A | N/A | | |
| MENTAL | MENTAL HEALTH | N/A | N/A | N/A | N/A | | |
| ROADS | COUNTY ROADS | N/A | N/A | N/A | N/A | | |
| ROADSCU | COUNTY ROADS TO CUR EXP | N/A | N/A | N/A | N/A | | |
| HOSP2CASH | HOSP DIST #2 GENERAL | N/A | N/A | N/A | N/A | | |
| SCH49CP | SCHOOL DIST #49 CAP PROJ | N/A | N/A | N/A | N/A | | |
| SCH49MO | SCHOOL DIST #49 EP & O | N/A | N/A | N/A | N/A | | |
| CONSERVE | CONSERVATION FUTURES | N/A | N/A | N/A | N/A | | |
| EMS1 | FIRE DIST #1 EMS | N/A | N/A | N/A | N/A | | |
| FD1 | FIRE DIST #1 GENERAL | N/A | N/A | N/A | N/A | | |
| LIB1 | LIBRARY DIST #1 GENERAL | N/A | N/A | N/A | N/A | | |
| PORTPT | PORT OF PT GENERAL | N/A | N/A | N/A | N/A | | |
| PORTPTIDD | PORT OF PT IDD 2019 | N/A | N/A | N/A | N/A | | |
| PUD1 | PUD #1 GENERAL | N/A | N/A | N/A | N/A | | |
| STATE | STATE SCHOOL PART 1 | N/A | N/A | N/A | N/A | | |
| STATE2 | STATE SCHOOL PART 2 | N/A | N/A | N/A | N/A | | |
| | Total Tax Rate: | N/A | | | | | |
| | | | | Taxes w/Current Exemptions: | N/A | | |
| | | | | Taxes w/o Exemptions: | N/A | | |
Improvement / Building
| Improvement #1: | Residential Bldg | State Code: | 11 | 1452.0 sqft | Value: | $553,270 |
| Bathrooms (#): | 2 (FULL) | Bathrooms (#): | 1 (HALF) | | Bedrooms (#): | 2 | Exterior Wall: | SI/ST | | Fireplace: | PROPS-GOOD | Floor Construction: | FRAME | | Foundation: | CONPR | Heating/Cooling: | HPUMP | | Inside Verify: | YES | Roof Cover: | COMP |
|
| | Type | Description | Class CD | Sub Class CD | Year Built | Area |
| | MA | Main Area | 4 | 1S | 1977 | 1452.0 |
| | HCPOR | House Concrete Porch | 4 | * | 1977 | 36.0 |
| | HDECK | House Deck | 4 | * | 1977 | 385.0 |
| | BSMTF | House basement finished | 4 | * | 1977 | 738.0 |
| | PATIO | House Patio | 4 | * | 1977 | 168.0 |
| | GBSMT | Basement Garage | 4 | * | 1977 | 378.0 |
| | GDET | Detached Garage | 4 | * | 1977 | 360.0 |
| | GDET | Detached Garage | 4 | * | 1980 | 624.0 |
| | CARPTN | Carport W/O Floor | 4 | * | 1977 | 260.0 |
| | CONCD | Concrete Drive | 4 | * | 1977 | 756.0 |
| | ASPHD | Asphalt Drive | 4 | * | 1977 | 2500.0 |
Sketch
Property Image
Land
| 1 | 3385-1245S | Avg/Good Wtr View Sites .5+/- Acre | 0.0000 | 0.00 | 0.00 | 0.00 | 1.00 | $156,750 | $0 |
Roll Value History
| 2025 | N/A | N/A | N/A | N/A | N/A |
| 2024 | $530,217 | $149,625 | $0 | $679,842 | $679,842 |
| 2023 | $507,164 | $137,500 | $0 | $644,664 | $644,664 |
| 2022 | $507,164 | $132,500 | $0 | $639,664 | $639,664 |
| 2021 | $406,568 | $101,250 | $0 | $507,818 | $507,818 |
Deed and Sales History
| 1 | 10/31/2016 | QCD | Quit Claim Deed | BARTT A CHIPMAN | BARTT & AMELIA CHIPMAN | | | | 126528 | |
| 2 | 08/31/2016 | QCD | Quit Claim Deed | | | | | | 126198 | |
| 3 | 08/31/2016 | SWD | Statutory Warranty Deed | WILLIAM D PARKER | BARTT A CHIPMAN | | | $390,000.00 | 126197 | |
| 4 | 12/26/2001 | SWD | Statutory Warranty Deed | RAUDEBAUGH, ROY R & ALICE | PARKER, WILLIAM D | 0 | 0 | $192,800.00 | 93782 | 0 |
Payout Agreement
| No payout information available.. |