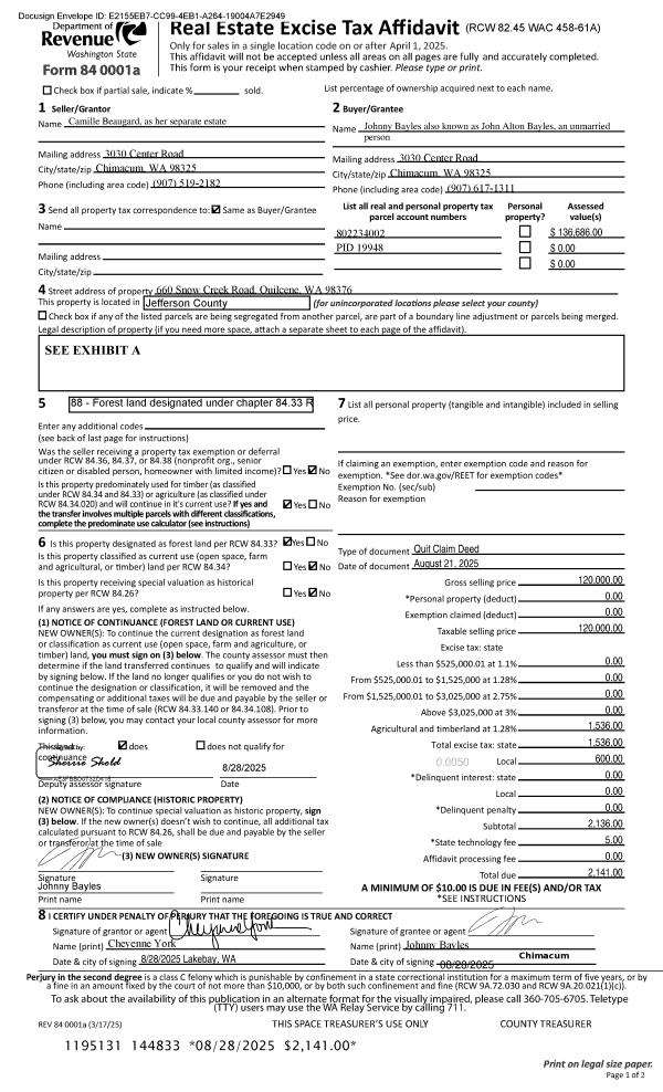
Property
Account |
| Property ID: | 42522 | Abbreviated Legal Description: | SPRING VALLEY COTTAGES CONDO UNIT 6 TGTH W/PARKING SP 6 & STORAGE 6 |
| Parcel # / Geo ID: | 995300006 | Agent Code: | |
| Type: | Real | | |
| Tax Area: | 0110 - C-50F1E1H2 | Land Use Code | 14 |
| Open Space: | N | DFL | N |
| Historic Property: | N | Remodel Property: | N |
| Multi-Family Redevelopment: | N | | |
| Township: | 30N | Section: | 2 |
| Range: | 1W |
Location |
| Address: | 303 CASTELLANO WAY UNIT 6 PORT TOWNSEND, WA 98368 | Mapsco: | 132/035 |
| Neighborhood: | CYCLE 6 CONDOMINIUMS - PORT TOWNSEND | Map ID: | |
| Neighborhood CD: | 6900 |
Owner |
| Name: | ALLENE R NIEHAUS | Owner ID: | 106105 |
| Mailing Address: | 303 CASTELLANO WAY UNIT 6 PORT TOWNSEND, WA 98368 | % Ownership: | 100.0000000000% |
| | | Exemptions: | |
Pay Tax Due
There is currently No Amount Due on this property.
Taxes and Assessment Details
Property Tax Information as of
10/24/2025
Click on "Statement Details" to expand or collapse a tax statement.
* Please enter a valid date ** Please enter a valid date *
Statement Details |
| | TOTAL: | $0.00 | $0.00 | $0.00 | $0.00 | $0.00 | $0.00 |
|
| | $0.00 | $0.00 | $0.00 | $0.00 | $0.00 | $0.00 |
Values
| (+) Improvement Homesite Value: | + | $0 | |
| (+) Improvement Non-Homesite Value: | + | $441,662 | |
| (+) Land Homesite Value: | + | $0 | |
| (+) Land Non-Homesite Value: | + | $170,000 | |
| (+) Curr Use (HS): | + | $0 | $0 |
| (+) Curr Use (NHS): | + | $0 | $0 |
| | | -------------------------- | |
| (=) Market Value: | = | $611,662 | |
| (–) Productivity Loss: | – | $0 | |
| | | -------------------------- | |
| (=) Subtotal: | = | $611,662 | |
| (+) Senior Appraised Value: | + | $0 | |
| (+) Non-Senior Appraised Value: | + | $611,662 | |
| | | -------------------------- | |
| (=) Total Appraised Value: | = | $611,662 | |
| (–) Senior Exemption Loss: | – | $0 | |
| (–) Exemption Loss: | – | $0 | |
| | | -------------------------- | |
| (=) Taxable Value: | = | $611,662 | |
Taxing Jurisdiction
| Owner: | ALLENE R NIEHAUS | | |
| % Ownership: | 100.0000000000% | | |
| Total Value: | N/A | | |
| Tax Area: | 0110 - C-50F1E1H2 |
| CE | COUNTY CURRENT EXPENSE | N/A | N/A | N/A | N/A | | |
| CNTYDD | DEVELOPMENTAL DISABILITIES | N/A | N/A | N/A | N/A | | |
| CNTYVET | VETERANS RELIEF | N/A | N/A | N/A | N/A | | |
| MENTAL | MENTAL HEALTH | N/A | N/A | N/A | N/A | | |
| PTGEN | CITY OF PT GENERAL | N/A | N/A | N/A | N/A | | |
| PTLLL | CITY OF PT - LIBRARY LID LIFT | N/A | N/A | N/A | N/A | | |
| PTMVBOND | CITY OF PT MV BOND | N/A | N/A | N/A | N/A | | |
| HOSP2CASH | HOSP DIST #2 GENERAL | N/A | N/A | N/A | N/A | | |
| SCH50BOND | SCHOOL DIST #50 BOND 2016 | N/A | N/A | N/A | N/A | | |
| SCH50CP | SCHOOL DIST #50 CAP PROJ | N/A | N/A | N/A | N/A | | |
| SCH50MO | SCHOOL DIST #50 EP & O | N/A | N/A | N/A | N/A | | |
| CONSERVE | CONSERVATION FUTURES | N/A | N/A | N/A | N/A | | |
| EMS1 | FIRE DIST #1 EMS | N/A | N/A | N/A | N/A | | |
| FD1 | FIRE DIST #1 GENERAL | N/A | N/A | N/A | N/A | | |
| PORTPT | PORT OF PT GENERAL | N/A | N/A | N/A | N/A | | |
| PORTPTIDD | PORT OF PT IDD 2019 | N/A | N/A | N/A | N/A | | |
| PUD1 | PUD #1 GENERAL | N/A | N/A | N/A | N/A | | |
| STATE | STATE SCHOOL PART 1 | N/A | N/A | N/A | N/A | | |
| STATE2 | STATE SCHOOL PART 2 | N/A | N/A | N/A | N/A | | |
| | Total Tax Rate: | N/A | | | | | |
| | | | | Taxes w/Current Exemptions: | N/A | | |
| | | | | Taxes w/o Exemptions: | N/A | | |
Improvement / Building
| Improvement #1: | Residential Bldg | State Code: | 14 | 1143.0 sqft | Value: | $441,662 |
| Bathrooms (#): | 2 (FULL) | Bedrooms (#): | 2 | | Exterior Wall: | SI/ST | Floor Construction: | FRAME | | Foundation: | CONPR | Heating/Cooling: | ELBB | | Roof Cover: | COMP |   |   |
|
| | Type | Description | Class CD | Sub Class CD | Year Built | Area |
| | MA | Main Area | 5+ | 2S | 2007 | 735.0 |
| | MA2 | Second Floor Main Area | 5+ | 2S | 2007 | 408.0 |
| | HWPOR | House Wood Porch | 5 | * | 2007 | 96.0 |
| | HBAL | House Balcony | 5 | * | 2007 | 96.0 |
| | HDECK | House Deck | 5 | * | 2007 | 72.0 |
| | OTHER | Other | * | * | 2007 | 0.0 |
Sketch
| No sketches available for this property. |
Property Image
Land
| 1 | 9953-4115S | Spring Valley Cottages Condo Site | 0.0000 | 0.00 | 0.00 | 0.00 | 1.00 | $170,000 | $0 |
Roll Value History
| 2025 | N/A | N/A | N/A | N/A | N/A |
| 2024 | $412,998 | $150,000 | $0 | $562,998 | $562,998 |
| 2023 | $378,582 | $140,000 | $0 | $518,582 | $518,582 |
| 2022 | $374,781 | $135,000 | $0 | $509,781 | $509,781 |
| 2021 | $282,720 | $125,000 | $0 | $407,720 | $407,720 |
Deed and Sales History
| 1 | 12/09/2021 | SWD | Statutory Warranty Deed | BARBARA A & SCOTT D REMINGTON | ALLENE R NIEHAUS | | | $515,000.00 | 138213 | |
| 2 | 12/13/2012 | SWD | Statutory Warranty Deed | FRED KIMBALL | BARBARA A & SCOTT D REMINGTON | | | $231,000.00 | 118494 | |
| 3 | 09/26/2012 | QCD | Quit Claim Deed | KIMBALL AND LANDIS LLC | KIMBALL, FRED/JANIE & LANDIS, | 0 | 0 | $0.00 | 118098 | 0 |
Payout Agreement
| No payout information available.. |