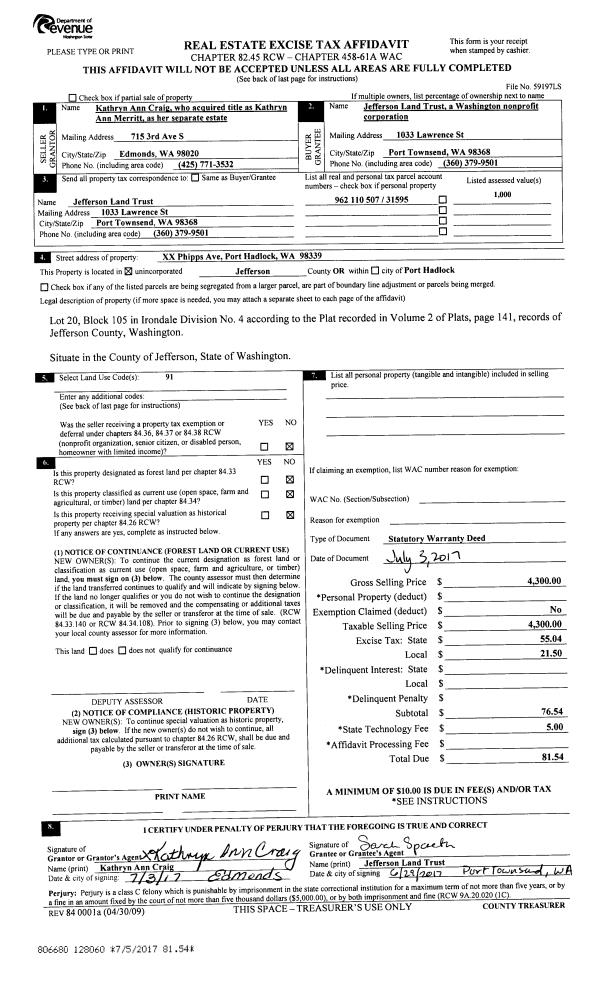
Property
Account |
| Property ID: | 42539 | Abbreviated Legal Description: | SNOW CREEK RANCH LOT 13 |
| Parcel # / Geo ID: | 995400012 | Agent Code: | |
| Type: | Real | | |
| Tax Area: | 0351 - 1-48F5E5H2C2L1 | Land Use Code | 11 |
| Open Space: | N | DFL | N |
| Historic Property: | N | Remodel Property: | N |
| Multi-Family Redevelopment: | N | | |
| Township: | 28N | Section: | 12 |
| Range: | 2W |
Location |
| Address: | 51 E SNOW CREEK WAY QUILCENE, WA 98376 | Mapsco: | 110/013 |
| Neighborhood: | SNOW CREEK RANCH & MITCHELL TRACT (ADJ LOT 64) | Map ID: | |
| Neighborhood CD: | 2615 |
Owner |
| Name: | LAURA SCHLETZBAUM | Owner ID: | 101311 |
| Mailing Address: | 51 SNOW CREEK WAY E QUILCENE, WA 98376-8520 | % Ownership: | 100.0000000000% |
| | | Exemptions: | |
Pay Tax Due
There is currently No Amount Due on this property.
Taxes and Assessment Details
Property Tax Information as of
10/24/2025
Click on "Statement Details" to expand or collapse a tax statement.
* Please enter a valid date ** Please enter a valid date *
Statement Details |
| | TOTAL: | $0.00 | $0.00 | $0.00 | $0.00 | $0.00 | $0.00 |
|
| | $0.00 | $0.00 | $0.00 | $0.00 | $0.00 | $0.00 |
Values
| (+) Improvement Homesite Value: | + | $0 | |
| (+) Improvement Non-Homesite Value: | + | $327,094 | |
| (+) Land Homesite Value: | + | $0 | |
| (+) Land Non-Homesite Value: | + | $127,809 | |
| (+) Curr Use (HS): | + | $0 | $0 |
| (+) Curr Use (NHS): | + | $0 | $0 |
| | | -------------------------- | |
| (=) Market Value: | = | $454,903 | |
| (–) Productivity Loss: | – | $0 | |
| | | -------------------------- | |
| (=) Subtotal: | = | $454,903 | |
| (+) Senior Appraised Value: | + | $0 | |
| (+) Non-Senior Appraised Value: | + | $454,903 | |
| | | -------------------------- | |
| (=) Total Appraised Value: | = | $454,903 | |
| (–) Senior Exemption Loss: | – | $0 | |
| (–) Exemption Loss: | – | $0 | |
| | | -------------------------- | |
| (=) Taxable Value: | = | $454,903 | |
Taxing Jurisdiction
| Owner: | LAURA SCHLETZBAUM | | |
| % Ownership: | 100.0000000000% | | |
| Total Value: | N/A | | |
| Tax Area: | 0351 - 1-48F5E5H2C2L1 |
| CE | COUNTY CURRENT EXPENSE | N/A | N/A | N/A | N/A | | |
| CNTYDD | DEVELOPMENTAL DISABILITIES | N/A | N/A | N/A | N/A | | |
| CNTYVET | VETERANS RELIEF | N/A | N/A | N/A | N/A | | |
| MENTAL | MENTAL HEALTH | N/A | N/A | N/A | N/A | | |
| ROADS | COUNTY ROADS | N/A | N/A | N/A | N/A | | |
| ROADSCU | COUNTY ROADS TO CUR EXP | N/A | N/A | N/A | N/A | | |
| HOSP2CASH | HOSP DIST #2 GENERAL | N/A | N/A | N/A | N/A | | |
| SCH48MO | SCHOOL DIST #48 EP & O | N/A | N/A | N/A | N/A | | |
| CEM2 | CEMETERY DIST #2 GENERAL | N/A | N/A | N/A | N/A | | |
| CONSERVE | CONSERVATION FUTURES | N/A | N/A | N/A | N/A | | |
| EMS5 | FIRE DIST #5 EMS | N/A | N/A | N/A | N/A | | |
| FD5 | FIRE DIST #5 GENERAL | N/A | N/A | N/A | N/A | | |
| FD5BOND | FIRE DIST #5 BOND 2016 | N/A | N/A | N/A | N/A | | |
| LIB1 | LIBRARY DIST #1 GENERAL | N/A | N/A | N/A | N/A | | |
| PORTPT | PORT OF PT GENERAL | N/A | N/A | N/A | N/A | | |
| PORTPTIDD | PORT OF PT IDD 2019 | N/A | N/A | N/A | N/A | | |
| PUD1 | PUD #1 GENERAL | N/A | N/A | N/A | N/A | | |
| STATE | STATE SCHOOL PART 1 | N/A | N/A | N/A | N/A | | |
| STATE2 | STATE SCHOOL PART 2 | N/A | N/A | N/A | N/A | | |
| | Total Tax Rate: | N/A | | | | | |
| | | | | Taxes w/Current Exemptions: | N/A | | |
| | | | | Taxes w/o Exemptions: | N/A | | |
Improvement / Building
| Improvement #1: | Residential Bldg | State Code: | 11 | 1232.0 sqft | Value: | $295,476 |
| Bathrooms (#): | 1 (FULL) | Bathrooms (#): | 1 (HALF) | | Bedrooms (#): | 2 | Exterior Wall: | SI/ST | | Fireplace: | WD ST-GOOD | Fireplace: | SIN 1-GOOD | | Floor Construction: | FRAME | Foundation: | PO&BL | | Heating/Cooling: | HPUMP | Roof Cover: | COMP |
|
| | Type | Description | Class CD | Sub Class CD | Year Built | Area |
| | MA | Main Area | 4- | 1S | 1925 | 1232.0 |
| | HWPOR | House Wood Porch | 4 | * | 1925 | 75.0 |
| | SHED | Shed (Table Not Dep) | 2 | * | 1925 | 112.0 |
| Improvement #2: | Residential Bldg | State Code: | 11 | 0.0 sqft | Value: | $31,618 |
Sketch
Property Image
Land
| 1 | 1572A | Terr/Mtn/No View <6 Acres | 0.8100 | 35283.60 | 0.00 | 0.00 | 0.00 | $12,809 | $0 |
| 2 | 2615-1372S | V Good Terr View Sites Snow Creek Ranch | 1.0000 | 43560.00 | 0.00 | 0.00 | 1.00 | $115,000 | $0 |
Roll Value History
| 2025 | N/A | N/A | N/A | N/A | N/A |
| 2024 | $313,465 | $122,252 | $0 | $435,717 | $435,717 |
| 2023 | $299,836 | $110,807 | $0 | $410,643 | $410,643 |
| 2022 | $272,578 | $98,100 | $0 | $370,678 | $370,678 |
| 2021 | $225,737 | $85,290 | $0 | $311,027 | $311,027 |
Deed and Sales History
| 1 | 07/02/2019 | SWD | Statutory Warranty Deed | LISA A WALSH | LAURA SCHLETZBAUM | | | $297,000.00 | 132677 | |
| 2 | 01/15/2016 | SWD | Statutory Warranty Deed | TERRIANNE MAYS | LISA A WALSH | | | $75,000.00 | 124753 | |
| 3 | 11/12/2003 | SWD | Statutory Warranty Deed | DITTENBERGER, RICHARD J/S | MAYS, TERRIANNE | 0 | 0 | $130,000.00 | 98807 | 0 |
| 4 | 08/13/2001 | SWD | Statutory Warranty Deed | CROSS, MARY M | DITTENBERGER, RICHARD J/SHARON | 0 | 0 | $85,000.00 | 92898 | 0 |
Payout Agreement
| No payout information available.. |