Property
Account |
| Property ID: | 42552 | Abbreviated Legal Description: | SNOW CREEK RANCH LOT 26 (REVISED) |
| Parcel # / Geo ID: | 995400025 | Agent Code: | |
| Type: | Real | | |
| Tax Area: | 0351 - 1-48F5E5H2C2L1 | Land Use Code | 91 |
| Open Space: | N | DFL | N |
| Historic Property: | N | Remodel Property: | N |
| Multi-Family Redevelopment: | N | | |
| Township: | 28N | Section: | 2 |
| Range: | 2W |
Location |
| Address: | | Mapsco: | 110/026 |
| Neighborhood: | SNOW CREEK RANCH & MITCHELL TRACT (ADJ LOT 64) | Map ID: | |
| Neighborhood CD: | 2615 |
Owner |
| Name: | JEFFERSON LAND TRUST | Owner ID: | 19007 |
| Mailing Address: | 1033 LAWRENCE ST PORT TOWNSEND, WA 98368-6523 | % Ownership: | 100.0000000000% |
| | | Exemptions: | EX |
Pay Tax Due
There is currently No Amount Due on this property.
Taxes and Assessment Details
Property Tax Information as of
10/24/2025
Click on "Statement Details" to expand or collapse a tax statement.
* Please enter a valid date ** Please enter a valid date *
Statement Details |
| | TOTAL: | $0.00 | $0.00 | $0.00 | $0.00 | $0.00 | $0.00 |
|
| | $0.00 | $0.00 | $0.00 | $0.00 | $0.00 | $0.00 |
Values
| (+) Improvement Homesite Value: | + | $0 | |
| (+) Improvement Non-Homesite Value: | + | $0 | |
| (+) Land Homesite Value: | + | $0 | |
| (+) Land Non-Homesite Value: | + | $17,250 | |
| (+) Curr Use (HS): | + | $0 | $0 |
| (+) Curr Use (NHS): | + | $0 | $0 |
| | | -------------------------- | |
| (=) Market Value: | = | $17,250 | |
| (–) Productivity Loss: | – | $0 | |
| | | -------------------------- | |
| (=) Subtotal: | = | $17,250 | |
| (+) Senior Appraised Value: | + | $0 | |
| (+) Non-Senior Appraised Value: | + | $17,250 | |
| | | -------------------------- | |
| (=) Total Appraised Value: | = | $17,250 | |
| (–) Senior Exemption Loss: | – | $0 | |
| (–) Exemption Loss: | – | $17,250 | |
| | | -------------------------- | |
| (=) Taxable Value: | = | $0 | |
Taxing Jurisdiction
| Owner: | JEFFERSON LAND TRUST | | |
| % Ownership: | 100.0000000000% | | |
| Total Value: | N/A | | |
| Tax Area: | 0351 - 1-48F5E5H2C2L1 |
| CE | COUNTY CURRENT EXPENSE | N/A | N/A | N/A | N/A | | |
| CNTYDD | DEVELOPMENTAL DISABILITIES | N/A | N/A | N/A | N/A | | |
| CNTYVET | VETERANS RELIEF | N/A | N/A | N/A | N/A | | |
| MENTAL | MENTAL HEALTH | N/A | N/A | N/A | N/A | | |
| ROADS | COUNTY ROADS | N/A | N/A | N/A | N/A | | |
| ROADSCU | COUNTY ROADS TO CUR EXP | N/A | N/A | N/A | N/A | | |
| HOSP2CASH | HOSP DIST #2 GENERAL | N/A | N/A | N/A | N/A | | |
| SCH48MO | SCHOOL DIST #48 EP & O | N/A | N/A | N/A | N/A | | |
| CEM2 | CEMETERY DIST #2 GENERAL | N/A | N/A | N/A | N/A | | |
| CONSERVE | CONSERVATION FUTURES | N/A | N/A | N/A | N/A | | |
| EMS5 | FIRE DIST #5 EMS | N/A | N/A | N/A | N/A | | |
| FD5 | FIRE DIST #5 GENERAL | N/A | N/A | N/A | N/A | | |
| FD5BOND | FIRE DIST #5 BOND 2016 | N/A | N/A | N/A | N/A | | |
| LIB1 | LIBRARY DIST #1 GENERAL | N/A | N/A | N/A | N/A | | |
| PORTPT | PORT OF PT GENERAL | N/A | N/A | N/A | N/A | | |
| PORTPTIDD | PORT OF PT IDD 2019 | N/A | N/A | N/A | N/A | | |
| PUD1 | PUD #1 GENERAL | N/A | N/A | N/A | N/A | | |
| STATE | STATE SCHOOL PART 1 | N/A | N/A | N/A | N/A | | |
| STATE2 | STATE SCHOOL PART 2 | N/A | N/A | N/A | N/A | | |
| | Total Tax Rate: | N/A | | | | | |
| | | | | Taxes w/Current Exemptions: | N/A | | |
| | | | | Taxes w/o Exemptions: | N/A | | |
Improvement / Building
Sketch
| No sketches available for this property. |
Property Image
Land
| 1 | 2615-1377S | Large Terr View Sites Snow Crk Rch on Foothill Dr | 0.0000 | 0.00 | 0.00 | 0.00 | 1.00 | $17,250 | $0 |
Roll Value History
| 2025 | N/A | N/A | N/A | N/A | N/A |
| 2024 | $0 | $16,500 | $0 | $16,500 | $0 |
| 2023 | $0 | $15,750 | $0 | $15,750 | $0 |
| 2022 | $0 | $15,000 | $0 | $15,000 | $0 |
| 2021 | $0 | $12,000 | $0 | $12,000 | $0 |
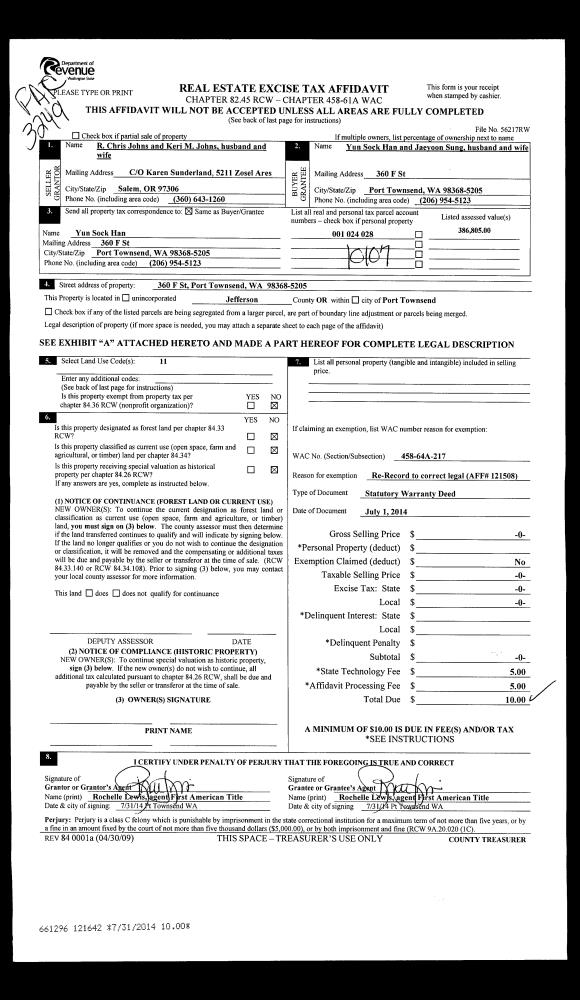
Deed and Sales History
| 1 | 08/19/2015 | SWD | Statutory Warranty Deed | SNOW CREEK HOMES LLC | JEFFERSON LAND TRUST | | | $270,000.00 | 123821 | |
|   | |
| 2 | 09/08/2003 | SWD | Statutory Warranty Deed | IRVIN, MICHAEL Z/TRUSTEE | SNOW CREEK HOMES LLC | 0 | 0 | $0.00 | 98458 | 0 |
| 3 | 09/08/2003 | SWD | Statutory Warranty Deed | IRVIN, MICHAEL Z/TRUSTEE | SNOW CREEK HOMES LLC | 0 | 0 | $0.00 | 98460 | 0 |
Payout Agreement
| No payout information available.. |