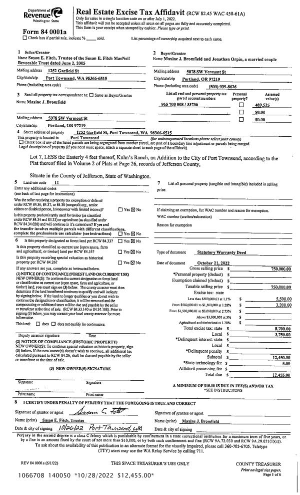
Property
Account |
| Property ID: | 42829 | Abbreviated Legal Description: | SOUTH PORT TOWNSEND BLK 7 LOT 15 |
| Parcel # / Geo ID: | 996400707 | Agent Code: | |
| Type: | Real | | |
| Tax Area: | 0211 - 1-49F1E1H2L1 | Land Use Code | 11 |
| Open Space: | N | DFL | N |
| Historic Property: | N | Remodel Property: | N |
| Multi-Family Redevelopment: | N | | |
| Township: | 29N | Section: | 2 |
| Range: | 1W |
Location |
| Address: | 111 C ST PORT HADLOCK, WA 98339 | Mapsco: | 128/016 |
| Neighborhood: | HAYDEN'S; PHILLIP'S TO IRONDALE; SOUTH PORT TOWNSEND | Map ID: | |
| Neighborhood CD: | 4212 |
Owner |
| Name: | MAY E TRACER-KLOUZAL REVOCABLE TRUST | Owner ID: | 108624 |
| Mailing Address: | MAY E TRACER TRUSTEE PO BOX 1440 PORT HADLOCK, WA 98339-1440 | % Ownership: | 100.0000000000% |
| | | Exemptions: | |
Pay Tax Due
There is currently No Amount Due on this property.
Taxes and Assessment Details
Property Tax Information as of
10/24/2025
Click on "Statement Details" to expand or collapse a tax statement.
* Please enter a valid date ** Please enter a valid date *
Statement Details |
| | TOTAL: | $0.00 | $0.00 | $0.00 | $0.00 | $0.00 | $0.00 |
|
| | $0.00 | $0.00 | $0.00 | $0.00 | $0.00 | $0.00 |
Values
| (+) Improvement Homesite Value: | + | $0 | |
| (+) Improvement Non-Homesite Value: | + | $291,471 | |
| (+) Land Homesite Value: | + | $0 | |
| (+) Land Non-Homesite Value: | + | $60,500 | |
| (+) Curr Use (HS): | + | $0 | $0 |
| (+) Curr Use (NHS): | + | $0 | $0 |
| | | -------------------------- | |
| (=) Market Value: | = | $351,971 | |
| (–) Productivity Loss: | – | $0 | |
| | | -------------------------- | |
| (=) Subtotal: | = | $351,971 | |
| (+) Senior Appraised Value: | + | $0 | |
| (+) Non-Senior Appraised Value: | + | $351,971 | |
| | | -------------------------- | |
| (=) Total Appraised Value: | = | $351,971 | |
| (–) Senior Exemption Loss: | – | $0 | |
| (–) Exemption Loss: | – | $0 | |
| | | -------------------------- | |
| (=) Taxable Value: | = | $351,971 | |
Taxing Jurisdiction
| Owner: | MAY E TRACER-KLOUZAL REVOCABLE TRUST | | |
| % Ownership: | 100.0000000000% | | |
| Total Value: | N/A | | |
| Tax Area: | 0211 - 1-49F1E1H2L1 |
| CE | COUNTY CURRENT EXPENSE | N/A | N/A | N/A | N/A | | |
| CNTYDD | DEVELOPMENTAL DISABILITIES | N/A | N/A | N/A | N/A | | |
| CNTYVET | VETERANS RELIEF | N/A | N/A | N/A | N/A | | |
| MENTAL | MENTAL HEALTH | N/A | N/A | N/A | N/A | | |
| ROADS | COUNTY ROADS | N/A | N/A | N/A | N/A | | |
| ROADSCU | COUNTY ROADS TO CUR EXP | N/A | N/A | N/A | N/A | | |
| HOSP2CASH | HOSP DIST #2 GENERAL | N/A | N/A | N/A | N/A | | |
| SCH49CP | SCHOOL DIST #49 CAP PROJ | N/A | N/A | N/A | N/A | | |
| SCH49MO | SCHOOL DIST #49 EP & O | N/A | N/A | N/A | N/A | | |
| CONSERVE | CONSERVATION FUTURES | N/A | N/A | N/A | N/A | | |
| EMS1 | FIRE DIST #1 EMS | N/A | N/A | N/A | N/A | | |
| FD1 | FIRE DIST #1 GENERAL | N/A | N/A | N/A | N/A | | |
| LIB1 | LIBRARY DIST #1 GENERAL | N/A | N/A | N/A | N/A | | |
| PORTPT | PORT OF PT GENERAL | N/A | N/A | N/A | N/A | | |
| PORTPTIDD | PORT OF PT IDD 2019 | N/A | N/A | N/A | N/A | | |
| PUD1 | PUD #1 GENERAL | N/A | N/A | N/A | N/A | | |
| STATE | STATE SCHOOL PART 1 | N/A | N/A | N/A | N/A | | |
| STATE2 | STATE SCHOOL PART 2 | N/A | N/A | N/A | N/A | | |
| | Total Tax Rate: | N/A | | | | | |
| | | | | Taxes w/Current Exemptions: | N/A | | |
| | | | | Taxes w/o Exemptions: | N/A | | |
Improvement / Building
| Improvement #1: | Residential Bldg | State Code: | 11 | 1456.0 sqft | Value: | $291,471 |
| Bathrooms (#): | 2 (FULL) | Bedrooms (#): | 2 | | Exterior Wall: | SI/ST | Fireplace: | WD ST-AVG | | Floor Construction: | FRAME | Foundation: | CONPR | | Heating/Cooling: | HPUMP | Inside Verify: | YES-FIX | | Roof Cover: | COMP |   |   |
|
| | Type | Description | Class CD | Sub Class CD | Year Built | Area |
| | MA | Main Area | 4 | 1S | 1985 | 1456.0 |
| | HDECK | House Deck | 4 | * | 1985 | 128.0 |
| | GATT | House Attached Garage | 3 | 1S | 1985 | 704.0 |
Sketch
| No sketches available for this property. |
Property Image
Land
| 1 | 4212-1285S | South Port Townsend 2 Lot Sites | 0.0000 | 0.00 | 0.00 | 0.00 | 1.00 | $60,500 | $0 |
Roll Value History
| 2025 | N/A | N/A | N/A | N/A | N/A |
| 2024 | $278,798 | $57,750 | $0 | $336,548 | $336,548 |
| 2023 | $266,126 | $50,000 | $0 | $316,126 | $316,126 |
| 2022 | $232,493 | $45,000 | $0 | $277,493 | $277,493 |
| 2021 | $215,271 | $39,000 | $0 | $254,271 | $254,271 |
Deed and Sales History
| 1 | 03/22/2023 | QCD | Quit Claim Deed | | MAY E TRACER-KLOUZAL REVOCABLE TRUST | | | | 140763 | |
| 2 | 03/22/2023 | QCD | Quit Claim Deed | MAY TRACER | MAY E TRACER-KLOUZAL REVOCABLE TRUST | | | | 140763 | |
| 3 | 09/01/2021 | QCD | Quit Claim Deed | WILLIAM O TRACER | MAY TRACER | | | | 137973 | |
| 4 | 04/05/1995 | SWD | Statutory Warranty Deed | LEWIS, JEANNETTE/TRUST | TRACER, WILLIAM O/MAY E | 0 | 0 | $102,000.00 | 76695 | 0 |
|   | |
| 5 | 02/17/1994 | QCD | Quit Claim Deed | EARHART, JEANNETTE | LEWIS, JEANNETTE/TRUST | 0 | 0 | $0.00 | 73388 | 0 |
Payout Agreement
| No payout information available.. |