Property
Account |
| Property ID: | 42858 | Abbreviated Legal Description: | SOUTH PORT TOWNSEND BLK 12 LOTS 1 THRU 8, 10 THRU 13 W/PTN S/VAC 2ND ST ADJ SUBJ/RESTRVE COVNT AF#479040 |
| Parcel # / Geo ID: | 996401201 | Agent Code: | |
| Type: | Real | | |
| Tax Area: | 0211 - 1-49F1E1H2L1 | Land Use Code | 11 |
| Open Space: | N | DFL | N |
| Historic Property: | N | Remodel Property: | N |
| Multi-Family Redevelopment: | N | | |
| Township: | 29N | Section: | 2 |
| Range: | 1W |
Location |
| Address: | 150 D ST 190 PORT HADLOCK, WA 98339 | Mapsco: | 128/053 |
| Neighborhood: | HAYDEN'S; PHILLIP'S TO IRONDALE; SOUTH PORT TOWNSEND | Map ID: | |
| Neighborhood CD: | 4212 |
Owner |
| Name: | RONALD VASENDA | Owner ID: | 29562 |
| Mailing Address: | KIMBERLY VASENDA PO BOX 253 PORT HADLOCK, WA 98339 | % Ownership: | 100.0000000000% |
| | | Exemptions: | |
Pay Tax Due
There is currently No Amount Due on this property.
Taxes and Assessment Details
Property Tax Information as of
10/24/2025
Click on "Statement Details" to expand or collapse a tax statement.
* Please enter a valid date ** Please enter a valid date *
Statement Details |
| | TOTAL: | $0.00 | $0.00 | $0.00 | $0.00 | $0.00 | $0.00 |
|
| | $0.00 | $0.00 | $0.00 | $0.00 | $0.00 | $0.00 |
Values
| (+) Improvement Homesite Value: | + | $0 | |
| (+) Improvement Non-Homesite Value: | + | $150,843 | |
| (+) Land Homesite Value: | + | $0 | |
| (+) Land Non-Homesite Value: | + | $185,702 | |
| (+) Curr Use (HS): | + | $0 | $0 |
| (+) Curr Use (NHS): | + | $0 | $0 |
| | | -------------------------- | |
| (=) Market Value: | = | $336,545 | |
| (–) Productivity Loss: | – | $0 | |
| | | -------------------------- | |
| (=) Subtotal: | = | $336,545 | |
| (+) Senior Appraised Value: | + | $0 | |
| (+) Non-Senior Appraised Value: | + | $336,545 | |
| | | -------------------------- | |
| (=) Total Appraised Value: | = | $336,545 | |
| (–) Senior Exemption Loss: | – | $0 | |
| (–) Exemption Loss: | – | $0 | |
| | | -------------------------- | |
| (=) Taxable Value: | = | $336,545 | |
Taxing Jurisdiction
| Owner: | RONALD VASENDA | | |
| % Ownership: | 100.0000000000% | | |
| Total Value: | N/A | | |
| Tax Area: | 0211 - 1-49F1E1H2L1 |
| CE | COUNTY CURRENT EXPENSE | N/A | N/A | N/A | N/A | | |
| CNTYDD | DEVELOPMENTAL DISABILITIES | N/A | N/A | N/A | N/A | | |
| CNTYVET | VETERANS RELIEF | N/A | N/A | N/A | N/A | | |
| MENTAL | MENTAL HEALTH | N/A | N/A | N/A | N/A | | |
| ROADS | COUNTY ROADS | N/A | N/A | N/A | N/A | | |
| ROADSCU | COUNTY ROADS TO CUR EXP | N/A | N/A | N/A | N/A | | |
| HOSP2CASH | HOSP DIST #2 GENERAL | N/A | N/A | N/A | N/A | | |
| SCH49CP | SCHOOL DIST #49 CAP PROJ | N/A | N/A | N/A | N/A | | |
| SCH49MO | SCHOOL DIST #49 EP & O | N/A | N/A | N/A | N/A | | |
| CONSERVE | CONSERVATION FUTURES | N/A | N/A | N/A | N/A | | |
| EMS1 | FIRE DIST #1 EMS | N/A | N/A | N/A | N/A | | |
| FD1 | FIRE DIST #1 GENERAL | N/A | N/A | N/A | N/A | | |
| LIB1 | LIBRARY DIST #1 GENERAL | N/A | N/A | N/A | N/A | | |
| PORTPT | PORT OF PT GENERAL | N/A | N/A | N/A | N/A | | |
| PORTPTIDD | PORT OF PT IDD 2019 | N/A | N/A | N/A | N/A | | |
| PUD1 | PUD #1 GENERAL | N/A | N/A | N/A | N/A | | |
| STATE | STATE SCHOOL PART 1 | N/A | N/A | N/A | N/A | | |
| STATE2 | STATE SCHOOL PART 2 | N/A | N/A | N/A | N/A | | |
| | Total Tax Rate: | N/A | | | | | |
| | | | | Taxes w/Current Exemptions: | N/A | | |
| | | | | Taxes w/o Exemptions: | N/A | | |
Improvement / Building
| Improvement #1: | Residential Bldg | State Code: | 11M | 1553.8 sqft | Value: | $150,843 |
| Bathrooms (#): | 2 (FULL) | Bedrooms (#): | 3 | | Exterior Wall: | SI/ST | Foundation: | CONBL | | Inside Verify: | NO | Roof Cover: | COMP |
|
| | Type | Description | Class CD | Sub Class CD | Year Built | Area |
| | MA | Main Area | 4 | MDBL | 2025 | 1553.8 |
| | MWPOR | MH Wood Porch | 3 | * | 2025 | 56.0 |
Sketch
Property Image
Land
| 1 | 4212-1187L | Additional Lots for 2 Lot Sites | 0.0000 | 0.00 | 0.00 | 0.00 | 1.00 | $42,702 | $0 |
| 2 | 4212-1285S | South Port Townsend 2 Lot Sites | 1.5200 | 66211.20 | 0.00 | 0.00 | 2.00 | $143,000 | $0 |
Roll Value History
| 2025 | N/A | N/A | N/A | N/A | N/A |
| 2024 | $0 | $187,761 | $0 | $187,761 | $187,761 |
| 2023 | $0 | $178,820 | $0 | $178,820 | $178,820 |
| 2022 | $32,367 | $178,820 | $0 | $211,187 | $211,187 |
| 2021 | $29,969 | $212,508 | $0 | $242,477 | $242,477 |
Deed and Sales History
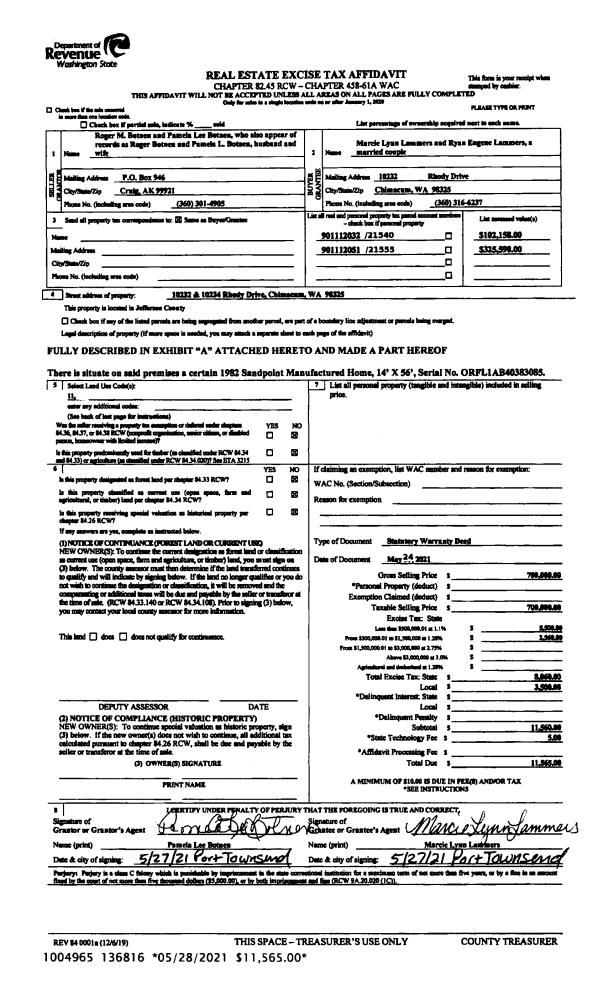
| 1 | 08/11/2021 | SWD | Statutory Warranty Deed | RITA J THACKER-SCHLIEF | RONALD VASENDA | | | $225,000.00 | 137407 | |
| 2 | 09/15/2011 | WD | Warranty Deed | YACKULIC ESTATE, HELEN GL | THACKER-SCHLIEF, RITA | 0 | 0 | $0.00 | 116535 | 0 |
| 3 | 06/21/2011 | PRD | Personal Representatives Deed | YACKULIC, HELEN ESTATE OF | THACKER-SCHLIEF, RITA | | | $0.00 | 116169 | 0 |
Payout Agreement
| No payout information available.. |