Property
Account |
| Property ID: | 42866 | Abbreviated Legal Description: | SQUAMISH HARBOR BCH LOT 5 (INC. T.L.'S ADJ) |
| Parcel # / Geo ID: | 996600005 | Agent Code: | |
| Type: | Real | | |
| Tax Area: | 0213 - 1-49F1E1H2L1 | Land Use Code | 11 |
| Open Space: | N | DFL | N |
| Historic Property: | N | Remodel Property: | N |
| Multi-Family Redevelopment: | N | | |
| Township: | 27N | Section: | 4 |
| Range: | 1E |
Location |
| Address: | 941 SOUTH POINT RD PORT LUDLOW, WA 98365 | Mapsco: | 129/005 |
| Neighborhood: | PLAT OF SQUAMISH HARBOR BEACH | Map ID: | |
| Neighborhood CD: | 3415 |
Owner |
| Name: | RICHARD C PREBLE | Owner ID: | 103732 |
| Mailing Address: | 17791 FJORD DR NE STE 136 POULSBO, WA 98370-8483 | % Ownership: | 100.0000000000% |
| | | Exemptions: | |
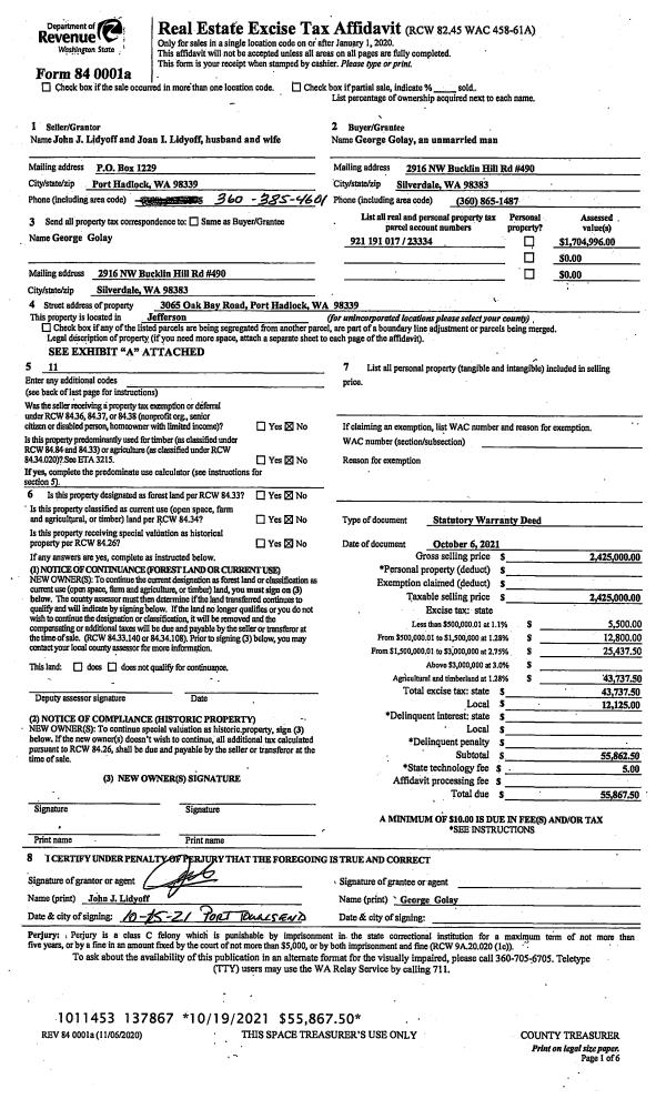
Pay Tax Due
There is currently No Amount Due on this property.
Taxes and Assessment Details
Property Tax Information as of
10/24/2025
Click on "Statement Details" to expand or collapse a tax statement.
* Please enter a valid date ** Please enter a valid date *
Statement Details |
| | TOTAL: | $0.00 | $0.00 | $0.00 | $0.00 | $0.00 | $0.00 |
|
| | $0.00 | $0.00 | $0.00 | $0.00 | $0.00 | $0.00 |
Values
| (+) Improvement Homesite Value: | + | $0 | |
| (+) Improvement Non-Homesite Value: | + | $207,662 | |
| (+) Land Homesite Value: | + | $0 | |
| (+) Land Non-Homesite Value: | + | $304,500 | |
| (+) Curr Use (HS): | + | $0 | $0 |
| (+) Curr Use (NHS): | + | $0 | $0 |
| | | -------------------------- | |
| (=) Market Value: | = | $512,162 | |
| (–) Productivity Loss: | – | $0 | |
| | | -------------------------- | |
| (=) Subtotal: | = | $512,162 | |
| (+) Senior Appraised Value: | + | $0 | |
| (+) Non-Senior Appraised Value: | + | $512,162 | |
| | | -------------------------- | |
| (=) Total Appraised Value: | = | $512,162 | |
| (–) Senior Exemption Loss: | – | $0 | |
| (–) Exemption Loss: | – | $0 | |
| | | -------------------------- | |
| (=) Taxable Value: | = | $512,162 | |
Taxing Jurisdiction
| Owner: | RICHARD C PREBLE | | |
| % Ownership: | 100.0000000000% | | |
| Total Value: | N/A | | |
| Tax Area: | 0213 - 1-49F1E1H2L1 |
| CE | COUNTY CURRENT EXPENSE | N/A | N/A | N/A | N/A | | |
| CNTYDD | DEVELOPMENTAL DISABILITIES | N/A | N/A | N/A | N/A | | |
| CNTYVET | VETERANS RELIEF | N/A | N/A | N/A | N/A | | |
| MENTAL | MENTAL HEALTH | N/A | N/A | N/A | N/A | | |
| ROADS | COUNTY ROADS | N/A | N/A | N/A | N/A | | |
| ROADSCU | COUNTY ROADS TO CUR EXP | N/A | N/A | N/A | N/A | | |
| HOSP2CASH | HOSP DIST #2 GENERAL | N/A | N/A | N/A | N/A | | |
| SCH49CP | SCHOOL DIST #49 CAP PROJ | N/A | N/A | N/A | N/A | | |
| SCH49MO | SCHOOL DIST #49 EP & O | N/A | N/A | N/A | N/A | | |
| CONSERVE | CONSERVATION FUTURES | N/A | N/A | N/A | N/A | | |
| EMS1 | FIRE DIST #1 EMS | N/A | N/A | N/A | N/A | | |
| FD1 | FIRE DIST #1 GENERAL | N/A | N/A | N/A | N/A | | |
| LIB1 | LIBRARY DIST #1 GENERAL | N/A | N/A | N/A | N/A | | |
| PORTPT | PORT OF PT GENERAL | N/A | N/A | N/A | N/A | | |
| PORTPTIDD | PORT OF PT IDD 2019 | N/A | N/A | N/A | N/A | | |
| PUD1 | PUD #1 GENERAL | N/A | N/A | N/A | N/A | | |
| STATE | STATE SCHOOL PART 1 | N/A | N/A | N/A | N/A | | |
| STATE2 | STATE SCHOOL PART 2 | N/A | N/A | N/A | N/A | | |
| | Total Tax Rate: | N/A | | | | | |
| | | | | Taxes w/Current Exemptions: | N/A | | |
| | | | | Taxes w/o Exemptions: | N/A | | |
Improvement / Building
| Improvement #1: | Manufactured Home | State Code: | 11 | 1188.0 sqft | Value: | $207,662 |
| Bathrooms (#): | 2 (FULL) | Bedrooms (#): | 2 | | Exterior Wall: | PL/T1 | Fireplace: | WD ST-GOOD | | Floor Construction: | FRAME | Foundation: | CONPR | | Heating/Cooling: | F/A | Inside Verify: | NO | | Roof Cover: | COMP |   |   |
|
| | Type | Description | Class CD | Sub Class CD | Year Built | Area |
| | MA | Main Area | 3+ | 1S | 1991 | 1188.0 |
| | HDECK | House Deck | 3 | * | 1991 | 224.0 |
| | SHED | Shed (Table Not Dep) | 4 | * | 1991 | 96.0 |
| | OTHER | Other | 3 | * | 1991 | 0.0 |
| | MDECK | MH Deck | 3 | * | 2021 | 128.0 |
Sketch
Property Image
Land
| 1 | 3415-1125S | Medium Bank Wtrfrt Squamish Harbor Beach | 0.0000 | 0.00 | 0.00 | 0.00 | 1.00 | $304,500 | $0 |
Roll Value History
| 2025 | N/A | N/A | N/A | N/A | N/A |
| 2024 | $198,634 | $290,000 | $0 | $488,634 | $488,634 |
| 2023 | $198,634 | $285,000 | $0 | $483,634 | $483,634 |
| 2022 | $198,634 | $280,000 | $0 | $478,634 | $478,634 |
| 2021 | $141,476 | $256,500 | $0 | $397,976 | $397,976 |
Deed and Sales History
| 1 | 11/11/2020 | SWD | Statutory Warranty Deed | BARNEY A KIM | RICHARD C PREBLE | | | $430,000.00 | 135598 | |
| 2 | 07/26/2005 | SWD | Statutory Warranty Deed | DE ROSA, RUTH G | KIM, BARNEY & MABELINE | 0 | 0 | $325,000.00 | 104361 | 0 |
Payout Agreement
| No payout information available.. |