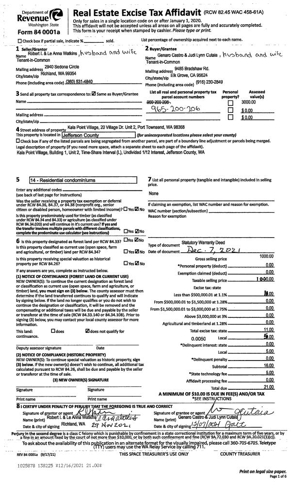
Property
Account |
| Property ID: | 42882 | Abbreviated Legal Description: | SQUAMISH HARBOR BCH LOT 25 (INC. T.L.'S ADJ) |
| Parcel # / Geo ID: | 996600025 | Agent Code: | |
| Type: | Real | | |
| Tax Area: | 0213 - 1-49F1E1H2L1 | Land Use Code | 11 |
| Open Space: | N | DFL | N |
| Historic Property: | N | Remodel Property: | N |
| Multi-Family Redevelopment: | N | | |
| Township: | 27N | Section: | 5 |
| Range: | 1E |
Location |
| Address: | 631 SOUTH POINT RD PORT LUDLOW, WA 98365 | Mapsco: | 129/025 |
| Neighborhood: | PLAT OF SQUAMISH HARBOR BEACH | Map ID: | |
| Neighborhood CD: | 3415 |
Owner |
| Name: | ELAINE C GIRARD | Owner ID: | 93198 |
| Mailing Address: | 631 S POINT RD PORT LUDLOW, WA 98365-9296 | % Ownership: | 100.0000000000% |
| | | Exemptions: | |
Pay Tax Due
There is currently No Amount Due on this property.
Taxes and Assessment Details
Property Tax Information as of
10/24/2025
Click on "Statement Details" to expand or collapse a tax statement.
* Please enter a valid date ** Please enter a valid date *
Statement Details |
| | TOTAL: | $0.00 | $0.00 | $0.00 | $0.00 | $0.00 | $0.00 |
|
| | $0.00 | $0.00 | $0.00 | $0.00 | $0.00 | $0.00 |
Values
| (+) Improvement Homesite Value: | + | $0 | |
| (+) Improvement Non-Homesite Value: | + | $340,475 | |
| (+) Land Homesite Value: | + | $0 | |
| (+) Land Non-Homesite Value: | + | $372,750 | |
| (+) Curr Use (HS): | + | $0 | $0 |
| (+) Curr Use (NHS): | + | $0 | $0 |
| | | -------------------------- | |
| (=) Market Value: | = | $713,225 | |
| (–) Productivity Loss: | – | $0 | |
| | | -------------------------- | |
| (=) Subtotal: | = | $713,225 | |
| (+) Senior Appraised Value: | + | $0 | |
| (+) Non-Senior Appraised Value: | + | $713,225 | |
| | | -------------------------- | |
| (=) Total Appraised Value: | = | $713,225 | |
| (–) Senior Exemption Loss: | – | $0 | |
| (–) Exemption Loss: | – | $0 | |
| | | -------------------------- | |
| (=) Taxable Value: | = | $713,225 | |
Taxing Jurisdiction
| Owner: | ELAINE C GIRARD | | |
| % Ownership: | 100.0000000000% | | |
| Total Value: | N/A | | |
| Tax Area: | 0213 - 1-49F1E1H2L1 |
| CE | COUNTY CURRENT EXPENSE | N/A | N/A | N/A | N/A | | |
| CNTYDD | DEVELOPMENTAL DISABILITIES | N/A | N/A | N/A | N/A | | |
| CNTYVET | VETERANS RELIEF | N/A | N/A | N/A | N/A | | |
| MENTAL | MENTAL HEALTH | N/A | N/A | N/A | N/A | | |
| ROADS | COUNTY ROADS | N/A | N/A | N/A | N/A | | |
| ROADSCU | COUNTY ROADS TO CUR EXP | N/A | N/A | N/A | N/A | | |
| HOSP2CASH | HOSP DIST #2 GENERAL | N/A | N/A | N/A | N/A | | |
| SCH49CP | SCHOOL DIST #49 CAP PROJ | N/A | N/A | N/A | N/A | | |
| SCH49MO | SCHOOL DIST #49 EP & O | N/A | N/A | N/A | N/A | | |
| CONSERVE | CONSERVATION FUTURES | N/A | N/A | N/A | N/A | | |
| EMS1 | FIRE DIST #1 EMS | N/A | N/A | N/A | N/A | | |
| FD1 | FIRE DIST #1 GENERAL | N/A | N/A | N/A | N/A | | |
| LIB1 | LIBRARY DIST #1 GENERAL | N/A | N/A | N/A | N/A | | |
| PORTPT | PORT OF PT GENERAL | N/A | N/A | N/A | N/A | | |
| PORTPTIDD | PORT OF PT IDD 2019 | N/A | N/A | N/A | N/A | | |
| PUD1 | PUD #1 GENERAL | N/A | N/A | N/A | N/A | | |
| STATE | STATE SCHOOL PART 1 | N/A | N/A | N/A | N/A | | |
| STATE2 | STATE SCHOOL PART 2 | N/A | N/A | N/A | N/A | | |
| | Total Tax Rate: | N/A | | | | | |
| | | | | Taxes w/Current Exemptions: | N/A | | |
| | | | | Taxes w/o Exemptions: | N/A | | |
Improvement / Building
| Improvement #1: | Residential Bldg | State Code: | 11 | 1583.0 sqft | Value: | $340,475 |
| Bathrooms (#): | 2 (FULL) | Bedrooms (#): | 3 | | Exterior Wall: | SI/ST | Fireplace: | PROPS-GOOD | | Floor Construction: | FRAME | Foundation: | CONPR | | Heating/Cooling: | HPUMP | Inside Verify: | YES | | Roof Cover: | COMP |   |   |
|
| | Type | Description | Class CD | Sub Class CD | Year Built | Area |
| | MA | Main Area | 4- | 1S | 1991 | 1583.0 |
| | HCPOR | House Concrete Porch | 4 | * | 1991 | 60.0 |
| | HDECK | House Deck | 4 | * | 1991 | 548.0 |
| | GATT | House Attached Garage | 4 | * | 1991 | 506.0 |
| | OTHER | Other | 4 | * | 1991 | 0.0 |
| | CONCD | Concrete Drive | 4 | * | 1991 | 400.0 |
Sketch
Property Image
Land
| 1 | 3415-1125S | Medium Bank Wtrfrt Squamish Harbor Beach | 0.0000 | 0.00 | 0.00 | 0.00 | 1.00 | $372,750 | $0 |
Roll Value History
| 2025 | N/A | N/A | N/A | N/A | N/A |
| 2024 | $325,672 | $355,000 | $0 | $680,672 | $680,672 |
| 2023 | $325,672 | $350,000 | $0 | $675,672 | $675,672 |
| 2022 | $325,671 | $345,000 | $0 | $670,671 | $670,671 |
| 2021 | $255,293 | $315,563 | $0 | $570,856 | $570,856 |
Deed and Sales History
| 1 | 03/02/2015 | SWD | Statutory Warranty Deed | OK SUN GRIMAUD | ELAINE C GIRARD | | | $442,000.00 | 122765 | |
| 2 | 07/21/2011 | SWD | Statutory Warranty Deed | ASKEW, KELLY S/DAVID R | GRIMAUD, OK SUN | | | $385,000.00 | 116310 | 0 |
| 3 | 08/23/2006 | SWD | Statutory Warranty Deed | ALEXANDER, DONALD & CYNTH | ASKEW, KELLY & DAVID | 0 | 0 | $610,000.00 | 107450 | 0 |
| 4 | 10/01/2003 | WD | Warranty Deed | CRONIN, NORMA MAE/ESTATE | ALEXANDER, DONALD L/CYNTHIA | 0 | 0 | $350,000.00 | 98452 | 0 |
Payout Agreement
| No payout information available.. |