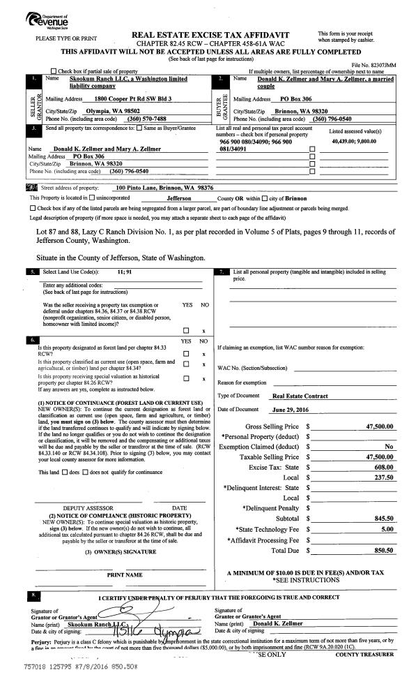
Property
Account |
| Property ID: | 42910 | Abbreviated Legal Description: | STRICKLAND &SWANSON SUBDIVISION.1 LOT 2 |
| Parcel # / Geo ID: | 996900002 | Agent Code: | |
| Type: | Real | | |
| Tax Area: | 0211 - 1-49F1E1H2L1 | Land Use Code | 11 |
| Open Space: | N | DFL | N |
| Historic Property: | N | Remodel Property: | N |
| Multi-Family Redevelopment: | N | | |
| Township: | 28N | Section: | 5 |
| Range: | 1W |
Location |
| Address: | 154 WILD PLUM LN CHIMACUM, WA 98325 | Mapsco: | 129/047 |
| Neighborhood: | S3 & S4 T28N R1W; COUNTRY RIDGE; MT TOWNSEND VISTA; SHT PTS | Map ID: | |
| Neighborhood CD: | 4320 |
Owner |
| Name: | KEITH E RASMUSSEN | Owner ID: | 93347 |
| Mailing Address: | 154 WILD PLUM LANE CHIMACUM, WA 98325-8728 | % Ownership: | 100.0000000000% |
| | | Exemptions: | |
Pay Tax Due
There is currently No Amount Due on this property.
Taxes and Assessment Details
Property Tax Information as of
10/24/2025
Click on "Statement Details" to expand or collapse a tax statement.
* Please enter a valid date ** Please enter a valid date *
Statement Details |
| | TOTAL: | $0.00 | $0.00 | $0.00 | $0.00 | $0.00 | $0.00 |
|
| | $0.00 | $0.00 | $0.00 | $0.00 | $0.00 | $0.00 |
Values
| (+) Improvement Homesite Value: | + | $0 | |
| (+) Improvement Non-Homesite Value: | + | $475,791 | |
| (+) Land Homesite Value: | + | $0 | |
| (+) Land Non-Homesite Value: | + | $171,325 | |
| (+) Curr Use (HS): | + | $0 | $0 |
| (+) Curr Use (NHS): | + | $0 | $0 |
| | | -------------------------- | |
| (=) Market Value: | = | $647,116 | |
| (–) Productivity Loss: | – | $0 | |
| | | -------------------------- | |
| (=) Subtotal: | = | $647,116 | |
| (+) Senior Appraised Value: | + | $0 | |
| (+) Non-Senior Appraised Value: | + | $647,116 | |
| | | -------------------------- | |
| (=) Total Appraised Value: | = | $647,116 | |
| (–) Senior Exemption Loss: | – | $0 | |
| (–) Exemption Loss: | – | $0 | |
| | | -------------------------- | |
| (=) Taxable Value: | = | $647,116 | |
Taxing Jurisdiction
| Owner: | KEITH E RASMUSSEN | | |
| % Ownership: | 100.0000000000% | | |
| Total Value: | N/A | | |
| Tax Area: | 0211 - 1-49F1E1H2L1 |
| CE | COUNTY CURRENT EXPENSE | N/A | N/A | N/A | N/A | | |
| CNTYDD | DEVELOPMENTAL DISABILITIES | N/A | N/A | N/A | N/A | | |
| CNTYVET | VETERANS RELIEF | N/A | N/A | N/A | N/A | | |
| MENTAL | MENTAL HEALTH | N/A | N/A | N/A | N/A | | |
| ROADS | COUNTY ROADS | N/A | N/A | N/A | N/A | | |
| ROADSCU | COUNTY ROADS TO CUR EXP | N/A | N/A | N/A | N/A | | |
| HOSP2CASH | HOSP DIST #2 GENERAL | N/A | N/A | N/A | N/A | | |
| SCH49CP | SCHOOL DIST #49 CAP PROJ | N/A | N/A | N/A | N/A | | |
| SCH49MO | SCHOOL DIST #49 EP & O | N/A | N/A | N/A | N/A | | |
| CONSERVE | CONSERVATION FUTURES | N/A | N/A | N/A | N/A | | |
| EMS1 | FIRE DIST #1 EMS | N/A | N/A | N/A | N/A | | |
| FD1 | FIRE DIST #1 GENERAL | N/A | N/A | N/A | N/A | | |
| LIB1 | LIBRARY DIST #1 GENERAL | N/A | N/A | N/A | N/A | | |
| PORTPT | PORT OF PT GENERAL | N/A | N/A | N/A | N/A | | |
| PORTPTIDD | PORT OF PT IDD 2019 | N/A | N/A | N/A | N/A | | |
| PUD1 | PUD #1 GENERAL | N/A | N/A | N/A | N/A | | |
| STATE | STATE SCHOOL PART 1 | N/A | N/A | N/A | N/A | | |
| STATE2 | STATE SCHOOL PART 2 | N/A | N/A | N/A | N/A | | |
| | Total Tax Rate: | N/A | | | | | |
| | | | | Taxes w/Current Exemptions: | N/A | | |
| | | | | Taxes w/o Exemptions: | N/A | | |
Improvement / Building
| Improvement #1: | Residential Bldg | State Code: | 11 | 2294.0 sqft | Value: | $475,791 |
| Bathrooms (#): | 2 (FULL) | Bedrooms (#): | 3 | | Exterior Wall: | LOG | Fireplace: | WD ST-GOOD | | Floor Construction: | FRAME | Foundation: | CONPR | | Heating/Cooling: | F/A | Roof Cover: | METAL |
|
| | Type | Description | Class CD | Sub Class CD | Year Built | Area |
| | MA | Main Area | 4- | 15SF | 1995 | 1344.0 |
| | MA2 | Second Floor Main Area | 4- | 15SF | 1995 | 950.0 |
| | HBAL | House Balcony | 4 | * | 1995 | 256.0 |
| | OTHER | Other | * | * | 1995 | 0.0 |
| | HRPO | House Roof Patio | 4 | * | 1995 | 600.0 |
| | GDET | Detached Garage | 2 | * | 1995 | 1400.0 |
| | CARPTN | Carport W/O Floor | 2 | * | 1995 | 450.0 |
Sketch
Property Image
Land
| 1 | 4320-1375S | Residential Sites 1+/- Ac SomeTerritorial Views | 1.0000 | 43560.00 | 0.00 | 0.00 | 1.00 | $104,500 | $0 |
| 2 | 1677A | Terr/Mtn/No View 6-15 Acres | 9.0000 | 392040.00 | 0.00 | 0.00 | 0.00 | $66,825 | $0 |
Roll Value History
| 2025 | N/A | N/A | N/A | N/A | N/A |
| 2024 | $455,104 | $163,538 | $0 | $618,642 | $618,642 |
| 2023 | $434,418 | $148,500 | $0 | $582,918 | $582,918 |
| 2022 | $390,589 | $134,000 | $0 | $524,589 | $524,589 |
| 2021 | $382,931 | $130,613 | $0 | $513,544 | $513,544 |
Deed and Sales History
| 1 | 03/16/2015 | SWD | Statutory Warranty Deed | P JAY STRICKLAND | KEITH E RASMUSSEN | | | $390,000.00 | 122911 | |
| 2 | 08/01/1995 | QCD | Quit Claim Deed | SWANSON, STEPHEN G | STRICKLAND, P JAY/DEBI | 0 | 0 | $0.00 | 77657 | 0 |
Payout Agreement
| No payout information available.. |