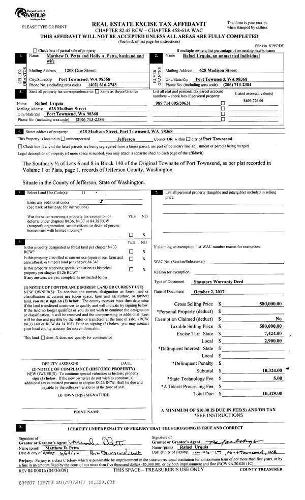
Property
Account |
| Property ID: | 42930 | Abbreviated Legal Description: | SUNNY SLOPE LOT 14 |
| Parcel # / Geo ID: | 997200011 | Agent Code: | |
| Type: | Real | | |
| Tax Area: | 0441 - 1-46F4E4H2C1L1P2 | Land Use Code | 11 |
| Open Space: | N | DFL | N |
| Historic Property: | N | Remodel Property: | N |
| Multi-Family Redevelopment: | N | | |
| Township: | 25N | Section: | 11 |
| Range: | 2W |
Location |
| Address: | 54 SUNNY SLOPE RD BRINNON, WA 98320 | Mapsco: | 031/030 |
| Neighborhood: | S9-11 T25 R2W+SUNNYSLOPE+PLEASANT HBR+CEDAR COVE/ELLIS/LENTI | Map ID: | |
| Neighborhood CD: | 1220 |
Owner |
| Name: | KEN & LOIS BUCHANAN | Owner ID: | 98839 |
| Mailing Address: | 11236 EMILY LN SW OLYMPIA, WA 98512-9387 | % Ownership: | 100.0000000000% |
| | | Exemptions: | |
Pay Tax Due
There is currently No Amount Due on this property.
Taxes and Assessment Details
Property Tax Information as of
10/24/2025
Click on "Statement Details" to expand or collapse a tax statement.
* Please enter a valid date ** Please enter a valid date *
Statement Details |
| | TOTAL: | $0.00 | $0.00 | $0.00 | $0.00 | $0.00 | $0.00 |
|
| | $0.00 | $0.00 | $0.00 | $0.00 | $0.00 | $0.00 |
Values
| (+) Improvement Homesite Value: | + | $0 | |
| (+) Improvement Non-Homesite Value: | + | $409,966 | |
| (+) Land Homesite Value: | + | $0 | |
| (+) Land Non-Homesite Value: | + | $241,500 | |
| (+) Curr Use (HS): | + | $0 | $0 |
| (+) Curr Use (NHS): | + | $0 | $0 |
| | | -------------------------- | |
| (=) Market Value: | = | $651,466 | |
| (–) Productivity Loss: | – | $0 | |
| | | -------------------------- | |
| (=) Subtotal: | = | $651,466 | |
| (+) Senior Appraised Value: | + | $0 | |
| (+) Non-Senior Appraised Value: | + | $651,466 | |
| | | -------------------------- | |
| (=) Total Appraised Value: | = | $651,466 | |
| (–) Senior Exemption Loss: | – | $0 | |
| (–) Exemption Loss: | – | $0 | |
| | | -------------------------- | |
| (=) Taxable Value: | = | $651,466 | |
Taxing Jurisdiction
| Owner: | KEN & LOIS BUCHANAN | | |
| % Ownership: | 100.0000000000% | | |
| Total Value: | N/A | | |
| Tax Area: | 0441 - 1-46F4E4H2C1L1P2 |
| CE | COUNTY CURRENT EXPENSE | N/A | N/A | N/A | N/A | | |
| CNTYDD | DEVELOPMENTAL DISABILITIES | N/A | N/A | N/A | N/A | | |
| CNTYVET | VETERANS RELIEF | N/A | N/A | N/A | N/A | | |
| MENTAL | MENTAL HEALTH | N/A | N/A | N/A | N/A | | |
| ROADS | COUNTY ROADS | N/A | N/A | N/A | N/A | | |
| ROADSCU | COUNTY ROADS TO CUR EXP | N/A | N/A | N/A | N/A | | |
| HOSP2CASH | HOSP DIST #2 GENERAL | N/A | N/A | N/A | N/A | | |
| SCH46MO | SCHOOL DIST #46 EP & O | N/A | N/A | N/A | N/A | | |
| CEM1 | CEMETERY DIST #1 GENERAL | N/A | N/A | N/A | N/A | | |
| CONSERVE | CONSERVATION FUTURES | N/A | N/A | N/A | N/A | | |
| EMS4 | FIRE DIST #4 EMS | N/A | N/A | N/A | N/A | | |
| FD4 | FIRE DIST #4 GENERAL | N/A | N/A | N/A | N/A | | |
| FD4BOND | FIRE DIST #4 BOND 2019 | N/A | N/A | N/A | N/A | | |
| LIB1 | LIBRARY DIST #1 GENERAL | N/A | N/A | N/A | N/A | | |
| PORTPT | PORT OF PT GENERAL | N/A | N/A | N/A | N/A | | |
| PORTPTIDD | PORT OF PT IDD 2019 | N/A | N/A | N/A | N/A | | |
| PUD1 | PUD #1 GENERAL | N/A | N/A | N/A | N/A | | |
| STATE | STATE SCHOOL PART 1 | N/A | N/A | N/A | N/A | | |
| STATE2 | STATE SCHOOL PART 2 | N/A | N/A | N/A | N/A | | |
| | Total Tax Rate: | N/A | | | | | |
| | | | | Taxes w/Current Exemptions: | N/A | | |
| | | | | Taxes w/o Exemptions: | N/A | | |
Improvement / Building
| Improvement #1: | Residential Bldg | State Code: | 11 | 2018.0 sqft | Value: | $409,966 |
| Bathrooms (#): | 2 (FULL) | Bedrooms (#): | 1 | | Exterior Wall: | SI/ST | Fireplace: | SIN 1-GOOD | | Floor Construction: | FRAME | Foundation: | CONPR | | Heating/Cooling: | F/A | Roof Cover: | COMP |
|
| | Type | Description | Class CD | Sub Class CD | Year Built | Area |
| | MA | Main Area | 4- | 1S | 1977 | 1538.0 |
| | MA2 | Second Floor Main Area | 4- | 1S | 1977 | 480.0 |
| | PATIO | House Patio | 3 | * | 1977 | 168.0 |
| | HCPOR | House Concrete Porch | 3 | * | 1977 | 144.0 |
| | HDECK | House Deck | 3 | * | 1977 | 2175.0 |
| | SHED | Shed (Table Not Dep) | 4 | * | 1977 | 64.0 |
| | SHED | Shed (Table Not Dep) | 4 | * | 1977 | 77.0 |
| | OTHER | Other | * | * | 1977 | 0.0 |
| | HWPOR | House Wood Porch | 3 | * | 1977 | 364.0 |
Sketch
Property Image
Land
| 1 | 1220-1115L | Wtrfrt Lots in Sunnyslope Inc/TL | 0.0000 | 0.00 | 0.00 | 0.00 | 1.00 | $241,500 | $0 |
Roll Value History
| 2025 | N/A | N/A | N/A | N/A | N/A |
| 2024 | $392,141 | $231,000 | $0 | $623,141 | $623,141 |
| 2023 | $392,141 | $215,250 | $0 | $607,391 | $607,391 |
| 2022 | $356,492 | $200,000 | $0 | $556,492 | $556,492 |
| 2021 | $294,622 | $176,000 | $0 | $470,622 | $470,622 |
Deed and Sales History
| 1 | 02/22/2018 | SWD | Statutory Warranty Deed | THOMAS B SCHAAFSMA | KEN & LOIS BUCHANAN | | | $420,000.00 | 129751 | |
| 2 | 06/28/2005 | QCD | Quit Claim Deed | CAREY, NOEL & SUSAN | CAREY TRUST, NOEL & SUSAN TRTE | | | $0.00 | 104077 | 0 |
| 3 | 06/10/2005 | SWD | Statutory Warranty Deed | BURNETT, BARRY R | SCHAAFSMA, THOMAS B/JACQUE | | | $417,900.00 | 103979 | 0 |
| 4 | 08/04/2000 | QCD | Quit Claim Deed | ROGERS, MONICA A | BURNETT, BARRY R | 0 | 0 | $0.00 | 90277 | 0 |
| 5 | 06/24/1999 | SWD | Statutory Warranty Deed | GORDNER, M MARJORIE | BURNETT, BARRY R/MONICA A | 0 | 0 | $181,500.00 | 87260 | 0 |
| 6 | 05/09/1994 | QCD | Quit Claim Deed | GORDNER, RICHARD W | GORDNER, M MARJORIE | 0 | 0 | $0.00 | 75599 | 0 |
Payout Agreement
| No payout information available.. |