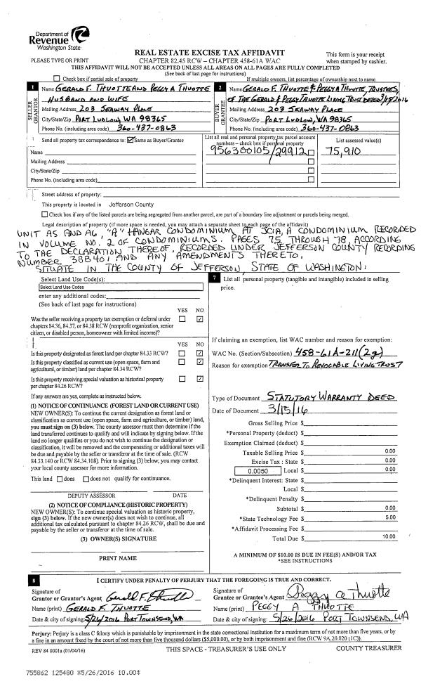
Property
Account |
| Property ID: | 42967 | Abbreviated Legal Description: | TIBBALS 2ND ADDITION BLK 12 LOTS 5 & 6 |
| Parcel # / Geo ID: | 997401204 | Agent Code: | |
| Type: | Real | | |
| Tax Area: | 0110 - C-50F1E1H2 | Land Use Code | 11 |
| Open Space: | N | DFL | N |
| Historic Property: | N | Remodel Property: | N |
| Multi-Family Redevelopment: | N | | |
| Township: | 30N | Section: | 3 |
| Range: | 1W |
Location |
| Address: | 133 35TH ST PORT TOWNSEND, WA 98368 | Mapsco: | 137/047 |
| Neighborhood: | LITTLEFIELD,MOORES,PT ECO,ROSEWIND,TIBBALS 2ND,WAYSONS+SP AC | Map ID: | |
| Neighborhood CD: | 6090 |
Owner |
| Name: | AMY M MOYERS | Owner ID: | 109483 |
| Mailing Address: | 133 35TH ST PORT TOWNSEND, WA 98368-5001 | % Ownership: | 100.0000000000% |
| | | Exemptions: | |
Pay Tax Due
There is currently No Amount Due on this property.
Taxes and Assessment Details
Property Tax Information as of
10/24/2025
Click on "Statement Details" to expand or collapse a tax statement.
* Please enter a valid date ** Please enter a valid date *
Statement Details |
| | TOTAL: | $0.00 | $0.00 | $0.00 | $0.00 | $0.00 | $0.00 |
|
| | $0.00 | $0.00 | $0.00 | $0.00 | $0.00 | $0.00 |
Values
| (+) Improvement Homesite Value: | + | $0 | |
| (+) Improvement Non-Homesite Value: | + | $324,815 | |
| (+) Land Homesite Value: | + | $0 | |
| (+) Land Non-Homesite Value: | + | $190,000 | |
| (+) Curr Use (HS): | + | $0 | $0 |
| (+) Curr Use (NHS): | + | $0 | $0 |
| | | -------------------------- | |
| (=) Market Value: | = | $514,815 | |
| (–) Productivity Loss: | – | $0 | |
| | | -------------------------- | |
| (=) Subtotal: | = | $514,815 | |
| (+) Senior Appraised Value: | + | $0 | |
| (+) Non-Senior Appraised Value: | + | $514,815 | |
| | | -------------------------- | |
| (=) Total Appraised Value: | = | $514,815 | |
| (–) Senior Exemption Loss: | – | $0 | |
| (–) Exemption Loss: | – | $0 | |
| | | -------------------------- | |
| (=) Taxable Value: | = | $514,815 | |
Taxing Jurisdiction
| Owner: | AMY M MOYERS | | |
| % Ownership: | 100.0000000000% | | |
| Total Value: | N/A | | |
| Tax Area: | 0110 - C-50F1E1H2 |
| CE | COUNTY CURRENT EXPENSE | N/A | N/A | N/A | N/A | | |
| CNTYDD | DEVELOPMENTAL DISABILITIES | N/A | N/A | N/A | N/A | | |
| CNTYVET | VETERANS RELIEF | N/A | N/A | N/A | N/A | | |
| MENTAL | MENTAL HEALTH | N/A | N/A | N/A | N/A | | |
| PTGEN | CITY OF PT GENERAL | N/A | N/A | N/A | N/A | | |
| PTLLL | CITY OF PT - LIBRARY LID LIFT | N/A | N/A | N/A | N/A | | |
| PTMVBOND | CITY OF PT MV BOND | N/A | N/A | N/A | N/A | | |
| HOSP2CASH | HOSP DIST #2 GENERAL | N/A | N/A | N/A | N/A | | |
| SCH50BOND | SCHOOL DIST #50 BOND 2016 | N/A | N/A | N/A | N/A | | |
| SCH50CP | SCHOOL DIST #50 CAP PROJ | N/A | N/A | N/A | N/A | | |
| SCH50MO | SCHOOL DIST #50 EP & O | N/A | N/A | N/A | N/A | | |
| CONSERVE | CONSERVATION FUTURES | N/A | N/A | N/A | N/A | | |
| EMS1 | FIRE DIST #1 EMS | N/A | N/A | N/A | N/A | | |
| FD1 | FIRE DIST #1 GENERAL | N/A | N/A | N/A | N/A | | |
| PORTPT | PORT OF PT GENERAL | N/A | N/A | N/A | N/A | | |
| PORTPTIDD | PORT OF PT IDD 2019 | N/A | N/A | N/A | N/A | | |
| PUD1 | PUD #1 GENERAL | N/A | N/A | N/A | N/A | | |
| STATE | STATE SCHOOL PART 1 | N/A | N/A | N/A | N/A | | |
| STATE2 | STATE SCHOOL PART 2 | N/A | N/A | N/A | N/A | | |
| | Total Tax Rate: | N/A | | | | | |
| | | | | Taxes w/Current Exemptions: | N/A | | |
| | | | | Taxes w/o Exemptions: | N/A | | |
Improvement / Building
| Improvement #1: | Residential Bldg | State Code: | 11 | 1732.0 sqft | Value: | $324,815 |
| Bathrooms (#): | 2 (FULL) | Bedrooms (#): | 2 | | Exterior Wall: | SI/ST | Floor Construction: | FRAME | | Foundation: | CONPR | Heating/Cooling: | HPUMP | | Roof Cover: | METAL |   |   |
|
| | Type | Description | Class CD | Sub Class CD | Year Built | Area |
| | MA | Main Area | 3+ | 15SF | 1985 | 1252.0 |
| | MA2 | Second Floor Main Area | 3+ | 15SF | 1985 | 480.0 |
| | SHED | Shed (Table Not Dep) | 3 | * | 1985 | 96.0 |
| | HCPOR | House Concrete Porch | 3 | * | 1985 | 108.0 |
| | HCPOR | House Concrete Porch | 3 | * | 1985 | 195.0 |
| | PATIO | House Patio | 3 | * | 1985 | 192.0 |
Sketch
Property Image
Land
| 1 | 6090-1176L | Multiple Lot Site (2+/-) with Access/Utilities | 0.0000 | 0.00 | 0.00 | 0.00 | 2.00 | $190,000 | $0 |
Roll Value History
| 2025 | N/A | N/A | N/A | N/A | N/A |
| 2024 | $304,819 | $189,000 | $0 | $493,819 | $493,819 |
| 2023 | $279,418 | $175,000 | $0 | $454,418 | $454,418 |
| 2022 | $279,418 | $170,000 | $0 | $449,418 | $449,418 |
| 2021 | $231,115 | $154,000 | $0 | $385,115 | $385,115 |
Deed and Sales History
| 1 | 08/04/2023 | SWD | Statutory Warranty Deed | CHARLES A & CHARLENE R LAW | AMY M MOYERS | | | $640,000.00 | 141375 | |
| 2 | 12/08/2016 | SWD | Statutory Warranty Deed | GRACE J CROMBLEHOLME | CHARLES A & CHARLENE R LAW | | | $300,000.00 | 126806 | |
| 3 | 12/01/2016 | QCD | Quit Claim Deed | | | | | | 126805 | |
| 4 | 07/30/2010 | SWD | Statutory Warranty Deed | DAHLMAN, GAIL A | CROMBLEHOLME, GRACE/DELAGRARZA | | | $230,000.00 | 114705 | 0 |
| 5 | 07/06/2007 | QCD | Quit Claim Deed | DAHLMAN, GAIL | DAHLMAN, GAIL/DEREK | | | $0.00 | 109563 | 0 |
| 6 | 09/22/2004 | SWD | Statutory Warranty Deed | HAAS, MICHAEL E/HEATHER L | LIPKO, GAIL A | 0 | 0 | $190,000.00 | 101542 | 0 |
| 7 | 02/01/1999 | SWD | Statutory Warranty Deed | IRWIN, DAVID E/PATRICIA M | HAAS, MICHAEL E/HEATHER L | 0 | 0 | $103,000.00 | 86240 | 0 |
Payout Agreement
| No payout information available.. |