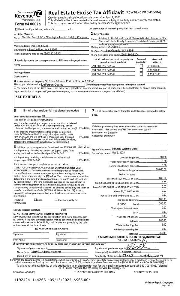
Property
Account |
| Property ID: | 42972 | Abbreviated Legal Description: | UMATILLA HILL BLK 1 LOT 5 SUBJ TO EASE OF RECORD |
| Parcel # / Geo ID: | 997501005 | Agent Code: | |
| Type: | Real | | |
| Tax Area: | 0110 - C-50F1E1H2 | Land Use Code | 11 |
| Open Space: | N | DFL | N |
| Historic Property: | N | Remodel Property: | N |
| Multi-Family Redevelopment: | N | | |
| Township: | 30N | Section: | 34 |
| Range: | 1W |
Location |
| Address: | 2965 JACKMAN ST PORT TOWNSEND, WA 98368 | Mapsco: | 144/005 |
| Neighborhood: | HASTINGS 3RD | Map ID: | |
| Neighborhood CD: | 6110 |
Owner |
| Name: | GLENN D HARTMANN | Owner ID: | 17653 |
| Mailing Address: | KATHLEEN P HARTMANN 2965 JACKMAN ST PORT TOWNSEND, WA 98368 | % Ownership: | 100.0000000000% |
| | | Exemptions: | |
Pay Tax Due
There is currently No Amount Due on this property.
Taxes and Assessment Details
Property Tax Information as of
10/24/2025
Click on "Statement Details" to expand or collapse a tax statement.
* Please enter a valid date ** Please enter a valid date *
Statement Details |
| | TOTAL: | $0.00 | $0.00 | $0.00 | $0.00 | $0.00 | $0.00 |
|
| | $0.00 | $0.00 | $0.00 | $0.00 | $0.00 | $0.00 |
Values
| (+) Improvement Homesite Value: | + | $0 | |
| (+) Improvement Non-Homesite Value: | + | $548,207 | |
| (+) Land Homesite Value: | + | $0 | |
| (+) Land Non-Homesite Value: | + | $230,000 | |
| (+) Curr Use (HS): | + | $0 | $0 |
| (+) Curr Use (NHS): | + | $0 | $0 |
| | | -------------------------- | |
| (=) Market Value: | = | $778,207 | |
| (–) Productivity Loss: | – | $0 | |
| | | -------------------------- | |
| (=) Subtotal: | = | $778,207 | |
| (+) Senior Appraised Value: | + | $0 | |
| (+) Non-Senior Appraised Value: | + | $778,207 | |
| | | -------------------------- | |
| (=) Total Appraised Value: | = | $778,207 | |
| (–) Senior Exemption Loss: | – | $0 | |
| (–) Exemption Loss: | – | $0 | |
| | | -------------------------- | |
| (=) Taxable Value: | = | $778,207 | |
Taxing Jurisdiction
| Owner: | GLENN D HARTMANN | | |
| % Ownership: | 100.0000000000% | | |
| Total Value: | N/A | | |
| Tax Area: | 0110 - C-50F1E1H2 |
| CE | COUNTY CURRENT EXPENSE | N/A | N/A | N/A | N/A | | |
| CNTYDD | DEVELOPMENTAL DISABILITIES | N/A | N/A | N/A | N/A | | |
| CNTYVET | VETERANS RELIEF | N/A | N/A | N/A | N/A | | |
| MENTAL | MENTAL HEALTH | N/A | N/A | N/A | N/A | | |
| PTGEN | CITY OF PT GENERAL | N/A | N/A | N/A | N/A | | |
| PTLLL | CITY OF PT - LIBRARY LID LIFT | N/A | N/A | N/A | N/A | | |
| PTMVBOND | CITY OF PT MV BOND | N/A | N/A | N/A | N/A | | |
| HOSP2CASH | HOSP DIST #2 GENERAL | N/A | N/A | N/A | N/A | | |
| SCH50BOND | SCHOOL DIST #50 BOND 2016 | N/A | N/A | N/A | N/A | | |
| SCH50CP | SCHOOL DIST #50 CAP PROJ | N/A | N/A | N/A | N/A | | |
| SCH50MO | SCHOOL DIST #50 EP & O | N/A | N/A | N/A | N/A | | |
| CONSERVE | CONSERVATION FUTURES | N/A | N/A | N/A | N/A | | |
| EMS1 | FIRE DIST #1 EMS | N/A | N/A | N/A | N/A | | |
| FD1 | FIRE DIST #1 GENERAL | N/A | N/A | N/A | N/A | | |
| PORTPT | PORT OF PT GENERAL | N/A | N/A | N/A | N/A | | |
| PORTPTIDD | PORT OF PT IDD 2019 | N/A | N/A | N/A | N/A | | |
| PUD1 | PUD #1 GENERAL | N/A | N/A | N/A | N/A | | |
| STATE | STATE SCHOOL PART 1 | N/A | N/A | N/A | N/A | | |
| STATE2 | STATE SCHOOL PART 2 | N/A | N/A | N/A | N/A | | |
| | Total Tax Rate: | N/A | | | | | |
| | | | | Taxes w/Current Exemptions: | N/A | | |
| | | | | Taxes w/o Exemptions: | N/A | | |
Improvement / Building
| Improvement #1: | Residential Bldg | State Code: | 11 | 1768.0 sqft | Value: | $548,207 |
| Bathrooms (#): | 2 (FULL) | Bathrooms (#): | 1 (HALF) | | Bedrooms (#): | 2 | Exterior Wall: | SI/ST | | Foundation: | CONPR | Heating/Cooling: | ELBB | | Roof Cover: | COMP |   |   |
|
| | Type | Description | Class CD | Sub Class CD | Year Built | Area |
| | MA | Main Area | 5- | 2S | 2016 | 998.0 |
| | MA2 | Second Floor Main Area | 5- | 2S | 2016 | 770.0 |
| | HWPOR | House Wood Porch | 5 | * | 2016 | 134.5 |
| | PATIO | House Patio | 3 | * | 2016 | 473.8 |
| | GDET | Detached Garage | 5 | * | 2016 | 490.0 |
| | SOLAR | Solar Panel | 3 | * | 2016 | 0.0 |
Sketch
Property Image
Land
| 1 | 6110-1172L | Umatilla Hill Lots w/Utilities | 0.0000 | 0.00 | 0.00 | 0.00 | 1.00 | $230,000 | $0 |
Roll Value History
| 2025 | N/A | N/A | N/A | N/A | N/A |
| 2024 | $513,606 | $231,000 | $0 | $744,606 | $744,606 |
| 2023 | $513,606 | $225,750 | $0 | $739,356 | $739,356 |
| 2022 | $470,805 | $210,000 | $0 | $680,805 | $680,805 |
| 2021 | $389,417 | $195,500 | $0 | $584,917 | $584,917 |
Deed and Sales History
| 1 | 03/24/2023 | TODD | TRANSFER ON DTH DEED | GLENN D HARTMANN | EMMA C & ABBY A HARTMAN | | | | 0 | 659539 |
| 2 | 10/21/2008 | SWD | Statutory Warranty Deed | CHACE, DANIELLA | HARTMANN, GLENN D/KATHLEEN P | 0 | 0 | $130,000.00 | 112109 | 0 |
| 3 | 07/20/2005 | SWD | Statutory Warranty Deed | GABLER, RODNEY B/PHYLLIS | CHACE, DANIELLA | | | $104,000.00 | 104298 | 0 |
| 4 | 03/23/2004 | SWD | Statutory Warranty Deed | KIMBALL & LANDIS LLC | GABLER, RODNEY B & PHYLLIS S | 0 | 0 | $58,500.00 | 99807 | 0 |
Payout Agreement
| No payout information available.. |