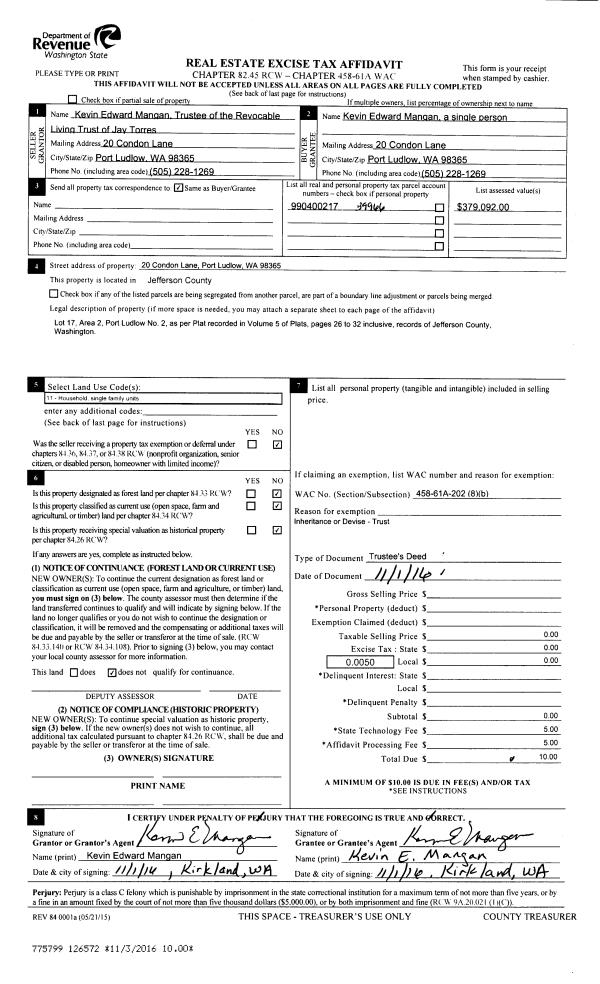
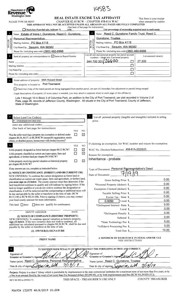
Property
Account |
| Property ID: | 43044 | Abbreviated Legal Description: | VILLAS BY THE SEA LOT 14 |
| Parcel # / Geo ID: | 997900014 | Agent Code: | |
| Type: | Real | | |
| Tax Area: | 0211 - 1-49F1E1H2L1 | Land Use Code | 11 |
| Open Space: | N | DFL | N |
| Historic Property: | N | Remodel Property: | N |
| Multi-Family Redevelopment: | N | | |
| Township: | 29N | Section: | 1 |
| Range: | 1W |
Location |
| Address: | 46 PORT TOWNSEND BAY PORT HADLOCK, WA 98339 | Mapsco: | 144/014 |
| Neighborhood: | VILLAS BY THE SEA | Map ID: | |
| Neighborhood CD: | 4201 |
Owner |
| Name: | RONALD & BECKIE PANZERO | Owner ID: | 100861 |
| Mailing Address: | 46 PORT TOWNSEND BAY RD PORT HADLOCK, WA 98339-8704 | % Ownership: | 100.0000000000% |
| | | Exemptions: | |
Pay Tax Due
There is currently No Amount Due on this property.
Taxes and Assessment Details
Property Tax Information as of
10/24/2025
Click on "Statement Details" to expand or collapse a tax statement.
* Please enter a valid date ** Please enter a valid date *
Statement Details |
| | TOTAL: | $0.00 | $0.00 | $0.00 | $0.00 | $0.00 | $0.00 |
|
| | $0.00 | $0.00 | $0.00 | $0.00 | $0.00 | $0.00 |
Values
| (+) Improvement Homesite Value: | + | $0 | |
| (+) Improvement Non-Homesite Value: | + | $540,745 | |
| (+) Land Homesite Value: | + | $0 | |
| (+) Land Non-Homesite Value: | + | $131,175 | |
| (+) Curr Use (HS): | + | $0 | $0 |
| (+) Curr Use (NHS): | + | $0 | $0 |
| | | -------------------------- | |
| (=) Market Value: | = | $671,920 | |
| (–) Productivity Loss: | – | $0 | |
| | | -------------------------- | |
| (=) Subtotal: | = | $671,920 | |
| (+) Senior Appraised Value: | + | $0 | |
| (+) Non-Senior Appraised Value: | + | $671,920 | |
| | | -------------------------- | |
| (=) Total Appraised Value: | = | $671,920 | |
| (–) Senior Exemption Loss: | – | $0 | |
| (–) Exemption Loss: | – | $0 | |
| | | -------------------------- | |
| (=) Taxable Value: | = | $671,920 | |
Taxing Jurisdiction
| Owner: | RONALD & BECKIE PANZERO | | |
| % Ownership: | 100.0000000000% | | |
| Total Value: | N/A | | |
| Tax Area: | 0211 - 1-49F1E1H2L1 |
| CE | COUNTY CURRENT EXPENSE | N/A | N/A | N/A | N/A | | |
| CNTYDD | DEVELOPMENTAL DISABILITIES | N/A | N/A | N/A | N/A | | |
| CNTYVET | VETERANS RELIEF | N/A | N/A | N/A | N/A | | |
| MENTAL | MENTAL HEALTH | N/A | N/A | N/A | N/A | | |
| ROADS | COUNTY ROADS | N/A | N/A | N/A | N/A | | |
| ROADSCU | COUNTY ROADS TO CUR EXP | N/A | N/A | N/A | N/A | | |
| HOSP2CASH | HOSP DIST #2 GENERAL | N/A | N/A | N/A | N/A | | |
| SCH49CP | SCHOOL DIST #49 CAP PROJ | N/A | N/A | N/A | N/A | | |
| SCH49MO | SCHOOL DIST #49 EP & O | N/A | N/A | N/A | N/A | | |
| CONSERVE | CONSERVATION FUTURES | N/A | N/A | N/A | N/A | | |
| EMS1 | FIRE DIST #1 EMS | N/A | N/A | N/A | N/A | | |
| FD1 | FIRE DIST #1 GENERAL | N/A | N/A | N/A | N/A | | |
| LIB1 | LIBRARY DIST #1 GENERAL | N/A | N/A | N/A | N/A | | |
| PORTPT | PORT OF PT GENERAL | N/A | N/A | N/A | N/A | | |
| PORTPTIDD | PORT OF PT IDD 2019 | N/A | N/A | N/A | N/A | | |
| PUD1 | PUD #1 GENERAL | N/A | N/A | N/A | N/A | | |
| STATE | STATE SCHOOL PART 1 | N/A | N/A | N/A | N/A | | |
| STATE2 | STATE SCHOOL PART 2 | N/A | N/A | N/A | N/A | | |
| | Total Tax Rate: | N/A | | | | | |
| | | | | Taxes w/Current Exemptions: | N/A | | |
| | | | | Taxes w/o Exemptions: | N/A | | |
Improvement / Building
| Improvement #1: | Residential Bldg | State Code: | 11 | 1992.0 sqft | Value: | $540,745 |
| Bathrooms (#): | 2 (FULL) | Bedrooms (#): | 2 | | Exterior Wall: | PL/T1 | Foundation: | CONPR | | Heating/Cooling: | ELBB | Roof Cover: | METAL |
|
| | Type | Description | Class CD | Sub Class CD | Year Built | Area |
| | MA | Main Area | 5- | 1S | 2020 | 1992.0 |
| | HDECK | House Deck | 5 | 1S | 2020 | 64.0 |
| | PATIO | House Patio | 5 | 1S | 2020 | 120.0 |
| | GATT | House Attached Garage | 5 | 1S | 2020 | 720.0 |
Sketch
Property Image
Land
| 1 | 4201-1165L | Villas ByTheSea Back Lots Some View Potential | 0.0000 | 0.00 | 0.00 | 0.00 | 1.00 | $131,175 | $0 |
Roll Value History
| 2025 | N/A | N/A | N/A | N/A | N/A |
| 2024 | $516,165 | $125,213 | $0 | $641,378 | $641,378 |
| 2023 | $491,586 | $114,250 | $0 | $605,836 | $605,836 |
| 2022 | $354,366 | $83,750 | $0 | $438,116 | $438,116 |
| 2021 | $293,470 | $66,000 | $0 | $359,470 | $359,470 |
Deed and Sales History
| 1 | 04/22/2019 | QCD | Quit Claim Deed | BECKIE J PROPST | RONALD & BECKIE PANZERO | | | | 132180 | |
| 2 | 09/13/2017 | SWD | Statutory Warranty Deed | KENNETH P HENRIKSON | BECKIE J PROPST | | | $49,500.00 | 128588 | |
| 3 | 05/16/2005 | SWD | Statutory Warranty Deed | PORT HADLOCK SC LLC | HENRIKSON, KENNETH P | | | $69,900.00 | 103629 | 0 |
Payout Agreement
| No payout information available.. |