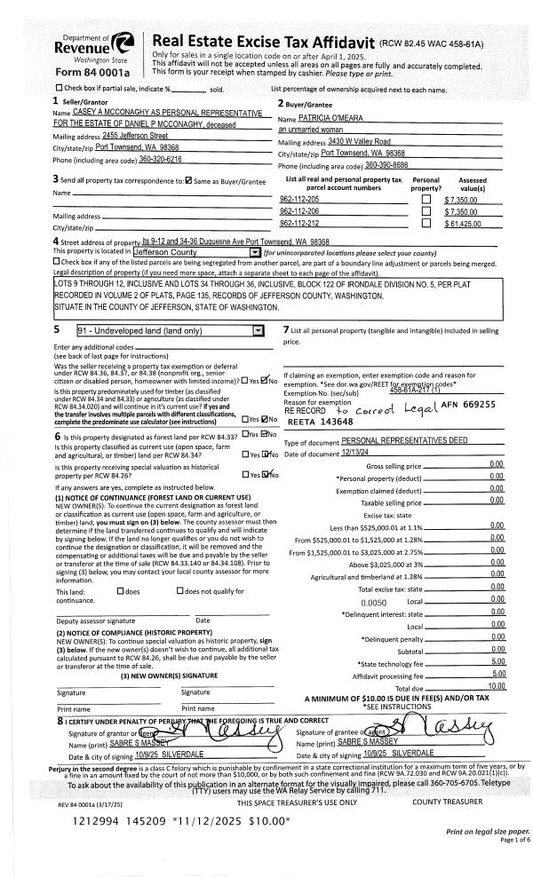
Property
Account |
| Property ID: | 43139 | Abbreviated Legal Description: | TALA SHORES #1 10 (ENLGD BY N1/2 LOT 9) BND TGTH THRU BLA #83211 |
| Parcel # / Geo ID: | 998200109 | Agent Code: | |
| Type: | Real | | |
| Tax Area: | 0213 - 1-49F1E1H2L1 | Land Use Code | 11 |
| Open Space: | N | DFL | N |
| Historic Property: | N | Remodel Property: | N |
| Multi-Family Redevelopment: | N | | |
| Township: | 28N | Section: | 22 |
| Range: | 1E |
Location |
| Address: | 3063 PARADISE BAY RD PORT LUDLOW, WA 98365 | Mapsco: | 130/009 |
| Neighborhood: | TALA SHORES DIV #1, #2, & #3 | Map ID: | |
| Neighborhood CD: | 3362 |
Owner |
| Name: | STEVEN B MAHANA | Owner ID: | 21423 |
| Mailing Address: | KELLY A MAHANA 3063 PARADISE BAY RD PORT LUDLOW, WA 98365-9760 | % Ownership: | 100.0000000000% |
| | | Exemptions: | |
Pay Tax Due
There is currently No Amount Due on this property.
Taxes and Assessment Details
Property Tax Information as of
10/24/2025
Click on "Statement Details" to expand or collapse a tax statement.
* Please enter a valid date ** Please enter a valid date *
Statement Details |
| | TOTAL: | $0.00 | $0.00 | $0.00 | $0.00 | $0.00 | $0.00 |
|
| | $0.00 | $0.00 | $0.00 | $0.00 | $0.00 | $0.00 |
Values
| (+) Improvement Homesite Value: | + | $0 | |
| (+) Improvement Non-Homesite Value: | + | $253,318 | |
| (+) Land Homesite Value: | + | $0 | |
| (+) Land Non-Homesite Value: | + | $231,420 | |
| (+) Curr Use (HS): | + | $0 | $0 |
| (+) Curr Use (NHS): | + | $0 | $0 |
| | | -------------------------- | |
| (=) Market Value: | = | $484,738 | |
| (–) Productivity Loss: | – | $0 | |
| | | -------------------------- | |
| (=) Subtotal: | = | $484,738 | |
| (+) Senior Appraised Value: | + | $0 | |
| (+) Non-Senior Appraised Value: | + | $484,738 | |
| | | -------------------------- | |
| (=) Total Appraised Value: | = | $484,738 | |
| (–) Senior Exemption Loss: | – | $0 | |
| (–) Exemption Loss: | – | $0 | |
| | | -------------------------- | |
| (=) Taxable Value: | = | $484,738 | |
Taxing Jurisdiction
| Owner: | STEVEN B MAHANA | | |
| % Ownership: | 100.0000000000% | | |
| Total Value: | N/A | | |
| Tax Area: | 0213 - 1-49F1E1H2L1 |
| CE | COUNTY CURRENT EXPENSE | N/A | N/A | N/A | N/A | | |
| CNTYDD | DEVELOPMENTAL DISABILITIES | N/A | N/A | N/A | N/A | | |
| CNTYVET | VETERANS RELIEF | N/A | N/A | N/A | N/A | | |
| MENTAL | MENTAL HEALTH | N/A | N/A | N/A | N/A | | |
| ROADS | COUNTY ROADS | N/A | N/A | N/A | N/A | | |
| ROADSCU | COUNTY ROADS TO CUR EXP | N/A | N/A | N/A | N/A | | |
| HOSP2CASH | HOSP DIST #2 GENERAL | N/A | N/A | N/A | N/A | | |
| SCH49CP | SCHOOL DIST #49 CAP PROJ | N/A | N/A | N/A | N/A | | |
| SCH49MO | SCHOOL DIST #49 EP & O | N/A | N/A | N/A | N/A | | |
| CONSERVE | CONSERVATION FUTURES | N/A | N/A | N/A | N/A | | |
| EMS1 | FIRE DIST #1 EMS | N/A | N/A | N/A | N/A | | |
| FD1 | FIRE DIST #1 GENERAL | N/A | N/A | N/A | N/A | | |
| LIB1 | LIBRARY DIST #1 GENERAL | N/A | N/A | N/A | N/A | | |
| PORTPT | PORT OF PT GENERAL | N/A | N/A | N/A | N/A | | |
| PORTPTIDD | PORT OF PT IDD 2019 | N/A | N/A | N/A | N/A | | |
| PUD1 | PUD #1 GENERAL | N/A | N/A | N/A | N/A | | |
| STATE | STATE SCHOOL PART 1 | N/A | N/A | N/A | N/A | | |
| STATE2 | STATE SCHOOL PART 2 | N/A | N/A | N/A | N/A | | |
| | Total Tax Rate: | N/A | | | | | |
| | | | | Taxes w/Current Exemptions: | N/A | | |
| | | | | Taxes w/o Exemptions: | N/A | | |
Improvement / Building
| Improvement #1: | Manufactured Home | State Code: | 11 | 1748.0 sqft | Value: | $253,318 |
| Bathrooms (#): | 2 (FULL) | Bedrooms (#): | 2 | | Exterior Wall: | PL/T1 | Fireplace: | PROPS-GOOD | | Foundation: | CONBL | Heating/Cooling: | F/A | | Roof Cover: | COMP |   |   |
|
| | Type | Description | Class CD | Sub Class CD | Year Built | Area |
| | MA | Main Area | 4 | MDBL | 1997 | 1748.0 |
| | MWPOR | MH Wood Porch | 4 | MDBL | 1997 | 326.0 |
| | MDECK | MH Deck | 4 | MDBL | 1997 | 892.0 |
| | ADDN-D | Addition (Table Depreciated) | 4 | MDBL | 1997 | 348.0 |
| | OTHER | Other | 4 | MDBL | 1997 | 0.0 |
| | ASPHD | Asphalt Drive | 4 | MDBL | 1997 | 4000.0 |
| | CONCD | Concrete Drive | 4 | MDBL | 1997 | 450.0 |
| | MSKIRT_WD | MH Skirting - Wood | 4 | MDBL | 1997 | 196.0 |
| | MDET | MH Detached Garage | 4 | MDBL | 1997 | 672.0 |
Sketch
| No sketches available for this property. |
Property Image
Land
| 1 | 3362-1225F | Med to High Bank Wtrfrt Tala Shores | 0.0000 | 0.00 | 56.00 | 0.00 | 1.00 | $231,420 | $0 |
Roll Value History
| 2025 | N/A | N/A | N/A | N/A | N/A |
| 2024 | $253,318 | $231,420 | $0 | $484,738 | $484,738 |
| 2023 | $241,803 | $215,400 | $0 | $457,203 | $457,203 |
| 2022 | $241,803 | $210,400 | $0 | $452,203 | $452,203 |
| 2021 | $135,387 | $193,750 | $0 | $329,137 | $329,137 |
Deed and Sales History
| 1 | 08/08/1998 | QCD | Quit Claim Deed | MAHANA, STEVEN B/EST | MAHANA, STEVEN B/KELLY A | 0 | 0 | $0.00 | 85170 | 0 |
| 2 | 01/02/1998 | QCD | Quit Claim Deed | PLASKETT REVOCABLE TRUST | MAHANA, STEVEN B | 0 | 0 | $0.00 | 84199 | 0 |
| 3 | 01/02/1998 | QCD | Quit Claim Deed | PLASKETT REVOCABLE TRUST | MAHANA, STEVEN B | 0 | 0 | $29,500.00 | 83580 | 0 |
| 4 | 09/27/1995 | SWD | Statutory Warranty Deed | TAYLOR, CLARK ELDON/ELEAN | MAHANA, STEVEN B | 0 | 0 | $75,500.00 | 77916 | 0 |
Payout Agreement
| No payout information available.. |