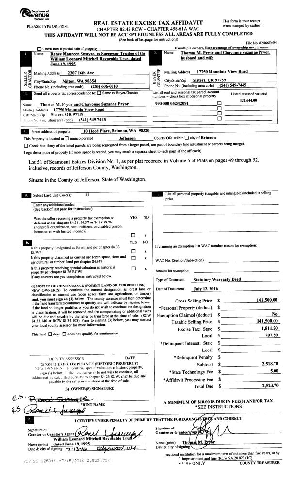
Property
Account |
| Property ID: | 43161 | Abbreviated Legal Description: | TALA SHORES #1 LOT 35 |
| Parcel # / Geo ID: | 998200132 | Agent Code: | |
| Type: | Real | | |
| Tax Area: | 0213 - 1-49F1E1H2L1 | Land Use Code | 11 |
| Open Space: | N | DFL | N |
| Historic Property: | N | Remodel Property: | N |
| Multi-Family Redevelopment: | N | | |
| Township: | 28N | Section: | 22 |
| Range: | 1E |
Location |
| Address: | 250 TALA SHORE DR PORT LUDLOW, WA 98365 | Mapsco: | 130/033 |
| Neighborhood: | TALA SHORES DIV #1, #2, & #3 | Map ID: | |
| Neighborhood CD: | 3362 |
Owner |
| Name: | JOHN P & ANN W BETHEL | Owner ID: | 96967 |
| Mailing Address: | 250 TALA SHORE DR PORT LUDLOW, WA 98365-9260 | % Ownership: | 100.0000000000% |
| | | Exemptions: | |
Pay Tax Due
There is currently No Amount Due on this property.
Taxes and Assessment Details
Property Tax Information as of
10/24/2025
Click on "Statement Details" to expand or collapse a tax statement.
* Please enter a valid date ** Please enter a valid date *
Statement Details |
| | TOTAL: | $0.00 | $0.00 | $0.00 | $0.00 | $0.00 | $0.00 |
|
| | $0.00 | $0.00 | $0.00 | $0.00 | $0.00 | $0.00 |
Values
| (+) Improvement Homesite Value: | + | $0 | |
| (+) Improvement Non-Homesite Value: | + | $522,799 | |
| (+) Land Homesite Value: | + | $0 | |
| (+) Land Non-Homesite Value: | + | $299,250 | |
| (+) Curr Use (HS): | + | $0 | $0 |
| (+) Curr Use (NHS): | + | $0 | $0 |
| | | -------------------------- | |
| (=) Market Value: | = | $822,049 | |
| (–) Productivity Loss: | – | $0 | |
| | | -------------------------- | |
| (=) Subtotal: | = | $822,049 | |
| (+) Senior Appraised Value: | + | $0 | |
| (+) Non-Senior Appraised Value: | + | $822,049 | |
| | | -------------------------- | |
| (=) Total Appraised Value: | = | $822,049 | |
| (–) Senior Exemption Loss: | – | $0 | |
| (–) Exemption Loss: | – | $0 | |
| | | -------------------------- | |
| (=) Taxable Value: | = | $822,049 | |
Taxing Jurisdiction
| Owner: | JOHN P & ANN W BETHEL | | |
| % Ownership: | 100.0000000000% | | |
| Total Value: | N/A | | |
| Tax Area: | 0213 - 1-49F1E1H2L1 |
| CE | COUNTY CURRENT EXPENSE | N/A | N/A | N/A | N/A | | |
| CNTYDD | DEVELOPMENTAL DISABILITIES | N/A | N/A | N/A | N/A | | |
| CNTYVET | VETERANS RELIEF | N/A | N/A | N/A | N/A | | |
| MENTAL | MENTAL HEALTH | N/A | N/A | N/A | N/A | | |
| ROADS | COUNTY ROADS | N/A | N/A | N/A | N/A | | |
| ROADSCU | COUNTY ROADS TO CUR EXP | N/A | N/A | N/A | N/A | | |
| HOSP2CASH | HOSP DIST #2 GENERAL | N/A | N/A | N/A | N/A | | |
| SCH49CP | SCHOOL DIST #49 CAP PROJ | N/A | N/A | N/A | N/A | | |
| SCH49MO | SCHOOL DIST #49 EP & O | N/A | N/A | N/A | N/A | | |
| CONSERVE | CONSERVATION FUTURES | N/A | N/A | N/A | N/A | | |
| EMS1 | FIRE DIST #1 EMS | N/A | N/A | N/A | N/A | | |
| FD1 | FIRE DIST #1 GENERAL | N/A | N/A | N/A | N/A | | |
| LIB1 | LIBRARY DIST #1 GENERAL | N/A | N/A | N/A | N/A | | |
| PORTPT | PORT OF PT GENERAL | N/A | N/A | N/A | N/A | | |
| PORTPTIDD | PORT OF PT IDD 2019 | N/A | N/A | N/A | N/A | | |
| PUD1 | PUD #1 GENERAL | N/A | N/A | N/A | N/A | | |
| STATE | STATE SCHOOL PART 1 | N/A | N/A | N/A | N/A | | |
| STATE2 | STATE SCHOOL PART 2 | N/A | N/A | N/A | N/A | | |
| | Total Tax Rate: | N/A | | | | | |
| | | | | Taxes w/Current Exemptions: | N/A | | |
| | | | | Taxes w/o Exemptions: | N/A | | |
Improvement / Building
| Improvement #1: | Residential Bldg | State Code: | 11 | 1152.0 sqft | Value: | $522,799 |
| Bathrooms (#): | 1 (FULL) | Bathrooms (#): | 1 (HALF) | | Bedrooms (#): | 3 | Exterior Wall: | SI/ST | | Fireplace: | WD ST-GOOD | Floor Construction: | FRAME | | Foundation: | CONPR | Heating/Cooling: | F/A | | Roof Cover: | METAL |   |   |
|
| | Type | Description | Class CD | Sub Class CD | Year Built | Area |
| | MA | Main Area | 5- | 1S | 1978 | 1152.0 |
| | PATIO | House Patio | 4 | 1S | 1978 | 420.0 |
| | HWPOR | House Wood Porch | 4 | 1S | 1978 | 408.0 |
| | HDECK | House Deck | 4 | 1S | 1978 | 216.0 |
| | GDET | Detached Garage | 4 | 1S | 1978 | 528.0 |
| | BSMTF | House basement finished | 4 | 1S | 1978 | 1152.0 |
| | ASPHD | Asphalt Drive | 4 | 1S | 1978 | 2500.0 |
Sketch
| No sketches available for this property. |
Property Image
Land
| 1 | 3362-1225F | Med to High Bank Wtrfrt Tala Shores | 0.0000 | 0.00 | 37.50 | 0.00 | 1.00 | $299,250 | $0 |
Roll Value History
| 2025 | N/A | N/A | N/A | N/A | N/A |
| 2024 | $522,799 | $299,250 | $0 | $822,049 | $822,049 |
| 2023 | $499,036 | $280,000 | $0 | $779,036 | $779,036 |
| 2022 | $499,036 | $275,000 | $0 | $774,036 | $774,036 |
| 2021 | $378,952 | $253,125 | $0 | $632,077 | $632,077 |
Deed and Sales History
| 1 | 03/15/2017 | SWD | Statutory Warranty Deed | KENNETH K NG | JOHN P & ANN W BETHEL | | | $500,000.00 | 127384 | |
| 2 | 07/07/2004 | SWD | Statutory Warranty Deed | CLIFFORD, JR, PHILLIP WIL | NG, KENNETH/BRENDA/VINCENT/ | 0 | 0 | $355,000.00 | 100783 | 0 |
| 3 | 03/23/1998 | SWD | Statutory Warranty Deed | BAINTON, BARBARA C/TRUST | CLIFFORD, PHILLIP WILLIAM/JR | 0 | 0 | $180,000.00 | 84086 | 0 |
Payout Agreement
| No payout information available.. |