Property
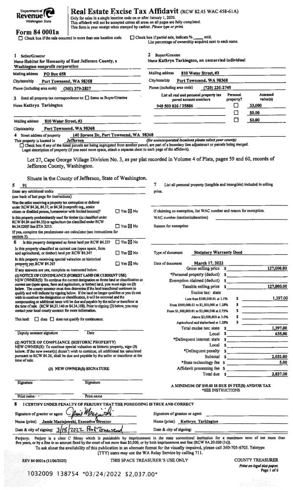
Account |
| Property ID: | 43182 | Abbreviated Legal Description: | TALA SHORES #2 23 |
| Parcel # / Geo ID: | 998200221 | Agent Code: | |
| Type: | Real | | |
| Tax Area: | 0213 - 1-49F1E1H2L1 | Land Use Code | 11 |
| Open Space: | N | DFL | N |
| Historic Property: | N | Remodel Property: | N |
| Multi-Family Redevelopment: | N | | |
| Township: | 28N | Section: | 22 |
| Range: | 1E |
Location |
| Address: | 203 TALA SHORE DR PORT LUDLOW, WA 98365 | Mapsco: | 130/052 |
| Neighborhood: | TALA SHORES DIV #1, #2, & #3 | Map ID: | |
| Neighborhood CD: | 3362 |
Owner |
| Name: | EARL & DENICA HUFF | Owner ID: | 89449 |
| Mailing Address: | 203 TALA SHORE DRIVE PORT LUDLOW, WA 98365 | % Ownership: | 100.0000000000% |
| | | Exemptions: | |
Pay Tax Due
There is currently No Amount Due on this property.
Taxes and Assessment Details
Property Tax Information as of
10/24/2025
Click on "Statement Details" to expand or collapse a tax statement.
* Please enter a valid date ** Please enter a valid date *
Statement Details |
| | TOTAL: | $0.00 | $0.00 | $0.00 | $0.00 | $0.00 | $0.00 |
|
| | $0.00 | $0.00 | $0.00 | $0.00 | $0.00 | $0.00 |
Values
| (+) Improvement Homesite Value: | + | $0 | |
| (+) Improvement Non-Homesite Value: | + | $246,566 | |
| (+) Land Homesite Value: | + | $0 | |
| (+) Land Non-Homesite Value: | + | $126,000 | |
| (+) Curr Use (HS): | + | $0 | $0 |
| (+) Curr Use (NHS): | + | $0 | $0 |
| | | -------------------------- | |
| (=) Market Value: | = | $372,566 | |
| (–) Productivity Loss: | – | $0 | |
| | | -------------------------- | |
| (=) Subtotal: | = | $372,566 | |
| (+) Senior Appraised Value: | + | $0 | |
| (+) Non-Senior Appraised Value: | + | $372,566 | |
| | | -------------------------- | |
| (=) Total Appraised Value: | = | $372,566 | |
| (–) Senior Exemption Loss: | – | $0 | |
| (–) Exemption Loss: | – | $0 | |
| | | -------------------------- | |
| (=) Taxable Value: | = | $372,566 | |
Taxing Jurisdiction
| Owner: | EARL & DENICA HUFF | | |
| % Ownership: | 100.0000000000% | | |
| Total Value: | N/A | | |
| Tax Area: | 0213 - 1-49F1E1H2L1 |
| CE | COUNTY CURRENT EXPENSE | N/A | N/A | N/A | N/A | | |
| CNTYDD | DEVELOPMENTAL DISABILITIES | N/A | N/A | N/A | N/A | | |
| CNTYVET | VETERANS RELIEF | N/A | N/A | N/A | N/A | | |
| MENTAL | MENTAL HEALTH | N/A | N/A | N/A | N/A | | |
| ROADS | COUNTY ROADS | N/A | N/A | N/A | N/A | | |
| ROADSCU | COUNTY ROADS TO CUR EXP | N/A | N/A | N/A | N/A | | |
| HOSP2CASH | HOSP DIST #2 GENERAL | N/A | N/A | N/A | N/A | | |
| SCH49CP | SCHOOL DIST #49 CAP PROJ | N/A | N/A | N/A | N/A | | |
| SCH49MO | SCHOOL DIST #49 EP & O | N/A | N/A | N/A | N/A | | |
| CONSERVE | CONSERVATION FUTURES | N/A | N/A | N/A | N/A | | |
| EMS1 | FIRE DIST #1 EMS | N/A | N/A | N/A | N/A | | |
| FD1 | FIRE DIST #1 GENERAL | N/A | N/A | N/A | N/A | | |
| LIB1 | LIBRARY DIST #1 GENERAL | N/A | N/A | N/A | N/A | | |
| PORTPT | PORT OF PT GENERAL | N/A | N/A | N/A | N/A | | |
| PORTPTIDD | PORT OF PT IDD 2019 | N/A | N/A | N/A | N/A | | |
| PUD1 | PUD #1 GENERAL | N/A | N/A | N/A | N/A | | |
| STATE | STATE SCHOOL PART 1 | N/A | N/A | N/A | N/A | | |
| STATE2 | STATE SCHOOL PART 2 | N/A | N/A | N/A | N/A | | |
| | Total Tax Rate: | N/A | | | | | |
| | | | | Taxes w/Current Exemptions: | N/A | | |
| | | | | Taxes w/o Exemptions: | N/A | | |
Improvement / Building
| Improvement #1: | Residential Bldg | State Code: | 11 | 1360.0 sqft | Value: | $246,566 |
| Bathrooms (#): | 1 (FULL) | Bathrooms (#): | 1 (HALF) | | Bedrooms (#): | 1 | Exterior Wall: | SI/ST | | Floor Construction: | CONCR | Foundation: | CONPR | | Heating/Cooling: | ELBB | Inside Verify: | NO | | Roof Cover: | COMP |   |   |
|
| | Type | Description | Class CD | Sub Class CD | Year Built | Area |
| | MA | Main Area | 3 | 15SF | 2000 | 800.0 |
| | MA2 | Second Floor Main Area | 3 | 15SF | 2000 | 560.0 |
| | PATIO | House Patio | 3 | 15SF | 2000 | 55.0 |
| | HCPOR | House Concrete Porch | 3 | 15SF | 2000 | 305.0 |
| | SHED | Shed (Table Not Dep) | 3 | 15SF | 2000 | 160.0 |
| | GDET | Detached Garage | 4 | 15SF | 2021 | 720.0 |
Sketch
Property Image
Land
| 1 | 3362-1255S | Fair/Avg Wtr View Sites Tala Shores | 0.0000 | 0.00 | 0.00 | 0.00 | 1.00 | $126,000 | $0 |
Roll Value History
| 2025 | N/A | N/A | N/A | N/A | N/A |
| 2024 | $246,566 | $126,000 | $0 | $372,566 | $372,566 |
| 2023 | $235,359 | $115,000 | $0 | $350,359 | $350,359 |
| 2022 | $235,359 | $110,000 | $0 | $345,359 | $345,359 |
| 2021 | $172,780 | $87,500 | $0 | $260,280 | $260,280 |
Deed and Sales History
| 1 | 03/27/2013 | SWD | Statutory Warranty Deed | LARRY E RICHTER | EARL & DENICA HUFF | | | $180,000.00 | 118983 | |
Payout Agreement
| No payout information available.. |