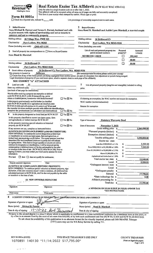
Property
Account |
| Property ID: | 43246 | Abbreviated Legal Description: | TAMARACK VILLAGE LOT 9 |
| Parcel # / Geo ID: | 998300009 | Agent Code: | |
| Type: | Real | | |
| Tax Area: | 0211 - 1-49F1E1H2L1 | Land Use Code | 11 |
| Open Space: | N | DFL | N |
| Historic Property: | N | Remodel Property: | N |
| Multi-Family Redevelopment: | N | | |
| Township: | 29N | Section: | 2 |
| Range: | 1W |
Location |
| Address: | 80 SPRUCE LN PORT HADLOCK, WA 98339 | Mapsco: | 132/009 |
| Neighborhood: | BISHOP ACRES; TAMARACK VILLAGE; WOODLAND ACRES | Map ID: | |
| Neighborhood CD: | 4214 |
Owner |
| Name: | AIDAN CARPENTER | Owner ID: | 110363 |
| Mailing Address: | 80 SPRUCE LN PORT HADLOCK, WA 98339-9552 | % Ownership: | 100.0000000000% |
| | | Exemptions: | |
Pay Tax Due
There is currently No Amount Due on this property.
Taxes and Assessment Details
Property Tax Information as of
10/24/2025
Click on "Statement Details" to expand or collapse a tax statement.
* Please enter a valid date ** Please enter a valid date *
Statement Details |
| | TOTAL: | $0.00 | $0.00 | $0.00 | $0.00 | $0.00 | $0.00 |
|
| | $0.00 | $0.00 | $0.00 | $0.00 | $0.00 | $0.00 |
Values
| (+) Improvement Homesite Value: | + | $0 | |
| (+) Improvement Non-Homesite Value: | + | $223,248 | |
| (+) Land Homesite Value: | + | $0 | |
| (+) Land Non-Homesite Value: | + | $104,500 | |
| (+) Curr Use (HS): | + | $0 | $0 |
| (+) Curr Use (NHS): | + | $0 | $0 |
| | | -------------------------- | |
| (=) Market Value: | = | $327,748 | |
| (–) Productivity Loss: | – | $0 | |
| | | -------------------------- | |
| (=) Subtotal: | = | $327,748 | |
| (+) Senior Appraised Value: | + | $0 | |
| (+) Non-Senior Appraised Value: | + | $327,748 | |
| | | -------------------------- | |
| (=) Total Appraised Value: | = | $327,748 | |
| (–) Senior Exemption Loss: | – | $0 | |
| (–) Exemption Loss: | – | $0 | |
| | | -------------------------- | |
| (=) Taxable Value: | = | $327,748 | |
Taxing Jurisdiction
| Owner: | AIDAN CARPENTER | | |
| % Ownership: | 100.0000000000% | | |
| Total Value: | N/A | | |
| Tax Area: | 0211 - 1-49F1E1H2L1 |
| CE | COUNTY CURRENT EXPENSE | N/A | N/A | N/A | N/A | | |
| CNTYDD | DEVELOPMENTAL DISABILITIES | N/A | N/A | N/A | N/A | | |
| CNTYVET | VETERANS RELIEF | N/A | N/A | N/A | N/A | | |
| MENTAL | MENTAL HEALTH | N/A | N/A | N/A | N/A | | |
| ROADS | COUNTY ROADS | N/A | N/A | N/A | N/A | | |
| ROADSCU | COUNTY ROADS TO CUR EXP | N/A | N/A | N/A | N/A | | |
| HOSP2CASH | HOSP DIST #2 GENERAL | N/A | N/A | N/A | N/A | | |
| SCH49CP | SCHOOL DIST #49 CAP PROJ | N/A | N/A | N/A | N/A | | |
| SCH49MO | SCHOOL DIST #49 EP & O | N/A | N/A | N/A | N/A | | |
| CONSERVE | CONSERVATION FUTURES | N/A | N/A | N/A | N/A | | |
| EMS1 | FIRE DIST #1 EMS | N/A | N/A | N/A | N/A | | |
| FD1 | FIRE DIST #1 GENERAL | N/A | N/A | N/A | N/A | | |
| LIB1 | LIBRARY DIST #1 GENERAL | N/A | N/A | N/A | N/A | | |
| PORTPT | PORT OF PT GENERAL | N/A | N/A | N/A | N/A | | |
| PORTPTIDD | PORT OF PT IDD 2019 | N/A | N/A | N/A | N/A | | |
| PUD1 | PUD #1 GENERAL | N/A | N/A | N/A | N/A | | |
| STATE | STATE SCHOOL PART 1 | N/A | N/A | N/A | N/A | | |
| STATE2 | STATE SCHOOL PART 2 | N/A | N/A | N/A | N/A | | |
| | Total Tax Rate: | N/A | | | | | |
| | | | | Taxes w/Current Exemptions: | N/A | | |
| | | | | Taxes w/o Exemptions: | N/A | | |
Improvement / Building
| Improvement #1: | Manufactured Home | State Code: | 11 | 1296.0 sqft | Value: | $223,248 |
| Bathrooms (#): | 2 (FULL) | Bedrooms (#): | 2 | | Exterior Wall: | PL/T1 | Floor Construction: | FRAME | | Foundation: | PO&BL | Heating/Cooling: | F/A | | Inside Verify: | YES-FIX | Roof Cover: | COMP |
|
| | Type | Description | Class CD | Sub Class CD | Year Built | Area |
| | MA | Main Area | 4- | MFH | 1990 | 1296.0 |
| | MDECK | MH Deck | 3 | * | 1990 | 64.0 |
| | MSKIRT_WD | MH Skirting - Wood | 3 | * | 1990 | 152.0 |
Sketch
| No sketches available for this property. |
Property Image
Land
| 1 | 4214-1285S | Tamarack Village Lots | 0.0000 | 0.00 | 0.00 | 0.00 | 1.00 | $104,500 | $0 |
Roll Value History
| 2025 | N/A | N/A | N/A | N/A | N/A |
| 2024 | $213,542 | $99,750 | $0 | $313,292 | $313,292 |
| 2023 | $203,835 | $90,000 | $0 | $293,835 | $293,835 |
| 2022 | $180,532 | $85,000 | $0 | $265,532 | $265,532 |
| 2021 | $167,159 | $76,700 | $0 | $243,859 | $243,859 |
Deed and Sales History
| 1 | 02/07/2024 | SWD | Statutory Warranty Deed | JOSEPH T & MARKI S MING | AIDAN CARPENTER | | | $350,000.00 | 142211 | |
| 2 | 12/31/2020 | SWD | Statutory Warranty Deed | CAITLYN R DUPUY | JOSEPH T & MARKI S MING | | | $265,000.00 | 135900 | |
| 3 | 04/03/2017 | SWD | Statutory Warranty Deed | DALE E KOENIG | CAITLYN R DUPUY | | | $150,000.00 | 127444 | |
| 4 | 04/03/2015 | BSD | Bargain and Sale Deed | FIRST FEDERAL SAVINGS & LOAN OF PORT ANGELES | DALE E KOENIG | | | $65,610.00 | 122970 | |
| 5 | 11/17/2012 | CORR | Correction Deed | | | | | | 122267 | |
| 6 | 09/12/2014 | TRED | Trustee Deed | PLATT IRWIN LAW FIRM, TRUSTEE | FEDERAL HOME LOAN MTG CORP | | | | 121884 | |
| 7 | 05/28/1996 | SWD | Statutory Warranty Deed | SCHWAKE, RICHARD W | HOLMES, BRUCE J/LESLIE M | 0 | 0 | $62,000.00 | 79590 | 0 |
Payout Agreement
| No payout information available.. |