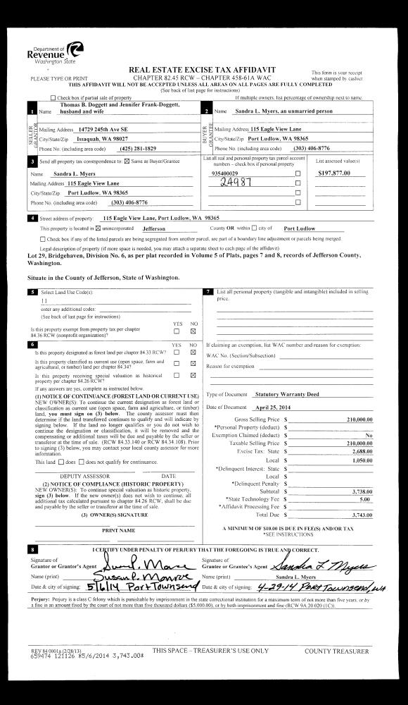
Property
Account |
| Property ID: | 43281 | Abbreviated Legal Description: | TAMARACK VILLAGE LOT 44 |
| Parcel # / Geo ID: | 998300044 | Agent Code: | |
| Type: | Real | | |
| Tax Area: | 0211 - 1-49F1E1H2L1 | Land Use Code | 11 |
| Open Space: | N | DFL | N |
| Historic Property: | N | Remodel Property: | N |
| Multi-Family Redevelopment: | N | | |
| Township: | 29N | Section: | 2 |
| Range: | 1W |
Location |
| Address: | 22 PINE CT PORT HADLOCK, WA 98339 | Mapsco: | 132/044 |
| Neighborhood: | BISHOP ACRES; TAMARACK VILLAGE; WOODLAND ACRES | Map ID: | |
| Neighborhood CD: | 4214 |
Owner |
| Name: | JUDY SHEPHERD | Owner ID: | 97347 |
| Mailing Address: | 22 PINE COURT PORT HADLOCK, WA 98339-9566 | % Ownership: | 100.0000000000% |
| | | Exemptions: | |
Pay Tax Due
There is currently No Amount Due on this property.
Taxes and Assessment Details
Property Tax Information as of
10/24/2025
Click on "Statement Details" to expand or collapse a tax statement.
* Please enter a valid date ** Please enter a valid date *
Statement Details |
| | TOTAL: | $0.00 | $0.00 | $0.00 | $0.00 | $0.00 | $0.00 |
|
| | $0.00 | $0.00 | $0.00 | $0.00 | $0.00 | $0.00 |
Values
| (+) Improvement Homesite Value: | + | $231,297 | |
| (+) Improvement Non-Homesite Value: | + | $0 | |
| (+) Land Homesite Value: | + | $104,500 | |
| (+) Land Non-Homesite Value: | + | $0 | |
| (+) Curr Use (HS): | + | $0 | $0 |
| (+) Curr Use (NHS): | + | $0 | $0 |
| | | -------------------------- | |
| (=) Market Value: | = | $335,797 | |
| (–) Productivity Loss: | – | $0 | |
| | | -------------------------- | |
| (=) Subtotal: | = | $335,797 | |
| (+) Senior Appraised Value: | + | $0 | |
| (+) Non-Senior Appraised Value: | + | $335,797 | |
| | | -------------------------- | |
| (=) Total Appraised Value: | = | $335,797 | |
| (–) Senior Exemption Loss: | – | $0 | |
| (–) Exemption Loss: | – | $0 | |
| | | -------------------------- | |
| (=) Taxable Value: | = | $335,797 | |
Taxing Jurisdiction
| Owner: | JUDY SHEPHERD | | |
| % Ownership: | 100.0000000000% | | |
| Total Value: | N/A | | |
| Tax Area: | 0211 - 1-49F1E1H2L1 |
| CE | COUNTY CURRENT EXPENSE | N/A | N/A | N/A | N/A | | |
| CNTYDD | DEVELOPMENTAL DISABILITIES | N/A | N/A | N/A | N/A | | |
| CNTYVET | VETERANS RELIEF | N/A | N/A | N/A | N/A | | |
| MENTAL | MENTAL HEALTH | N/A | N/A | N/A | N/A | | |
| ROADS | COUNTY ROADS | N/A | N/A | N/A | N/A | | |
| ROADSCU | COUNTY ROADS TO CUR EXP | N/A | N/A | N/A | N/A | | |
| HOSP2CASH | HOSP DIST #2 GENERAL | N/A | N/A | N/A | N/A | | |
| SCH49CP | SCHOOL DIST #49 CAP PROJ | N/A | N/A | N/A | N/A | | |
| SCH49MO | SCHOOL DIST #49 EP & O | N/A | N/A | N/A | N/A | | |
| CONSERVE | CONSERVATION FUTURES | N/A | N/A | N/A | N/A | | |
| EMS1 | FIRE DIST #1 EMS | N/A | N/A | N/A | N/A | | |
| FD1 | FIRE DIST #1 GENERAL | N/A | N/A | N/A | N/A | | |
| LIB1 | LIBRARY DIST #1 GENERAL | N/A | N/A | N/A | N/A | | |
| PORTPT | PORT OF PT GENERAL | N/A | N/A | N/A | N/A | | |
| PORTPTIDD | PORT OF PT IDD 2019 | N/A | N/A | N/A | N/A | | |
| PUD1 | PUD #1 GENERAL | N/A | N/A | N/A | N/A | | |
| STATE | STATE SCHOOL PART 1 | N/A | N/A | N/A | N/A | | |
| STATE2 | STATE SCHOOL PART 2 | N/A | N/A | N/A | N/A | | |
| | Total Tax Rate: | N/A | | | | | |
| | | | | Taxes w/Current Exemptions: | N/A | | |
| | | | | Taxes w/o Exemptions: | N/A | | |
Improvement / Building
| Improvement #1: | Manufactured Home | State Code: | 11 | 1512.0 sqft | Value: | $231,297 |
| Exterior Wall: | PL/T1 | Foundation: | PO&BL | | Heating/Cooling: | F/A | Inside Verify: | YES-FIX | | Roof Cover: | COMP |   |   |
|
| | Type | Description | Class CD | Sub Class CD | Year Built | Area |
| | MA | Main Area | 4 | MFH | 1993 | 1512.0 |
| | MDET | MH Detached Garage | 4 | MFH | 1993 | 720.0 |
Sketch
| No sketches available for this property. |
Property Image
Land
| 1 | 4214-1285S | Tamarack Village Lots | 0.0000 | 0.00 | 0.00 | 0.00 | 1.00 | $104,500 | $0 |
Roll Value History
| 2025 | N/A | N/A | N/A | N/A | N/A |
| 2024 | $221,241 | $99,750 | $0 | $320,991 | $320,991 |
| 2023 | $211,184 | $90,000 | $0 | $301,184 | $301,184 |
| 2022 | $182,261 | $85,000 | $0 | $267,261 | $267,261 |
| 2021 | $168,760 | $76,700 | $0 | $245,460 | $245,460 |
Deed and Sales History
| 1 | 06/06/2017 | SWD | Statutory Warranty Deed | LARRY LEE BROWNING | JUDY SHEPHERD | | | $235,000.00 | 127845 | |
| 2 | 06/06/2017 | QCD | Quit Claim Deed | | | | | | 127846 | |
| 3 | 05/19/2016 | SPWD | Special Warranty Deed | SECRETARY OF HOUSING & | LARRY LEE BROWNING | | | $136,551.00 | 0 | |
| 4 | 07/16/2015 | SWD | Statutory Warranty Deed | PNC BANK NATIONAL ASSOCIATION | SECRETARY OF HOUSING & | | | | 125052 | |
| 5 | 07/14/2015 | TRED | Trustee Deed | RANDALL J LECHTENBERG | PNC BANK NATIONAL ASSOCIATION | | | $0.00 | 123578 | |
| 6 | 07/28/2004 | SWD | Statutory Warranty Deed | TILLER, DONALD E | LECHTENBERG, LEA J & RANDALL J | 0 | 0 | $151,000.00 | 100991 | 0 |
| 7 | 03/24/1999 | SWD | Statutory Warranty Deed | DEIN, DAVE R/JAYNE L | TILLER, DONALD E | 0 | 0 | $112,000.00 | 86559 | 0 |
| 8 | 01/05/1994 | SWD | Statutory Warranty Deed | BENSON, AARON E/KAREN E | DEIN, DAVE R/JAYNE L | 0 | 0 | $20,500.00 | 73148 | 0 |
Payout Agreement
| No payout information available.. |