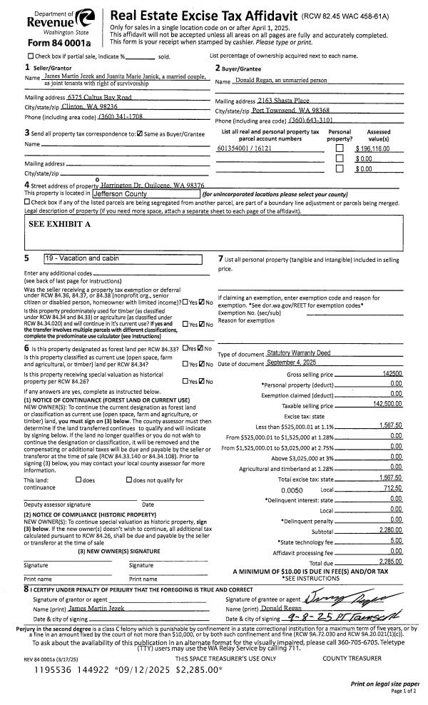
Property
Account |
| Property ID: | 43305 | Abbreviated Legal Description: | TIMBERTON VILLAGE PHASE I LOT 2 SUBJ/EASE |
| Parcel # / Geo ID: | 998500002 | Agent Code: | |
| Type: | Real | | |
| Tax Area: | 0213 - 1-49F1E1H2L1 | Land Use Code | 11 |
| Open Space: | N | DFL | N |
| Historic Property: | N | Remodel Property: | N |
| Multi-Family Redevelopment: | N | | |
| Township: | 28N | Section: | 17 |
| Range: | 1E |
Location |
| Address: | 25 MCKENZIE LN PORT LUDLOW, WA 98365 | Mapsco: | 136/002 |
| Neighborhood: | S17T28R1E IN MPR; LUDLOW PT#2-4 & TIMBERTON VIL;RV PK;OSPREY | Map ID: | |
| Neighborhood CD: | 3340 |
Owner |
| Name: | MAWHINNEY FAMILY 2013 TRUST | Owner ID: | 112245 |
| Mailing Address: | WILLIAM V & WANDA L MAWHINNEY TTEES 25 MCKENZIE LN PORT LUDLOW, WA 98365-9233 | % Ownership: | 100.0000000000% |
| | | Exemptions: | |
Pay Tax Due
There is currently No Amount Due on this property.
Taxes and Assessment Details
Property Tax Information as of
10/24/2025
Click on "Statement Details" to expand or collapse a tax statement.
* Please enter a valid date ** Please enter a valid date *
Statement Details |
| | TOTAL: | $0.00 | $0.00 | $0.00 | $0.00 | $0.00 | $0.00 |
|
| | $0.00 | $0.00 | $0.00 | $0.00 | $0.00 | $0.00 |
Values
| (+) Improvement Homesite Value: | + | $0 | |
| (+) Improvement Non-Homesite Value: | + | $337,451 | |
| (+) Land Homesite Value: | + | $0 | |
| (+) Land Non-Homesite Value: | + | $85,000 | |
| (+) Curr Use (HS): | + | $0 | $0 |
| (+) Curr Use (NHS): | + | $0 | $0 |
| | | -------------------------- | |
| (=) Market Value: | = | $422,451 | |
| (–) Productivity Loss: | – | $0 | |
| | | -------------------------- | |
| (=) Subtotal: | = | $422,451 | |
| (+) Senior Appraised Value: | + | $0 | |
| (+) Non-Senior Appraised Value: | + | $422,451 | |
| | | -------------------------- | |
| (=) Total Appraised Value: | = | $422,451 | |
| (–) Senior Exemption Loss: | – | $0 | |
| (–) Exemption Loss: | – | $0 | |
| | | -------------------------- | |
| (=) Taxable Value: | = | $422,451 | |
Taxing Jurisdiction
| Owner: | MAWHINNEY FAMILY 2013 TRUST | | |
| % Ownership: | 100.0000000000% | | |
| Total Value: | N/A | | |
| Tax Area: | 0213 - 1-49F1E1H2L1 |
| CE | COUNTY CURRENT EXPENSE | N/A | N/A | N/A | N/A | | |
| CNTYDD | DEVELOPMENTAL DISABILITIES | N/A | N/A | N/A | N/A | | |
| CNTYVET | VETERANS RELIEF | N/A | N/A | N/A | N/A | | |
| MENTAL | MENTAL HEALTH | N/A | N/A | N/A | N/A | | |
| ROADS | COUNTY ROADS | N/A | N/A | N/A | N/A | | |
| ROADSCU | COUNTY ROADS TO CUR EXP | N/A | N/A | N/A | N/A | | |
| HOSP2CASH | HOSP DIST #2 GENERAL | N/A | N/A | N/A | N/A | | |
| SCH49CP | SCHOOL DIST #49 CAP PROJ | N/A | N/A | N/A | N/A | | |
| SCH49MO | SCHOOL DIST #49 EP & O | N/A | N/A | N/A | N/A | | |
| CONSERVE | CONSERVATION FUTURES | N/A | N/A | N/A | N/A | | |
| EMS1 | FIRE DIST #1 EMS | N/A | N/A | N/A | N/A | | |
| FD1 | FIRE DIST #1 GENERAL | N/A | N/A | N/A | N/A | | |
| LIB1 | LIBRARY DIST #1 GENERAL | N/A | N/A | N/A | N/A | | |
| PORTPT | PORT OF PT GENERAL | N/A | N/A | N/A | N/A | | |
| PORTPTIDD | PORT OF PT IDD 2019 | N/A | N/A | N/A | N/A | | |
| PUD1 | PUD #1 GENERAL | N/A | N/A | N/A | N/A | | |
| STATE | STATE SCHOOL PART 1 | N/A | N/A | N/A | N/A | | |
| STATE2 | STATE SCHOOL PART 2 | N/A | N/A | N/A | N/A | | |
| | Total Tax Rate: | N/A | | | | | |
| | | | | Taxes w/Current Exemptions: | N/A | | |
| | | | | Taxes w/o Exemptions: | N/A | | |
Improvement / Building
| Improvement #1: | Residential Bldg | State Code: | 11 | 1508.0 sqft | Value: | $337,451 |
| Bathrooms (#): | 3 (FULL) | Bedrooms (#): | 3 | | Exterior Wall: | SI/ST | Fireplace: | WD ST-GOOD | | Floor Construction: | FRAME | Foundation: | CONPR | | Heating/Cooling: | ELBB | Inside Verify: | NO | | Roof Cover: | COMP |   |   |
|
| | Type | Description | Class CD | Sub Class CD | Year Built | Area |
| | MA | Main Area | 4+ | 15SF | 1997 | 1216.0 |
| | MA2 | Second Floor Main Area | 4+ | 15SF | 1997 | 292.0 |
| | PATIO | House Patio | 4 | 15SF | 1997 | 120.0 |
| | HCPOR | House Concrete Porch | 4 | 15SF | 1997 | 102.0 |
| | GATT | House Attached Garage | 4 | 15SF | 1997 | 420.0 |
| | HWPOR | House Wood Porch | 4 | 15SF | 1997 | 36.0 |
| | CONCD | Concrete Drive | 4 | 15SF | 1997 | 800.0 |
Sketch
| No sketches available for this property. |
Property Image
Land
| 1 | 3340-1187L | No/Terr View Lots Timberton Village | 0.0000 | 0.00 | 0.00 | 0.00 | 1.00 | $85,000 | $0 |
Roll Value History
| 2025 | N/A | N/A | N/A | N/A | N/A |
| 2024 | $337,451 | $85,000 | $0 | $422,451 | $422,451 |
| 2023 | $337,451 | $80,000 | $0 | $417,451 | $417,451 |
| 2022 | $337,451 | $75,000 | $0 | $412,451 | $412,451 |
| 2021 | $213,556 | $58,500 | $0 | $272,056 | $272,056 |
Deed and Sales History
| 1 | 02/14/2025 | QCD | Quit Claim Deed | WILLIAM V MAWHINNEY TRSTE | MAWHINNEY FAMILY 2013 TRUST | | | | 143975 | |
| 2 | 06/26/2018 | QCD | Quit Claim Deed | | | | | | 130531 | |
| 3 | 04/05/2005 | SWD | Statutory Warranty Deed | FULLERTON, MONTE W | MAWHINNEY, WILLIAM & WANDA/TR | | | $230,000.00 | 103338 | 0 |
| 4 | 02/03/2004 | QCD | Quit Claim Deed | FULLERTON, SUSAN D | FULLERTON, MONTE W | 0 | 0 | $0.00 | 99631 | 0 |
| 5 | 10/26/1999 | SWD | Statutory Warranty Deed | FORELL/BENSON/KUCERA | FULLERTON, MONTE/SUSAN | 0 | 0 | $144,500.00 | 88253 | 0 |
| 6 | 08/28/1997 | QCD | Quit Claim Deed | BENSON, DEBRA J | BENSON, DAVID E | 0 | 0 | $0.00 | 82684 | 0 |
| 7 | 08/20/1997 | QCD | Quit Claim Deed | FORELL, DONNA | FORELL, M JACK | 0 | 0 | $0.00 | 82683 | 0 |
| 8 | 08/07/1997 | WD | Warranty Deed | RAK DEVELOPMENT | KUCERA FAMILY TRUST | 0 | 0 | $0.00 | 82540 | 0 |
Payout Agreement
| No payout information available.. |